Property
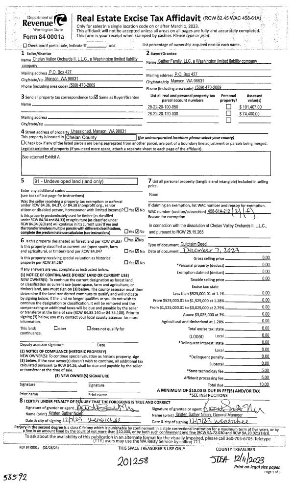
Account |
Property ID: | 50373 | Abbreviated Legal Description: | T 28N R 22EWM S 20 E1/2NE 48.5600 ACRES |
Geographic ID: | 282220100050 | Agent Code: | |
Type: | Real | | |
Tax Area: | 2 - 19 CD4 H2 PK1 | Land Use Code | 91 |
Open Space: | N | DFL | N |
Historic Property: | N | Remodel Property: | N |
Multi-Family Redevelopment: | N | | |
Township: | 28N | Section: | 20 |
Range: | 22EWM | Legal Acres: | 48.5600 |
Location |
Address: | UNASSIGNED MANSON, WA 98831 | Mapsco: | |
Neighborhood: | Cycle 4 Manson div 4 RES | Map ID: | 4MANS04R01 |
Neighborhood CD: | 4MANS04R01 |
Owner |
Name: | SATHER FAMILY LLC | Owner ID: | 99347 |
Mailing Address: | PO BOX 427 MANSON, WA 98831 | % Ownership: | % |
| | Exemptions: | |
Pay Tax Due
There is currently No Amount Due on this property.
Taxes and Assessment Details
Values
(+) Improvement Homesite Value: | + | $0 | |
(+) Improvement Non-Homesite Value: | + | $0 | |
(+) Land Homesite Value: | + | $0 | |
(+) Land Non-Homesite Value: | + | $112,856 | |
(+) Curr Use (HS): | + | $0 | $0 |
(+) Curr Use (NHS): | + | $0 | $0 |
| | -------------------------- | |
(=) Market Value: | = | $112,856 | |
(–) Productivity Loss: | – | $0 | |
| | -------------------------- | |
(=) Subtotal: | = | $112,856 | |
(+) Senior Appraised Value: | + | $0 | |
(+) Non-Senior Appraised Value: | + | $112,856 | |
| | -------------------------- | |
(=) Total Appraised Value: | = | $112,856 | |
(–) Senior Exemption Loss: | – | $0 | |
(–) Exemption Loss: | – | $0 | |
| | -------------------------- | |
(=) Taxable Value: | = | $112,856 | |
Taxing Jurisdiction
Owner: | SATHER FAMILY LLC | | |
% Ownership: | 100.0000000000% | | |
Total Value: | N/A | | |
Tax Area: | 2 - 19 CD4 H2 PK1 |
110001 | County Road General | N/A | N/A | N/A | N/A | | |
010170 | Chelan County | N/A | N/A | N/A | N/A | | |
155001 | Veteran's Relief | N/A | N/A | N/A | N/A | | |
160001 | Mental Health | N/A | N/A | N/A | N/A | | |
657401 | Cemetery No 4 | N/A | N/A | N/A | N/A | | |
692201 | Hospital No 2 General | N/A | N/A | N/A | N/A | | |
654035 | Manson SD 19 Capital Projects | N/A | N/A | N/A | N/A | | |
652001 | State School Refund | N/A | N/A | N/A | N/A | | |
652003 | State School 2 | N/A | N/A | N/A | N/A | | |
652005 | State School | N/A | N/A | N/A | N/A | | |
652025 | State School 2 Refund | N/A | N/A | N/A | N/A | | |
107001 | Flood Control Zone | N/A | N/A | N/A | N/A | | |
692210 | Hospital No 2 Bond | N/A | N/A | N/A | N/A | | |
692260 | Hospital No 2 EMS | N/A | N/A | N/A | N/A | | |
644001 | Regional Library | N/A | N/A | N/A | N/A | | |
675101 | Manson Park & Rec | N/A | N/A | N/A | N/A | | |
671101 | Port General | N/A | N/A | N/A | N/A | | |
654021 | Manson SD 19 General | N/A | N/A | N/A | N/A | | |
| Total Tax Rate: | N/A | | | | | |
| | | | Taxes w/Current Exemptions: | N/A | | |
| | | | Taxes w/o Exemptions: | N/A | | |
Improvement / Building
Sketch
No sketches available for this property. |
Property Image
Land
1 | RES 2.5K | RESIDUAL $2500/A | 4.0000 | 174240.00 | 0.00 | 0.00 | 1.00 | $13,800 | $0 |
2 | RES 500 | RESIDUAL $500/A | 43.5600 | 1897473.60 | 0.00 | 0.00 | 1.00 | $30,056 | $0 |
3 | SV 50K | SITE VALUE $50,000 | 1.0000 | 43560.00 | 0.00 | 0.00 | 1.00 | $69,000 | $0 |
Roll Value History
2025 | N/A | N/A | N/A | N/A | N/A |
2024 | $0 | $101,407 | $0 | $101,407 | $101,407 |
2023 | $0 | $101,407 | $0 | $101,407 | $101,407 |
2022 | $0 | $101,407 | $0 | $101,407 | $101,407 |
2021 | $0 | $50,704 | $0 | $50,704 | $50,704 |
2020 | $0 | $53,975 | $0 | $53,975 | $53,975 |
2019 | $0 | $52,339 | $0 | $52,339 | $52,339 |
2018 | $0 | $52,339 | $0 | $52,339 | $52,339 |
2017 | $0 | $52,339 | $0 | $52,339 | $52,339 |
2016 | $0 | $52,339 | $0 | $52,339 | $52,339 |
2015 | $0 | $49,068 | $0 | $49,068 | $49,068 |
2014 | $0 | $49,068 | $0 | $49,068 | $49,068 |
2013 | $0 | $49,068 | $0 | $49,068 | $49,068 |
2012 | $0 | $53,157 | $0 | $53,157 | $53,157 |
2011 | $0 | $57,246 | $0 | $57,246 | $57,246 |
2010 | $0 | $57,246 | $0 | $57,246 | $57,246 |
2009 | $0 | $73,780 | $0 | $73,780 | $73,780 |
2008 | $0 | $73,780 | $0 | $73,780 | $73,780 |
2007 | $0 | $44,068 | $0 | $44,068 | $44,068 |
2006 | $0 | $44,068 | $0 | $44,068 | $44,068 |
Deed and Sales History
1 | 12/11/2023 | Q | Quit Claim Deed | CHELAN VALLEY ORCHARDS II LLC | SATHER FAMILY LLC | | | $0.00 | 201258 | 2589328 |
2 | 12/15/2015 | SWD | Statutory Warranty Deed | GREEN'S LANDING LLC | CHELAN VALLEY ORCHARDS II LLC | | | $1,090,500.00 | 168417 | 2429823 |
  | |
3 | 12/15/2015 | Q | Quit Claim Deed | SATHER FAMILY LLC | CHELAN VALLEY ORCHARDS II LLC | | | $0.00 | 168416 | 2429822 |
4 | 12/15/2015 | Q | Quit Claim Deed | CHELAN VALLEY ORCHARDS LLC | SATHER FAMILY LLC ETAL | | | $0.00 | 168415 | 2429821 |
5 | 12/28/2004 | Q | Quit Claim Deed | | CHELAN VALLEY ORCHARDS LLC | | | | 13267603 | 2223496 |
6 | 12/31/1986 | SWD | Statutory Warranty Deed | | SATHER JON W ETAL | 869 | 2091 | | 0 | |
Payout Agreement
No payout information available.. |