Property
Account |
| Property ID: | 50220 | Abbreviated Legal Description: | T 28N R 22EWM S 08 SWSW 40.0000 ACRES |
| Geographic ID: | 282208330000 | Agent Code: | |
| Type: | Real | | |
| Tax Area: | 2 - 19 CD4 H2 PK1 | Land Use Code | 83 |
| Open Space: | Y | DFL | N |
| Historic Property: | N | Remodel Property: | N |
| Multi-Family Redevelopment: | N | | |
| Township: | 28N | Section: | 08 |
| Range: | 22EWM | Legal Acres: | 40.0000 |
Location |
| Address: | UNASSIGNED MANSON, WA 98831 | Mapsco: | |
| Neighborhood: | Cycle 4 Manson div 4 AG | Map ID: | 4MANS04A01 |
| Neighborhood CD: | 4MANS04A01 |
Owner |
| Name: | DICKINSON WRIGHT & BUBALO SANDY | Owner ID: | 108113 |
| Mailing Address: | C/O BT FAMILY ADVISORS 4616 25TH AVE NE #161 SEATTLE, WA 98105 | % Ownership: | % |
| | | Exemptions: | |
Pay Tax Due
Select the appropriate checkbox next to the year to be paid. Multiple years may be selected.
*Convenience Fee not included
Taxes and Assessment Details
Values
| (+) Improvement Homesite Value: | + | N/A | |
| (+) Improvement Non-Homesite Value: | + | N/A | |
| (+) Land Homesite Value: | + | N/A | |
| (+) Land Non-Homesite Value: | + | N/A | Ag / Timber Use Value |
| (+) Curr Use (HS): | + | N/A | N/A |
| (+) Curr Use (NHS): | + | N/A | N/A |
| | | -------------------------- | |
| (=) Market Value: | = | N/A | |
| (–) Productivity Loss: | – | N/A | |
| | | -------------------------- | |
| (=) Subtotal: | = | N/A | |
| (+) Senior Appraised Value: | + | N/A | |
| (+) Non-Senior Appraised Value: | + | N/A | |
| | | -------------------------- | |
| (=) Total Appraised Value: | = | N/A | |
| (–) Senior Exemption Loss: | – | N/A | |
| (–) Exemption Loss: | – | N/A | |
| | | -------------------------- | |
| (=) Taxable Value: | = | N/A | |
Taxing Jurisdiction
| Owner: | DICKINSON WRIGHT & BUBALO SANDY | | |
| % Ownership: | 100.0000000000% | | |
| Total Value: | N/A | | |
| Tax Area: | 2 - 19 CD4 H2 PK1 |
| 110001 | County Road General | N/A | N/A | N/A | N/A | | |
| 010170 | Chelan County | N/A | N/A | N/A | N/A | | |
| 155001 | Veteran's Relief | N/A | N/A | N/A | N/A | | |
| 160001 | Mental Health | N/A | N/A | N/A | N/A | | |
| 657401 | Cemetery No 4 | N/A | N/A | N/A | N/A | | |
| 692201 | Hospital No 2 General | N/A | N/A | N/A | N/A | | |
| 654035 | Manson SD 19 Capital Projects | N/A | N/A | N/A | N/A | | |
| 652001 | State School Refund | N/A | N/A | N/A | N/A | | |
| 652003 | State School 2 | N/A | N/A | N/A | N/A | | |
| 652005 | State School | N/A | N/A | N/A | N/A | | |
| 652025 | State School 2 Refund | N/A | N/A | N/A | N/A | | |
| 107001 | Flood Control Zone | N/A | N/A | N/A | N/A | | |
| 692210 | Hospital No 2 Bond | N/A | N/A | N/A | N/A | | |
| 692260 | Hospital No 2 EMS | N/A | N/A | N/A | N/A | | |
| 644001 | Regional Library | N/A | N/A | N/A | N/A | | |
| 675101 | Manson Park & Rec | N/A | N/A | N/A | N/A | | |
| 671101 | Port General | N/A | N/A | N/A | N/A | | |
| 654021 | Manson SD 19 General | N/A | N/A | N/A | N/A | | |
| | Total Tax Rate: | N/A | | | | | |
| | | | | Taxes w/Current Exemptions: | N/A | | |
| | | | | Taxes w/o Exemptions: | N/A | | |
Improvement / Building
Sketch
| No sketches available for this property. |
Property Image
Land
| 1 | RES 300 | RESIDUAL $300/A | 20.0000 | 871200.00 | 0.00 | 0.00 | 1.00 | N/A | N/A |
| 2 | SV 50K | SITE VALUE $50,000 | 1.0000 | 43560.00 | 0.00 | 0.00 | 1.00 | N/A | N/A |
| 3 | RES 1000 | RESIDUAL $1000/A | 19.0000 | 827640.00 | 0.00 | 0.00 | 1.00 | N/A | N/A |
Roll Value History
| 2026 | N/A | N/A | N/A | N/A | N/A |
| 2025 | $0 | $75,000 | $4,000 | $4,000 | $4,000 |
| 2024 | $0 | $75,000 | $4,000 | $4,000 | $4,000 |
| 2023 | $0 | $75,000 | $4,000 | $4,000 | $4,000 |
| 2022 | $0 | $75,000 | $4,000 | $4,000 | $4,000 |
| 2021 | $0 | $75,000 | $4,000 | $4,000 | $4,000 |
| 2020 | $0 | $75,000 | $4,000 | $4,000 | $4,000 |
| 2019 | $0 | $75,000 | $4,000 | $4,000 | $4,000 |
| 2018 | $0 | $75,000 | $4,000 | $4,000 | $4,000 |
| 2017 | $0 | $75,000 | $4,000 | $4,000 | $4,000 |
| 2016 | $0 | $48,000 | $4,000 | $4,000 | $4,000 |
| 2015 | $0 | $45,000 | $4,000 | $4,000 | $4,000 |
| 2014 | $0 | $45,000 | $4,000 | $4,000 | $4,000 |
| 2013 | $0 | $45,000 | $4,000 | $4,000 | $4,000 |
| 2012 | $0 | $48,750 | $4,000 | $4,000 | $4,000 |
| 2011 | $0 | $52,500 | $4,000 | $4,000 | $4,000 |
| 2010 | $0 | $52,500 | $4,000 | $4,000 | $4,000 |
| 2009 | $0 | $75,000 | $3,600 | $3,600 | $3,600 |
| 2008 | $0 | $75,000 | $3,600 | $3,600 | $3,600 |
| 2007 | $0 | $3,600 | $0 | $3,600 | $3,600 |
Deed and Sales History
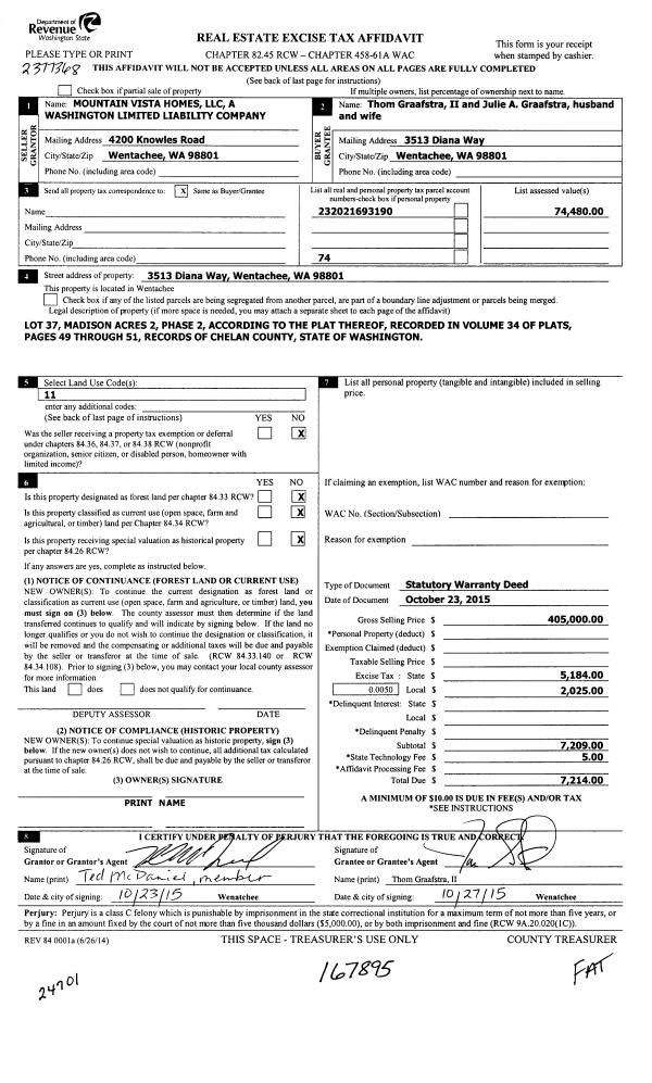
| 1 | 05/21/2021 | SWD | Statutory Warranty Deed | COURTNEY CRAGG TRUSTEE | DICKINSON WRIGHT & BUBALO SANDY | | | $405,000.00 | 191786 | 2544558 |
|   | |
| 2 | 01/08/2020 | CORR DEED | Correction Deed | ST JOHN VERA R ETAL | COURTNEY CRAGG TRUSTEE | | | | 0 | 2509173 |
| 3 | 05/20/2019 | WFD | Warranty Fulfillment Deed | ST JOHN VERA R ETAL | COURTNEY CRAGG TRUSTEE | | | | 0 | 2496188 |
| 4 | 01/10/2006 | Q | Quit Claim Deed | COURTNEY CRAGG | COURTNEY CRAGG | | | | 0 | 2218385 |
| 5 | 05/19/1992 | C | Real Estate Contract | STACY HAROLD GE | COURTNEY CRAGG | 969 | 957 | | 0 | |
| 6 | 12/10/1990 | SP WD | Special Warranty Deed | SNYDER MARY MIA | SEATTLE FIRST N | 941 | 1175 | | 0 | |
| 7 | 01/10/1990 | Q | Quit Claim Deed | STACY JOHN CHAR | STACY COMMUNITY | 922 | 894 | | 0 | |
| 8 | 12/11/1985 | Q | Quit Claim Deed | STACY LUCILE RI | STACY JOHN CHAR | 851 | 1635 | | 0 | |
| 9 | 06/17/1964 | Q | Quit Claim Deed | V ST.JOHN | SEA-FIRST | 661 | 694 | | 0 | |
| 10 | 05/12/1992 | C | Real Estate Contract | | | 969 | 957 | $60,000.00 | 7248902 | |
| 11 | | OT | Conversion Code Only | | ST JOHN VERA R ETAL | 0 | 0 | | 0 | |
| 12 | | OT | Conversion Code Only | | JOHN D RINGLER | 0 | 0 | | 0 | |
Payout Agreement
| No payout information available.. |