Property
Account |
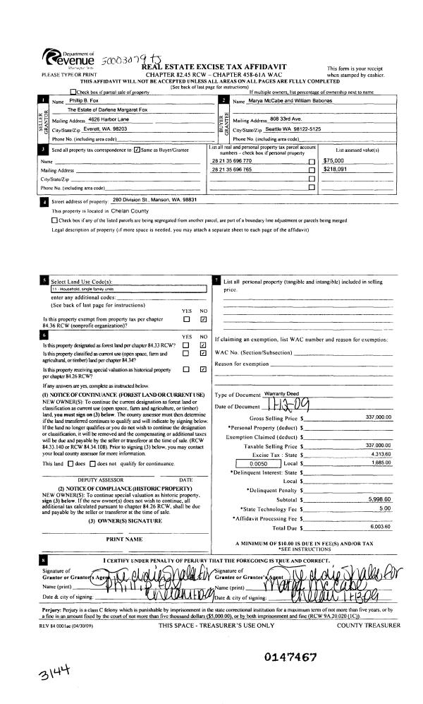
| Property ID: | 49663 | Abbreviated Legal Description: | MANSON BLOCK 79 LOT 3 SP 1997-102 0.4400 ACRES |
| Geographic ID: | 282135696765 | Agent Code: | |
| Type: | Real | | |
| Tax Area: | 4 - 19 F5 CD4 H2 PK1 | Land Use Code | 11 |
| Open Space: | N | DFL | N |
| Historic Property: | N | Remodel Property: | N |
| Multi-Family Redevelopment: | N | | |
| Township: | 28N | Section: | 35 |
| Range: | 21EWM | Legal Acres: | 0.4400 |
Location |
| Address: | 28 LAROCHA LN MANSON, WA 98831 | Mapsco: | |
| Neighborhood: | Cycle 4 Manson div 1 RES | Map ID: | 4MANS01R01 |
| Neighborhood CD: | 4MANS01R01 |
Owner |
| Name: | MCCABE MARYA & WILLIAM BABONAS | Owner ID: | 81213 |
| Mailing Address: | 808 33RD AVE SEATTLE, WA 98122-5125 | % Ownership: | % |
| | | Exemptions: | |
Pay Tax Due
Select the appropriate checkbox next to the year to be paid. Multiple years may be selected.
*Convenience Fee not included
Taxes and Assessment Details
Values
| (+) Improvement Homesite Value: | + | N/A | |
| (+) Improvement Non-Homesite Value: | + | N/A | |
| (+) Land Homesite Value: | + | N/A | |
| (+) Land Non-Homesite Value: | + | N/A | Ag / Timber Use Value |
| (+) Curr Use (HS): | + | N/A | N/A |
| (+) Curr Use (NHS): | + | N/A | N/A |
| | | -------------------------- | |
| (=) Market Value: | = | N/A | |
| (–) Productivity Loss: | – | N/A | |
| | | -------------------------- | |
| (=) Subtotal: | = | N/A | |
| (+) Senior Appraised Value: | + | N/A | |
| (+) Non-Senior Appraised Value: | + | N/A | |
| | | -------------------------- | |
| (=) Total Appraised Value: | = | N/A | |
| (–) Senior Exemption Loss: | – | N/A | |
| (–) Exemption Loss: | – | N/A | |
| | | -------------------------- | |
| (=) Taxable Value: | = | N/A | |
Taxing Jurisdiction
| Owner: | MCCABE MARYA & WILLIAM BABONAS | | |
| % Ownership: | 100.0000000000% | | |
| Total Value: | N/A | | |
| Tax Area: | 4 - 19 F5 CD4 H2 PK1 |
| 110001 | County Road General | N/A | N/A | N/A | N/A | | |
| 010170 | Chelan County | N/A | N/A | N/A | N/A | | |
| 155001 | Veteran's Relief | N/A | N/A | N/A | N/A | | |
| 160001 | Mental Health | N/A | N/A | N/A | N/A | | |
| 657401 | Cemetery No 4 | N/A | N/A | N/A | N/A | | |
| 656501 | Fire No 5 General | N/A | N/A | N/A | N/A | | |
| 107001 | Flood Control Zone | N/A | N/A | N/A | N/A | | |
| 654021 | Manson SD 19 General | N/A | N/A | N/A | N/A | | |
| 654035 | Manson SD 19 Capital Projects | N/A | N/A | N/A | N/A | | |
| 652001 | State School Refund | N/A | N/A | N/A | N/A | | |
| 652003 | State School 2 | N/A | N/A | N/A | N/A | | |
| 652005 | State School | N/A | N/A | N/A | N/A | | |
| 652025 | State School 2 Refund | N/A | N/A | N/A | N/A | | |
| 692201 | Hospital No 2 General | N/A | N/A | N/A | N/A | | |
| 692210 | Hospital No 2 Bond | N/A | N/A | N/A | N/A | | |
| 692260 | Hospital No 2 EMS | N/A | N/A | N/A | N/A | | |
| 644001 | Regional Library | N/A | N/A | N/A | N/A | | |
| 675101 | Manson Park & Rec | N/A | N/A | N/A | N/A | | |
| 671101 | Port General | N/A | N/A | N/A | N/A | | |
| | Total Tax Rate: | N/A | | | | | |
| | | | | Taxes w/Current Exemptions: | N/A | | |
| | | | | Taxes w/o Exemptions: | N/A | | |
Improvement / Building
| Improvement #1: | RESIDENTIAL | State Code: | 11 | 3966.0 sqft | Value: | N/A |
| Exterior Wall: | Wood Siding | Fireplace: | Single 2 Story | | Heating/Cooling: | Heat Pump | Number of Bathrooms: | 1.75 | | Number of Bedrooms: | 3 |   |   |
|
| | Type | Description | Class CD | Sub Class CD | Year Built | Area |
| | MA | Main | AVERAGE | 1.5 ST FIN | 1930 | 3966.0 |
| | DECK | Open Wood Deck | GOOD | * | 2015 | 247.0 |
| | DECK | Open Wood Deck | GOOD | * | 2015 | 1212.0 |
| | PP-OPEN | Open Concrete Porch | GOOD | * | 2015 | 100.0 |
| | DECK | Open Wood Deck | AVERAGE | * | 1930 | 144.0 |
| Improvement #2: | RESIDENTIAL | State Code: | 11 | 616.0 sqft | Value: | N/A |
| Exterior Wall: | Plywood or Hrdbrd | Heating/Cooling: | Heat Pump | | Number of Bathrooms: | 1 | Number of Bedrooms: | 1 |
|
| | Type | Description | Class CD | Sub Class CD | Year Built | Area |
| | MA | Main | AVERAGE | 1 STY | 2020 | 616.0 |
| | GAR-BI | Built-In Garage | AVERAGE | 1 STY | 2020 | 616.0 |
Sketch
Property Image
Land
| 1 | SV 150K | SITE VALUE $150,000 | 0.4400 | 19166.40 | 0.00 | 0.00 | 1.00 | N/A | N/A |
Roll Value History
| 2026 | N/A | N/A | N/A | N/A | N/A |
| 2025 | $590,360 | $247,500 | $0 | $837,860 | $837,860 |
| 2024 | $644,417 | $285,000 | $0 | $929,417 | $929,417 |
| 2023 | $809,385 | $285,000 | $0 | $1,094,385 | $1,094,385 |
| 2022 | $503,442 | $279,000 | $0 | $782,442 | $782,442 |
| 2021 | $538,114 | $162,000 | $0 | $700,114 | $700,114 |
| 2020 | $394,566 | $136,500 | $0 | $531,066 | $531,066 |
| 2019 | $277,337 | $136,500 | $0 | $413,837 | $413,837 |
| 2018 | $296,632 | $127,500 | $0 | $424,132 | $424,132 |
| 2017 | $208,663 | $109,500 | $0 | $318,163 | $318,163 |
| 2016 | $207,433 | $93,000 | $0 | $300,433 | $300,433 |
| 2015 | $166,266 | $103,500 | $0 | $269,766 | $269,766 |
| 2014 | $139,337 | $99,000 | $0 | $238,337 | $238,337 |
| 2013 | $117,520 | $75,000 | $0 | $192,520 | $192,520 |
| 2012 | $151,535 | $97,500 | $0 | $249,035 | $249,035 |
| 2011 | $48,952 | $105,000 | $0 | $153,952 | $153,952 |
| 2010 | $48,952 | $112,500 | $0 | $161,452 | $161,452 |
| 2009 | $68,091 | $150,000 | $0 | $218,091 | $218,091 |
| 2008 | $68,091 | $150,000 | $0 | $218,091 | $218,091 |
| 2007 | $32,196 | $55,000 | $0 | $87,196 | $87,196 |
Deed and Sales History
| 1 | 11/13/2009 | WD | Warranty Deed | FOX PHILLIP B | MCCABE MARYA & WILLIAM BABONAS | | | $337,000.00 | 147467 | 2314480 |
|   | |
| 2 | 06/17/2004 | W | Warranty Deed | | FOX PHILLIP B | | | | 0 | 2176050 |
| 3 | 12/09/1998 | REF | Conversion Code Only | SP 1997-102 | | | | | 0 | 2042378 |
| 4 | 08/06/1990 | W | Warranty Deed | | NELS P CHRISTENSEN | 934 | 546 | | 0 | |
| 5 | 08/06/1990 | W | Warranty Deed | | FOX PHILLIP B | 934 | 543 | | 0 | |
| 6 | | OT | Conversion Code Only | | EDWARD D PITTS | 751 | 1940 | | 0 | |
| 7 | 06/17/2004 | W | Warranty Deed | | | | | $188,333.00 | 12322603 | 2176050 |
Payout Agreement
| No payout information available.. |