Property
Account |
| Property ID: | 48992 | Abbreviated Legal Description: | JOSHUA GREENS LOT E BLA 2017-357 NWNW 0.1900 ACRES |
| Geographic ID: | 282133220050 | Agent Code: | |
| Type: | Real | | |
| Tax Area: | 34 - 129 F7 CD4 H2 | Land Use Code | 18 |
| Open Space: | N | DFL | N |
| Historic Property: | N | Remodel Property: | N |
| Multi-Family Redevelopment: | N | | |
| Township: | 28N | Section: | 33 |
| Range: | 21EWM | Legal Acres: | 0.1900 |
Location |
| Address: | 9560 S LAKESHORE RD CHELAN, WA 98816 | Mapsco: | |
| Neighborhood: | Cycle 4 Chelan water south div 2 RES | Map ID: | 4CWSO02R01 |
| Neighborhood CD: | 4CWSO02R01 |
Owner |
| Name: | MARKOW TADEUSZ & JOY | Owner ID: | 23782 |
| Mailing Address: | 3426 W BLAINE ST SEATTLE, WA 98199 | % Ownership: | % |
| | | Exemptions: | |
Pay Tax Due
There is currently No Amount Due on this property.
Taxes and Assessment Details
Values
| (+) Improvement Homesite Value: | + | $0 | |
| (+) Improvement Non-Homesite Value: | + | $21,267 | |
| (+) Land Homesite Value: | + | $0 | |
| (+) Land Non-Homesite Value: | + | $57,378 | |
| (+) Curr Use (HS): | + | $0 | $0 |
| (+) Curr Use (NHS): | + | $0 | $0 |
| | | -------------------------- | |
| (=) Market Value: | = | $78,645 | |
| (–) Productivity Loss: | – | $0 | |
| | | -------------------------- | |
| (=) Subtotal: | = | $78,645 | |
| (+) Senior Appraised Value: | + | $0 | |
| (+) Non-Senior Appraised Value: | + | $78,645 | |
| | | -------------------------- | |
| (=) Total Appraised Value: | = | $78,645 | |
| (–) Senior Exemption Loss: | – | $0 | |
| (–) Exemption Loss: | – | $0 | |
| | | -------------------------- | |
| (=) Taxable Value: | = | $78,645 | |
Taxing Jurisdiction
| Owner: | MARKOW TADEUSZ & JOY | | |
| % Ownership: | 100.0000000000% | | |
| Total Value: | N/A | | |
| Tax Area: | 34 - 129 F7 CD4 H2 |
| 110001 | County Road General | N/A | N/A | N/A | N/A | | |
| 010170 | Chelan County | N/A | N/A | N/A | N/A | | |
| 155001 | Veteran's Relief | N/A | N/A | N/A | N/A | | |
| 160001 | Mental Health | N/A | N/A | N/A | N/A | | |
| 657401 | Cemetery No 4 | N/A | N/A | N/A | N/A | | |
| 656701 | Fire No 7 General | N/A | N/A | N/A | N/A | | |
| 654115 | Lake Chelan SD 129 Capital Projects | N/A | N/A | N/A | N/A | | |
| 652001 | State School Refund | N/A | N/A | N/A | N/A | | |
| 652003 | State School 2 | N/A | N/A | N/A | N/A | | |
| 652005 | State School | N/A | N/A | N/A | N/A | | |
| 652025 | State School 2 Refund | N/A | N/A | N/A | N/A | | |
| 107001 | Flood Control Zone | N/A | N/A | N/A | N/A | | |
| 692201 | Hospital No 2 General | N/A | N/A | N/A | N/A | | |
| 692210 | Hospital No 2 Bond | N/A | N/A | N/A | N/A | | |
| 692260 | Hospital No 2 EMS | N/A | N/A | N/A | N/A | | |
| 644001 | Regional Library | N/A | N/A | N/A | N/A | | |
| 671101 | Port General | N/A | N/A | N/A | N/A | | |
| 654100 | Lake Chelan SD 129 General | N/A | N/A | N/A | N/A | | |
| | Total Tax Rate: | N/A | | | | | |
| | | | | Taxes w/Current Exemptions: | N/A | | |
| | | | | Taxes w/o Exemptions: | N/A | | |
Improvement / Building
| Improvement #1: | RESIDENTIAL | State Code: | 11 | 0.0 sqft | Value: | $16,000 |
| Improvement #2: | RESIDENTIAL | State Code: | 11 | 0.0 sqft | Value: | $5,267 |
Sketch
| No sketches available for this property. |
Property Image
Land
| 1 | WFF 1000 | WATERFRONT $1000/FF | 0.1900 | 8276.40 | 115.00 | 70.00 | 1.00 | $57,378 | $0 |
Roll Value History
| 2026 | N/A | N/A | N/A | N/A | N/A |
| 2025 | $21,267 | $57,378 | $0 | $78,645 | $78,645 |
| 2024 | $11,695 | $49,993 | $0 | $61,688 | $61,688 |
| 2023 | $11,695 | $49,993 | $0 | $61,688 | $61,688 |
| 2022 | $25,590 | $54,538 | $0 | $80,128 | $80,128 |
| 2021 | $8,263 | $52,833 | $0 | $61,096 | $61,096 |
| 2020 | $0 | $52,833 | $0 | $52,833 | $52,833 |
| 2019 | $0 | $28,578 | $0 | $28,578 | $28,578 |
| 2018 | $0 | $28,578 | $0 | $28,578 | $28,578 |
| 2017 | $0 | $24,083 | $0 | $24,083 | $24,083 |
| 2016 | $0 | $4,774 | $0 | $4,774 | $4,774 |
| 2015 | $0 | $4,774 | $0 | $4,774 | $4,774 |
| 2014 | $0 | $4,988 | $0 | $4,988 | $4,988 |
| 2013 | $0 | $4,275 | $0 | $4,275 | $4,275 |
| 2012 | $0 | $4,275 | $0 | $4,275 | $4,275 |
| 2011 | $0 | $4,275 | $0 | $4,275 | $4,275 |
| 2010 | $0 | $4,988 | $0 | $4,988 | $4,988 |
| 2009 | $0 | $7,125 | $0 | $7,125 | $7,125 |
| 2008 | $0 | $7,125 | $0 | $7,125 | $7,125 |
| 2007 | $0 | $7,125 | $0 | $7,125 | $7,125 |
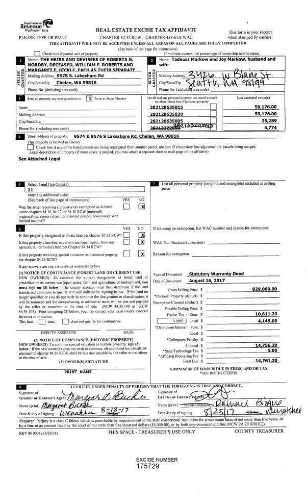
Deed and Sales History
| 1 | 08/25/2017 | SWD | Statutory Warranty Deed | NORDBY ROBERTA G ETAL | MARKOW TADEUSZ & JOY | | | $829,000.00 | 175729 | 2463762 |
|   | |
| 2 | 08/25/2017 | AFF | Affidavit | MARKOW TADEUSZ & JOY | | | | | 0 | 2463761 |
| 3 | 09/03/1998 | REF | Conversion Code Only | ROBERTS WANDA | NORDBY ROBERTA | | | | 0 | 2035942 |
| 4 | 09/03/1998 | REF | Conversion Code Only | ROBERTS WANDA | ROBERTS WILLIAM | | | | 0 | 2035941 |
| 5 | 09/03/1998 | REF | Conversion Code Only | ROBERTS RT/WAND | BICKLE MARG | | | | 0 | 2035940 |
| 6 | | OT | Conversion Code Only | | ROBERT ROBERTS | 834 | 1599 | | 0 | |
| 7 | 09/01/1998 | Q | Quit Claim Deed | | | | | | 9913601 | 2035942 |
| 8 | 09/01/1998 | Q | Quit Claim Deed | | | | | | 9913701 | 2035941 |
| 9 | 09/01/1998 | Q | Quit Claim Deed | | | | | | 9913501 | 2035940 |
| 10 | 10/25/1994 | Q | Quit Claim Deed | | | 1032 | 7 | | 8349800 | |
| 11 | 10/25/1994 | Q | Quit Claim Deed | | | 1032 | 5 | | 8349900 | |
| 12 | 10/25/1994 | Q | Quit Claim Deed | | | 1032 | 3 | | 8350000 | |
Payout Agreement
| No payout information available.. |