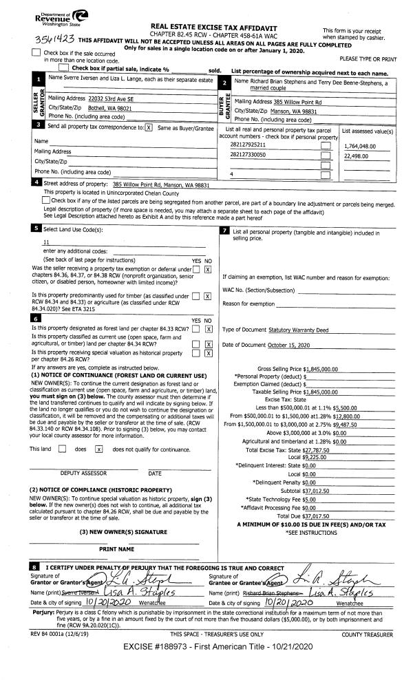
Property
Account |
| Property ID: | 48856 | Abbreviated Legal Description: | WILLOW POINT BEACH BLOCK 1 LOT 37 W 250' CE#2004-022 LOT 1 0.7000 ACRES |
| Geographic ID: | 282127925211 | Agent Code: | |
| Type: | Real | | |
| Tax Area: | 4 - 19 F5 CD4 H2 PK1 | Land Use Code | 18 |
| Open Space: | N | DFL | N |
| Historic Property: | N | Remodel Property: | N |
| Multi-Family Redevelopment: | N | | |
| Township: | 28N | Section: | 27 |
| Range: | 21EWM | Legal Acres: | 0.7000 |
Location |
| Address: | 385 WILLOW POINT RD MANSON, WA 98831 | Mapsco: | |
| Neighborhood: | Cycle 4 Chelan water north div 4 RES | Map ID: | 4CWNO04R01 |
| Neighborhood CD: | 4CWNO04R01 |
Owner |
| Name: | STEPHENS RICHARD B & TERRY D BEENE STEPHENS | Owner ID: | 115409 |
| Mailing Address: | 30334 SE 26TH ST FALL CITY, WA 98024 | % Ownership: | % |
| | | Exemptions: | |
Pay Tax Due
Select the appropriate checkbox next to the year to be paid. Multiple years may be selected.
*Convenience Fee not included
Taxes and Assessment Details
Values
| (+) Improvement Homesite Value: | + | N/A | |
| (+) Improvement Non-Homesite Value: | + | N/A | |
| (+) Land Homesite Value: | + | N/A | |
| (+) Land Non-Homesite Value: | + | N/A | Ag / Timber Use Value |
| (+) Curr Use (HS): | + | N/A | N/A |
| (+) Curr Use (NHS): | + | N/A | N/A |
| | | -------------------------- | |
| (=) Market Value: | = | N/A | |
| (–) Productivity Loss: | – | N/A | |
| | | -------------------------- | |
| (=) Subtotal: | = | N/A | |
| (+) Senior Appraised Value: | + | N/A | |
| (+) Non-Senior Appraised Value: | + | N/A | |
| | | -------------------------- | |
| (=) Total Appraised Value: | = | N/A | |
| (–) Senior Exemption Loss: | – | N/A | |
| (–) Exemption Loss: | – | N/A | |
| | | -------------------------- | |
| (=) Taxable Value: | = | N/A | |
Taxing Jurisdiction
| Owner: | STEPHENS RICHARD B & TERRY D BEENE STEPHENS | | |
| % Ownership: | 100.0000000000% | | |
| Total Value: | N/A | | |
| Tax Area: | 4 - 19 F5 CD4 H2 PK1 |
| 110001 | County Road General | N/A | N/A | N/A | N/A | | |
| 010170 | Chelan County | N/A | N/A | N/A | N/A | | |
| 155001 | Veteran's Relief | N/A | N/A | N/A | N/A | | |
| 160001 | Mental Health | N/A | N/A | N/A | N/A | | |
| 657401 | Cemetery No 4 | N/A | N/A | N/A | N/A | | |
| 656501 | Fire No 5 General | N/A | N/A | N/A | N/A | | |
| 107001 | Flood Control Zone | N/A | N/A | N/A | N/A | | |
| 654021 | Manson SD 19 General | N/A | N/A | N/A | N/A | | |
| 654035 | Manson SD 19 Capital Projects | N/A | N/A | N/A | N/A | | |
| 652001 | State School Refund | N/A | N/A | N/A | N/A | | |
| 652003 | State School 2 | N/A | N/A | N/A | N/A | | |
| 652005 | State School | N/A | N/A | N/A | N/A | | |
| 652025 | State School 2 Refund | N/A | N/A | N/A | N/A | | |
| 692201 | Hospital No 2 General | N/A | N/A | N/A | N/A | | |
| 692210 | Hospital No 2 Bond | N/A | N/A | N/A | N/A | | |
| 692260 | Hospital No 2 EMS | N/A | N/A | N/A | N/A | | |
| 644001 | Regional Library | N/A | N/A | N/A | N/A | | |
| 675101 | Manson Park & Rec | N/A | N/A | N/A | N/A | | |
| 671101 | Port General | N/A | N/A | N/A | N/A | | |
| | Total Tax Rate: | N/A | | | | | |
| | | | | Taxes w/Current Exemptions: | N/A | | |
| | | | | Taxes w/o Exemptions: | N/A | | |
Improvement / Building
| Improvement #1: | RESIDENTIAL | State Code: | 18 | 2576.0 sqft | Value: | N/A |
| Exterior Wall: | Stucco on Frame | Fireplace: | Double 2 Story | | Heating/Cooling: | Heat Pump | Number of Bathrooms: | 3 | | Number of Bedrooms: | 4 |   |   |
|
| | Type | Description | Class CD | Sub Class CD | Year Built | Area |
| | MA | Main | VERY GOOD | 2 STY | 1991 | 2576.0 |
| | BSMT-PF | BSMT FINISH - PARTITIONED | VERY GOOD | 1 STY | 1991 | 1337.0 |
| | BS-UFC8 | BSMT AREA 8” CONC | VERY GOOD | 1 STY | 1991 | 2437.0 |
| | DECK | Open Wood Deck | VERY GOOD | * | 1991 | 336.0 |
| | PP-OPEN | Open Concrete Porch | GOOD | * | 1991 | 812.0 |
| | PP-OPEN | Open Concrete Porch | GOOD | * | 1991 | 302.0 |
| | PP-ST | Open Concrete Slab W/Steps | AVERAGE | * | 1991 | 514.0 |
| | PP-OPEN | Open Concrete Porch | GOOD | * | 1991 | 512.0 |
| | PP-OPEN | Open Concrete Porch | GOOD | * | 1991 | 104.0 |
| Improvement #2: | RESIDENTIAL | State Code: | 11 | 0.0 sqft | Value: | N/A |
Sketch
| No sketches available for this property. |
Property Image
Land
| 1 | WFF 3000 | WATERFRONT $3000/FF | 0.7000 | 30492.00 | 120.00 | 120.00 | 1.00 | N/A | N/A |
Roll Value History
| 2026 | N/A | N/A | N/A | N/A | N/A |
| 2025 | $2,424,044 | $540,000 | $0 | $2,964,044 | $2,964,044 |
| 2024 | $2,425,774 | $417,600 | $0 | $2,843,374 | $2,843,374 |
| 2023 | $2,420,394 | $417,600 | $0 | $2,837,994 | $2,837,994 |
| 2022 | $2,489,083 | $417,600 | $0 | $2,906,683 | $2,906,683 |
| 2021 | $1,618,280 | $309,600 | $0 | $1,927,880 | $1,927,880 |
| 2020 | $1,840,197 | $259,200 | $0 | $2,099,397 | $2,099,397 |
| 2019 | $1,530,048 | $234,000 | $0 | $1,764,048 | $1,764,048 |
| 2018 | $1,316,485 | $208,800 | $0 | $1,525,285 | $1,525,285 |
| 2017 | $1,330,892 | $208,800 | $0 | $1,539,692 | $1,539,692 |
| 2016 | $1,235,020 | $248,400 | $0 | $1,483,420 | $1,483,420 |
| 2015 | $1,208,856 | $248,400 | $0 | $1,457,256 | $1,457,256 |
| 2014 | $564,758 | $248,400 | $0 | $813,158 | $813,158 |
| 2013 | $814,562 | $198,000 | $0 | $1,012,562 | $1,012,562 |
| 2012 | $669,463 | $180,000 | $0 | $849,463 | $849,463 |
| 2011 | $682,636 | $216,000 | $0 | $898,636 | $898,636 |
| 2010 | $574,851 | $288,000 | $0 | $862,851 | $862,851 |
| 2009 | $604,556 | $720,000 | $0 | $1,324,556 | $1,324,556 |
| 2008 | $604,556 | $720,000 | $0 | $1,324,556 | $1,324,556 |
| 2007 | $353,495 | $146,250 | $0 | $499,745 | $499,745 |
Deed and Sales History
| 1 | 10/21/2020 | SWD | Statutory Warranty Deed | IVERSEN SVERRE ETAL | STEPHENS RICHARD B & TERRY D BEENE STEPHENS | | | $1,845,000.00 | 188973 | 2527697 |
|   | |
| 2 | 11/21/2005 | W | Warranty Deed | | IVERSEN SVERRE ETAL | | | | 0 | 2214882 |
| 3 | 07/29/2004 | Q | Quit Claim Deed | LK CHELAN REC | SWINDELL CAL | | | | 0 | 2179663 |
| 4 | 07/15/2004 | REF | Conversion Code Only | CE 2004-022 | | | | | 0 | 2178440 |
| 5 | 04/13/1987 | SWD | Statutory Warranty Deed | PICKEN JOHN W | WEAGANT GEORGE | 874 | 1139 | | 0 | |
| 6 | 04/13/1987 | W | Warranty Deed | | CALVIN L SWINDELL | 735 | 258 | | 0 | |
| 7 | 11/21/2005 | W | Warranty Deed | | | | | $1,243,800.00 | 13111600 | 2214882 |
Payout Agreement
| No payout information available.. |