Property
Account |
| Property ID: | 48667 | Abbreviated Legal Description: | T 28N R 21EWM S 27 LAND BETWEEN LOT 37(WILLOW PT BCH) & HIGH WATER MARK (1100') 0.0500 ACRES |
| Geographic ID: | 282127330050 | Agent Code: | |
| Type: | Real | | |
| Tax Area: | 4 - 19 F5 CD4 H2 PK1 | Land Use Code | 18 |
| Open Space: | N | DFL | N |
| Historic Property: | N | Remodel Property: | N |
| Multi-Family Redevelopment: | N | | |
| Township: | 28N | Section: | 27 |
| Range: | 21EWM | Legal Acres: | 0.0500 |
Location |
| Address: | UNASSIGNED MANSON, WA 98831 | Mapsco: | |
| Neighborhood: | Cycle 4 Chelan water north div 4 RES | Map ID: | 4CWNO04R01 |
| Neighborhood CD: | 4CWNO04R01 |
Owner |
| Name: | STEPHENS RICHARD B & TERRY D BEENE STEPHENS | Owner ID: | 115409 |
| Mailing Address: | 30334 SE 26TH ST FALL CITY, WA 98024 | % Ownership: | % |
| | | Exemptions: | |
Pay Tax Due
Select the appropriate checkbox next to the year to be paid. Multiple years may be selected.
*Convenience Fee not included
Taxes and Assessment Details
Values
| (+) Improvement Homesite Value: | + | $0 | |
| (+) Improvement Non-Homesite Value: | + | $28,164 | |
| (+) Land Homesite Value: | + | $0 | |
| (+) Land Non-Homesite Value: | + | $6,900 | |
| (+) Curr Use (HS): | + | $0 | $0 |
| (+) Curr Use (NHS): | + | $0 | $0 |
| | | -------------------------- | |
| (=) Market Value: | = | $35,064 | |
| (–) Productivity Loss: | – | $0 | |
| | | -------------------------- | |
| (=) Subtotal: | = | $35,064 | |
| (+) Senior Appraised Value: | + | $0 | |
| (+) Non-Senior Appraised Value: | + | $35,064 | |
| | | -------------------------- | |
| (=) Total Appraised Value: | = | $35,064 | |
| (–) Senior Exemption Loss: | – | $0 | |
| (–) Exemption Loss: | – | $0 | |
| | | -------------------------- | |
| (=) Taxable Value: | = | $35,064 | |
Taxing Jurisdiction
| Owner: | STEPHENS RICHARD B & TERRY D BEENE STEPHENS | | |
| % Ownership: | 100.0000000000% | | |
| Total Value: | $35,064 | | |
| Tax Area: | 4 - 19 F5 CD4 H2 PK1 |
| 110001 | County Road General | 0.6852691520 | $35,064 | $35,064 | $24.03 | | |
| 010170 | Chelan County | 0.7134072525 | $35,064 | $35,064 | $25.01 | | |
| 155001 | Veteran's Relief | 0.0121106596 | $35,064 | $35,064 | $0.42 | | |
| 160001 | Mental Health | 0.0164394042 | $35,064 | $35,064 | $0.58 | | |
| 657401 | Cemetery No 4 | 0.0345570597 | $35,064 | $35,064 | $1.21 | | |
| 656501 | Fire No 5 General | 0.7698006368 | $35,064 | $35,064 | $26.99 | | |
| 107001 | Flood Control Zone | 0.0377753564 | $35,064 | $35,064 | $1.32 | | |
| 654021 | Manson SD 19 General | 1.1667675936 | $35,064 | $35,064 | $40.91 | | |
| 654035 | Manson SD 19 Capital Projects | 0.5483571724 | $35,064 | $35,064 | $19.23 | | |
| 652001 | State School Refund | 0.0001749421 | $35,064 | $35,064 | $0.01 | | |
| 652003 | State School 2 | 0.8391137811 | $35,064 | $35,064 | $29.42 | | |
| 652005 | State School | 1.5571220161 | $35,064 | $35,064 | $54.60 | | |
| 652025 | State School 2 Refund | 0.0000949154 | $35,064 | $35,064 | $0.00 | | |
| 692201 | Hospital No 2 General | 0.1443640412 | $35,064 | $35,064 | $5.06 | | |
| 692210 | Hospital No 2 Bond | 0.1922466649 | $35,064 | $35,064 | $6.74 | | |
| 692260 | Hospital No 2 EMS | 0.2650461801 | $35,064 | $35,064 | $9.29 | | |
| 644001 | Regional Library | 0.2479020006 | $35,064 | $35,064 | $8.69 | | |
| 675101 | Manson Park & Rec | 0.2056279298 | $35,064 | $35,064 | $7.21 | | |
| 671101 | Port General | 0.1521822063 | $35,064 | $35,064 | $5.34 | | |
| | Total Tax Rate: | 7.5883589648 | | | | | |
| | | | | Taxes w/Current Exemptions: | $266.06 | | |
| | | | | Taxes w/o Exemptions: | $266.06 | | |
Improvement / Building
| Improvement #1: | RESIDENTIAL | State Code: | 18 | 0.0 sqft | Value: | $28,164 |
| | Type | Description | Class CD | Sub Class CD | Year Built | Area |
| | DOCK | Dock | AVERAGE | * | 1991 | 440.0 |
| | LS | LUMP SUM | AVERAGE | * | 1991 | 0.0 |
Sketch
| No sketches available for this property. |
Property Image
Land
| 1 | WFF 100 | WATERFRONT $100/FF | 0.0500 | 2178.00 | 115.00 | 19.00 | 1.00 | $6,900 | $0 |
Roll Value History
| 2026 | N/A | N/A | N/A | N/A | N/A |
| 2025 | $28,164 | $6,900 | $0 | $35,064 | $35,064 |
| 2024 | $28,426 | $5,336 | $0 | $33,762 | $33,762 |
| 2023 | $28,164 | $5,336 | $0 | $33,500 | $33,500 |
| 2022 | $34,219 | $5,336 | $0 | $39,555 | $39,555 |
| 2021 | $22,635 | $3,956 | $0 | $26,591 | $26,591 |
| 2020 | $25,400 | $3,312 | $0 | $28,712 | $28,712 |
| 2019 | $22,498 | $2,990 | $0 | $25,488 | $25,488 |
| 2018 | $19,448 | $2,668 | $0 | $22,116 | $22,116 |
| 2017 | $19,619 | $2,668 | $0 | $22,287 | $22,287 |
| 2016 | $18,174 | $3,174 | $0 | $21,348 | $21,348 |
| 2015 | $20,376 | $3,174 | $0 | $23,550 | $23,550 |
| 2014 | $11,643 | $3,174 | $0 | $14,817 | $14,817 |
| 2013 | $16,469 | $2,530 | $0 | $18,999 | $18,999 |
| 2012 | $14,171 | $2,300 | $0 | $16,471 | $16,471 |
| 2011 | $0 | $499 | $0 | $499 | $0 |
| 2010 | $0 | $499 | $0 | $499 | $0 |
| 2009 | $0 | $50 | $0 | $50 | $0 |
| 2008 | $0 | $50 | $0 | $50 | $0 |
| 2007 | $0 | $50 | $0 | $50 | $50 |
Deed and Sales History
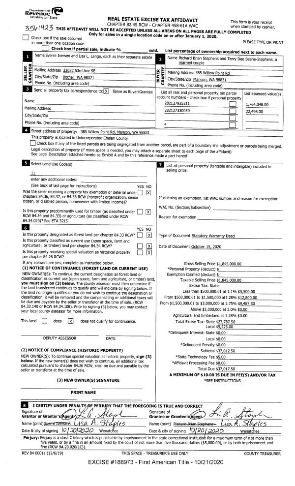
| 1 | 10/21/2020 | SWD | Statutory Warranty Deed | IVERSEN SVERRE ETAL | STEPHENS RICHARD B & TERRY D BEENE STEPHENS | | | $1,845,000.00 | 188973 | 2527697 |
|   | |
| 2 | 11/21/2005 | W | Warranty Deed | | IVERSEN SVERRE ETAL | | | | 0 | 2214882 |
| 3 | 07/29/2004 | Q | Quit Claim Deed | | CALVIN L SWINDELL | | | | 0 | 2179663 |
Payout Agreement
| No payout information available.. |