Property
Account |
| Property ID: | 46618 | Abbreviated Legal Description: | LAKEVIEW TO CHELAN BLOCK 5 LOT 2, VAC ST BK 6 LOT 15 W1/2 L 16 0.5100 ACRES |
| Geographic ID: | 272318665185 | Agent Code: | |
| Type: | Real | | |
| Tax Area: | 201 - CH 129 CD4 H2 F7 | Land Use Code | 15 |
| Open Space: | N | DFL | N |
| Historic Property: | N | Remodel Property: | N |
| Multi-Family Redevelopment: | N | | |
| Township: | 27N | Section: | 18 |
| Range: | 23EWM | Legal Acres: | 0.5100 |
Location |
| Address: | 703 E WAPATO AVE CHELAN, WA 98816 | Mapsco: | |
| Neighborhood: | Cycle 4 Chelan city Div 4 COM | Map ID: | 4CHEC04C01 |
| Neighborhood CD: | 4CHEC04C01 |
Owner |
| Name: | INVEST CHELAN LLC | Owner ID: | 115730 |
| Mailing Address: | PO BOX 970 CHELAN, WA 98816 | % Ownership: | % |
| | | Exemptions: | |
Pay Tax Due
Select the appropriate checkbox next to the year to be paid. Multiple years may be selected.
*Convenience Fee not included
Taxes and Assessment Details
Values
| (+) Improvement Homesite Value: | + | N/A | |
| (+) Improvement Non-Homesite Value: | + | N/A | |
| (+) Land Homesite Value: | + | N/A | |
| (+) Land Non-Homesite Value: | + | N/A | Ag / Timber Use Value |
| (+) Curr Use (HS): | + | N/A | N/A |
| (+) Curr Use (NHS): | + | N/A | N/A |
| | | -------------------------- | |
| (=) Market Value: | = | N/A | |
| (–) Productivity Loss: | – | N/A | |
| | | -------------------------- | |
| (=) Subtotal: | = | N/A | |
| (+) Senior Appraised Value: | + | N/A | |
| (+) Non-Senior Appraised Value: | + | N/A | |
| | | -------------------------- | |
| (=) Total Appraised Value: | = | N/A | |
| (–) Senior Exemption Loss: | – | N/A | |
| (–) Exemption Loss: | – | N/A | |
| | | -------------------------- | |
| (=) Taxable Value: | = | N/A | |
Taxing Jurisdiction
| Owner: | INVEST CHELAN LLC | | |
| % Ownership: | 100.0000000000% | | |
| Total Value: | N/A | | |
| Tax Area: | 201 - CH 129 CD4 H2 F7 |
| 010170 | Chelan County | N/A | N/A | N/A | N/A | | |
| 155001 | Veteran's Relief | N/A | N/A | N/A | N/A | | |
| 160001 | Mental Health | N/A | N/A | N/A | N/A | | |
| 657401 | Cemetery No 4 | N/A | N/A | N/A | N/A | | |
| 693011 | Chelan General | N/A | N/A | N/A | N/A | | |
| 656701 | Fire No 7 General | N/A | N/A | N/A | N/A | | |
| 654115 | Lake Chelan SD 129 Capital Projects | N/A | N/A | N/A | N/A | | |
| 652001 | State School Refund | N/A | N/A | N/A | N/A | | |
| 652003 | State School 2 | N/A | N/A | N/A | N/A | | |
| 652005 | State School | N/A | N/A | N/A | N/A | | |
| 652025 | State School 2 Refund | N/A | N/A | N/A | N/A | | |
| 107001 | Flood Control Zone | N/A | N/A | N/A | N/A | | |
| 692201 | Hospital No 2 General | N/A | N/A | N/A | N/A | | |
| 692210 | Hospital No 2 Bond | N/A | N/A | N/A | N/A | | |
| 692260 | Hospital No 2 EMS | N/A | N/A | N/A | N/A | | |
| 644001 | Regional Library | N/A | N/A | N/A | N/A | | |
| 671101 | Port General | N/A | N/A | N/A | N/A | | |
| 654100 | Lake Chelan SD 129 General | N/A | N/A | N/A | N/A | | |
| | Total Tax Rate: | N/A | | | | | |
| | | | | Taxes w/Current Exemptions: | N/A | | |
| | | | | Taxes w/o Exemptions: | N/A | | |
Improvement / Building
| Improvement #1: | COMMERCIAL | State Code: | 15 | 1075.0 sqft | Value: | N/A |
| Improvement #2: | RESIDENTIAL | State Code: | 15 | 640.0 sqft | Value: | N/A |
| Exterior Wall: | Concrete Block | Heating/Cooling: | Baseboard Panel |
|
Sketch
| No sketches available for this property. |
Property Image
Land
| 1 | COM LAND | COMMERCIAL LAND | 0.5100 | 22430.00 | 0.00 | 0.00 | 0.00 | N/A | N/A |
Roll Value History
| 2026 | N/A | N/A | N/A | N/A | N/A |
| 2025 | $90,672 | $112,150 | $0 | $202,822 | $202,822 |
| 2024 | $85,657 | $112,150 | $0 | $197,807 | $197,807 |
| 2023 | $60,178 | $112,150 | $0 | $172,328 | $172,328 |
| 2022 | $54,402 | $112,150 | $0 | $166,552 | $166,552 |
| 2021 | $53,736 | $112,150 | $0 | $165,886 | $165,886 |
| 2020 | $55,424 | $112,150 | $0 | $167,574 | $167,574 |
| 2019 | $47,989 | $112,150 | $0 | $160,139 | $160,139 |
| 2018 | $43,868 | $112,150 | $0 | $156,018 | $156,018 |
| 2017 | $60,302 | $112,150 | $0 | $172,452 | $172,452 |
| 2016 | $62,960 | $112,150 | $0 | $175,110 | $175,110 |
| 2015 | $60,652 | $112,150 | $0 | $172,802 | $172,802 |
| 2014 | $64,240 | $112,150 | $0 | $176,390 | $176,390 |
| 2013 | $72,057 | $112,150 | $0 | $184,207 | $184,207 |
| 2012 | $98,134 | $112,150 | $0 | $210,284 | $210,284 |
| 2011 | $68,000 | $125,608 | $0 | $193,608 | $193,608 |
| 2010 | $77,790 | $125,608 | $0 | $203,398 | $203,398 |
| 2009 | $77,790 | $125,608 | $0 | $203,398 | $171,287 |
| 2008 | $77,790 | $125,608 | $0 | $203,398 | $171,287 |
| 2007 | $71,213 | $67,290 | $0 | $138,503 | $0 |
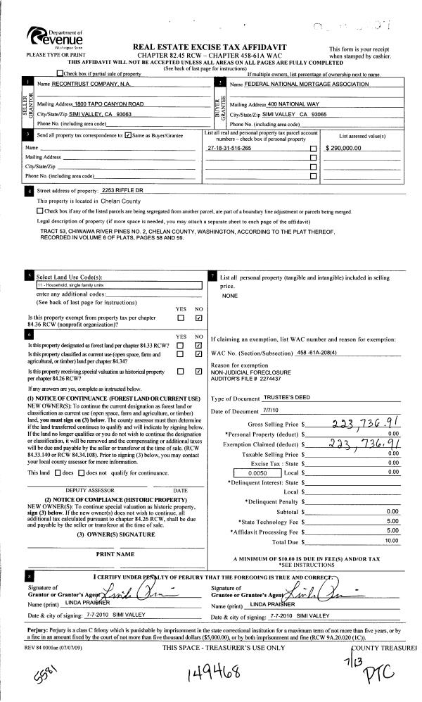
Deed and Sales History
| 1 | 11/13/2020 | SWD | Statutory Warranty Deed | QUAIL RUN ADULT MOBILE COMMUNITY LLC | INVEST CHELAN LLC | | | $185,000.00 | 189343 | 2529665 |
| 2 | 03/14/2018 | MH TITLE | Mobile Home Title | QUAIL RUN ADULT MOBILE COMMUNITY LLC | BELMONTEZ JOSE M | | | $20,000.00 | 177987 | |
| 3 | 09/24/2013 | SP WD | Special Warranty Deed | STUTZ ALYS | QUAIL RUN ADULT MOBILE COMMUNITY LLC | | | $0.00 | 160195 | 2390436 |
| 4 | 11/14/2013 | MH TITLE | Mobile Home Title | STUTZ ALYS | QUAIL RUN ADULT MOBILE COMMUNITY LLC | | | | 160650 | |
| 5 | 07/09/2013 | AFF | Affidavit | STUTZ ALYS | STUTZ ALYS | | | | 0 | SNOHOMISH CO |
| 6 | 07/09/2013 | DC | Death Certificate | STUTZ ALYS | PUBLIC DEATH_CERT | | | | 0 | UNRECORDED |
| 7 | 11/01/1993 | Q | Quit Claim Deed | | STUTZ ALYS | 1006 | 1482 | | 0 | |
| 8 | 02/04/1991 | O | Other | | PETER STUTZ | 943 | 1834 | | 0 | |
| 9 | 07/03/1990 | WD | Warranty Deed | | GARY BENNER | 932 | 312 | | 0 | |
| 10 | 12/19/1989 | O | Other | CITY OF CHELAN | PUBLIC | 921 | 721 | | 0 | |
| 11 | 11/01/1993 | Q | Quit Claim Deed | STUTZ, ALYS | | 1006 | 1482 | | 0 | |
| 12 | 02/04/1991 | O | Other | PETER STUTZ | | 943 | 1834 | | 0 | |
| 13 | 07/03/1990 | WD | Warranty Deed | GARY BENNER | | 932 | 312 | | 0 | |
| 14 | 10/20/1993 | Q | Quit Claim Deed | | | 1006 | 1482 | | 7874400 | |
| 15 | 09/15/2006 | O | Other | | | 0 | 0 | $3,400.00 | 13542100 | |
|   | |
| 16 | 03/07/2006 | O | Other | | | 0 | 0 | | 13257200 | |
| 17 | 11/22/2004 | O | Other | | | 0 | 0 | | 12564400 | |
| 18 | 09/10/2002 | O | Other | | | 0 | 0 | | 11525400 | |
| 19 | 08/08/2002 | O | Other | | | 0 | 0 | $4,500.00 | 11484400 | |
|   | |
| 20 | 08/08/2002 | O | Other | | | 0 | 0 | $1,000.00 | 11484500 | |
|   | |
| 21 | 02/20/2002 | O | Other | | | 0 | 0 | $4,000.00 | 11289000 | |
|   | |
| 22 | 04/12/2001 | O | Other | | | 0 | 0 | $2,000.00 | 10942400 | |
|   | |
| 23 | 03/07/1995 | O | Other | | | 0 | 0 | $7,500.00 | 8485800 | |
| 24 | 12/20/1993 | REF | Conversion Code Only | E A M VANNEBO | | 0 | 0 | | 0 | |
| 25 | | OT | Conversion Code Only | | E A M VANNEBO | 0 | 0 | | 0 | |
Payout Agreement
| No payout information available.. |