Property
Account |
Property ID: | 46203 | Abbreviated Legal Description: | T 27N R 22EWM S 22 SESE 40.0000 ACRES |
Geographic ID: | 272222440000 | Agent Code: | |
Type: | Real | | |
Tax Area: | 34 - 129 F7 CD4 H2 | Land Use Code | 91 |
Open Space: | N | DFL | N |
Historic Property: | N | Remodel Property: | N |
Multi-Family Redevelopment: | N | | |
Township: | 27N | Section: | 22 |
Range: | 22EWM | Legal Acres: | 40.0000 |
Location |
Address: | UNASSIGNED CHELAN, WA 98816 | Mapsco: | |
Neighborhood: | Cycle 4 Chelan valley south div 1 RES | Map ID: | 4CVSO01R01 |
Neighborhood CD: | 4CVSO01R01 |
Owner |
Name: | DV INVESTMENTS LLC | Owner ID: | 130566 |
Mailing Address: | 3515 173RD CT NE REDMOND, WA 98052 | % Ownership: | % |
| | Exemptions: | |
Pay Tax Due
Select the appropriate checkbox next to the year to be paid. Multiple years may be selected.
*Convenience Fee not included
Taxes and Assessment Details
Values
(+) Improvement Homesite Value: | + | $0 | |
(+) Improvement Non-Homesite Value: | + | $0 | |
(+) Land Homesite Value: | + | $0 | |
(+) Land Non-Homesite Value: | + | $156,940 | |
(+) Curr Use (HS): | + | $0 | $0 |
(+) Curr Use (NHS): | + | $0 | $0 |
| | -------------------------- | |
(=) Market Value: | = | $156,940 | |
(–) Productivity Loss: | – | $0 | |
| | -------------------------- | |
(=) Subtotal: | = | $156,940 | |
(+) Senior Appraised Value: | + | $0 | |
(+) Non-Senior Appraised Value: | + | $156,940 | |
| | -------------------------- | |
(=) Total Appraised Value: | = | $156,940 | |
(–) Senior Exemption Loss: | – | $0 | |
(–) Exemption Loss: | – | $0 | |
| | -------------------------- | |
(=) Taxable Value: | = | $156,940 | |
Taxing Jurisdiction
Owner: | DV INVESTMENTS LLC | | |
% Ownership: | 100.0000000000% | | |
Total Value: | N/A | | |
Tax Area: | 34 - 129 F7 CD4 H2 |
110001 | County Road General | N/A | N/A | N/A | N/A | | |
010170 | Chelan County | N/A | N/A | N/A | N/A | | |
155001 | Veteran's Relief | N/A | N/A | N/A | N/A | | |
160001 | Mental Health | N/A | N/A | N/A | N/A | | |
657401 | Cemetery No 4 | N/A | N/A | N/A | N/A | | |
656701 | Fire No 7 General | N/A | N/A | N/A | N/A | | |
654115 | Lake Chelan SD 129 Capital Projects | N/A | N/A | N/A | N/A | | |
652001 | State School Refund | N/A | N/A | N/A | N/A | | |
652003 | State School 2 | N/A | N/A | N/A | N/A | | |
652005 | State School | N/A | N/A | N/A | N/A | | |
652025 | State School 2 Refund | N/A | N/A | N/A | N/A | | |
107001 | Flood Control Zone | N/A | N/A | N/A | N/A | | |
692201 | Hospital No 2 General | N/A | N/A | N/A | N/A | | |
692210 | Hospital No 2 Bond | N/A | N/A | N/A | N/A | | |
692260 | Hospital No 2 EMS | N/A | N/A | N/A | N/A | | |
644001 | Regional Library | N/A | N/A | N/A | N/A | | |
671101 | Port General | N/A | N/A | N/A | N/A | | |
654100 | Lake Chelan SD 129 General | N/A | N/A | N/A | N/A | | |
| Total Tax Rate: | N/A | | | | | |
| | | | Taxes w/Current Exemptions: | N/A | | |
| | | | Taxes w/o Exemptions: | N/A | | |
Improvement / Building
Sketch
No sketches available for this property. |
Property Image
Land
1 | SV 40K | SITE VALUE $40,000 | 1.0000 | 43560.00 | 0.00 | 0.00 | 1.00 | $53,200 | $0 |
2 | RES 2K | RESIDUAL $2000/A | 39.0000 | 1698840.00 | 0.00 | 0.00 | 1.00 | $103,740 | $0 |
Roll Value History
2025 | N/A | N/A | N/A | N/A | N/A |
2024 | $0 | $99,120 | $0 | $99,120 | $99,120 |
2023 | $0 | $123,900 | $0 | $123,900 | $123,900 |
2022 | $0 | $101,480 | $0 | $101,480 | $101,480 |
2021 | $0 | $101,480 | $0 | $101,480 | $101,480 |
2020 | $0 | $114,460 | $0 | $114,460 | $114,460 |
2019 | $0 | $93,220 | $0 | $93,220 | $93,220 |
2018 | $0 | $93,220 | $0 | $93,220 | $93,220 |
2017 | $0 | $74,340 | $0 | $74,340 | $74,340 |
2016 | $0 | $82,600 | $0 | $82,600 | $82,600 |
2015 | $0 | $82,600 | $0 | $82,600 | $82,600 |
2014 | $0 | $82,600 | $0 | $82,600 | $82,600 |
2013 | $0 | $76,700 | $0 | $76,700 | $76,700 |
2012 | $0 | $64,900 | $0 | $64,900 | $64,900 |
2011 | $0 | $70,800 | $0 | $70,800 | $70,800 |
2010 | $0 | $70,000 | $0 | $70,000 | $70,000 |
2009 | $0 | $100,000 | $0 | $100,000 | $100,000 |
2008 | $0 | $100,000 | $0 | $100,000 | $100,000 |
2007 | $0 | $30,000 | $0 | $30,000 | $30,000 |
2006 | $0 | $30,000 | $0 | $30,000 | $30,000 |
Deed and Sales History
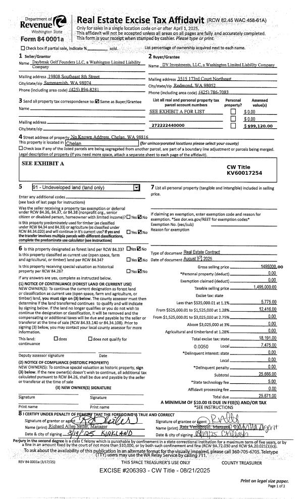
1 | 08/21/2025 | C | Real Estate Contract | DAYBREAK GOLF FOUNDERS LLC | DV INVESTMENTS LLC | | | $1,495,000.00 | 206393 | 2611729 |
  | |
2 | 12/29/2020 | Q | Quit Claim Deed | DAYBREAK GOLF FOUNDERS LLC | DAYBREAK GOLF FOUNDERS LLC | | | $0.00 | 189923 | 2533114 |
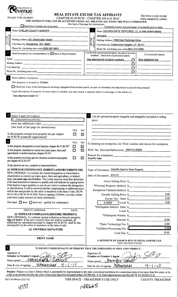
3 | 09/10/2010 | W | Warranty Deed | CHELAN BUTTE ACQUISITION LLC | DAYBREAK GOLF FOUNDERS LLC | | | | 149948 | 2329415 |
4 | 04/29/2005 | SWD | Statutory Warranty Deed | | CHELAN BUTTE ACQUISITIONS LLC | | | $2,000,000.00 | 12778701 | 2198474 |
5 | 08/12/1999 | W | Warranty Deed | | HAROLD T GETTY ETAL | | | | 0 | 2058899 |
6 | 03/24/1994 | SWD | Statutory Warranty Deed | | SNOWCREEK DEVELOPEMENT CO INC | 1016 | 1457 | $1,250,000.00 | 8047502 | |
7 | 03/30/1983 | CORR DEED | Correction Deed | | GETTY HAROLD T ETAL | 806 | 715 | | 0 | |
Payout Agreement
No payout information available.. |