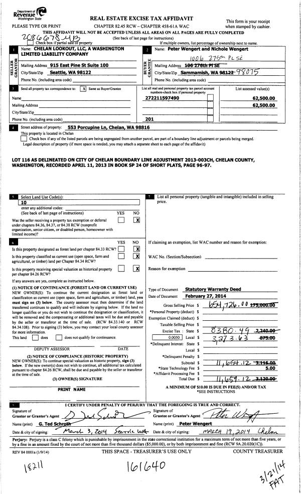
42454 WENGERT PETER & NICHOLE REVOCABLE TRUST for Year 2026 - 2027

Click on a title bar to expand or collapse the information.

Property

Pay Tax Due

Taxes and Assessment Details

Values

Taxing Jurisdiction

Improvement / Building

Sketch

Property Image

Land

Roll Value History

Deed and Sales History

Payout Agreement