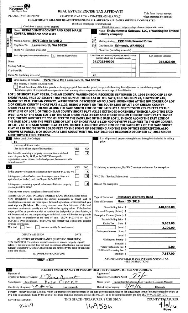
Property
Account |
| Property ID: | 41195 | Abbreviated Legal Description: | MINNEAPOLIS BEACH LOT I W PT SURVEY 35/99 0.2000 ACRES |
| Geographic ID: | 272208705126 | Agent Code: | |
| Type: | Real | | |
| Tax Area: | 34 - 129 F7 CD4 H2 | Land Use Code | 18 |
| Open Space: | N | DFL | N |
| Historic Property: | N | Remodel Property: | N |
| Multi-Family Redevelopment: | N | | |
| Township: | 27N | Section: | 08 |
| Range: | 22EWM | Legal Acres: | 0.2000 |
Location |
| Address: | 1300 S LAKESHORE RD CHELAN, WA 98816 | Mapsco: | |
| Neighborhood: | Cycle 4 Chelan water south div 1 RES | Map ID: | 4CWSO01R01 |
| Neighborhood CD: | 4CWSO01R01 |
Owner |
| Name: | GORBATYUK RUSLAN & YELENA | Owner ID: | 127832 |
| Mailing Address: | 75305 FESCUE LN KENNEWICK, WA 99338 | % Ownership: | % |
| | | Exemptions: | |
Pay Tax Due
Select the appropriate checkbox next to the year to be paid. Multiple years may be selected.
*Convenience Fee not included
Taxes and Assessment Details
Values
| (+) Improvement Homesite Value: | + | $0 | |
| (+) Improvement Non-Homesite Value: | + | $2,851,510 | |
| (+) Land Homesite Value: | + | $0 | |
| (+) Land Non-Homesite Value: | + | $315,932 | |
| (+) Curr Use (HS): | + | $0 | $0 |
| (+) Curr Use (NHS): | + | $0 | $0 |
| | | -------------------------- | |
| (=) Market Value: | = | $3,167,442 | |
| (–) Productivity Loss: | – | $0 | |
| | | -------------------------- | |
| (=) Subtotal: | = | $3,167,442 | |
| (+) Senior Appraised Value: | + | $0 | |
| (+) Non-Senior Appraised Value: | + | $3,167,442 | |
| | | -------------------------- | |
| (=) Total Appraised Value: | = | $3,167,442 | |
| (–) Senior Exemption Loss: | – | $0 | |
| (–) Exemption Loss: | – | $0 | |
| | | -------------------------- | |
| (=) Taxable Value: | = | $3,167,442 | |
Taxing Jurisdiction
| Owner: | GORBATYUK RUSLAN & YELENA | | |
| % Ownership: | 100.0000000000% | | |
| Total Value: | $3,167,442 | | |
| Tax Area: | 34 - 129 F7 CD4 H2 |
| 110001 | County Road General | 0.7994434437 | $3,167,442 | $3,167,442 | $2,532.19 | | |
| 010170 | Chelan County | 0.7334053198 | $3,167,442 | $3,167,442 | $2,323.02 | | |
| 155001 | Veteran's Relief | 0.0086008201 | $3,167,442 | $3,167,442 | $27.24 | | |
| 160001 | Mental Health | 0.0189723974 | $3,167,442 | $3,167,442 | $60.09 | | |
| 657401 | Cemetery No 4 | 0.0351540838 | $3,167,442 | $3,167,442 | $111.35 | | |
| 656701 | Fire No 7 General | 0.8768277967 | $3,167,442 | $3,167,442 | $2,777.30 | | |
| 654115 | Lake Chelan SD 129 Capital Projects | 0.0565057625 | $3,167,442 | $3,167,442 | $178.98 | | |
| 652001 | State School Refund | 0.0000273969 | $3,167,442 | $3,167,442 | $0.09 | | |
| 652003 | State School 2 | 0.8917891157 | $3,167,442 | $3,167,442 | $2,824.69 | | |
| 652005 | State School | 1.6674243773 | $3,167,442 | $3,167,442 | $5,281.47 | | |
| 652025 | State School 2 Refund | 0.0000148770 | $3,167,442 | $3,167,442 | $0.05 | | |
| 107001 | Flood Control Zone | 0.0408306198 | $3,167,442 | $3,167,442 | $129.33 | | |
| 692201 | Hospital No 2 General | 0.1547141610 | $3,167,442 | $3,167,442 | $490.05 | | |
| 692210 | Hospital No 2 Bond | 0.2119022248 | $3,167,442 | $3,167,442 | $671.19 | | |
| 692260 | Hospital No 2 EMS | 0.2840218151 | $3,167,442 | $3,167,442 | $899.62 | | |
| 644001 | Regional Library | 0.2864488554 | $3,167,442 | $3,167,442 | $907.31 | | |
| 671101 | Port General | 0.1756188309 | $3,167,442 | $3,167,442 | $556.26 | | |
| 654100 | Lake Chelan SD 129 General | 0.8700014346 | $3,167,442 | $3,167,442 | $2,755.68 | | |
| | Total Tax Rate: | 7.1117033325 | | | | | |
| | | | | Taxes w/Current Exemptions: | $22,525.91 | | |
| | | | | Taxes w/o Exemptions: | $22,525.91 | | |
Improvement / Building
| Improvement #1: | RESIDENTIAL | State Code: | 18 | 1810.0 sqft | Value: | $2,770,304 |
| Exterior Wall: | Plywood or Hrdbrd | Heating/Cooling: | Heat Pump | | Number of Bathrooms: | 3 |   |   |
|
| | Type | Description | Class CD | Sub Class CD | Year Built | Area |
| | MA | Main | AVERAGE | 1 STY | 2014 | 1810.0 |
| | GAR-ATT | Attached Garage | AVERAGE | 1 STY | 2014 | 576.0 |
| | BS-UFC8 | BSMT AREA 8” CONC | AVERAGE | 1 STY | 2014 | 1734.0 |
| | BSMT-PF | BSMT FINISH - PARTITIONED | AVERAGE | 1 STY | 2014 | 1734.0 |
| | PP-OPEN | Open Concrete Porch | AVERAGE | * | 2014 | 32.0 |
| | DECK | Open Wood Deck | AVERAGE | * | 2014 | 56.0 |
| | DECK | Open Wood Deck | AVERAGE | * | 2014 | 180.0 |
| | DECK | Open Wood Deck | AVERAGE | * | 2014 | 228.0 |
| | PP-OPEN | Open Concrete Porch | AVERAGE | * | 2014 | 180.0 |
| Improvement #2: | RESIDENTIAL | State Code: | 11 | 0.0 sqft | Value: | $56,281 |
| Improvement #3: | RESIDENTIAL | State Code: | 11 | 0.0 sqft | Value: | $24,925 |
Sketch
Property Image
Land
| 1 | WFF 12K | WATERFRONT $12,000/FF | 0.2000 | 8712.00 | 80.00 | 55.00 | 1.00 | $279,792 | $0 |
| 2 | WFF 1000 | WATERFRONT $1000/FF | 0.0000 | 0.00 | 62.00 | 55.00 | 1.00 | $36,140 | $0 |
Roll Value History
| 2026 | N/A | N/A | N/A | N/A | N/A |
| 2025 | $1,486,914 | $2,610,750 | $0 | $4,097,664 | $4,097,664 |
| 2024 | $1,502,317 | $2,610,750 | $0 | $4,113,067 | $4,113,067 |
| 2023 | $818,721 | $1,211,990 | $0 | $2,030,711 | $2,030,711 |
| 2022 | $2,851,510 | $315,932 | $0 | $3,167,442 | $3,167,442 |
| 2021 | $1,583,024 | $279,618 | $0 | $1,862,642 | $1,862,642 |
| 2020 | $895,683 | $279,618 | $0 | $1,175,301 | $1,175,301 |
| 2019 | $973,502 | $279,618 | $0 | $1,253,120 | $1,253,120 |
| 2018 | $832,543 | $279,618 | $0 | $1,112,161 | $1,112,161 |
| 2017 | $576,379 | $243,304 | $0 | $819,683 | $819,683 |
| 2016 | $703,288 | $188,833 | $0 | $892,121 | $892,121 |
| 2015 | $655,663 | $181,570 | $0 | $837,233 | $837,233 |
| 2014 | $427,000 | $192,464 | $0 | $619,464 | $619,464 |
| 2013 | $0 | $163,413 | $0 | $163,413 | $163,413 |
| 2012 | $0 | $217,884 | $0 | $217,884 | $217,884 |
| 2011 | $0 | $217,884 | $0 | $217,884 | $217,884 |
| 2010 | $0 | $254,198 | $0 | $254,198 | $254,198 |
| 2009 | $0 | $350,000 | $0 | $350,000 | $350,000 |
| 2008 | $0 | $350,000 | $0 | $350,000 | $350,000 |
| 2007 | $0 | $218,755 | $0 | $218,755 | $218,755 |
Deed and Sales History
| 1 | 08/15/2024 | SWD | Statutory Warranty Deed | MILBRANDT JANIE E & JERRY C | GORBATYUK RUSLAN & YELENA | | | $4,400,000.00 | 203223 | 2597898 |
| 2 | 09/23/2022 | SWD | Statutory Warranty Deed | ADAMS TRI-CITIES ENTERPRISES INC | MILBRANDT JANIE E & JERRY C | | | $4,392,500.00 | 197471 | 2573632 |
| 3 | 03/09/2017 | CORR DEED | Correction Deed | CLARK JUDITH L | CLARK JUDITH L | | | | 173427 | 2454029 |
| 4 | 02/27/2015 | SWD | Statutory Warranty Deed | CLARK RANDY N & JUDY L LP | ADAMS TRI-CITIES ENTERPRISES INC | | | $1,400,000.00 | 165006 | 2414165 |
| 5 | 02/19/2015 | Q | Quit Claim Deed | CLARK JUDITH L | CLARK RANDY N & JUDY L LP | | | $46,000.00 | 164898 | 2413595 |
| 6 | 05/02/2013 | Q | Quit Claim Deed | 243 LLC | CLARK RANDY N & JUDY L LP | | | $150,000.00 | 158596 | 2381562 |
| 7 | 10/13/2005 | WFD | Warranty Fulfillment Deed | CLARK JAY S | 243 LLC | | | | 0 | 2211634 |
| 8 | 10/12/2001 | C | Real Estate Contract | CLARK JAY S | 243 LLC | | | | 0 | 2102873 |
| 9 | 12/18/1998 | PR | Personal Representatives Deed | CLARK JUDITH L | JAY S CLARK | | | | 0 | 2043011 |
| 10 | 10/12/2001 | C | Real Estate Contract | | | | | $150,000.00 | 11168200 | 2102873 |
Payout Agreement
| 1895 | Active | LAKE CHELAN SEWER 98-4 | | 3/25/2009 2:59:07 PM | Annually | 14 | $0 |