Property
Account |
| Property ID: | 40372 | Abbreviated Legal Description: | T 27N R 21EWM S 24 LA BLA 08-46 SURVEY 46/25 GOLF COURSE LAND IN 272218/272113/272124 153.3500 ACRES |
| Geographic ID: | 272124110100 | Agent Code: | |
| Type: | Real | | |
| Tax Area: | 34 - 129 F7 CD4 H2 | Land Use Code | 94 |
| Open Space: | Y | DFL | N |
| Historic Property: | N | Remodel Property: | N |
| Multi-Family Redevelopment: | N | | |
| Township: | 27N | Section: | 24 |
| Range: | 21EWM | Legal Acres: | 153.3500 |
Location |
| Address: | UNASSIGNED CHELAN, WA 98816 | Mapsco: | |
| Neighborhood: | Cycle 4 Chelan valley south div 1 COM | Map ID: | 4CVSO01C01 |
| Neighborhood CD: | 4CVSO01C01 |
Owner |
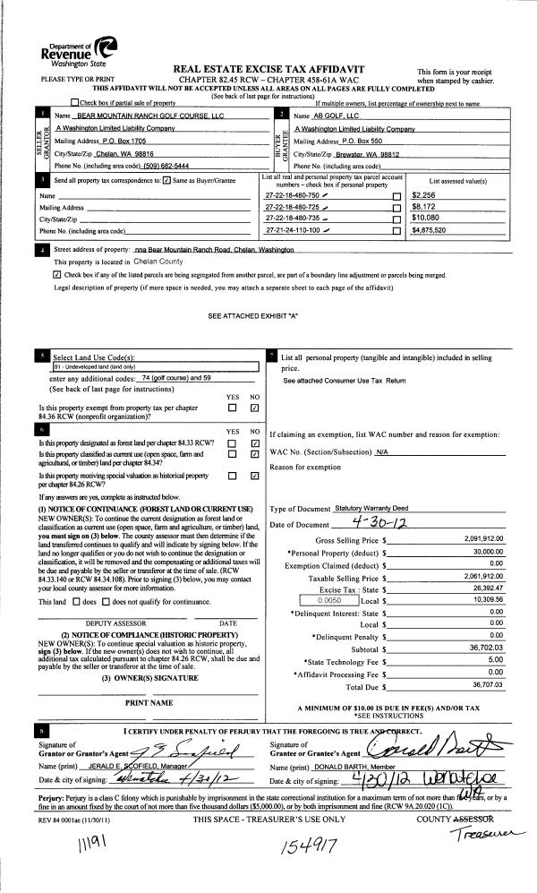
| Name: | AB GOLF LLC | Owner ID: | 88047 |
| Mailing Address: | PO BOX 1860 CHELAN, WA 98816 | % Ownership: | % |
| | | Exemptions: | |
Pay Tax Due
Select the appropriate checkbox next to the year to be paid. Multiple years may be selected.
*Convenience Fee not included
Taxes and Assessment Details
Values
| (+) Improvement Homesite Value: | + | N/A | |
| (+) Improvement Non-Homesite Value: | + | N/A | |
| (+) Land Homesite Value: | + | N/A | |
| (+) Land Non-Homesite Value: | + | N/A | Ag / Timber Use Value |
| (+) Curr Use (HS): | + | N/A | N/A |
| (+) Curr Use (NHS): | + | N/A | N/A |
| | | -------------------------- | |
| (=) Market Value: | = | N/A | |
| (–) Productivity Loss: | – | N/A | |
| | | -------------------------- | |
| (=) Subtotal: | = | N/A | |
| (+) Senior Appraised Value: | + | N/A | |
| (+) Non-Senior Appraised Value: | + | N/A | |
| | | -------------------------- | |
| (=) Total Appraised Value: | = | N/A | |
| (–) Senior Exemption Loss: | – | N/A | |
| (–) Exemption Loss: | – | N/A | |
| | | -------------------------- | |
| (=) Taxable Value: | = | N/A | |
Taxing Jurisdiction
| Owner: | AB GOLF LLC | | |
| % Ownership: | 100.0000000000% | | |
| Total Value: | N/A | | |
| Tax Area: | 34 - 129 F7 CD4 H2 |
| 110001 | County Road General | N/A | N/A | N/A | N/A | | |
| 010170 | Chelan County | N/A | N/A | N/A | N/A | | |
| 155001 | Veteran's Relief | N/A | N/A | N/A | N/A | | |
| 160001 | Mental Health | N/A | N/A | N/A | N/A | | |
| 657401 | Cemetery No 4 | N/A | N/A | N/A | N/A | | |
| 656701 | Fire No 7 General | N/A | N/A | N/A | N/A | | |
| 654115 | Lake Chelan SD 129 Capital Projects | N/A | N/A | N/A | N/A | | |
| 652001 | State School Refund | N/A | N/A | N/A | N/A | | |
| 652003 | State School 2 | N/A | N/A | N/A | N/A | | |
| 652005 | State School | N/A | N/A | N/A | N/A | | |
| 652025 | State School 2 Refund | N/A | N/A | N/A | N/A | | |
| 107001 | Flood Control Zone | N/A | N/A | N/A | N/A | | |
| 692201 | Hospital No 2 General | N/A | N/A | N/A | N/A | | |
| 692210 | Hospital No 2 Bond | N/A | N/A | N/A | N/A | | |
| 692260 | Hospital No 2 EMS | N/A | N/A | N/A | N/A | | |
| 644001 | Regional Library | N/A | N/A | N/A | N/A | | |
| 671101 | Port General | N/A | N/A | N/A | N/A | | |
| 654100 | Lake Chelan SD 129 General | N/A | N/A | N/A | N/A | | |
| | Total Tax Rate: | N/A | | | | | |
| | | | | Taxes w/Current Exemptions: | N/A | | |
| | | | | Taxes w/o Exemptions: | N/A | | |
Improvement / Building
| Improvement #1: | COMMERCIAL | State Code: | 74 | 0.0 sqft | Value: | N/A |
| Improvement #2: | COMMERCIAL | State Code: | 74 | 6048.0 sqft | Value: | N/A |
| Improvement #3: | RESIDENTIAL | State Code: | 74 | 0.0 sqft | Value: | N/A |
| | Type | Description | Class CD | Sub Class CD | Year Built | Area |
| | CP-S | Carport/Patio Cover Shed Roof | AVERAGE | 1 STY | 2002 | 5360.0 |
| Improvement #4: | COMMERCIAL | State Code: | 74 | 2778.0 sqft | Value: | N/A |
| Improvement #5: | COMMERCIAL | State Code: | 74 | 163.0 sqft | Value: | N/A |
| Exterior Wall: | Stone on Block |   |   |
|
Sketch
| No sketches available for this property. |
Property Image
Land
| 1 | RES 4.5K | RESIDUAL $4500/A | 151.6800 | 6607180.80 | 0.00 | 0.00 | 0.00 | N/A | N/A |
| 2 | RES 4.5K | RESIDUAL $4500/A | 1.6700 | 72745.20 | 0.00 | 0.00 | 0.00 | N/A | N/A |
Roll Value History
| 2026 | N/A | N/A | N/A | N/A | N/A |
| 2025 | $3,252,561 | $690,075 | $341,280 | $3,601,356 | $3,601,356 |
| 2024 | $3,113,204 | $690,075 | $341,280 | $3,461,999 | $3,461,999 |
| 2023 | $3,096,581 | $690,075 | $341,280 | $3,445,376 | $3,445,376 |
| 2022 | $3,123,999 | $690,075 | $341,280 | $3,472,794 | $3,472,794 |
| 2021 | $3,068,811 | $690,075 | $341,280 | $3,417,606 | $3,417,606 |
| 2020 | $3,068,663 | $690,075 | $341,280 | $3,417,458 | $3,417,458 |
| 2019 | $3,031,120 | $690,075 | $341,280 | $3,379,915 | $3,379,915 |
| 2018 | $2,976,630 | $690,075 | $341,280 | $3,325,425 | $3,325,425 |
| 2017 | $2,997,821 | $690,075 | $341,280 | $3,346,616 | $3,346,616 |
| 2016 | $3,016,192 | $690,075 | $341,280 | $3,364,987 | $3,364,987 |
| 2015 | $2,058,539 | $690,075 | $341,280 | $2,407,334 | $2,407,334 |
| 2014 | $1,988,161 | $690,075 | $341,280 | $2,336,956 | $2,336,956 |
| 2013 | $2,006,026 | $690,075 | $341,280 | $2,354,821 | $2,354,821 |
| 2012 | $1,999,999 | $690,075 | $0 | $2,690,074 | $2,690,074 |
| 2011 | $4,108,770 | $766,750 | $0 | $4,875,520 | $4,875,520 |
| 2010 | $4,108,770 | $766,750 | $0 | $4,875,520 | $4,875,520 |
| 2009 | $3,150,000 | $766,750 | $0 | $3,916,750 | $3,916,750 |
| 2008 | $3,150,000 | $766,750 | $0 | $3,916,750 | $3,916,750 |
| 2007 | $3,491,964 | $136,290 | $0 | $3,628,254 | $3,628,254 |
Deed and Sales History
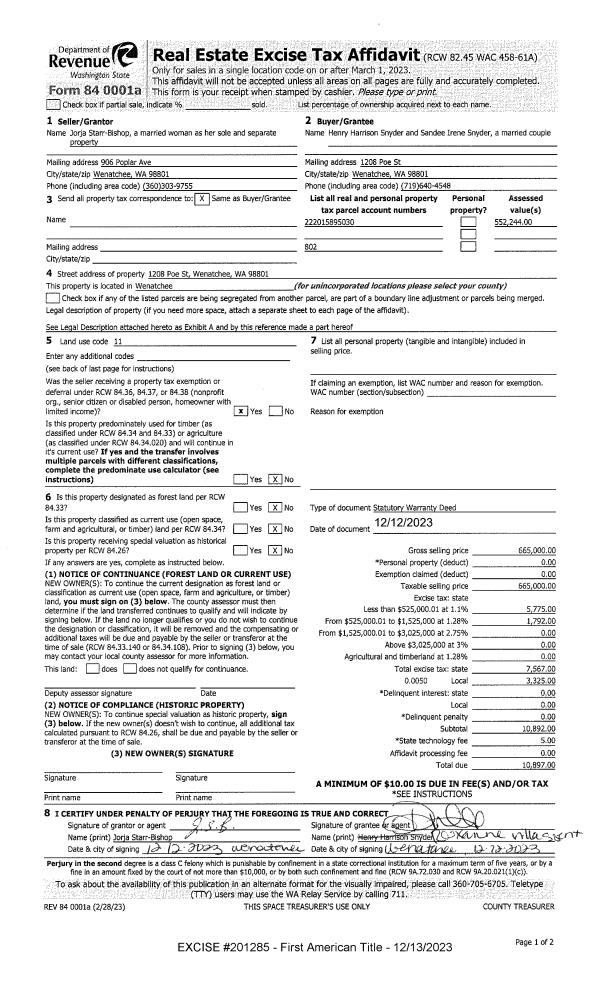
| 1 | 05/01/2012 | SWD | Statutory Warranty Deed | BEAR MOUNTAIN RANCH GOLF COURSE | AB GOLF LLC | | | $2,061,912.00 | 154917 | 2360038 |
|   | |
| 2 | 05/01/2012 | CORR DEED | Correction Deed | BEAR MOUNTAIN RANCH INC | BEAR MOUNTAIN RANCH GOLF COURSE | | | | 154916 | 2360037 |
| 3 | 04/21/2008 | REF | Conversion Code Only | BLA 2008-046 | | | | | 0 | 2279990 |
| 4 | 04/21/2008 | Q | Quit Claim Deed | BEAR MTN RANCH GOLF COURSE LLC | BIRINGER JOSEF | | | | 0 | 2279989 |
| 5 | 01/25/2008 | O | Other | | BEAR MOUNTAIN RANCH GOLF COURS | | | | 0 | 2274082 |
| 6 | 12/28/2004 | O | Other | | BEAR MOUNTAIN GOLF COURSE LLC | | | | 0 | 2190187 |
| 7 | 04/08/2003 | Q | Quit Claim Deed | BEAR MTN RANCH | BEAR MTN GOLF C | | | | 0 | 2140604 |
| 8 | 11/01/2005 | REF | Conversion Code Only | SURVEY | | 47 | 83 | | 0 | |
| 9 | 03/19/2008 | Q | Quit Claim Deed | | | | | | 14234100 | 2279989 |
Payout Agreement
| No payout information available.. |