Property
Account |
| Property ID: | 39941 | Abbreviated Legal Description: | CHELAN RIDGE LOT 7 0.9000 ACRES |
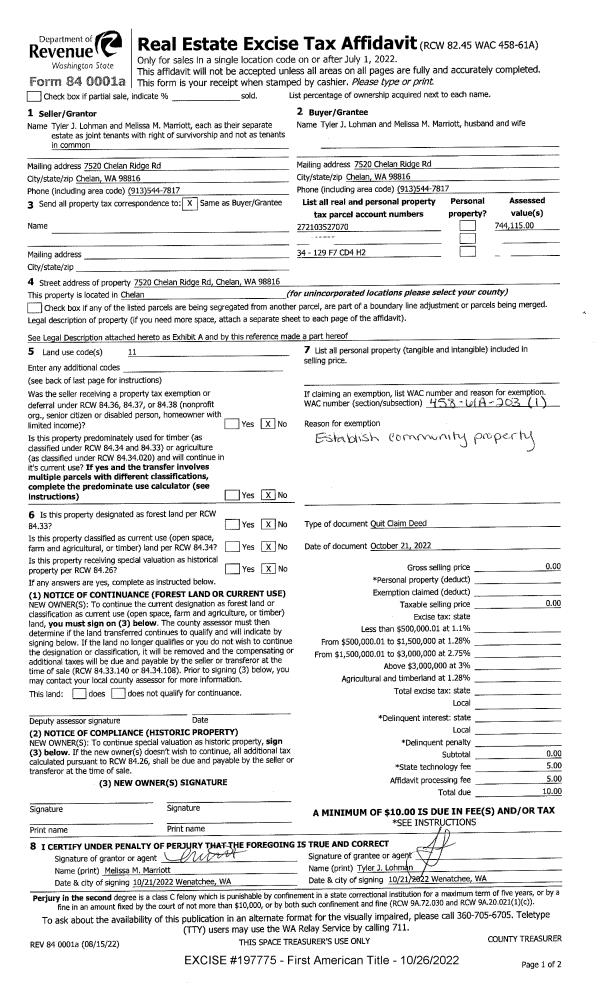
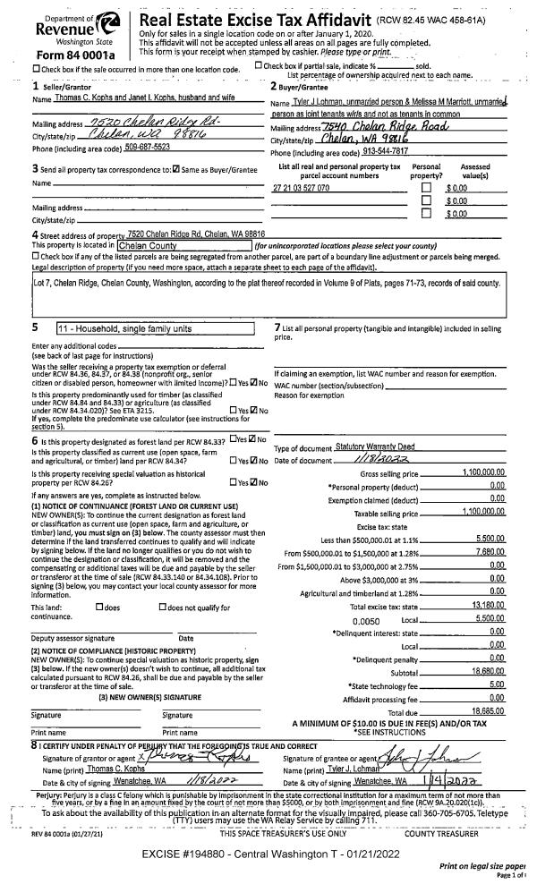
| Geographic ID: | 272103527070 | Agent Code: | |
| Type: | Real | | |
| Tax Area: | 34 - 129 F7 CD4 H2 | Land Use Code | 11 |
| Open Space: | N | DFL | N |
| Historic Property: | N | Remodel Property: | N |
| Multi-Family Redevelopment: | N | | |
| Township: | 27N | Section: | 03 |
| Range: | 21EWM | Legal Acres: | 0.9000 |
Location |
| Address: | 7520 CHELAN RIDGE RD CHELAN, WA 98816 | Mapsco: | |
| Neighborhood: | Cycle 4 Chelan valley south div 2 RES | Map ID: | 4CVSO02R01 |
| Neighborhood CD: | 4CVSO02R01 |
Owner |
| Name: | LOHMAN TYLER J & MARRIOTT MELISSA M | Owner ID: | 120768 |
| Mailing Address: | 7520 CHELAN RIDGE RD CHELAN, WA 98816 | % Ownership: | % |
| | | Exemptions: | |
Pay Tax Due
Select the appropriate checkbox next to the year to be paid. Multiple years may be selected.
*Convenience Fee not included
Taxes and Assessment Details
Values
| (+) Improvement Homesite Value: | + | $0 | |
| (+) Improvement Non-Homesite Value: | + | $814,290 | |
| (+) Land Homesite Value: | + | $0 | |
| (+) Land Non-Homesite Value: | + | $253,920 | |
| (+) Curr Use (HS): | + | $0 | $0 |
| (+) Curr Use (NHS): | + | $0 | $0 |
| | | -------------------------- | |
| (=) Market Value: | = | $1,068,210 | |
| (–) Productivity Loss: | – | $0 | |
| | | -------------------------- | |
| (=) Subtotal: | = | $1,068,210 | |
| (+) Senior Appraised Value: | + | $0 | |
| (+) Non-Senior Appraised Value: | + | $1,068,210 | |
| | | -------------------------- | |
| (=) Total Appraised Value: | = | $1,068,210 | |
| (–) Senior Exemption Loss: | – | $0 | |
| (–) Exemption Loss: | – | $0 | |
| | | -------------------------- | |
| (=) Taxable Value: | = | $1,068,210 | |
Taxing Jurisdiction
| Owner: | LOHMAN TYLER J & MARRIOTT MELISSA M | | |
| % Ownership: | 100.0000000000% | | |
| Total Value: | $1,068,210 | | |
| Tax Area: | 34 - 129 F7 CD4 H2 |
| 110001 | County Road General | 0.7994434437 | $1,068,210 | $1,068,210 | $853.97 | | |
| 010170 | Chelan County | 0.7334053198 | $1,068,210 | $1,068,210 | $783.43 | | |
| 155001 | Veteran's Relief | 0.0086008201 | $1,068,210 | $1,068,210 | $9.19 | | |
| 160001 | Mental Health | 0.0189723974 | $1,068,210 | $1,068,210 | $20.27 | | |
| 657401 | Cemetery No 4 | 0.0351540838 | $1,068,210 | $1,068,210 | $37.55 | | |
| 656701 | Fire No 7 General | 0.8768277967 | $1,068,210 | $1,068,210 | $936.64 | | |
| 654115 | Lake Chelan SD 129 Capital Projects | 0.0565057625 | $1,068,210 | $1,068,210 | $60.36 | | |
| 652001 | State School Refund | 0.0000273969 | $1,068,210 | $1,068,210 | $0.03 | | |
| 652003 | State School 2 | 0.8917891157 | $1,068,210 | $1,068,210 | $952.62 | | |
| 652005 | State School | 1.6674243773 | $1,068,210 | $1,068,210 | $1,781.16 | | |
| 652025 | State School 2 Refund | 0.0000148770 | $1,068,210 | $1,068,210 | $0.02 | | |
| 107001 | Flood Control Zone | 0.0408306198 | $1,068,210 | $1,068,210 | $43.62 | | |
| 692201 | Hospital No 2 General | 0.1547141610 | $1,068,210 | $1,068,210 | $165.27 | | |
| 692210 | Hospital No 2 Bond | 0.2119022248 | $1,068,210 | $1,068,210 | $226.36 | | |
| 692260 | Hospital No 2 EMS | 0.2840218151 | $1,068,210 | $1,068,210 | $303.39 | | |
| 644001 | Regional Library | 0.2864488554 | $1,068,210 | $1,068,210 | $305.99 | | |
| 671101 | Port General | 0.1756188309 | $1,068,210 | $1,068,210 | $187.60 | | |
| 654100 | Lake Chelan SD 129 General | 0.8700014346 | $1,068,210 | $1,068,210 | $929.34 | | |
| | Total Tax Rate: | 7.1117033325 | | | | | |
| | | | | Taxes w/Current Exemptions: | $7,596.81 | | |
| | | | | Taxes w/o Exemptions: | $7,596.81 | | |
Improvement / Building
| Improvement #1: | RESIDENTIAL | State Code: | 11 | 1765.5 sqft | Value: | $814,290 |
| Exterior Wall: | Wood Siding | Fireplace: | Double 2 Story | | Heating/Cooling: | Heat Pump | Number of Bathrooms: | 2.5 | | Number of Bedrooms: | 3 |   |   |
|
| | Type | Description | Class CD | Sub Class CD | Year Built | Area |
| | MA | Main | GOOD | 1 STY | 1999 | 1765.5 |
| | GAR-ATT | Attached Garage | GOOD | 1 STY | 1999 | 520.0 |
| | BSMT-PF | BSMT FINISH - PARTITIONED | GOOD | 1 STY | 1999 | 1563.0 |
| | BS-UFC8 | BSMT AREA 8” CONC | GOOD | 1 STY | 1999 | 1563.0 |
| | DECK | Open Wood Deck | GOOD | 1 STY | 1999 | 449.3 |
| | PP-OPEN | Open Concrete Porch | GOOD | * | 1999 | 385.0 |
Sketch
Property Image
Land
| 1 | SV 200K | SITE VALUE $200,000 | 0.9000 | 39204.00 | 0.00 | 0.00 | 1.00 | $253,920 | $0 |
Roll Value History
| 2026 | N/A | N/A | N/A | N/A | N/A |
| 2025 | $819,741 | $257,520 | $0 | $1,077,261 | $1,077,261 |
| 2024 | $828,449 | $252,000 | $0 | $1,080,449 | $1,080,449 |
| 2023 | $902,742 | $268,640 | $0 | $1,171,382 | $1,171,382 |
| 2022 | $814,290 | $253,920 | $0 | $1,068,210 | $1,068,210 |
| 2021 | $568,635 | $175,480 | $0 | $744,115 | $744,115 |
| 2020 | $445,178 | $132,720 | $0 | $577,898 | $577,898 |
| 2019 | $441,355 | $132,720 | $0 | $574,075 | $574,075 |
| 2018 | $420,516 | $131,140 | $0 | $551,656 | $551,656 |
| 2017 | $409,108 | $110,000 | $0 | $519,108 | $519,108 |
| 2016 | $437,206 | $110,000 | $0 | $547,206 | $547,206 |
| 2015 | $410,565 | $110,000 | $0 | $520,565 | $520,565 |
| 2014 | $397,136 | $110,000 | $0 | $507,136 | $507,136 |
| 2013 | $345,878 | $110,000 | $0 | $455,878 | $455,878 |
| 2012 | $372,068 | $110,000 | $0 | $482,068 | $482,068 |
| 2011 | $347,224 | $129,000 | $0 | $476,224 | $476,224 |
| 2010 | $347,224 | $107,500 | $0 | $454,724 | $454,724 |
| 2009 | $337,979 | $215,000 | $0 | $552,979 | $552,979 |
| 2008 | $337,979 | $215,000 | $0 | $552,979 | $552,979 |
| 2007 | $207,169 | $65,000 | $0 | $272,169 | $272,169 |
Deed and Sales History
| 1 | 10/26/2022 | Q | Quit Claim Deed | LOHMAN TYLER J & MARRIOTT MELISSA M | LOHMAN TYLER J & MARRIOTT MELISSA M | | | $0.00 | 197775 | 2575094 |
| 2 | 01/21/2022 | SWD | Statutory Warranty Deed | KOPHS THOMAS C | LOHMAN TYLER J & MARRIOTT MELISSA M | | | $1,100,000.00 | 194880 | 2560915 |
| 3 | 01/15/1995 | W | Warranty Deed | | KOPHS THOMAS C | 1036 | 2404 | $63,000.00 | 8447000 | |
| 4 | 04/10/1991 | O | Other | SURVEY | BK 26 PG 69 | 0 | 0 | | 0 | |
| 5 | 05/31/1990 | W | Warranty Deed | | DAVID J GANGESTAD | 929 | 2135 | | 0 | |
| 6 | 05/18/1990 | W | Warranty Deed | | AZURE CORPORATION | 929 | 245 | | 0 | |
| 7 | 09/15/1989 | C | Real Estate Contract | BROCK V M | GANGESTAD DAVID J | 916 | 1694 | | 0 | |
| 8 | 03/07/1988 | O | Other | | V M BROCK | 890 | 323 | | 0 | |
| 9 | | TD | Trustee Deed | | COLUMBIA PACIFIC MORT INC | 852 | 469 | | 0 | |
Payout Agreement
| No payout information available.. |