Property
Account |
Property ID: | 39734 | Abbreviated Legal Description: | T 27N R 19EWM S 14 LOT B BLA 2014-305; SESW; PT OF SEC 14 12.7200 ACRES |
Geographic ID: | 271914340000 | Agent Code: | |
Type: | Real | | |
Tax Area: | 20 - 127 F8 CD1 | Land Use Code | 11 |
Open Space: | N | DFL | N |
Historic Property: | N | Remodel Property: | N |
Multi-Family Redevelopment: | N | | |
Township: | 27N | Section: | 14 |
Range: | 19EWM | Legal Acres: | 12.7200 |
Location |
Address: | 14449 ENTIAT RIVER RD ENTIAT, WA 98822 | Mapsco: | |
Neighborhood: | Cycle 2 Entiat River north div 1 RES | Map ID: | 2ERVN01R01 |
Neighborhood CD: | 2ERVN01R01 |
Owner |
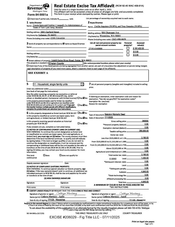
Name: | ANGUIANO CECILIA & GONZALEZ TONY | Owner ID: | 130181 |
Mailing Address: | 806 OKANOGAN AVE WENATCHEE, WA 98801 | % Ownership: | % |
| | Exemptions: | |
Pay Tax Due
Select the appropriate checkbox next to the year to be paid. Multiple years may be selected.
*Convenience Fee not included
Taxes and Assessment Details
Values
(+) Improvement Homesite Value: | + | $0 | |
(+) Improvement Non-Homesite Value: | + | $9,132 | |
(+) Land Homesite Value: | + | $0 | |
(+) Land Non-Homesite Value: | + | $182,300 | |
(+) Curr Use (HS): | + | $0 | $0 |
(+) Curr Use (NHS): | + | $0 | $0 |
| | -------------------------- | |
(=) Market Value: | = | $191,432 | |
(–) Productivity Loss: | – | $0 | |
| | -------------------------- | |
(=) Subtotal: | = | $191,432 | |
(+) Senior Appraised Value: | + | $0 | |
(+) Non-Senior Appraised Value: | + | $191,432 | |
| | -------------------------- | |
(=) Total Appraised Value: | = | $191,432 | |
(–) Senior Exemption Loss: | – | $0 | |
(–) Exemption Loss: | – | $0 | |
| | -------------------------- | |
(=) Taxable Value: | = | $191,432 | |
Taxing Jurisdiction
Owner: | ANGUIANO CECILIA & GONZALEZ TONY | | |
% Ownership: | 100.0000000000% | | |
Total Value: | $191,432 | | |
Tax Area: | 20 - 127 F8 CD1 |
110001 | County Road General | 0.8076331830 | $191,432 | $191,432 | $154.61 | | |
010170 | Chelan County | 0.7131947979 | $191,432 | $191,432 | $136.53 | | |
155001 | Veteran's Relief | 0.0131417976 | $191,432 | $191,432 | $2.52 | | |
160001 | Mental Health | 0.0178579654 | $191,432 | $191,432 | $3.42 | | |
657101 | Cemetery No 1 | 0.0360136338 | $191,432 | $191,432 | $6.89 | | |
656801 | Fire No 8 General | 0.9500000000 | $191,432 | $191,432 | $181.86 | | |
652003 | State School 2 | 0.8859835425 | $191,432 | $191,432 | $169.61 | | |
652005 | State School | 1.6474423412 | $191,432 | $191,432 | $315.37 | | |
652025 | State School 2 Refund | 0.0000512608 | $191,432 | $191,432 | $0.01 | | |
107001 | Flood Control Zone | 0.0399650208 | $191,432 | $191,432 | $7.65 | | |
656810 | Fire No 8 Bond | 0.0000000000 | $191,432 | $191,432 | $0.00 | | |
644001 | Regional Library | 0.2534738555 | $191,432 | $191,432 | $48.52 | | |
671101 | Port of Chelan County | 0.1575963345 | $191,432 | $191,432 | $30.17 | | |
654081 | Entiat SD 127 General | 1.3980313203 | $191,432 | $191,432 | $267.63 | | |
654090 | Entiat SD 127 Bond | 1.5450465691 | $191,432 | $191,432 | $295.77 | | |
652001 | State School Refund | 0.0000948042 | $191,432 | $191,432 | $0.02 | | |
| Total Tax Rate: | 8.4655264266 | | | | | |
| | | | Taxes w/Current Exemptions: | $1,620.58 | | |
| | | | Taxes w/o Exemptions: | $1,620.58 | | |
Improvement / Building
Improvement #1: | MOBILE HOME | State Code: | 18 | 0.0 sqft | Value: | $3,878 |
| Type | Description | Class CD | Sub Class CD | Year Built | Area |
| CP-S | Carport/Patio Cover Shed Roof | FAIR | 1 STY | 1969 | 480.0 |
| GP-BLD | Pole Type Garage/Bldg | FAIR | 1 STY | 1969 | 80.0 |
Improvement #2: | RESIDENTIAL | State Code: | 11 | 0.0 sqft | Value: | $5,254 |
| Type | Description | Class CD | Sub Class CD | Year Built | Area |
| CP-S | Carport/Patio Cover Shed Roof | FAIR | 1 STY | 2008 | 280.0 |
Sketch
No sketches available for this property. |
Property Image
Land
1 | RES 4K | RESIDUAL $4000/A | 2.7200 | 118483.20 | 0.00 | 0.00 | 1.00 | $15,450 | $0 |
2 | SV 50K | SITE VALUE $50,000 | 1.0000 | 43560.00 | 0.00 | 0.00 | 1.00 | $71,000 | $0 |
3 | RES 7.5K | RESIDUAL $7500/A | 9.0000 | 392040.00 | 0.00 | 0.00 | 1.00 | $95,850 | $0 |
Roll Value History
2025 | N/A | N/A | N/A | N/A | N/A |
2024 | $9,132 | $182,300 | $0 | $191,432 | $191,432 |
2023 | $9,300 | $182,300 | $0 | $191,600 | $191,600 |
2022 | $8,489 | $182,300 | $0 | $190,789 | $190,789 |
2021 | $7,594 | $116,826 | $0 | $124,420 | $124,420 |
2020 | $7,926 | $116,826 | $0 | $124,752 | $124,752 |
2019 | $8,205 | $116,826 | $0 | $125,031 | $125,031 |
2018 | $6,057 | $145,069 | $0 | $151,126 | $151,126 |
2017 | $1,616 | $139,934 | $0 | $141,550 | $141,550 |
2016 | $1,701 | $120,677 | $0 | $122,378 | $122,378 |
2015 | $2,082 | $100,136 | $0 | $102,218 | $102,218 |
2014 | $2,023 | $100,136 | $0 | $102,159 | $102,159 |
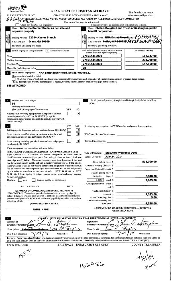
2013 | $14,415 | $218,875 | $0 | $233,290 | $233,290 |
2012 | $11,238 | $120,700 | $0 | $131,938 | $131,938 |
2011 | $12,576 | $142,000 | $0 | $154,576 | $154,576 |
2010 | $17,966 | $142,000 | $0 | $159,966 | $159,966 |
2009 | $20,595 | $122,000 | $0 | $142,595 | $142,595 |
2008 | $20,595 | $122,000 | $0 | $142,595 | $142,595 |
2007 | $20,595 | $122,000 | $0 | $142,595 | $142,595 |
2006 | $20,595 | $122,000 | $0 | $142,595 | $142,595 |
Deed and Sales History
1 | 07/11/2025 | SWD | Statutory Warranty Deed | JUMP TERRI | ANGUIANO CECILIA & GONZALEZ TONY | | | $290,000.00 | 206029 | 2610093 |
2 | 04/25/2018 | Q | Quit Claim Deed | HALSTEAD ERIC & TERRI | JUMP TERRI | | | $0.00 | 178458 | 2476652 |
3 | 12/31/2014 | SWD | Statutory Warranty Deed | CHELAN-DOUGLAS LAND TRUST | HALSTEAD ERIC & TERRI | | | $90,000.00 | 164541 | 2411528 |
4 | 07/31/2014 | SWD | Statutory Warranty Deed | BREDA KATHERINE BREMER | CHELAN-DOUGLAS LAND TRUST | | | $535,000.00 | 162986 | 2404039 |
  | |
5 | 08/15/2011 | DC | Death Certificate | BREMER ELVA M | | | | | 0 | UNRECORDED |
6 | 08/15/2011 | AFF | Affidavit | BREMER ELVA M | BREDA DANIEL R | | | | 0 | UNRECORDED |
7 | 04/30/2012 | PR | Personal Representatives Deed | BREMER ELVA M | BREDA KATHERINE BREMER | | | $0.00 | 154911 | 2359968 |
8 | 05/10/2012 | MH TITLE | Mobile Home Title | BREMER ELVA M | BREDA KATHERINE BREMER | | | | 155021 | |
9 | 09/19/2005 | CPA | Community Property Agreement | BREMER GUSTAVUS | BREMER ELVA | | | | 0 | 2209547 |
10 | 09/09/2005 | CPA | Community Property Agreement | BREMER GUSTAVUS | BREMER ELVA | | | | 0 | 2208874 |
11 | 08/06/1991 | J | Judgement | USA ET AL | HARLOW ROBERT C | 953 | 400 | | 0 | |
12 | 03/31/1988 | O | Other | BREMER G A | CASCADE INVESTM | 891 | 439 | | 0 | |
13 | 03/31/1988 | J | Judgement | CASCADE INVESTM | BREMER G A | 891 | 435 | | 0 | |
14 | 01/15/1988 | J | Judgement | US DIST COURT | #C86069AAM | 0 | 0 | | 0 | |
15 | 07/26/1950 | Q | Quit Claim Deed | | BREMER ELVA M | 466 | 185 | | 0 | |
16 | 01/31/1973 | O | Other | CHEL CO SUP CRT | CAUSE #26814 | 0 | 0 | | 0 | |
Payout Agreement
No payout information available.. |