Property
Account |
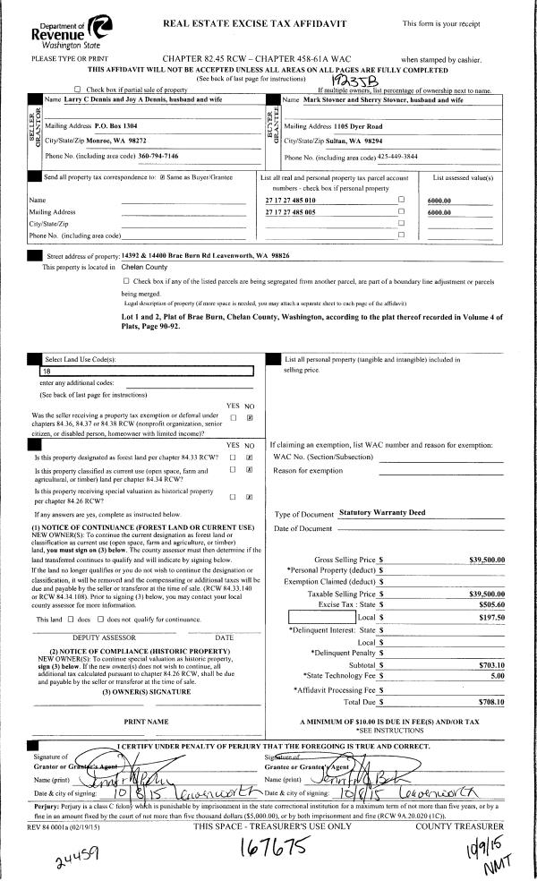
| Property ID: | 38430 | Abbreviated Legal Description: | BRAE BURN LOT 2, 0.2600 ACRES |
| Geographic ID: | 271727485010 | Agent Code: | |
| Type: | Real | | |
| Tax Area: | 30 - 228 F9 H1 MD | Land Use Code | 18 |
| Open Space: | N | DFL | N |
| Historic Property: | N | Remodel Property: | N |
| Multi-Family Redevelopment: | N | | |
| Township: | 27N | Section: | 27 |
| Range: | 17EWM | Legal Acres: | 0.2600 |
Location |
| Address: | 14392 BRAE BURN RD LAKE WENATCHEE, WA 98826 | Mapsco: | |
| Neighborhood: | Cycle 3 Lake Wen/Plain div 6 RES | Map ID: | 3LAKP06R01 |
| Neighborhood CD: | 3LAKP06R01 |
Owner |
| Name: | STOVNER MARK & SHERRY | Owner ID: | 99830 |
| Mailing Address: | 1105 DYER RD SULTAN, WA 98294 | % Ownership: | % |
| | | Exemptions: | |
Pay Tax Due
Select the appropriate checkbox next to the year to be paid. Multiple years may be selected.
*Convenience Fee not included
Taxes and Assessment Details
Values
| (+) Improvement Homesite Value: | + | N/A | |
| (+) Improvement Non-Homesite Value: | + | N/A | |
| (+) Land Homesite Value: | + | N/A | |
| (+) Land Non-Homesite Value: | + | N/A | Ag / Timber Use Value |
| (+) Curr Use (HS): | + | N/A | N/A |
| (+) Curr Use (NHS): | + | N/A | N/A |
| | | -------------------------- | |
| (=) Market Value: | = | N/A | |
| (–) Productivity Loss: | – | N/A | |
| | | -------------------------- | |
| (=) Subtotal: | = | N/A | |
| (+) Senior Appraised Value: | + | N/A | |
| (+) Non-Senior Appraised Value: | + | N/A | |
| | | -------------------------- | |
| (=) Total Appraised Value: | = | N/A | |
| (–) Senior Exemption Loss: | – | N/A | |
| (–) Exemption Loss: | – | N/A | |
| | | -------------------------- | |
| (=) Taxable Value: | = | N/A | |
Taxing Jurisdiction
| Owner: | STOVNER MARK & SHERRY | | |
| % Ownership: | 100.0000000000% | | |
| Total Value: | N/A | | |
| Tax Area: | 30 - 228 F9 H1 MD |
| 110001 | County Road General | N/A | N/A | N/A | N/A | | |
| 010170 | Chelan County | N/A | N/A | N/A | N/A | | |
| 155001 | Veteran's Relief | N/A | N/A | N/A | N/A | | |
| 160001 | Mental Health | N/A | N/A | N/A | N/A | | |
| 656901 | Fire No 9 General | N/A | N/A | N/A | N/A | | |
| 692101 | Hospital No 1 General | N/A | N/A | N/A | N/A | | |
| 652001 | State School Refund | N/A | N/A | N/A | N/A | | |
| 652003 | State School 2 | N/A | N/A | N/A | N/A | | |
| 652005 | State School | N/A | N/A | N/A | N/A | | |
| 652025 | State School 2 Refund | N/A | N/A | N/A | N/A | | |
| 107001 | Flood Control Zone | N/A | N/A | N/A | N/A | | |
| 692110 | Hospital No 1 Bond | N/A | N/A | N/A | N/A | | |
| 644001 | Regional Library | N/A | N/A | N/A | N/A | | |
| 671101 | Port General | N/A | N/A | N/A | N/A | | |
| 654161 | Cascade SD 228 General | N/A | N/A | N/A | N/A | | |
| 654170 | Cascade SD 228 Bond | N/A | N/A | N/A | N/A | | |
| 654175 | Cascade SD 228 Cap Projects | N/A | N/A | N/A | N/A | | |
| | Total Tax Rate: | N/A | | | | | |
| | | | | Taxes w/Current Exemptions: | N/A | | |
| | | | | Taxes w/o Exemptions: | N/A | | |
Improvement / Building
Sketch
| No sketches available for this property. |
Property Image
Land
| 1 | SV 30K | SITE VALUE $30,000 | 0.2600 | 11400.00 | 0.00 | 0.00 | 1.00 | N/A | N/A |
Roll Value History
| 2026 | N/A | N/A | N/A | N/A | N/A |
| 2025 | $0 | $55,440 | $0 | $55,440 | $55,440 |
| 2024 | $0 | $33,075 | $0 | $33,075 | $33,075 |
| 2023 | $0 | $28,665 | $0 | $28,665 | $28,665 |
| 2022 | $0 | $37,170 | $0 | $37,170 | $37,170 |
| 2021 | $0 | $31,500 | $0 | $31,500 | $31,500 |
| 2020 | $0 | $29,925 | $0 | $29,925 | $29,925 |
| 2019 | $0 | $14,820 | $0 | $14,820 | $14,820 |
| 2018 | $0 | $7,100 | $0 | $7,100 | $7,100 |
| 2017 | $0 | $6,816 | $0 | $6,816 | $6,816 |
| 2016 | $0 | $6,624 | $0 | $6,624 | $6,624 |
| 2015 | $0 | $6,720 | $0 | $6,720 | $6,720 |
| 2014 | $0 | $6,000 | $0 | $6,000 | $6,000 |
| 2013 | $0 | $6,500 | $0 | $6,500 | $6,500 |
| 2012 | $0 | $9,500 | $0 | $9,500 | $9,500 |
| 2011 | $0 | $8,500 | $0 | $8,500 | $8,500 |
| 2010 | $0 | $9,000 | $0 | $9,000 | $9,000 |
| 2009 | $0 | $10,000 | $0 | $10,000 | $10,000 |
| 2008 | $0 | $10,000 | $0 | $10,000 | $10,000 |
| 2007 | $0 | $10,000 | $0 | $10,000 | $10,000 |
Deed and Sales History
| 1 | 10/08/2015 | SWD | Statutory Warranty Deed | DENNIS LARRY C | STOVNER MARK & SHERRY | | | $39,500.00 | 167675 | 2426635 |
|   | |
| 2 | 08/06/1998 | W | Warranty Deed | | DENNIS LARRY C | | | | 0 | 2033895 |
| 3 | 08/12/1998 | W | Warranty Deed | | DAVID W WHITFIELD | | | | 0 | 2031556 |
| 4 | | OT | Conversion Code Only | | D D & L INC | 742 | 572 | | 0 | |
| 5 | 07/28/1998 | W | Warranty Deed | | | | | $15,000.00 | 9879302 | 2033895 |
| 6 | 06/26/1998 | W | Warranty Deed | | | | | $9,000.00 | 9836302 | 2031556 |
Payout Agreement
| No payout information available.. |