Property
Account |
Property ID: | 37854 | Abbreviated Legal Description: | MOUNTAIN PARK BLOCK 13 LOT 12-13, 0.2000 ACRES |
Geographic ID: | 271614700285 | Agent Code: | |
Type: | Real | | |
Tax Area: | 33 - 228 F9 H1 WD5 | Land Use Code | 19 |
Open Space: | N | DFL | N |
Historic Property: | N | Remodel Property: | N |
Multi-Family Redevelopment: | N | | |
Township: | 27N | Section: | 14 |
Range: | 16EWM | Legal Acres: | 0.2000 |
Location |
Address: | 23300 LAKE WENATCHEE HWY LAKE WENATCHEE, WA 98826 | Mapsco: | |
Neighborhood: | Cycle 3 Lake Wen/Plain div 6 RES | Map ID: | 3LAKP06R01 |
Neighborhood CD: | 3LAKP06R01 |
Owner |
Name: | HAWKINS WYNDEN S & JARED | Owner ID: | 122139 |
Mailing Address: | 7724 EARL AVE NW SEATTLE, WA 98117 | % Ownership: | % |
| | Exemptions: | |
Pay Tax Due
Select the appropriate checkbox next to the year to be paid. Multiple years may be selected.
*Convenience Fee not included
Taxes and Assessment Details
Values
(+) Improvement Homesite Value: | + | $0 | |
(+) Improvement Non-Homesite Value: | + | $256,695 | |
(+) Land Homesite Value: | + | $0 | |
(+) Land Non-Homesite Value: | + | $161,568 | |
(+) Curr Use (HS): | + | $0 | $0 |
(+) Curr Use (NHS): | + | $0 | $0 |
| | -------------------------- | |
(=) Market Value: | = | $418,263 | |
(–) Productivity Loss: | – | $0 | |
| | -------------------------- | |
(=) Subtotal: | = | $418,263 | |
(+) Senior Appraised Value: | + | $0 | |
(+) Non-Senior Appraised Value: | + | $418,263 | |
| | -------------------------- | |
(=) Total Appraised Value: | = | $418,263 | |
(–) Senior Exemption Loss: | – | $0 | |
(–) Exemption Loss: | – | $0 | |
| | -------------------------- | |
(=) Taxable Value: | = | $418,263 | |
Taxing Jurisdiction
Owner: | HAWKINS WYNDEN S & JARED | | |
% Ownership: | 100.0000000000% | | |
Total Value: | N/A | | |
Tax Area: | 33 - 228 F9 H1 WD5 |
110001 | County Road General | N/A | N/A | N/A | N/A | | |
010170 | Chelan County | N/A | N/A | N/A | N/A | | |
155001 | Veteran's Relief | N/A | N/A | N/A | N/A | | |
160001 | Mental Health | N/A | N/A | N/A | N/A | | |
656901 | Fire No 9 General | N/A | N/A | N/A | N/A | | |
692101 | Hospital No 1 General | N/A | N/A | N/A | N/A | | |
654175 | Cascade SD 228 Cap Projects | N/A | N/A | N/A | N/A | | |
652001 | State School Refund | N/A | N/A | N/A | N/A | | |
652003 | State School 2 | N/A | N/A | N/A | N/A | | |
652005 | State School | N/A | N/A | N/A | N/A | | |
652025 | State School 2 Refund | N/A | N/A | N/A | N/A | | |
107001 | Flood Control Zone | N/A | N/A | N/A | N/A | | |
692110 | Hospital No 1 Bond | N/A | N/A | N/A | N/A | | |
692150 | Hospital No 1 EMS | N/A | N/A | N/A | N/A | | |
644001 | Regional Library | N/A | N/A | N/A | N/A | | |
671101 | Port General | N/A | N/A | N/A | N/A | | |
654161 | Cascade SD 228 General | N/A | N/A | N/A | N/A | | |
654170 | Cascade SD 228 Bond | N/A | N/A | N/A | N/A | | |
| Total Tax Rate: | N/A | | | | | |
| | | | Taxes w/Current Exemptions: | N/A | | |
| | | | Taxes w/o Exemptions: | N/A | | |
Improvement / Building
Improvement #1: | RESIDENTIAL | State Code: | 19 | 984.0 sqft | Value: | $245,265 |
Exterior Wall: | Plywood or Hrdbrd | Fireplace: | Free Standing | Heating/Cooling: | Baseboard Panel | Number of Bathrooms: | 1 | Number of Bedrooms: | 3 |   |   |
|
| Type | Description | Class CD | Sub Class CD | Year Built | Area |
| MA | Main | FAIR | 1.5 ST FIN | 1978 | 984.0 |
| DECK | Open Wood Deck | AVERAGE | * | 1978 | 286.0 |
| PP-OPEN | Open Concrete Porch | AVERAGE | * | 1978 | 80.0 |
| DECK | Open Wood Deck | AVERAGE | * | 1978 | 80.0 |
Improvement #2: | RESIDENTIAL | State Code: | 19 | 0.0 sqft | Value: | $9,119 |
| Type | Description | Class CD | Sub Class CD | Year Built | Area |
| GP-BLD | Pole Type Garage/Bldg | AVERAGE | 1.5 ST FIN | 1978 | 190.0 |
| DECK | Open Wood Deck | AVERAGE | * | 1978 | 120.0 |
| DECK | Open Wood Deck | AVERAGE | * | 1978 | 80.0 |
Improvement #3: | RESIDENTIAL | State Code: | 19 | 0.0 sqft | Value: | $924 |
| Type | Description | Class CD | Sub Class CD | Year Built | Area |
| CP-S | Carport/Patio Cover Shed Roof | FAIR | 1 STY | 1978 | 64.0 |
Improvement #4: | RESIDENTIAL | State Code: | 19 | 0.0 sqft | Value: | $1,387 |
| Type | Description | Class CD | Sub Class CD | Year Built | Area |
| CP-S | Carport/Patio Cover Shed Roof | FAIR | 1 STY | 1978 | 96.0 |
Sketch
No sketches available for this property. |
Property Image
Land
1 | SV 90K | SITE VALUE $90,000 | 0.2000 | 8500.00 | 0.00 | 0.00 | 1.00 | $161,568 | $0 |
Roll Value History
2025 | N/A | N/A | N/A | N/A | N/A |
2024 | $382,534 | $96,390 | $0 | $478,924 | $478,924 |
2023 | $217,287 | $143,325 | $0 | $360,612 | $360,612 |
2022 | $231,652 | $112,572 | $0 | $344,224 | $344,224 |
2021 | $161,793 | $95,400 | $0 | $257,193 | $257,193 |
2020 | $206,665 | $71,820 | $0 | $278,485 | $278,485 |
2019 | $165,539 | $87,552 | $0 | $253,091 | $253,091 |
2018 | $158,622 | $77,958 | $0 | $236,580 | $236,580 |
2017 | $160,817 | $44,091 | $0 | $204,908 | $204,908 |
2016 | $118,270 | $40,986 | $0 | $159,256 | $159,256 |
2015 | $113,541 | $42,480 | $0 | $156,021 | $156,021 |
2014 | $85,975 | $48,600 | $0 | $134,575 | $134,575 |
2013 | $84,323 | $58,500 | $0 | $142,823 | $142,823 |
2012 | $70,530 | $85,500 | $0 | $156,030 | $156,030 |
2011 | $66,050 | $76,500 | $0 | $142,550 | $142,550 |
2010 | $85,664 | $81,000 | $0 | $166,664 | $166,664 |
2009 | $116,364 | $90,000 | $0 | $206,364 | $206,364 |
2008 | $116,364 | $90,000 | $0 | $206,364 | $206,364 |
2007 | $116,364 | $90,000 | $0 | $206,364 | $206,364 |
2006 | $29,382 | $22,500 | $0 | $51,882 | $51,882 |
Deed and Sales History
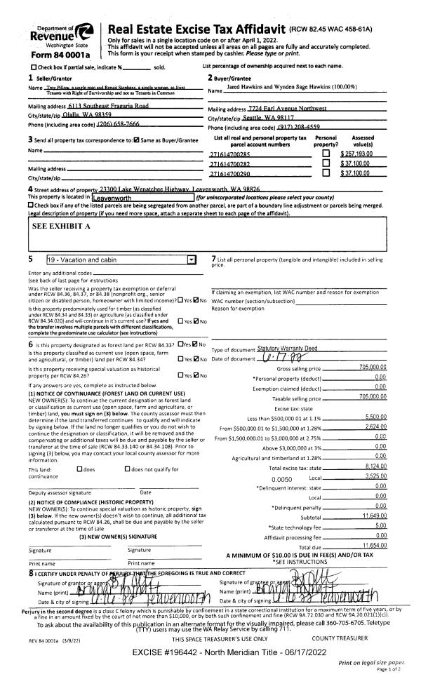
1 | 06/17/2022 | SWD | Statutory Warranty Deed | PILLOW TROY & RENAIT STEPHENS | HAWKINS WYNDEN S & JARED | | | $705,000.00 | 196442 | 2568971 |
  | |
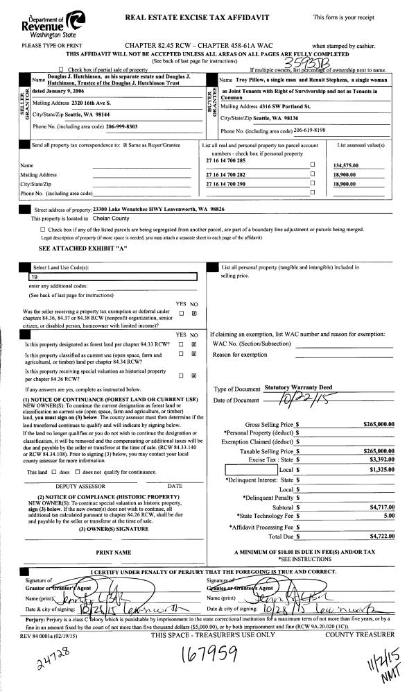
2 | 11/02/2015 | SWD | Statutory Warranty Deed | HUTCHINSON TRT DOUGLAS | PILLOW TROY & RENAIT STEPHENS | | | $265,000.00 | 167959 | 2427716 |
  | |
3 | 03/21/2006 | SWD | Statutory Warranty Deed | | HUTCHINSON TRT DOUGLAS | | | | 0 | 2223076 |
4 | 08/19/2005 | SWD | Statutory Warranty Deed | | DOUGLAS J HUTCHINSON | | | | 0 | 2207156 |
5 | 08/05/2005 | O | Other | NILSEN ROBERT | NILSEN ROBERT | | | | 0 | 2206082 |
6 | 09/08/2005 | Q | Quit Claim Deed | | ROBERT/JANICE NILSEN | | | | 0 | 2072240 |
7 | 04/05/1996 | O | Other | | ROBERT A NILSEN | 1062 | 2050 | | 0 | |
8 | 09/01/1989 | SWD | Statutory Warranty Deed | PAXMAN CALVIN | NILSEN ROBERT A | 916 | 158 | | 0 | |
9 | 05/22/1967 | SWD | Statutory Warranty Deed | | WARREN C PHILLIPS | 682 | 180 | | 0 | |
10 | 08/19/2005 | SWD | Statutory Warranty Deed | | | | | $225,000.00 | 12957102 | 2207156 |
11 | 04/10/2000 | Q | Quit Claim Deed | | | | | | 10550400 | 2072240 |
Payout Agreement
No payout information available.. |