Property
Account |
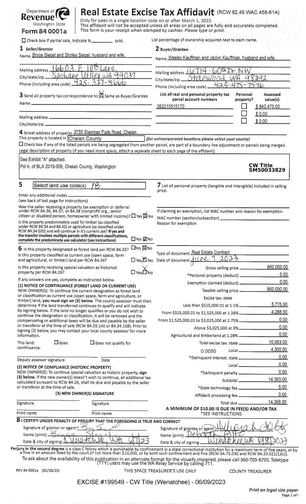
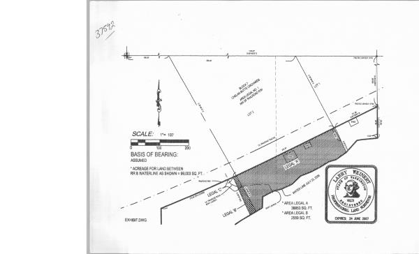
Property ID: | 37592 | Abbreviated Legal Description: | CHELAN BUTTE ORCHARDS BLOCK 7 LOT 1 LOT A BLA 2019-009 PT S OF RR 1.2400 ACRES |
Geographic ID: | 262210515170 | Agent Code: | |
Type: | Real | | |
Tax Area: | 38 - 129 F8 CD4 H2 | Land Use Code | 18 |
Open Space: | N | DFL | N |
Historic Property: | N | Remodel Property: | N |
Multi-Family Redevelopment: | N | | |
Township: | 26N | Section: | 10 |
Range: | 22EWM | Legal Acres: | 1.2400 |
Location |
Address: | 3755 STAYMAN FLATS RD CHELAN, WA 98816 | Mapsco: | |
Neighborhood: | Cycle 4 riverfront div 1 RES | Map ID: | 4RIVR01R01 |
Neighborhood CD: | 4RIVR01R01 |
Owner |
Name: | KAUFFMAN WESLEY & JACLYN | Owner ID: | 124710 |
Mailing Address: | 16714 60TH DR NW STANWOOD, WA 98292 | % Ownership: | % |
| | Exemptions: | |
Pay Tax Due
Select the appropriate checkbox next to the year to be paid. Multiple years may be selected.
*Convenience Fee not included
Taxes and Assessment Details
Values
(+) Improvement Homesite Value: | + | $0 | |
(+) Improvement Non-Homesite Value: | + | $611,523 | |
(+) Land Homesite Value: | + | $0 | |
(+) Land Non-Homesite Value: | + | $353,360 | |
(+) Curr Use (HS): | + | $0 | $0 |
(+) Curr Use (NHS): | + | $0 | $0 |
| | -------------------------- | |
(=) Market Value: | = | $964,883 | |
(–) Productivity Loss: | – | $0 | |
| | -------------------------- | |
(=) Subtotal: | = | $964,883 | |
(+) Senior Appraised Value: | + | $0 | |
(+) Non-Senior Appraised Value: | + | $964,883 | |
| | -------------------------- | |
(=) Total Appraised Value: | = | $964,883 | |
(–) Senior Exemption Loss: | – | $0 | |
(–) Exemption Loss: | – | $0 | |
| | -------------------------- | |
(=) Taxable Value: | = | $964,883 | |
Taxing Jurisdiction
Owner: | KAUFFMAN WESLEY & JACLYN | | |
% Ownership: | 100.0000000000% | | |
Total Value: | N/A | | |
Tax Area: | 38 - 129 F8 CD4 H2 |
110001 | County Road General | N/A | N/A | N/A | N/A | | |
010170 | Chelan County | N/A | N/A | N/A | N/A | | |
155001 | Veteran's Relief | N/A | N/A | N/A | N/A | | |
160001 | Mental Health | N/A | N/A | N/A | N/A | | |
657401 | Cemetery No 4 | N/A | N/A | N/A | N/A | | |
656801 | Fire No 8 General | N/A | N/A | N/A | N/A | | |
107001 | Flood Control Zone | N/A | N/A | N/A | N/A | | |
654100 | Lake Chelan SD 129 General | N/A | N/A | N/A | N/A | | |
654115 | Lake Chelan SD 129 Capital Projects | N/A | N/A | N/A | N/A | | |
652001 | State School Refund | N/A | N/A | N/A | N/A | | |
652003 | State School 2 | N/A | N/A | N/A | N/A | | |
652005 | State School | N/A | N/A | N/A | N/A | | |
652025 | State School 2 Refund | N/A | N/A | N/A | N/A | | |
656810 | Fire No 8 Bond | N/A | N/A | N/A | N/A | | |
692201 | Hospital No 2 General | N/A | N/A | N/A | N/A | | |
692210 | Hospital No 2 Bond | N/A | N/A | N/A | N/A | | |
692260 | Hospital No 2 EMS | N/A | N/A | N/A | N/A | | |
644001 | Regional Library | N/A | N/A | N/A | N/A | | |
671101 | Port General | N/A | N/A | N/A | N/A | | |
| Total Tax Rate: | N/A | | | | | |
| | | | Taxes w/Current Exemptions: | N/A | | |
| | | | Taxes w/o Exemptions: | N/A | | |
Improvement / Building
Improvement #1: | RESIDENTIAL | State Code: | 11 | 1380.0 sqft | Value: | $609,485 |
Exterior Wall: | Plywood or Hrdbrd | Fireplace: | Single 1 Story | Heating/Cooling: | Heat Pump | Number of Bathrooms: | 3 | Number of Bedrooms: | 2 |   |   |
|
| Type | Description | Class CD | Sub Class CD | Year Built | Area |
| MA | Main | AVERAGE | 2 STY | 2010 | 1380.0 |
| GAR-BI | Built-In Garage | AVERAGE | 2 STY | 2010 | 336.0 |
| DECK | Open Wood Deck | AVERAGE | | 2010 | 432.0 |
| CP-S | Carport/Patio Cover Shed Roof | AVERAGE | 1 STY | 2010 | 224.0 |
Improvement #2: | RESIDENTIAL | State Code: | 11 | 0.0 sqft | Value: | $2,038 |
Sketch
Property Image
Land
1 | RES 10K | RESIDUAL $10,000/A | 0.2400 | 10454.40 | 0.00 | 0.00 | 1.00 | $3,360 | $0 |
2 | SV 250K | SITE VALUE $250,000 | 1.0000 | 43560.00 | 0.00 | 0.00 | 1.00 | $350,000 | $0 |
Roll Value History
2025 | N/A | N/A | N/A | N/A | N/A |
2024 | $505,993 | $353,360 | $0 | $859,353 | $859,353 |
2023 | $384,750 | $353,360 | $0 | $738,110 | $738,110 |
2022 | $289,115 | $353,360 | $0 | $642,475 | $642,475 |
2021 | $197,749 | $300,356 | $0 | $498,105 | $498,105 |
2020 | $210,150 | $118,628 | $0 | $328,778 | $328,778 |
2019 | $255,219 | $128,724 | $0 | $383,943 | $383,943 |
2018 | $266,810 | $127,653 | $0 | $394,463 | $394,463 |
2017 | $325,096 | $105,126 | $0 | $430,222 | $430,222 |
2016 | $392,129 | $105,126 | $0 | $497,255 | $497,255 |
2015 | $232,768 | $109,268 | $0 | $342,036 | $342,036 |
2014 | $202,362 | $109,268 | $0 | $311,630 | $311,630 |
2013 | $157,740 | $97,561 | $0 | $255,301 | $255,301 |
2012 | $119,665 | $97,561 | $0 | $217,226 | $217,226 |
2011 | $191,239 | $97,561 | $0 | $288,800 | $288,800 |
2010 | $7,525 | $97,561 | $0 | $105,086 | $105,086 |
2009 | $4,300 | $130,081 | $0 | $134,381 | $134,381 |
2008 | $4,300 | $130,081 | $0 | $134,381 | $134,381 |
2007 | $4,300 | $85,027 | $0 | $89,327 | $89,327 |
2006 | $4,300 | $85,027 | $0 | $89,327 | $89,327 |
Deed and Sales History
1 | 06/09/2023 | C | Real Estate Contract | SIEGEL BRYCE & SHIRLEY | KAUFFMAN WESLEY & JACLYN | | | $860,000.00 | 199549 | 2582420 |
2 | 02/01/2007 | Q | Quit Claim Deed | SCHAPLOW ED & DEBRA O'SELL | SIEGEL BRYCE & SHIRLEY | | | | 0 | 2247878 |
3 | 08/28/2003 | W | Warranty Deed | | ED SCHAPLOW ETAL | | | | 0 | 2153572 |
4 | 12/31/2002 | F | Foreclosure Deed | | CHIEF WENATCHEE | | | | 0 | 2132574 |
5 | 08/25/2003 | REF | Conversion Code Only | SURVEY | | 44 | 61 | | 0 | |
6 | 02/01/2007 | Q | Quit Claim Deed | | | | | | 13722900 | 2247878 |
7 | 08/29/2003 | W | Warranty Deed | | | | | $220,000.00 | 11956802 | 2153572 |
  | |
Payout Agreement
No payout information available.. |