Property
Account |
Property ID: | 37177 | Abbreviated Legal Description: | ENTIAT VALLEY PHASE I LOT 24B 0.4700 ACRES |
Geographic ID: | 262029553242 | Agent Code: | |
Type: | Real | | |
Tax Area: | 20 - 127 F8 CD1 | Land Use Code | 18 |
Open Space: | N | DFL | N |
Historic Property: | N | Remodel Property: | N |
Multi-Family Redevelopment: | N | | |
Township: | 26N | Section: | 29 |
Range: | 20EWM | Legal Acres: | 0.4700 |
Location |
Address: | UNASSIGNED ENTIAT, WA 98822 | Mapsco: | |
Neighborhood: | Cycle 2 Entiat River waterfront south Res Div 1 | Map ID: | 2ERWS01R01 |
Neighborhood CD: | 2ERWS01R01 |
Owner |
Name: | COPNER BRUCE W & HEATHER A | Owner ID: | 112990 |
Mailing Address: | 45 SUNSHINE LN ENTIAT, WA 98822 | % Ownership: | % |
| | Exemptions: | |
Pay Tax Due
There is currently No Amount Due on this property.
Taxes and Assessment Details
Values
(+) Improvement Homesite Value: | + | $0 | |
(+) Improvement Non-Homesite Value: | + | $0 | |
(+) Land Homesite Value: | + | $0 | |
(+) Land Non-Homesite Value: | + | $106,150 | |
(+) Curr Use (HS): | + | $0 | $0 |
(+) Curr Use (NHS): | + | $0 | $0 |
| | -------------------------- | |
(=) Market Value: | = | $106,150 | |
(–) Productivity Loss: | – | $0 | |
| | -------------------------- | |
(=) Subtotal: | = | $106,150 | |
(+) Senior Appraised Value: | + | $0 | |
(+) Non-Senior Appraised Value: | + | $106,150 | |
| | -------------------------- | |
(=) Total Appraised Value: | = | $106,150 | |
(–) Senior Exemption Loss: | – | $0 | |
(–) Exemption Loss: | – | $0 | |
| | -------------------------- | |
(=) Taxable Value: | = | $106,150 | |
Taxing Jurisdiction
Owner: | COPNER BRUCE W & HEATHER A | | |
% Ownership: | 100.0000000000% | | |
Total Value: | N/A | | |
Tax Area: | 20 - 127 F8 CD1 |
110001 | County Road General | N/A | N/A | N/A | N/A | | |
010170 | Chelan County | N/A | N/A | N/A | N/A | | |
155001 | Veteran's Relief | N/A | N/A | N/A | N/A | | |
160001 | Mental Health | N/A | N/A | N/A | N/A | | |
657101 | Cemetery No 1 | N/A | N/A | N/A | N/A | | |
656801 | Fire No 8 General | N/A | N/A | N/A | N/A | | |
652003 | State School 2 | N/A | N/A | N/A | N/A | | |
652005 | State School | N/A | N/A | N/A | N/A | | |
652025 | State School 2 Refund | N/A | N/A | N/A | N/A | | |
107001 | Flood Control Zone | N/A | N/A | N/A | N/A | | |
656810 | Fire No 8 Bond | N/A | N/A | N/A | N/A | | |
644001 | Regional Library | N/A | N/A | N/A | N/A | | |
671101 | Port General | N/A | N/A | N/A | N/A | | |
654081 | Entiat SD 127 General | N/A | N/A | N/A | N/A | | |
654090 | Entiat SD 127 Bond | N/A | N/A | N/A | N/A | | |
652001 | State School Refund | N/A | N/A | N/A | N/A | | |
| Total Tax Rate: | N/A | | | | | |
| | | | Taxes w/Current Exemptions: | N/A | | |
| | | | Taxes w/o Exemptions: | N/A | | |
Improvement / Building
Sketch
No sketches available for this property. |
Property Image
Land
1 | SV 55K | SITE VALUE $55,000 | 0.4700 | 20473.20 | 0.00 | 0.00 | 1.00 | $106,150 | $0 |
Roll Value History
2025 | N/A | N/A | N/A | N/A | N/A |
2024 | $0 | $106,150 | $0 | $106,150 | $106,150 |
2023 | $0 | $106,150 | $0 | $106,150 | $106,150 |
2022 | $0 | $70,950 | $0 | $70,950 | $70,950 |
2021 | $0 | $70,950 | $0 | $70,950 | $70,950 |
2020 | $0 | $70,950 | $0 | $70,950 | $70,950 |
2019 | $0 | $70,400 | $0 | $70,400 | $70,400 |
2018 | $0 | $59,400 | $0 | $59,400 | $59,400 |
2017 | $0 | $59,400 | $0 | $59,400 | $59,400 |
2016 | $0 | $59,400 | $0 | $59,400 | $59,400 |
2015 | $0 | $59,400 | $0 | $59,400 | $59,400 |
2014 | $0 | $59,400 | $0 | $59,400 | $59,400 |
2013 | $0 | $57,750 | $0 | $57,750 | $57,750 |
2012 | $0 | $55,000 | $0 | $55,000 | $55,000 |
2011 | $0 | $55,000 | $0 | $55,000 | $55,000 |
2010 | $0 | $55,000 | $0 | $55,000 | $55,000 |
2009 | $0 | $55,000 | $0 | $55,000 | $55,000 |
2008 | $0 | $55,000 | $0 | $55,000 | $55,000 |
2007 | $0 | $55,000 | $0 | $55,000 | $55,000 |
2006 | $0 | $55,000 | $0 | $55,000 | $55,000 |
Deed and Sales History
1 | 10/26/2023 | WFD | Warranty Fulfillment Deed | COPNER BRUCE W & HEATHER A | DAHL DAVID W | | | | 0 | 2587855 |
2 | 05/26/2023 | SWD | Statutory Warranty Deed | DAHL DAVID W | COPNER BRUCE W & HEATHER A | | | $340,000.00 | 199413 | 2581913 |
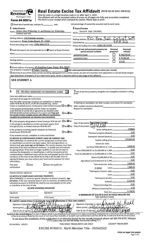
3 | 05/04/2022 | C | Real Estate Contract | WITHERIDGE ROBERT A JR & BRIENNE J | DAHL DAVID W | | | $319,000.00 | 195913 | 2566602 |
  | |
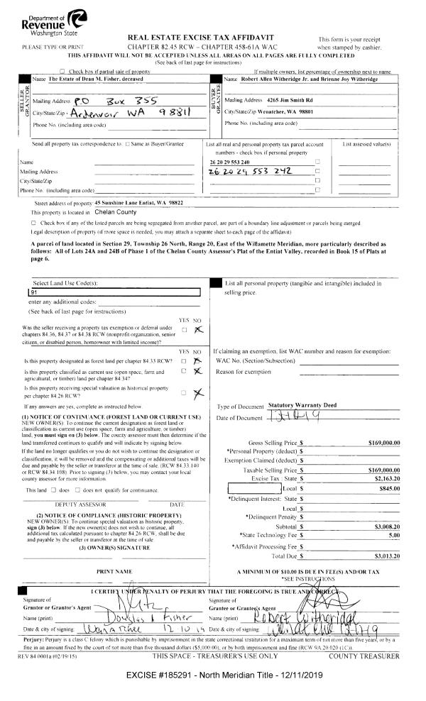
4 | 12/11/2019 | SWD | Statutory Warranty Deed | FISHER DEAN M ETAL | WITHERIDGE ROBERT A JR & BRIENNE J | | | $169,000.00 | 185291 | 2507703 |
  | |
5 | 01/09/2018 | AFF | Affidavit | FISHER IZETTA R | FISHER DEAN M | | | | 0 | 2471448 |
6 | 01/09/2018 | DC | Death Certificate | FISHER IZETTA R | PUBLIC DEATH_CERT | | | | 0 | 2471448 |
7 | 11/14/2002 | Q | Quit Claim Deed | OLSON DONALD | FRIENDSHIP SERV | | | | 0 | 2129338 |
8 | 07/20/1989 | CORR DEED | Correction Deed | RADONICH RICHAR | FISHER DEAN M | 913 | 1824 | | 0 | |
9 | 05/22/1989 | SWD | Statutory Warranty Deed | RADONICH RICHAR | FISHER DEAN M | 910 | 2029 | | 0 | |
10 | 09/03/1965 | SWD | Statutory Warranty Deed | | FISHER DEAN M ETAL | 673 | 438 | | 0 | |
11 | 11/14/2002 | Q | Quit Claim Deed | | | | | | 11605200 | 2129338 |
Payout Agreement
No payout information available.. |