Property
Account |
Property ID: | 37176 | Abbreviated Legal Description: | ENTIAT VALLEY PHASE I LOT 24A 1.5400 ACRES |
Geographic ID: | 262029553240 | Agent Code: | |
Type: | Real | | |
Tax Area: | 20 - 127 F8 CD1 | Land Use Code | 18 |
Open Space: | N | DFL | N |
Historic Property: | N | Remodel Property: | N |
Multi-Family Redevelopment: | N | | |
Township: | 26N | Section: | 29 |
Range: | 20EWM | Legal Acres: | 1.5400 |
Location |
Address: | 45 SUNSHINE LN ENTIAT, WA 98822 | Mapsco: | |
Neighborhood: | Cycle 2 Entiat River waterfront south Res Div 1 | Map ID: | 2ERWS01R01 |
Neighborhood CD: | 2ERWS01R01 |
Owner |
Name: | COPNER BRUCE W & HEATHER A | Owner ID: | 112990 |
Mailing Address: | 45 SUNSHINE LN ENTIAT, WA 98822 | % Ownership: | % |
| | Exemptions: | |
Pay Tax Due
There is currently No Amount Due on this property.
Taxes and Assessment Details
Values
(+) Improvement Homesite Value: | + | $0 | |
(+) Improvement Non-Homesite Value: | + | $0 | |
(+) Land Homesite Value: | + | $0 | |
(+) Land Non-Homesite Value: | + | $116,616 | |
(+) Curr Use (HS): | + | $0 | $0 |
(+) Curr Use (NHS): | + | $0 | $0 |
| | -------------------------- | |
(=) Market Value: | = | $116,616 | |
(–) Productivity Loss: | – | $0 | |
| | -------------------------- | |
(=) Subtotal: | = | $116,616 | |
(+) Senior Appraised Value: | + | $0 | |
(+) Non-Senior Appraised Value: | + | $116,616 | |
| | -------------------------- | |
(=) Total Appraised Value: | = | $116,616 | |
(–) Senior Exemption Loss: | – | $0 | |
(–) Exemption Loss: | – | $0 | |
| | -------------------------- | |
(=) Taxable Value: | = | $116,616 | |
Taxing Jurisdiction
Owner: | COPNER BRUCE W & HEATHER A | | |
% Ownership: | 100.0000000000% | | |
Total Value: | $116,616 | | |
Tax Area: | 20 - 127 F8 CD1 |
110001 | County Road General | 0.7994434437 | $116,616 | $116,616 | $93.23 | | |
010170 | Chelan County | 0.7334053198 | $116,616 | $116,616 | $85.53 | | |
155001 | Veteran's Relief | 0.0086008201 | $116,616 | $116,616 | $1.00 | | |
160001 | Mental Health | 0.0189723974 | $116,616 | $116,616 | $2.21 | | |
657101 | Cemetery No 1 | 0.0383759621 | $116,616 | $116,616 | $4.48 | | |
656801 | Fire No 8 General | 0.6175660799 | $116,616 | $116,616 | $72.02 | | |
652003 | State School 2 | 0.8917891157 | $116,616 | $116,616 | $104.00 | | |
652005 | State School | 1.6674243773 | $116,616 | $116,616 | $194.45 | | |
652025 | State School 2 Refund | 0.0000148770 | $116,616 | $116,616 | $0.00 | | |
107001 | Flood Control Zone | 0.0408306198 | $116,616 | $116,616 | $4.76 | | |
656810 | Fire No 8 Bond | 0.1866089101 | $116,616 | $116,616 | $21.76 | | |
644001 | Regional Library | 0.2864488554 | $116,616 | $116,616 | $33.40 | | |
671101 | Port General | 0.1756188309 | $116,616 | $116,616 | $20.48 | | |
654081 | Entiat SD 127 General | 1.0001033913 | $116,616 | $116,616 | $116.63 | | |
654090 | Entiat SD 127 Bond | 1.6962995765 | $116,616 | $116,616 | $197.82 | | |
652001 | State School Refund | 0.0000273969 | $116,616 | $116,616 | $0.00 | | |
| Total Tax Rate: | 8.1615299739 | | | | | |
| | | | Taxes w/Current Exemptions: | $951.77 | | |
| | | | Taxes w/o Exemptions: | $951.77 | | |
Improvement / Building
Sketch
No sketches available for this property. |
Property Image
Land
1 | RES 10K | RESIDUAL $10,000/A | 0.5400 | 23522.40 | 0.00 | 0.00 | 1.00 | $6,966 | $0 |
2 | SV 85K | SITE VALUE $85,000 | 1.0000 | 43560.00 | 0.00 | 0.00 | 1.00 | $109,650 | $0 |
Roll Value History
2025 | N/A | N/A | N/A | N/A | N/A |
2024 | $0 | $174,472 | $0 | $174,472 | $174,472 |
2023 | $0 | $174,472 | $0 | $174,472 | $174,472 |
2022 | $0 | $116,616 | $0 | $116,616 | $116,616 |
2021 | $32,462 | $116,616 | $0 | $149,078 | $149,078 |
2020 | $35,103 | $116,616 | $0 | $151,719 | $151,719 |
2019 | $30,189 | $115,712 | $0 | $145,901 | $145,901 |
2018 | $30,127 | $97,632 | $0 | $127,759 | $127,759 |
2017 | $13,620 | $97,632 | $0 | $111,252 | $111,252 |
2016 | $14,397 | $97,632 | $0 | $112,029 | $112,029 |
2015 | $15,174 | $97,632 | $0 | $112,806 | $112,806 |
2014 | $14,791 | $97,632 | $0 | $112,423 | $112,423 |
2013 | $16,053 | $94,920 | $0 | $110,973 | $110,973 |
2012 | $20,616 | $56,350 | $0 | $76,966 | $76,966 |
2011 | $21,494 | $56,350 | $0 | $77,844 | $77,844 |
2010 | $23,567 | $56,350 | $0 | $79,917 | $79,917 |
2009 | $11,899 | $56,350 | $0 | $68,249 | $68,249 |
2008 | $11,899 | $56,350 | $0 | $68,249 | $68,249 |
2007 | $11,899 | $56,350 | $0 | $68,249 | $68,249 |
2006 | $11,899 | $56,350 | $0 | $68,249 | $68,249 |
Deed and Sales History
1 | 05/26/2023 | SWD | Statutory Warranty Deed | DAHL DAVID W | COPNER BRUCE W & HEATHER A | | | $340,000.00 | 199413 | 2581913 |
2 | 10/26/2023 | WFD | Warranty Fulfillment Deed | DAHL DAVID W | DAHL DAVID W | | | | 0 | 2587855 |
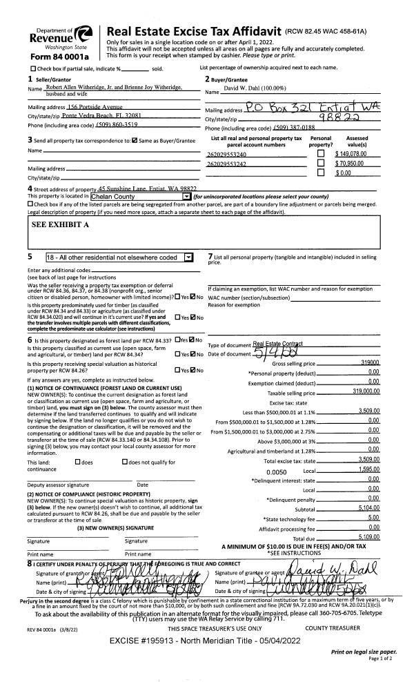
3 | 05/04/2022 | C | Real Estate Contract | WITHERIDGE ROBERT A JR & BRIENNE J | DAHL DAVID W | | | $319,000.00 | 195913 | 2566602 |
  | |
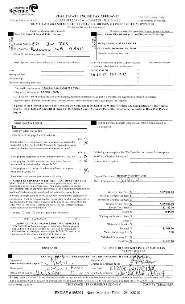
4 | 12/11/2019 | SWD | Statutory Warranty Deed | FISHER DEAN M ETAL | WITHERIDGE ROBERT A JR & BRIENNE J | | | $169,000.00 | 185291 | 2507703 |
  | |
5 | 08/01/1991 | Q | Quit Claim Deed | RADONICH RICHAR | FISHER DEAN M | 952 | 2342 | | 0 | |
6 | 08/01/1991 | Q | Quit Claim Deed | OLSON DONALD | FISHER DEAN M | 952 | 2340 | | 0 | |
7 | 09/03/1965 | SWD | Statutory Warranty Deed | | FISHER DEAN M ETAL | 673 | 438 | | 0 | |
Payout Agreement
No payout information available.. |