Property
Account |
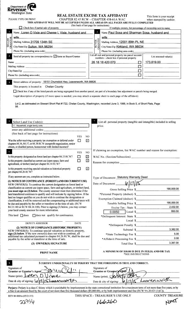
Property ID: | 36657 | Abbreviated Legal Description: | T 26N R 18EWM S 18 LOT 2 SP 1722 AMENDED SP 1602 NWSE 3.1100 ACRES |
Geographic ID: | 261818420070 | Agent Code: | |
Type: | Real | | |
Tax Area: | 31 - 228 F3 H1 | Land Use Code | 11 |
Open Space: | N | DFL | N |
Historic Property: | N | Remodel Property: | N |
Multi-Family Redevelopment: | N | | |
Township: | 26N | Section: | 18 |
Range: | 18EWM | Legal Acres: | 3.1100 |
Location |
Address: | 18151 CHUMSTICK HWY LEAVENWORTH, WA 98826 | Mapsco: | |
Neighborhood: | Cycle 3 Chumstick div 1 RES | Map ID: | 3CHMS01R01 |
Neighborhood CD: | 3CHMS01R01 |
Owner |
Name: | SOSA PAULO G & SHARMAN M | Owner ID: | 91826 |
Mailing Address: | 12001 89TH PL NE KIRKLAND, WA 98034 | % Ownership: | % |
| | Exemptions: | |
Pay Tax Due
Select the appropriate checkbox next to the year to be paid. Multiple years may be selected.
*Convenience Fee not included
Taxes and Assessment Details
Values
(+) Improvement Homesite Value: | + | $0 | |
(+) Improvement Non-Homesite Value: | + | $84,497 | |
(+) Land Homesite Value: | + | $0 | |
(+) Land Non-Homesite Value: | + | $119,756 | |
(+) Curr Use (HS): | + | $0 | $0 |
(+) Curr Use (NHS): | + | $0 | $0 |
| | -------------------------- | |
(=) Market Value: | = | $204,253 | |
(–) Productivity Loss: | – | $0 | |
| | -------------------------- | |
(=) Subtotal: | = | $204,253 | |
(+) Senior Appraised Value: | + | $0 | |
(+) Non-Senior Appraised Value: | + | $204,253 | |
| | -------------------------- | |
(=) Total Appraised Value: | = | $204,253 | |
(–) Senior Exemption Loss: | – | $0 | |
(–) Exemption Loss: | – | $0 | |
| | -------------------------- | |
(=) Taxable Value: | = | $204,253 | |
Taxing Jurisdiction
Owner: | SOSA PAULO G & SHARMAN M | | |
% Ownership: | 100.0000000000% | | |
Total Value: | $204,253 | | |
Tax Area: | 31 - 228 F3 H1 |
110001 | County Road General | 0.9380778830 | $204,253 | $204,253 | $191.61 | | |
010170 | Chelan County | 0.8743969623 | $204,253 | $204,253 | $178.60 | | |
155001 | Veteran's Relief | 0.0102122208 | $204,253 | $204,253 | $2.09 | | |
160001 | Mental Health | 0.0225906703 | $204,253 | $204,253 | $4.61 | | |
656301 | Fire No 3 General | 0.7642751322 | $204,253 | $204,253 | $156.11 | | |
692101 | Hospital No 1 General | 0.1694392745 | $204,253 | $204,253 | $34.61 | | |
654175 | Cascade SD 228 Cap Projects | 0.1418881056 | $204,253 | $204,253 | $28.98 | | |
652001 | State School Refund | 0.0000842077 | $204,253 | $204,253 | $0.02 | | |
652003 | State School 2 | 1.0302048878 | $204,253 | $204,253 | $210.42 | | |
652005 | State School | 1.9111951339 | $204,253 | $204,253 | $390.37 | | |
652025 | State School 2 Refund | 0.0000147837 | $204,253 | $204,253 | $0.00 | | |
107001 | Flood Control Zone | 0.0484449021 | $204,253 | $204,253 | $9.90 | | |
692110 | Hospital No 1 Bond | 0.1705758360 | $204,253 | $204,253 | $34.84 | | |
692150 | Hospital No 1 EMS | 0.4759073036 | $204,253 | $204,253 | $97.21 | | |
644001 | Regional Library | 0.3253660517 | $204,253 | $204,253 | $66.46 | | |
671101 | Port General | 0.2078269477 | $204,253 | $204,253 | $42.45 | | |
654161 | Cascade SD 228 General | 0.9361233505 | $204,253 | $204,253 | $191.21 | | |
654170 | Cascade SD 228 Bond | 1.2217281343 | $204,253 | $204,253 | $249.54 | | |
| Total Tax Rate: | 9.2483517877 | | | | | |
| | | | Taxes w/Current Exemptions: | $1,889.03 | | |
| | | | Taxes w/o Exemptions: | $1,889.03 | | |
Improvement / Building
Improvement #1: | RESIDENTIAL | State Code: | 11 | 704.0 sqft | Value: | $84,497 |
Exterior Wall: | Plywood or Hrdbrd | Heating/Cooling: | Baseboard Panel | Number of Bathrooms: | 1 | Number of Bedrooms: | 1 |
|
| Type | Description | Class CD | Sub Class CD | Year Built | Area |
| MA | Main | FAIR | 1 STY | 2007 | 536.0 |
| LOFT | Loft | FAIR | 1 STY | 2007 | 168.0 |
| DECK | Open Wood Deck | AVERAGE | * | 2007 | 164.0 |
Sketch
No sketches available for this property. |
Property Image
Land
1 | RES 20K | RESIDUAL $20,000/A | 2.1100 | 91911.60 | 0.00 | 0.00 | 1.00 | $41,356 | $0 |
2 | SV 80K | SITE VALUE $80,000 | 1.0000 | 43560.00 | 0.00 | 0.00 | 1.00 | $78,400 | $0 |
Roll Value History
2025 | N/A | N/A | N/A | N/A | N/A |
2024 | $85,199 | $204,074 | $0 | $289,273 | $289,273 |
2023 | $136,984 | $204,074 | $0 | $341,058 | $341,058 |
2022 | $79,168 | $234,624 | $0 | $313,792 | $313,792 |
2021 | $84,497 | $119,756 | $0 | $204,253 | $204,253 |
2020 | $84,614 | $119,756 | $0 | $204,370 | $204,370 |
2019 | $85,505 | $119,756 | $0 | $205,261 | $205,261 |
2018 | $80,094 | $109,980 | $0 | $190,074 | $190,074 |
2017 | $63,117 | $117,312 | $0 | $180,429 | $180,429 |
2016 | $64,755 | $119,756 | $0 | $184,511 | $184,511 |
2015 | $65,431 | $119,756 | $0 | $185,187 | $185,187 |
2014 | $49,175 | $124,644 | $0 | $173,819 | $173,819 |
2013 | $57,016 | $134,420 | $0 | $191,436 | $191,436 |
2012 | $57,562 | $116,090 | $0 | $173,652 | $173,652 |
2011 | $58,149 | $116,090 | $0 | $174,239 | $174,239 |
2010 | $74,823 | $112,880 | $0 | $187,703 | $187,703 |
2009 | $58,259 | $70,550 | $0 | $128,809 | $128,809 |
2008 | $52,628 | $70,550 | $0 | $123,178 | $123,178 |
2007 | $52,628 | $70,550 | $0 | $123,178 | $123,178 |
2006 | $0 | $48,440 | $0 | $48,440 | $48,440 |
Deed and Sales History
1 | 06/19/2015 | SWD | Statutory Warranty Deed | VIXIE LOREN O | SOSA PAULO G & SHARMAN M | | | $190,000.00 | 166260 | 2419994 |
2 | 04/06/2001 | W | Warranty Deed | | VIXIE LOREN O | | | | 0 | 2090880 |
3 | 03/27/1989 | Q | Quit Claim Deed | STEWART DAVID R | STEWART ALICE M | 908 | 125 | | 0 | |
4 | 02/27/1989 | W | Warranty Deed | | ERNEST E BRADSHAW | 906 | 2062 | | 0 | |
5 | 02/05/1980 | Q | Quit Claim Deed | | ALICE STEWART | 778 | 188 | | 0 | |
6 | 04/06/2001 | W | Warranty Deed | | | | | $60,000.00 | 10938900 | 2090880 |
Payout Agreement
No payout information available.. |