Property
Account |
| Property ID: | 36567 | Abbreviated Legal Description: | T 26N R 18EWM S 06 PARCEL A SS #663 1.8200 ACRES |
| Geographic ID: | 261806140200 | Agent Code: | |
| Type: | Real | | |
| Tax Area: | 29 - 228 F9 H1 | Land Use Code | 19 |
| Open Space: | N | DFL | N |
| Historic Property: | N | Remodel Property: | N |
| Multi-Family Redevelopment: | N | | |
| Township: | 26N | Section: | 06 |
| Range: | 18EWM | Legal Acres: | 1.8200 |
Location |
| Address: | 11365 SHUGART FLATS RD PLAIN, WA 98826 | Mapsco: | |
| Neighborhood: | Cycle 3 Lake Wen/Plain div 5 RES | Map ID: | 3LAKP05R01 |
| Neighborhood CD: | 3LAKP05R01 |
Owner |
| Name: | DANCS THOMAS & BRIDGET | Owner ID: | 118928 |
| Mailing Address: | 11365 SHUGART FLATS RD LEAVENWORTH, WA 98826 | % Ownership: | % |
| | | Exemptions: | |
Pay Tax Due
There is currently No Amount Due on this property.
Taxes and Assessment Details
Property Tax Information as of
04/02/2026
Click on "Statement Details" to expand or collapse a tax statement.
* Please enter a valid date ** Please enter a valid date *
Statement Details |
| | TOTAL: | $0.00 | $0.00 | $0.00 | $0.00 | $0.00 | $0.00 |
|
| | $0.00 | $0.00 | $0.00 | $0.00 | $0.00 | $0.00 |
Values
| (+) Improvement Homesite Value: | + | N/A | |
| (+) Improvement Non-Homesite Value: | + | N/A | |
| (+) Land Homesite Value: | + | N/A | |
| (+) Land Non-Homesite Value: | + | N/A | Ag / Timber Use Value |
| (+) Curr Use (HS): | + | N/A | N/A |
| (+) Curr Use (NHS): | + | N/A | N/A |
| | | -------------------------- | |
| (=) Market Value: | = | N/A | |
| (–) Productivity Loss: | – | N/A | |
| | | -------------------------- | |
| (=) Subtotal: | = | N/A | |
| (+) Senior Appraised Value: | + | N/A | |
| (+) Non-Senior Appraised Value: | + | N/A | |
| | | -------------------------- | |
| (=) Total Appraised Value: | = | N/A | |
| (–) Senior Exemption Loss: | – | N/A | |
| (–) Exemption Loss: | – | N/A | |
| | | -------------------------- | |
| (=) Taxable Value: | = | N/A | |
Taxing Jurisdiction
| Owner: | DANCS THOMAS & BRIDGET | | |
| % Ownership: | 100.0000000000% | | |
| Total Value: | N/A | | |
| Tax Area: | 29 - 228 F9 H1 |
| 110001 | County Road General | N/A | N/A | N/A | N/A | | |
| 010170 | Chelan County | N/A | N/A | N/A | N/A | | |
| 155001 | Veteran's Relief | N/A | N/A | N/A | N/A | | |
| 160001 | Mental Health | N/A | N/A | N/A | N/A | | |
| 656901 | Fire No 9 General | N/A | N/A | N/A | N/A | | |
| 692101 | Hospital No 1 General | N/A | N/A | N/A | N/A | | |
| 692110 | Hospital No 1 Bond | N/A | N/A | N/A | N/A | | |
| 644001 | Regional Library | N/A | N/A | N/A | N/A | | |
| 671101 | Port General | N/A | N/A | N/A | N/A | | |
| 654161 | Cascade SD 228 General | N/A | N/A | N/A | N/A | | |
| 654170 | Cascade SD 228 Bond | N/A | N/A | N/A | N/A | | |
| 654175 | Cascade SD 228 Cap Projects | N/A | N/A | N/A | N/A | | |
| 652001 | State School Refund | N/A | N/A | N/A | N/A | | |
| 652003 | State School 2 | N/A | N/A | N/A | N/A | | |
| 652005 | State School | N/A | N/A | N/A | N/A | | |
| 652025 | State School 2 Refund | N/A | N/A | N/A | N/A | | |
| 107001 | Flood Control Zone | N/A | N/A | N/A | N/A | | |
| | Total Tax Rate: | N/A | | | | | |
| | | | | Taxes w/Current Exemptions: | N/A | | |
| | | | | Taxes w/o Exemptions: | N/A | | |
Improvement / Building
| Improvement #1: | RESIDENTIAL | State Code: | 19 | 1368.0 sqft | Value: | N/A |
| Exterior Wall: | Plywood or Hrdbrd | Fireplace: | Free Standing | | Heating/Cooling: | Forced Air | Number of Bathrooms: | 2 | | Number of Bedrooms: | 3 |   |   |
|
| | Type | Description | Class CD | Sub Class CD | Year Built | Area |
| | MA | Main | FAIR | 1.5 ST FIN | 1983 | 1368.0 |
| | DECK | Open Wood Deck | AVERAGE | * | 1983 | 646.0 |
| | BS-UFC8 | BSMT AREA 8” CONC | FAIR | * | 1983 | 452.0 |
| | BSMT-PF | BSMT FINISH - PARTITIONED | FAIR | * | 1983 | 452.0 |
| Improvement #2: | RESIDENTIAL | State Code: | 19 | 0.0 sqft | Value: | N/A |
Sketch
| No sketches available for this property. |
Property Image
Land
| 1 | RES 10K | RESIDUAL $10,000/A | 0.8200 | 35719.20 | 0.00 | 0.00 | 1.00 | N/A | N/A |
| 2 | SV 70K | SITE VALUE $70,000 | 1.0000 | 43560.00 | 0.00 | 0.00 | 1.00 | N/A | N/A |
Roll Value History
| 2026 | N/A | N/A | N/A | N/A | N/A |
| 2025 | $266,795 | $165,002 | $0 | $431,797 | $431,797 |
| 2024 | $252,337 | $165,002 | $0 | $417,339 | $417,339 |
| 2023 | $305,212 | $153,272 | $0 | $458,484 | $458,484 |
| 2022 | $293,427 | $143,106 | $0 | $436,533 | $436,533 |
| 2021 | $193,288 | $125,902 | $0 | $319,190 | $319,190 |
| 2020 | $174,122 | $95,404 | $0 | $269,526 | $269,526 |
| 2019 | $188,454 | $82,110 | $0 | $270,564 | $270,564 |
| 2018 | $141,526 | $78,982 | $0 | $220,508 | $220,508 |
| 2017 | $95,465 | $69,598 | $0 | $165,063 | $165,063 |
| 2016 | $75,434 | $67,252 | $0 | $142,686 | $142,686 |
| 2015 | $77,300 | $67,252 | $0 | $144,552 | $144,552 |
| 2014 | $82,121 | $67,252 | $0 | $149,373 | $149,373 |
| 2013 | $89,401 | $58,650 | $0 | $148,051 | $148,051 |
| 2012 | $83,402 | $82,110 | $0 | $165,512 | $165,512 |
| 2011 | $94,816 | $78,200 | $0 | $173,016 | $173,016 |
| 2010 | $105,351 | $89,930 | $0 | $195,281 | $195,281 |
| 2009 | $90,805 | $78,200 | $0 | $169,005 | $169,005 |
| 2008 | $90,805 | $78,200 | $0 | $169,005 | $169,005 |
| 2007 | $90,805 | $78,200 | $0 | $169,005 | $169,005 |
Deed and Sales History
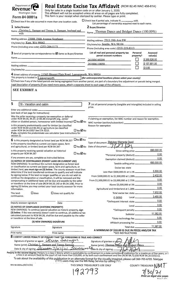
| 1 | 07/30/2021 | SWD | Statutory Warranty Deed | SAENGER CHRISTIAN L & TERESA A | DANCS THOMAS & BRIDGET | | | $690,000.00 | 192793 | 2549859 |
|   | |
| 2 | 09/22/2017 | SWD | Statutory Warranty Deed | MYERS BRET L | SAENGER CHRISTIAN L & TERESA A | | | $399,000.00 | 176090 | 2465475 |
|   | |
| 3 | 10/31/1986 | W | Warranty Deed | | MYERS BRET L | 866 | 2199 | | 0 | |
| 4 | 09/10/1987 | REF | Conversion Code Only | CHIWAWA RIVER E | THOUSAND TRAILS | 882 | 893 | | 0 | |
| 5 | 08/22/1983 | W | Warranty Deed | | JOHN D ADAMS ETAL | 814 | 1688 | | 0 | |
| 6 | | OT | Conversion Code Only | | MYERS BRET L | 805 | 939 | | 0 | |
| 7 | 01/21/1983 | W | Warranty Deed | | PACIFIC RIM GROUP INC | 803 | 1241 | | 0 | |
| 8 | 01/21/1983 | W | Warranty Deed | | BARNETT/TURLIS | 803 | 1235 | | 0 | |
| 9 | 03/07/1980 | REF | Conversion Code Only | BARNETT/TURLIS | ADAMS JOHN D | 774 | 683 | | 0 | |
| 10 | 12/29/1976 | REF | Conversion Code Only | PACIFIC RIM GRO | BARNETT/TURLIS | 739 | 840 | | 0 | |
| 11 | 02/20/1975 | REF | Conversion Code Only | CHIWAWA RIVER E | PACIFIC RIM GRO | 725 | 390 | | 0 | |
Payout Agreement
| No payout information available.. |