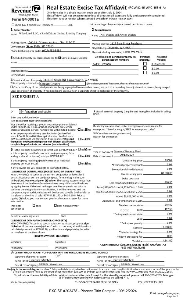
Property
Account |
| Property ID: | 34335 | Abbreviated Legal Description: | YODELIN NO 2 LOT 14 0.2800 ACRES |
| Geographic ID: | 261301976070 | Agent Code: | |
| Type: | Real | | |
| Tax Area: | 24 - 228 H1 | Land Use Code | 19 |
| Open Space: | N | DFL | N |
| Historic Property: | N | Remodel Property: | N |
| Multi-Family Redevelopment: | N | | |
| Township: | 26N | Section: | 01 |
| Range: | 13EWM | Legal Acres: | 0.2800 |
Location |
| Address: | 34323 S NASON RD STEVENS PASS, WA 98826 | Mapsco: | |
| Neighborhood: | Cycle 3 Stevens Pass div 1 RES | Map ID: | 3PASS01R01 |
| Neighborhood CD: | 3PASS01R01 |
Owner |
| Name: | USEFARA NEIL & ALYSON | Owner ID: | 128050 |
| Mailing Address: | 3125 PEAR ST SE OLYMPIA, WA 98501 | % Ownership: | % |
| | | Exemptions: | |
Pay Tax Due
There is currently No Amount Due on this property.
Taxes and Assessment Details
Values
| (+) Improvement Homesite Value: | + | N/A | |
| (+) Improvement Non-Homesite Value: | + | N/A | |
| (+) Land Homesite Value: | + | N/A | |
| (+) Land Non-Homesite Value: | + | N/A | Ag / Timber Use Value |
| (+) Curr Use (HS): | + | N/A | N/A |
| (+) Curr Use (NHS): | + | N/A | N/A |
| | | -------------------------- | |
| (=) Market Value: | = | N/A | |
| (–) Productivity Loss: | – | N/A | |
| | | -------------------------- | |
| (=) Subtotal: | = | N/A | |
| (+) Senior Appraised Value: | + | N/A | |
| (+) Non-Senior Appraised Value: | + | N/A | |
| | | -------------------------- | |
| (=) Total Appraised Value: | = | N/A | |
| (–) Senior Exemption Loss: | – | N/A | |
| (–) Exemption Loss: | – | N/A | |
| | | -------------------------- | |
| (=) Taxable Value: | = | N/A | |
Taxing Jurisdiction
| Owner: | USEFARA NEIL & ALYSON | | |
| % Ownership: | 100.0000000000% | | |
| Total Value: | N/A | | |
| Tax Area: | 24 - 228 H1 |
| 110001 | County Road General | N/A | N/A | N/A | N/A | | |
| 010170 | Chelan County | N/A | N/A | N/A | N/A | | |
| 155001 | Veteran's Relief | N/A | N/A | N/A | N/A | | |
| 160001 | Mental Health | N/A | N/A | N/A | N/A | | |
| 692101 | Hospital No 1 General | N/A | N/A | N/A | N/A | | |
| 692110 | Hospital No 1 Bond | N/A | N/A | N/A | N/A | | |
| 652003 | State School 2 | N/A | N/A | N/A | N/A | | |
| 652005 | State School | N/A | N/A | N/A | N/A | | |
| 652025 | State School 2 Refund | N/A | N/A | N/A | N/A | | |
| 107001 | Flood Control Zone | N/A | N/A | N/A | N/A | | |
| 644001 | Regional Library | N/A | N/A | N/A | N/A | | |
| 671101 | Port General | N/A | N/A | N/A | N/A | | |
| 654161 | Cascade SD 228 General | N/A | N/A | N/A | N/A | | |
| 654170 | Cascade SD 228 Bond | N/A | N/A | N/A | N/A | | |
| 654175 | Cascade SD 228 Cap Projects | N/A | N/A | N/A | N/A | | |
| 652001 | State School Refund | N/A | N/A | N/A | N/A | | |
| | Total Tax Rate: | N/A | | | | | |
| | | | | Taxes w/Current Exemptions: | N/A | | |
| | | | | Taxes w/o Exemptions: | N/A | | |
Improvement / Building
Sketch
| No sketches available for this property. |
Property Image
Land
| 1 | SV 60K | SITE VALUE $60,000 | 0.2800 | 12000.00 | 0.00 | 0.00 | 1.00 | N/A | N/A |
Roll Value History
| 2026 | N/A | N/A | N/A | N/A | N/A |
| 2025 | $0 | $75,168 | $0 | $75,168 | $75,168 |
| 2024 | $0 | $69,426 | $0 | $69,426 | $69,426 |
| 2023 | $0 | $49,848 | $0 | $49,848 | $49,848 |
| 2022 | $0 | $68,340 | $0 | $68,340 | $68,340 |
| 2021 | $0 | $47,034 | $0 | $47,034 | $47,034 |
| 2020 | $0 | $47,088 | $0 | $47,088 | $47,088 |
| 2019 | $0 | $42,768 | $0 | $42,768 | $42,768 |
| 2018 | $0 | $39,744 | $0 | $39,744 | $39,744 |
| 2017 | $0 | $29,256 | $0 | $29,256 | $29,256 |
| 2016 | $0 | $28,938 | $0 | $28,938 | $28,938 |
| 2015 | $0 | $57,600 | $0 | $57,600 | $57,600 |
| 2014 | $0 | $60,750 | $0 | $60,750 | $60,750 |
| 2013 | $0 | $51,750 | $0 | $51,750 | $51,750 |
| 2012 | $0 | $51,750 | $0 | $51,750 | $51,750 |
| 2011 | $0 | $49,500 | $0 | $49,500 | $49,500 |
| 2010 | $0 | $49,500 | $0 | $49,500 | $49,500 |
| 2009 | $0 | $45,000 | $0 | $45,000 | $45,000 |
| 2008 | $0 | $45,000 | $0 | $45,000 | $45,000 |
| 2007 | $0 | $45,000 | $0 | $45,000 | $45,000 |
Deed and Sales History
| 1 | 09/12/2024 | SWD | Statutory Warranty Deed | WILCO LAND LLC | USEFARA NEIL & ALYSON | | | $83,500.00 | 203478 | 2598925 |
| 2 | 10/27/2023 | BARGAIN | Bargain & Sale Deed | VAN NATTER WILLIAM J | WILCO LAND LLC | | | $158,000.00 | 200909 | 2587908 |
|   | |
| 3 | 06/17/1991 | Q | Quit Claim Deed | SMITH OLGA JUNE | VAN NATTER WILL | 950 | 757 | | 0 | |
| 4 | 05/05/1977 | Q | Quit Claim Deed | | VAN NATTER WILLIAM J | 742 | 1492 | | 0 | |
Payout Agreement
| No payout information available.. |