Property
Account |
| Property ID: | 32842 | Abbreviated Legal Description: | T 25N R 18EWM S 19 LOT 1 SP 2017-004 LOT B BLA 2016-226 LOT D BLA 2001-054 LOT D SP 696 1.9600 ACRES |
| Geographic ID: | 251819340200 | Agent Code: | |
| Type: | Real | | |
| Tax Area: | 26 - 228 F3 H1 PK2 | Land Use Code | 19 |
| Open Space: | N | DFL | N |
| Historic Property: | N | Remodel Property: | N |
| Multi-Family Redevelopment: | N | | |
| Township: | 25N | Section: | 19 |
| Range: | 18EWM | Legal Acres: | 1.9600 |
Location |
| Address: | 149 NEVADELLE LN LEAVENWORTH, WA 98826 | Mapsco: | |
| Neighborhood: | Cycle 3 Chumstick div 1 RES | Map ID: | 3CHMS01R01 |
| Neighborhood CD: | 3CHMS01R01 |
Owner |
| Name: | KLUNE TRAVIS | Owner ID: | 125646 |
| Mailing Address: | PO BOX 328 LEAVENWORTH, WA 98826 | % Ownership: | % |
| | | Exemptions: | |
Pay Tax Due
There is currently No Amount Due on this property.
Taxes and Assessment Details
Values
| (+) Improvement Homesite Value: | + | $0 | |
| (+) Improvement Non-Homesite Value: | + | $196,606 | |
| (+) Land Homesite Value: | + | $0 | |
| (+) Land Non-Homesite Value: | + | $209,664 | |
| (+) Curr Use (HS): | + | $0 | $0 |
| (+) Curr Use (NHS): | + | $0 | $0 |
| | | -------------------------- | |
| (=) Market Value: | = | $406,270 | |
| (–) Productivity Loss: | – | $0 | |
| | | -------------------------- | |
| (=) Subtotal: | = | $406,270 | |
| (+) Senior Appraised Value: | + | $0 | |
| (+) Non-Senior Appraised Value: | + | $406,270 | |
| | | -------------------------- | |
| (=) Total Appraised Value: | = | $406,270 | |
| (–) Senior Exemption Loss: | – | $0 | |
| (–) Exemption Loss: | – | $0 | |
| | | -------------------------- | |
| (=) Taxable Value: | = | $406,270 | |
Taxing Jurisdiction
| Owner: | KLUNE TRAVIS | | |
| % Ownership: | 100.0000000000% | | |
| Total Value: | $406,270 | | |
| Tax Area: | 26 - 228 F3 H1 PK2 |
| 110001 | County Road General | 0.7994434437 | $406,270 | $406,270 | $324.79 | | |
| 010170 | Chelan County | 0.7334053198 | $406,270 | $406,270 | $297.96 | | |
| 155001 | Veteran's Relief | 0.0086008201 | $406,270 | $406,270 | $3.49 | | |
| 160001 | Mental Health | 0.0189723974 | $406,270 | $406,270 | $7.71 | | |
| 656301 | Fire No 3 General | 0.6595493974 | $406,270 | $406,270 | $267.96 | | |
| 692101 | Hospital No 1 General | 0.1385914007 | $406,270 | $406,270 | $56.31 | | |
| 107001 | Flood Control Zone | 0.0408306198 | $406,270 | $406,270 | $16.59 | | |
| 654175 | Cascade SD 228 Cap Projects | 0.1180568217 | $406,270 | $406,270 | $47.96 | | |
| 652001 | State School Refund | 0.0000273969 | $406,270 | $406,270 | $0.01 | | |
| 652003 | State School 2 | 0.8917891157 | $406,270 | $406,270 | $362.31 | | |
| 652005 | State School | 1.6674243773 | $406,270 | $406,270 | $677.42 | | |
| 652025 | State School 2 Refund | 0.0000148770 | $406,270 | $406,270 | $0.01 | | |
| 677001 | Upper Valley Park & Rec General | 0.0789016769 | $406,270 | $406,270 | $32.06 | | |
| 692110 | Hospital No 1 Bond | 0.1428539513 | $406,270 | $406,270 | $58.04 | | |
| 692150 | Hospital No 1 EMS | 0.3876855425 | $406,270 | $406,270 | $157.51 | | |
| 644001 | Regional Library | 0.2864488554 | $406,270 | $406,270 | $116.38 | | |
| 671101 | Port General | 0.1756188309 | $406,270 | $406,270 | $71.35 | | |
| 654161 | Cascade SD 228 General | 0.7839181944 | $406,270 | $406,270 | $318.48 | | |
| 654170 | Cascade SD 228 Bond | 0.9880085834 | $406,270 | $406,270 | $401.40 | | |
| | Total Tax Rate: | 7.9201416223 | | | | | |
| | | | | Taxes w/Current Exemptions: | $3,217.74 | | |
| | | | | Taxes w/o Exemptions: | $3,217.74 | | |
Improvement / Building
| Improvement #1: | RESIDENTIAL | State Code: | 19 | 1440.0 sqft | Value: | $187,869 |
| Exterior Wall: | RUSTIC LOG | Fireplace: | Free Standing | | Heating/Cooling: | Heat Pump | Number of Bathrooms: | 1.75 | | Number of Bedrooms: | 2 |   |   |
|
| | Type | Description | Class CD | Sub Class CD | Year Built | Area |
| | MA | Main | AVERAGE | 1.5 ST FIN | 2000 | 1440.0 |
| | DECK | Open Wood Deck | AVERAGE | 1.5 ST FIN | 2000 | 320.0 |
| | DECK | Open Wood Deck | AVERAGE | * | 2000 | 77.0 |
| Improvement #2: | RESIDENTIAL | State Code: | 19 | 0.0 sqft | Value: | $8,737 |
Sketch
| No sketches available for this property. |
Property Image
Land
| 1 | SV 90K | SITE VALUE $90,000 | 1.0000 | 43560.00 | 0.00 | 0.00 | 1.00 | $172,800 | $0 |
| 2 | RES 20K | RESIDUAL $20,000/A | 0.9600 | 41817.60 | 0.00 | 0.00 | 1.00 | $36,864 | $0 |
Roll Value History
| 2026 | N/A | N/A | N/A | N/A | N/A |
| 2025 | $276,650 | $135,408 | $0 | $412,058 | $412,058 |
| 2024 | $211,500 | $182,364 | $0 | $393,864 | $393,864 |
| 2023 | $340,328 | $182,364 | $0 | $522,692 | $522,692 |
| 2022 | $196,606 | $209,664 | $0 | $406,270 | $406,270 |
| 2021 | $209,918 | $107,016 | $0 | $316,934 | $316,934 |
| 2020 | $212,235 | $107,016 | $0 | $319,251 | $319,251 |
| 2019 | $211,861 | $107,016 | $0 | $318,877 | $318,877 |
| 2018 | $287,167 | $98,280 | $0 | $385,447 | $385,447 |
| 2017 | $226,361 | $104,832 | $0 | $331,193 | $331,193 |
| 2016 | $232,292 | $96,295 | $0 | $328,587 | $328,587 |
| 2015 | $234,768 | $96,118 | $0 | $330,886 | $330,886 |
| 2014 | $173,402 | $100,042 | $0 | $273,444 | $273,444 |
| 2013 | $191,811 | $107,888 | $0 | $299,699 | $299,699 |
| 2012 | $193,873 | $93,176 | $0 | $287,049 | $287,049 |
| 2011 | $195,936 | $93,176 | $0 | $289,112 | $289,112 |
| 2010 | $195,936 | $108,864 | $0 | $304,800 | $304,800 |
| 2009 | $174,188 | $68,040 | $0 | $242,228 | $242,228 |
| 2008 | $174,188 | $68,040 | $0 | $242,228 | $242,228 |
| 2007 | $174,188 | $68,040 | $0 | $242,228 | $242,228 |
Deed and Sales History
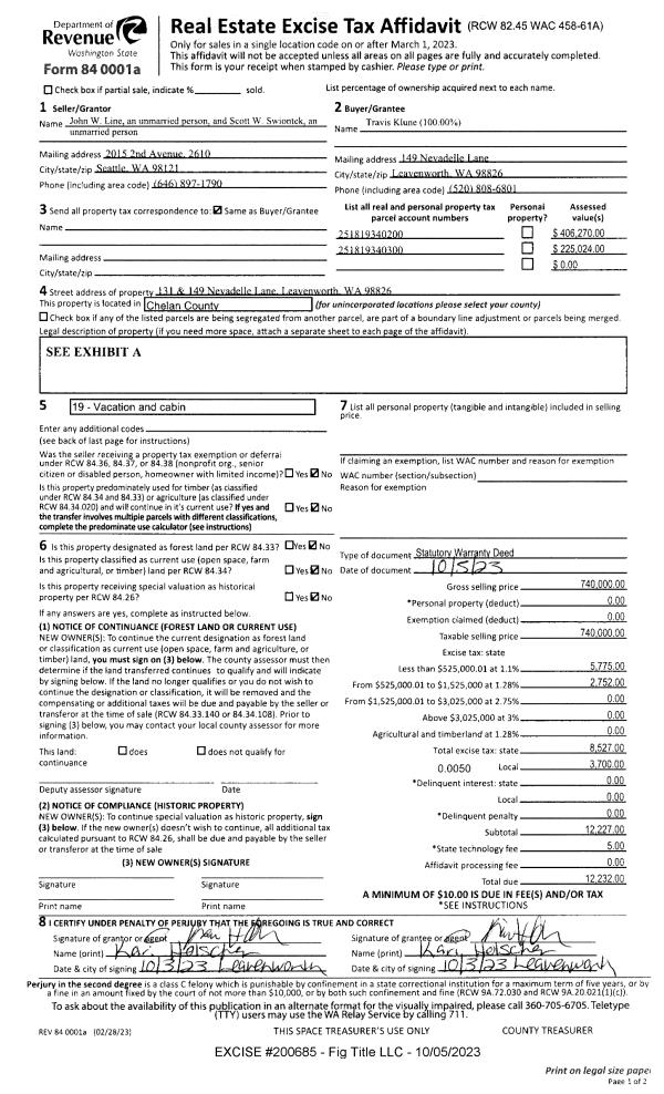
| 1 | 10/05/2023 | SWD | Statutory Warranty Deed | LINE JOHN W & SCOTT SWIONTEK | KLUNE TRAVIS | | | $740,000.00 | 200685 | 2587064 |
|   | |
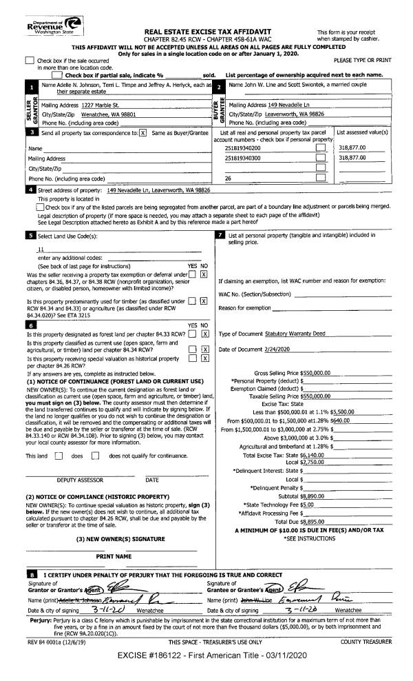
| 2 | 03/11/2020 | SWD | Statutory Warranty Deed | JOHNSON ADELLE N ETAL | LINE JOHN W & SCOTT SWIONTEK | | | $550,000.00 | 186122 | 2512411 |
|   | |
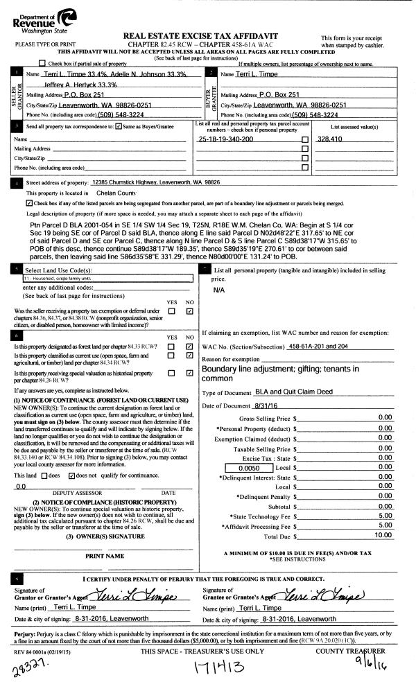
| 3 | 09/06/2016 | Q | Quit Claim Deed | TIMPE TERRI L | JOHNSON ADELLE N ETAL | | | | 171414 | 2443521 BLA |
| 4 | 09/06/2016 | Q | Quit Claim Deed | JOHNSON ADELLE N ETAL | TIMPE TERRI L | | | | 171413 | 2443522 BLA |
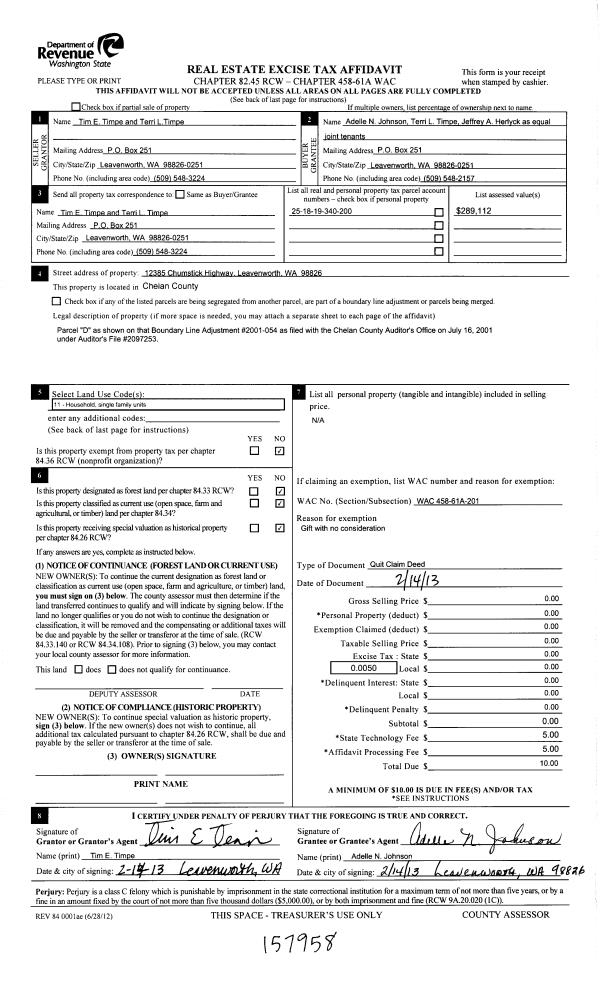
| 5 | 02/26/2013 | Q | Quit Claim Deed | TIMPE TIM E | JOHNSON ADELLE N ETAL | | | $0.00 | 157958 | 2377542 |
| 6 | 07/16/2001 | O | Other | BLA 2001-054 | | | | | 0 | 2097253 |
| 7 | 05/17/1999 | SWD | Statutory Warranty Deed | | TIMPE TIM E | | | $300,000.00 | 10186502 | 2053215 |
| 8 | 08/15/1989 | W | Warranty Deed | | JOSEPH N NILLES | 915 | 176 | | 0 | |
| 9 | 02/25/1987 | W | Warranty Deed | | TERRANCE L MYLAN | 872 | 913 | | 0 | |
| 10 | 11/01/1968 | SWD | Statutory Warranty Deed | | CARPENTER IRVIN W | 690 | 966 | | 0 | |
Payout Agreement
| No payout information available.. |