Property
Account |
| Property ID: | 31932 | Abbreviated Legal Description: | T 24N R 19EWM S 24 S1/2SW 80.0000 ACRES |
| Geographic ID: | 241924300100 | Agent Code: | |
| Type: | Real | | |
| Tax Area: | 56 - 222 | Land Use Code | 83 |
| Open Space: | Y | DFL | N |
| Historic Property: | N | Remodel Property: | N |
| Multi-Family Redevelopment: | N | | |
| Township: | 24N | Section: | 24 |
| Range: | 19EWM | Legal Acres: | 80.0000 |
Location |
| Address: | UNASSIGNED CASHMERE, WA 98815 | Mapsco: | |
| Neighborhood: | Cycle 1 Cashmere north Div 1 Ag | Map ID: | 1CSHN01A01 |
| Neighborhood CD: | 1CSHN01A01 |
Owner |
| Name: | RSTA INVESTMENTS LLC | Owner ID: | 13201 |
| Mailing Address: | 6000 WARNER CANYON RD CASHMERE, WA 98815 | % Ownership: | % |
| | | Exemptions: | |
Pay Tax Due
Select the appropriate checkbox next to the year to be paid. Multiple years may be selected.
*Convenience Fee not included
Taxes and Assessment Details
Values
| (+) Improvement Homesite Value: | + | N/A | |
| (+) Improvement Non-Homesite Value: | + | N/A | |
| (+) Land Homesite Value: | + | N/A | |
| (+) Land Non-Homesite Value: | + | N/A | Ag / Timber Use Value |
| (+) Curr Use (HS): | + | N/A | N/A |
| (+) Curr Use (NHS): | + | N/A | N/A |
| | | -------------------------- | |
| (=) Market Value: | = | N/A | |
| (–) Productivity Loss: | – | N/A | |
| | | -------------------------- | |
| (=) Subtotal: | = | N/A | |
| (+) Senior Appraised Value: | + | N/A | |
| (+) Non-Senior Appraised Value: | + | N/A | |
| | | -------------------------- | |
| (=) Total Appraised Value: | = | N/A | |
| (–) Senior Exemption Loss: | – | N/A | |
| (–) Exemption Loss: | – | N/A | |
| | | -------------------------- | |
| (=) Taxable Value: | = | N/A | |
Taxing Jurisdiction
| Owner: | RSTA INVESTMENTS LLC | | |
| % Ownership: | 100.0000000000% | | |
| Total Value: | N/A | | |
| Tax Area: | 56 - 222 |
| 110001 | County Road General | N/A | N/A | N/A | N/A | | |
| 010170 | Chelan County | N/A | N/A | N/A | N/A | | |
| 155001 | Veteran's Relief | N/A | N/A | N/A | N/A | | |
| 160001 | Mental Health | N/A | N/A | N/A | N/A | | |
| 644001 | Regional Library | N/A | N/A | N/A | N/A | | |
| 671101 | Port General | N/A | N/A | N/A | N/A | | |
| 652025 | State School 2 Refund | N/A | N/A | N/A | N/A | | |
| 107001 | Flood Control Zone | N/A | N/A | N/A | N/A | | |
| 654121 | Cashmere SD 222 General | N/A | N/A | N/A | N/A | | |
| 654130 | Cashmere SD 222 Bond | N/A | N/A | N/A | N/A | | |
| 654135 | Cashmere SD 222 Cap Projects | N/A | N/A | N/A | N/A | | |
| 652001 | State School Refund | N/A | N/A | N/A | N/A | | |
| 652003 | State School 2 | N/A | N/A | N/A | N/A | | |
| 652005 | State School | N/A | N/A | N/A | N/A | | |
| | Total Tax Rate: | N/A | | | | | |
| | | | | Taxes w/Current Exemptions: | N/A | | |
| | | | | Taxes w/o Exemptions: | N/A | | |
Improvement / Building
Sketch
| No sketches available for this property. |
Property Image
Land
| 1 | RES 300 | RESIDUAL $300/A | 10.0000 | 435600.00 | 0.00 | 0.00 | 1.00 | N/A | N/A |
| 2 | RES 750 | RESIDUAL $750/A | 25.0000 | 1089000.00 | 0.00 | 0.00 | 1.00 | N/A | N/A |
| 3 | RES 1000 | RESIDUAL $1000/A | 5.0000 | 217800.00 | 0.00 | 0.00 | 1.00 | N/A | N/A |
| 4 | RES 500 | RESIDUAL $500/A | 40.0000 | 1742400.00 | 0.00 | 0.00 | 1.00 | N/A | N/A |
Roll Value History
| 2026 | N/A | N/A | N/A | N/A | N/A |
| 2025 | $0 | $46,750 | $800 | $800 | $800 |
| 2024 | $0 | $46,750 | $800 | $800 | $800 |
| 2023 | $0 | $46,750 | $800 | $800 | $800 |
| 2022 | $0 | $46,750 | $800 | $800 | $800 |
| 2021 | $0 | $46,750 | $800 | $800 | $800 |
| 2020 | $0 | $46,750 | $800 | $800 | $800 |
| 2019 | $0 | $46,750 | $800 | $800 | $800 |
| 2018 | $0 | $46,750 | $800 | $800 | $800 |
| 2017 | $0 | $46,750 | $800 | $800 | $800 |
| 2016 | $0 | $36,750 | $800 | $800 | $800 |
| 2015 | $0 | $36,750 | $800 | $800 | $800 |
| 2014 | $0 | $36,750 | $800 | $800 | $800 |
| 2013 | $0 | $29,400 | $800 | $800 | $800 |
| 2012 | $0 | $29,400 | $800 | $800 | $800 |
| 2011 | $0 | $36,750 | $800 | $800 | $800 |
| 2010 | $0 | $36,750 | $800 | $800 | $800 |
| 2009 | $0 | $36,750 | $800 | $800 | $800 |
| 2008 | $0 | $36,750 | $560 | $560 | $560 |
| 2007 | $0 | $560 | $0 | $560 | $560 |
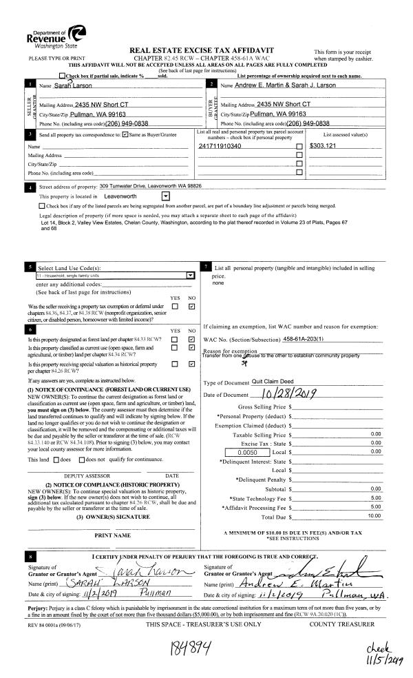
Deed and Sales History
| 1 | 10/31/2019 | SWD | Statutory Warranty Deed | KILE LYLE O & LORRAINE H | RSTA INVESTMENTS LLC | | | $1,750,000.00 | 184859 | 2505335 |
|   | |
| 2 | 08/09/2005 | REF | Conversion Code Only | KILE LYLE | MCMAHON ROGER | | | | 0 | 2206388 |
| 3 | | OT | Conversion Code Only | | KILE LYLE O & LORRAINE H | 744 | 2370 | | 0 | |
Payout Agreement
| No payout information available.. |