Property
Account |
| Property ID: | 31927 | Abbreviated Legal Description: | T 24N R 19EWM S 23 N1/2 NW NE LOT A BLA 2020-079 LOT A CE 2020-004 10.0100 ACRES |
| Geographic ID: | 241923120050 | Agent Code: | |
| Type: | Real | | |
| Tax Area: | 60 - 222 F6 | Land Use Code | 11 |
| Open Space: | N | DFL | N |
| Historic Property: | N | Remodel Property: | N |
| Multi-Family Redevelopment: | N | | |
| Township: | 24N | Section: | 23 |
| Range: | 19EWM | Legal Acres: | 10.0100 |
Location |
| Address: | 8013 NAHAHUM CANYON RD CASHMERE, WA 98815 | Mapsco: | |
| Neighborhood: | Cycle 1 Cashmere north Div 1 Res | Map ID: | 1CSHN01R01 |
| Neighborhood CD: | 1CSHN01R01 |
Owner |
| Name: | RSTA INVESTMENTS LLC | Owner ID: | 13201 |
| Mailing Address: | 6000 WARNER CANYON RD CASHMERE, WA 98815 | % Ownership: | % |
| | | Exemptions: | |
Pay Tax Due
Select the appropriate checkbox next to the year to be paid. Multiple years may be selected.
*Convenience Fee not included
Taxes and Assessment Details
Values
| (+) Improvement Homesite Value: | + | N/A | |
| (+) Improvement Non-Homesite Value: | + | N/A | |
| (+) Land Homesite Value: | + | N/A | |
| (+) Land Non-Homesite Value: | + | N/A | Ag / Timber Use Value |
| (+) Curr Use (HS): | + | N/A | N/A |
| (+) Curr Use (NHS): | + | N/A | N/A |
| | | -------------------------- | |
| (=) Market Value: | = | N/A | |
| (–) Productivity Loss: | – | N/A | |
| | | -------------------------- | |
| (=) Subtotal: | = | N/A | |
| (+) Senior Appraised Value: | + | N/A | |
| (+) Non-Senior Appraised Value: | + | N/A | |
| | | -------------------------- | |
| (=) Total Appraised Value: | = | N/A | |
| (–) Senior Exemption Loss: | – | N/A | |
| (–) Exemption Loss: | – | N/A | |
| | | -------------------------- | |
| (=) Taxable Value: | = | N/A | |
Taxing Jurisdiction
| Owner: | RSTA INVESTMENTS LLC | | |
| % Ownership: | 100.0000000000% | | |
| Total Value: | N/A | | |
| Tax Area: | 60 - 222 F6 |
| 110001 | County Road General | N/A | N/A | N/A | N/A | | |
| 010170 | Chelan County | N/A | N/A | N/A | N/A | | |
| 155001 | Veteran's Relief | N/A | N/A | N/A | N/A | | |
| 160001 | Mental Health | N/A | N/A | N/A | N/A | | |
| 656601 | Fire No 6 General | N/A | N/A | N/A | N/A | | |
| 644001 | Regional Library | N/A | N/A | N/A | N/A | | |
| 652005 | State School | N/A | N/A | N/A | N/A | | |
| 652025 | State School 2 Refund | N/A | N/A | N/A | N/A | | |
| 107001 | Flood Control Zone | N/A | N/A | N/A | N/A | | |
| 671101 | Port General | N/A | N/A | N/A | N/A | | |
| 654121 | Cashmere SD 222 General | N/A | N/A | N/A | N/A | | |
| 654130 | Cashmere SD 222 Bond | N/A | N/A | N/A | N/A | | |
| 654135 | Cashmere SD 222 Cap Projects | N/A | N/A | N/A | N/A | | |
| 652001 | State School Refund | N/A | N/A | N/A | N/A | | |
| 652003 | State School 2 | N/A | N/A | N/A | N/A | | |
| | Total Tax Rate: | N/A | | | | | |
| | | | | Taxes w/Current Exemptions: | N/A | | |
| | | | | Taxes w/o Exemptions: | N/A | | |
Improvement / Building
Sketch
| No sketches available for this property. |
Property Image
Land
| 1 | SV 90K | SITE VALUE $90,000 | 1.0000 | 43560.00 | 0.00 | 0.00 | 1.00 | N/A | N/A |
| 2 | RES 1000 | RESIDUAL $1000/A | 4.5000 | 196020.00 | 0.00 | 0.00 | 1.00 | N/A | N/A |
| 3 | RES 10K | RESIDUAL $10,000/A | 4.5100 | 196455.60 | 0.00 | 0.00 | 1.00 | N/A | N/A |
Roll Value History
| 2026 | N/A | N/A | N/A | N/A | N/A |
| 2025 | $0 | $267,460 | $0 | $267,460 | $267,460 |
| 2024 | $0 | $230,912 | $0 | $230,912 | $230,912 |
| 2023 | $0 | $208,532 | $0 | $208,532 | $208,532 |
| 2022 | $0 | $272,185 | $0 | $272,185 | $272,185 |
| 2021 | $0 | $240,163 | $0 | $240,163 | $240,163 |
| 2020 | $0 | $11,315 | $0 | $11,315 | $11,315 |
| 2019 | $0 | $32,844 | $0 | $32,844 | $32,844 |
| 2018 | $0 | $30,000 | $3,100 | $3,100 | $3,100 |
| 2017 | $0 | $30,000 | $3,100 | $3,100 | $3,100 |
| 2016 | $0 | $28,000 | $3,100 | $3,100 | $3,100 |
| 2015 | $0 | $28,000 | $3,100 | $3,100 | $3,100 |
| 2014 | $0 | $28,000 | $3,100 | $3,100 | $3,100 |
| 2013 | $0 | $22,400 | $3,100 | $3,100 | $3,100 |
| 2012 | $0 | $22,400 | $3,100 | $3,100 | $3,100 |
| 2011 | $0 | $28,000 | $3,100 | $3,100 | $3,100 |
| 2010 | $0 | $28,000 | $3,100 | $3,100 | $3,100 |
| 2009 | $0 | $28,000 | $3,100 | $3,100 | $3,100 |
| 2008 | $0 | $27,300 | $3,070 | $3,070 | $3,070 |
| 2007 | $0 | $3,070 | $0 | $3,070 | $3,070 |
Deed and Sales History
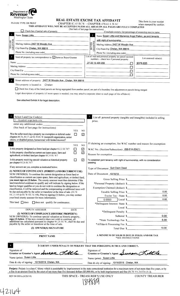
| 1 | 10/31/2019 | SWD | Statutory Warranty Deed | KILE LYLE O & LORRAINE H | RSTA INVESTMENTS LLC | | | $1,750,000.00 | 184859 | 2505335 |
|   | |
| 2 | 10/21/2004 | W | Warranty Deed | | KILE LYLE O | | | | 0 | 2185751 |
| 3 | 08/09/2005 | O | Other | KILE LYLE O | MCMAHON ROGER | | | | 0 | 2206388 |
| 4 | 07/30/2004 | C | Real Estate Contract | MCMAHON ROGER | KILE LYLE | | | | 0 | 2179828 |
| 5 | 02/03/2004 | W | Warranty Deed | | ROGER MC MAHON | | | | 0 | 2166254 |
| 6 | 03/01/1973 | SWD | Statutory Warranty Deed | | LEWIS E MINNICK | 713 | 375 | | 0 | |
| 7 | 03/24/2004 | REF | Conversion Code Only | SURVEY | | 45 | 45 | | 0 | |
| 8 | 08/02/2004 | C | Real Estate Contract | | | | | $200,000.00 | 12396203 | 2179828 |
| 9 | 02/03/2004 | W | Warranty Deed | | | | | $560,000.00 | 12147611 | 2166254 |
Payout Agreement
| No payout information available.. |