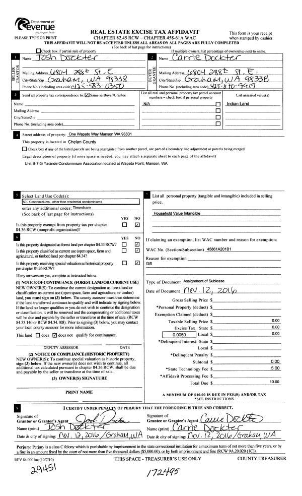
Property
Account |
| Property ID: | 31925 | Abbreviated Legal Description: | T 24N R 19EWM S 23 LOT 1 CE 2022-193 S1/2 LESS WEST 324' 302.7000 ACRES |
| Geographic ID: | 241923000100 | Agent Code: | |
| Type: | Real | | |
| Tax Area: | 60 - 222 F6 | Land Use Code | 83 |
| Open Space: | Y | DFL | N |
| Historic Property: | N | Remodel Property: | N |
| Multi-Family Redevelopment: | N | | |
| Township: | 24N | Section: | 23 |
| Range: | 19EWM | Legal Acres: | 302.7000 |
Location |
| Address: | NAHAHUM CANYON RD CASHMERE, WA 98815 | Mapsco: | |
| Neighborhood: | Cycle 1 Cashmere north Div 1 Ag | Map ID: | 1CSHN01A01 |
| Neighborhood CD: | 1CSHN01A01 |
Owner |
| Name: | RSTA INVESTMENTS LLC | Owner ID: | 13201 |
| Mailing Address: | 6000 WARNER CANYON RD CASHMERE, WA 98815 | % Ownership: | % |
| | | Exemptions: | |
Pay Tax Due
Select the appropriate checkbox next to the year to be paid. Multiple years may be selected.
*Convenience Fee not included
Taxes and Assessment Details
Values
| (+) Improvement Homesite Value: | + | N/A | |
| (+) Improvement Non-Homesite Value: | + | N/A | |
| (+) Land Homesite Value: | + | N/A | |
| (+) Land Non-Homesite Value: | + | N/A | Ag / Timber Use Value |
| (+) Curr Use (HS): | + | N/A | N/A |
| (+) Curr Use (NHS): | + | N/A | N/A |
| | | -------------------------- | |
| (=) Market Value: | = | N/A | |
| (–) Productivity Loss: | – | N/A | |
| | | -------------------------- | |
| (=) Subtotal: | = | N/A | |
| (+) Senior Appraised Value: | + | N/A | |
| (+) Non-Senior Appraised Value: | + | N/A | |
| | | -------------------------- | |
| (=) Total Appraised Value: | = | N/A | |
| (–) Senior Exemption Loss: | – | N/A | |
| (–) Exemption Loss: | – | N/A | |
| | | -------------------------- | |
| (=) Taxable Value: | = | N/A | |
Taxing Jurisdiction
| Owner: | RSTA INVESTMENTS LLC | | |
| % Ownership: | 100.0000000000% | | |
| Total Value: | N/A | | |
| Tax Area: | 60 - 222 F6 |
| 110001 | County Road General | N/A | N/A | N/A | N/A | | |
| 010170 | Chelan County | N/A | N/A | N/A | N/A | | |
| 155001 | Veteran's Relief | N/A | N/A | N/A | N/A | | |
| 160001 | Mental Health | N/A | N/A | N/A | N/A | | |
| 656601 | Fire No 6 General | N/A | N/A | N/A | N/A | | |
| 644001 | Regional Library | N/A | N/A | N/A | N/A | | |
| 652005 | State School | N/A | N/A | N/A | N/A | | |
| 652025 | State School 2 Refund | N/A | N/A | N/A | N/A | | |
| 107001 | Flood Control Zone | N/A | N/A | N/A | N/A | | |
| 671101 | Port General | N/A | N/A | N/A | N/A | | |
| 654121 | Cashmere SD 222 General | N/A | N/A | N/A | N/A | | |
| 654130 | Cashmere SD 222 Bond | N/A | N/A | N/A | N/A | | |
| 654135 | Cashmere SD 222 Cap Projects | N/A | N/A | N/A | N/A | | |
| 652001 | State School Refund | N/A | N/A | N/A | N/A | | |
| 652003 | State School 2 | N/A | N/A | N/A | N/A | | |
| | Total Tax Rate: | N/A | | | | | |
| | | | | Taxes w/Current Exemptions: | N/A | | |
| | | | | Taxes w/o Exemptions: | N/A | | |
Improvement / Building
| Improvement #1: | RESIDENTIAL | State Code: | 11 | 0.0 sqft | Value: | N/A |
| Improvement #2: | RESIDENTIAL | State Code: | 11 | 0.0 sqft | Value: | N/A |
| Improvement #3: | RESIDENTIAL | State Code: | 11 | 0.0 sqft | Value: | N/A |
| Improvement #4: | RESIDENTIAL | State Code: | 11 | 0.0 sqft | Value: | N/A |
| Improvement #5: | RESIDENTIAL | State Code: | 11 | 0.0 sqft | Value: | N/A |
Sketch
| No sketches available for this property. |
Property Image
Land
| 1 | RES 500 | RESIDUAL $500/A | 259.9500 | 11323422.00 | 0.00 | 0.00 | 1.00 | N/A | N/A |
| 2 | RES 10K | RESIDUAL $10,000/A | 26.7500 | 1165230.00 | 0.00 | 0.00 | 1.00 | N/A | N/A |
| 3 | RES 3K | RESIDUAL $3000/A | 16.0000 | 696960.00 | 0.00 | 0.00 | 1.00 | N/A | N/A |
Roll Value History
| 2026 | N/A | N/A | N/A | N/A | N/A |
| 2025 | $17,586 | $445,475 | $6,875 | $24,461 | $24,461 |
| 2024 | $13,293 | $445,475 | $6,875 | $20,168 | $20,168 |
| 2023 | $13,886 | $445,475 | $6,875 | $20,761 | $20,761 |
| 2022 | $14,727 | $445,475 | $6,875 | $21,602 | $21,602 |
| 2021 | $15,312 | $513,500 | $7,610 | $22,922 | $22,922 |
| 2020 | $13,650 | $195,000 | $6,800 | $20,450 | $20,450 |
| 2019 | $23,122 | $218,400 | $6,800 | $29,922 | $29,922 |
| 2018 | $21,131 | $195,000 | $6,800 | $27,931 | $27,931 |
| 2017 | $22,492 | $195,000 | $6,800 | $29,292 | $29,292 |
| 2016 | $6,586 | $134,000 | $6,800 | $13,386 | $13,386 |
| 2015 | $6,960 | $134,000 | $6,800 | $13,760 | $13,760 |
| 2014 | $7,163 | $134,000 | $6,800 | $13,963 | $13,963 |
| 2013 | $9,435 | $107,200 | $6,800 | $16,235 | $16,235 |
| 2012 | $5,425 | $107,200 | $6,800 | $12,225 | $12,225 |
| 2011 | $4,568 | $134,000 | $6,800 | $11,368 | $11,368 |
| 2010 | $5,710 | $134,000 | $6,800 | $12,510 | $12,510 |
| 2009 | $5,710 | $134,000 | $6,800 | $12,510 | $12,510 |
| 2008 | $5,710 | $134,000 | $5,560 | $11,270 | $11,270 |
| 2007 | $5,710 | $5,560 | $0 | $11,270 | $11,270 |
Deed and Sales History
| 1 | 10/31/2019 | SWD | Statutory Warranty Deed | KILE LYLE O & LORRAINE H | RSTA INVESTMENTS LLC | | | $1,750,000.00 | 184859 | 2505335 |
|   | |
| 2 | 08/09/2005 | O | Other | KILE LYLE | MCMAHON ROGER | | | | 0 | 2206388 |
| 3 | 06/23/1977 | WD | Warranty Deed | | KILE LYLE O & LORRAINE H | 744 | 237 | | 0 | |
Payout Agreement
| No payout information available.. |