Property
Account |
| Property ID: | 31901 | Abbreviated Legal Description: | T 24N R 19EWM S 22 LOT C BLA 2018-044 SENW & SWNW 88.7000 ACRES |
| Geographic ID: | 241922240000 | Agent Code: | |
| Type: | Real | | |
| Tax Area: | 60 - 222 F6 | Land Use Code | 94 |
| Open Space: | Y | DFL | N |
| Historic Property: | N | Remodel Property: | N |
| Multi-Family Redevelopment: | N | | |
| Township: | 24N | Section: | 22 |
| Range: | 19EWM | Legal Acres: | 88.7000 |
Location |
| Address: | UNASSIGNED CASHMERE, WA 98815 | Mapsco: | |
| Neighborhood: | Cycle 1 Cashmere north Div 1 Res | Map ID: | 1CSHN01R01 |
| Neighborhood CD: | 1CSHN01R01 |
Owner |
| Name: | CASHMERE CANYONS PRESERVE LLC | Owner ID: | 131689 |
| Mailing Address: | 3514 E COLUMBIA ST SEATTLE, WA 98122 | % Ownership: | % |
| | | Exemptions: | |
Pay Tax Due
Select the appropriate checkbox next to the year to be paid. Multiple years may be selected.
*Convenience Fee not included
Taxes and Assessment Details
Values
| (+) Improvement Homesite Value: | + | N/A | |
| (+) Improvement Non-Homesite Value: | + | N/A | |
| (+) Land Homesite Value: | + | N/A | |
| (+) Land Non-Homesite Value: | + | N/A | Ag / Timber Use Value |
| (+) Curr Use (HS): | + | N/A | N/A |
| (+) Curr Use (NHS): | + | N/A | N/A |
| | | -------------------------- | |
| (=) Market Value: | = | N/A | |
| (–) Productivity Loss: | – | N/A | |
| | | -------------------------- | |
| (=) Subtotal: | = | N/A | |
| (+) Senior Appraised Value: | + | N/A | |
| (+) Non-Senior Appraised Value: | + | N/A | |
| | | -------------------------- | |
| (=) Total Appraised Value: | = | N/A | |
| (–) Senior Exemption Loss: | – | N/A | |
| (–) Exemption Loss: | – | N/A | |
| | | -------------------------- | |
| (=) Taxable Value: | = | N/A | |
Taxing Jurisdiction
| Owner: | CASHMERE CANYONS PRESERVE LLC | | |
| % Ownership: | 100.0000000000% | | |
| Total Value: | N/A | | |
| Tax Area: | 60 - 222 F6 |
| 110001 | County Road General | N/A | N/A | N/A | N/A | | |
| 010170 | Chelan County | N/A | N/A | N/A | N/A | | |
| 155001 | Veteran's Relief | N/A | N/A | N/A | N/A | | |
| 160001 | Mental Health | N/A | N/A | N/A | N/A | | |
| 656601 | Fire No 6 General | N/A | N/A | N/A | N/A | | |
| 644001 | Regional Library | N/A | N/A | N/A | N/A | | |
| 652005 | State School | N/A | N/A | N/A | N/A | | |
| 652025 | State School 2 Refund | N/A | N/A | N/A | N/A | | |
| 107001 | Flood Control Zone | N/A | N/A | N/A | N/A | | |
| 671101 | Port General | N/A | N/A | N/A | N/A | | |
| 654121 | Cashmere SD 222 General | N/A | N/A | N/A | N/A | | |
| 654130 | Cashmere SD 222 Bond | N/A | N/A | N/A | N/A | | |
| 654135 | Cashmere SD 222 Cap Projects | N/A | N/A | N/A | N/A | | |
| 652001 | State School Refund | N/A | N/A | N/A | N/A | | |
| 652003 | State School 2 | N/A | N/A | N/A | N/A | | |
| | Total Tax Rate: | N/A | | | | | |
| | | | | Taxes w/Current Exemptions: | N/A | | |
| | | | | Taxes w/o Exemptions: | N/A | | |
Improvement / Building
Sketch
| No sketches available for this property. |
Property Image
Land
| 1 | RES 1000 | RESIDUAL $1000/A | 20.0000 | 871200.00 | 0.00 | 0.00 | 1.00 | N/A | N/A |
| 2 | RES 750 | RESIDUAL $750/A | 68.7000 | 2992572.00 | 0.00 | 0.00 | 1.00 | N/A | N/A |
Roll Value History
| 2026 | N/A | N/A | N/A | N/A | N/A |
| 2025 | $0 | $108,247 | $0 | $0 | $0 |
| 2024 | $0 | $93,455 | $0 | $93,455 | $93,455 |
| 2023 | $0 | $93,455 | $0 | $93,455 | $93,455 |
| 2022 | $0 | $85,387 | $0 | $85,387 | $85,387 |
| 2021 | $0 | $85,387 | $0 | $85,387 | $85,387 |
| 2020 | $0 | $61,855 | $0 | $61,855 | $61,855 |
| 2019 | $0 | $61,855 | $0 | $61,855 | $61,855 |
| 2018 | $0 | $65,803 | $0 | $65,803 | $65,803 |
| 2017 | $0 | $32,300 | $0 | $32,300 | $32,300 |
| 2016 | $0 | $28,880 | $0 | $28,880 | $28,880 |
| 2015 | $0 | $33,820 | $0 | $33,820 | $33,820 |
| 2014 | $0 | $34,200 | $0 | $34,200 | $34,200 |
| 2013 | $0 | $24,000 | $0 | $24,000 | $24,000 |
| 2012 | $0 | $24,000 | $0 | $24,000 | $24,000 |
| 2011 | $0 | $30,000 | $0 | $30,000 | $30,000 |
| 2010 | $0 | $30,000 | $0 | $30,000 | $30,000 |
| 2009 | $0 | $30,000 | $0 | $30,000 | $30,000 |
| 2008 | $0 | $30,000 | $0 | $30,000 | $30,000 |
| 2007 | $0 | $30,000 | $0 | $30,000 | $30,000 |
Deed and Sales History
| 1 | 01/30/2026 | SWD | Statutory Warranty Deed | HAY CANYON RANCH LLC | CASHMERE CANYONS PRESERVE LLC | | | $0.00 | 207767 | 2618008 |
| 2 | 03/03/2021 | WFD | Warranty Fulfillment Deed | HAY CANYON RANCH LLC | HAY CANYON RANCH LLC | | | | 0 | 2538182 |
| 3 | 03/03/2021 | WFD | Warranty Fulfillment Deed | SCOTT JOHN E & JEAN | HAY CANYON RANCH LLC | | | | 0 | 2538182 |
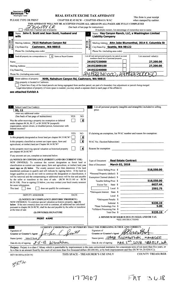
| 4 | 03/06/2018 | C | Real Estate Contract | SCOTT JOHN E | HAY CANYON RANCH LLC | | | $518,550.00 | 177907 | 2474000 |
|   | |
| 5 | 04/01/2004 | O | Other | SURVEY | | 45 | 48 | | 0 | |
| 6 | 05/13/1999 | W | Warranty Deed | | SCOTT JOHN E | | | | 0 | 2052899 |
| 7 | 10/20/1938 | Q | Quit Claim Deed | | KEITH JAMES | 264 | 557 | | 0 | |
Payout Agreement
| No payout information available.. |