Property
Account |
| Property ID: | 30717 | Abbreviated Legal Description: | PESHASTIN BLOCK 5 LOT 3-4, 0.2200 ACRES |
| Geographic ID: | 241817768225 | Agent Code: | |
| Type: | Real | | |
| Tax Area: | 50 - 228 F6 CD2 H1 PK2 W3 | Land Use Code | 11 |
| Open Space: | N | DFL | N |
| Historic Property: | N | Remodel Property: | N |
| Multi-Family Redevelopment: | N | | |
| Township: | 24N | Section: | 17 |
| Range: | 18EWM | Legal Acres: | 0.2200 |
Location |
| Address: | 10236 HIGH ST PESHASTIN, WA 98847 | Mapsco: | |
| Neighborhood: | Cycle 3 Peshastin/Dryden div 3 RES | Map ID: | 3PDRN03R01 |
| Neighborhood CD: | 3PDRN03R01 |
Owner |
| Name: | JANTZER LEVI A & MARIE M | Owner ID: | 117418 |
| Mailing Address: | PO BOX 621 PESHASTIN, WA 98847 | % Ownership: | % |
| | | Exemptions: | |
Pay Tax Due
Select the appropriate checkbox next to the year to be paid. Multiple years may be selected.
*Convenience Fee not included
Taxes and Assessment Details
Values
| (+) Improvement Homesite Value: | + | N/A | |
| (+) Improvement Non-Homesite Value: | + | N/A | |
| (+) Land Homesite Value: | + | N/A | |
| (+) Land Non-Homesite Value: | + | N/A | Ag / Timber Use Value |
| (+) Curr Use (HS): | + | N/A | N/A |
| (+) Curr Use (NHS): | + | N/A | N/A |
| | | -------------------------- | |
| (=) Market Value: | = | N/A | |
| (–) Productivity Loss: | – | N/A | |
| | | -------------------------- | |
| (=) Subtotal: | = | N/A | |
| (+) Senior Appraised Value: | + | N/A | |
| (+) Non-Senior Appraised Value: | + | N/A | |
| | | -------------------------- | |
| (=) Total Appraised Value: | = | N/A | |
| (–) Senior Exemption Loss: | – | N/A | |
| (–) Exemption Loss: | – | N/A | |
| | | -------------------------- | |
| (=) Taxable Value: | = | N/A | |
Taxing Jurisdiction
| Owner: | JANTZER LEVI A & MARIE M | | |
| % Ownership: | 100.0000000000% | | |
| Total Value: | N/A | | |
| Tax Area: | 50 - 228 F6 CD2 H1 PK2 W3 |
| 110001 | County Road General | N/A | N/A | N/A | N/A | | |
| 010170 | Chelan County | N/A | N/A | N/A | N/A | | |
| 155001 | Veteran's Relief | N/A | N/A | N/A | N/A | | |
| 160001 | Mental Health | N/A | N/A | N/A | N/A | | |
| 657201 | Cemetery No 2 | N/A | N/A | N/A | N/A | | |
| 656601 | Fire No 6 General | N/A | N/A | N/A | N/A | | |
| 107001 | Flood Control Zone | N/A | N/A | N/A | N/A | | |
| 654175 | Cascade SD 228 Cap Projects | N/A | N/A | N/A | N/A | | |
| 652001 | State School Refund | N/A | N/A | N/A | N/A | | |
| 652003 | State School 2 | N/A | N/A | N/A | N/A | | |
| 652005 | State School | N/A | N/A | N/A | N/A | | |
| 652025 | State School 2 Refund | N/A | N/A | N/A | N/A | | |
| 677001 | Upper Valley Park & Rec General | N/A | N/A | N/A | N/A | | |
| 692101 | Hospital No 1 General | N/A | N/A | N/A | N/A | | |
| 692110 | Hospital No 1 Bond | N/A | N/A | N/A | N/A | | |
| 644001 | Regional Library | N/A | N/A | N/A | N/A | | |
| 671101 | Port General | N/A | N/A | N/A | N/A | | |
| 654161 | Cascade SD 228 General | N/A | N/A | N/A | N/A | | |
| 654170 | Cascade SD 228 Bond | N/A | N/A | N/A | N/A | | |
| | Total Tax Rate: | N/A | | | | | |
| | | | | Taxes w/Current Exemptions: | N/A | | |
| | | | | Taxes w/o Exemptions: | N/A | | |
Improvement / Building
| Improvement #1: | RESIDENTIAL | State Code: | 11 | 1151.0 sqft | Value: | N/A |
| Exterior Wall: | Wood Siding | Fireplace: | Single 1 Story | | Heating/Cooling: | Forced Air | Number of Bathrooms: | 2 | | Number of Bedrooms: | 5 |   |   |
|
| | Type | Description | Class CD | Sub Class CD | Year Built | Area |
| | MA | Main | FAIR | 1 STY | 1953 | 1151.0 |
| | BSMT-MF | BSMT FINISH - MINIMAL | FAIR | 1 STY | 1953 | 1079.0 |
| | BS-UFCB6 | BSMT AREA 6” CONC BLK (Pre-1989) | FAIR | 1 STY | 1953 | 1079.0 |
| | DECK | Open Wood Deck | FAIR | * | 1953 | 120.0 |
| | PP-OPEN | Open Concrete Porch | FAIR | * | 1953 | 400.0 |
| Improvement #2: | RESIDENTIAL | State Code: | 11 | 0.0 sqft | Value: | N/A |
Sketch
Property Image
Land
| 1 | SV 40K | SITE VALUE $40,000 | 0.2200 | 9600.00 | 0.00 | 0.00 | 1.00 | N/A | N/A |
Roll Value History
| 2026 | N/A | N/A | N/A | N/A | N/A |
| 2025 | $120,718 | $118,864 | $0 | $239,582 | $239,582 |
| 2024 | $162,798 | $131,776 | $0 | $294,574 | $294,574 |
| 2023 | $203,744 | $102,080 | $0 | $305,824 | $305,824 |
| 2022 | $190,891 | $76,560 | $0 | $267,451 | $267,451 |
| 2021 | $142,644 | $38,280 | $0 | $180,924 | $180,924 |
| 2020 | $170,607 | $34,800 | $0 | $205,407 | $205,407 |
| 2019 | $160,687 | $30,000 | $0 | $190,687 | $190,687 |
| 2018 | $119,863 | $31,590 | $0 | $151,453 | $151,453 |
| 2017 | $129,045 | $30,240 | $0 | $159,285 | $159,285 |
| 2016 | $130,421 | $29,904 | $0 | $160,325 | $160,325 |
| 2015 | $114,811 | $25,500 | $0 | $140,311 | $140,311 |
| 2014 | $108,443 | $30,000 | $0 | $138,443 | $138,443 |
| 2013 | $90,875 | $30,000 | $0 | $120,875 | $120,875 |
| 2012 | $86,169 | $30,000 | $0 | $116,169 | $116,169 |
| 2011 | $69,293 | $31,500 | $0 | $100,793 | $100,793 |
| 2010 | $119,046 | $30,000 | $0 | $149,046 | $149,046 |
| 2009 | $119,046 | $30,000 | $0 | $149,046 | $149,046 |
| 2008 | $119,046 | $30,000 | $0 | $149,046 | $149,046 |
| 2007 | $119,046 | $30,000 | $0 | $149,046 | $149,046 |
Deed and Sales History
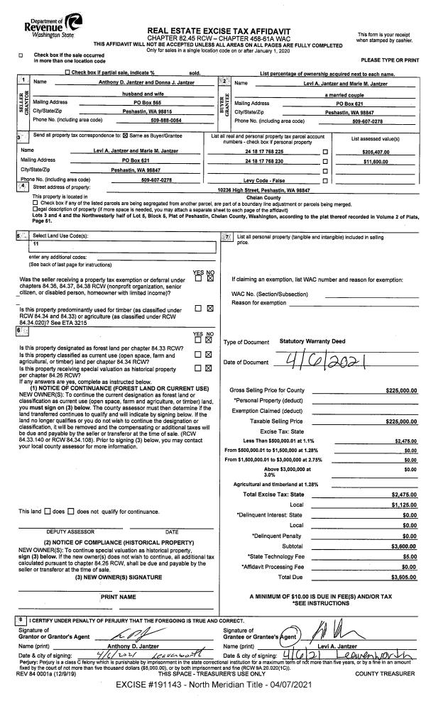
| 1 | 04/07/2021 | SWD | Statutory Warranty Deed | JANTZER ANTHONY D & DONNA J | JANTZER LEVI A & MARIE M | | | $225,000.00 | 191143 | 2540958 |
|   | |
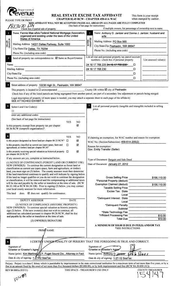
| 2 | 01/30/2012 | BARGAIN | Bargain & Sale Deed | FEDERAL NATIONAL MORTGAGE ASSOCIATION | JANTZER ANTHONY D & DONNA J | | | $156,110.00 | 154147 | 2355462 |
|   | |
| 3 | 08/05/2011 | TD | Trustee Deed | LANG JASON& MELINDA | FEDERAL NATIONAL MORTGAGE ASSOCIATION | | | $199,495.00 | 152621 | 2346971 |
|   | |
| 4 | 12/21/2007 | W | Warranty Deed | | LANG JASON& MELINDA | | | | 0 | 2272276 |
| 5 | 12/17/2007 | W | Warranty Deed | | | | | $230,000.00 | 14130801 | 2272276 |
| 6 | 09/20/2007 | O | Other | | DAN DITTRICH | | | | 0 | 2266189 |
| 7 | 09/20/2007 | O | Other | | | | | | 14031300 | 2266189 |
| 8 | 07/05/2005 | W | Warranty Deed | | GABRIEL T JASSO | | | | 0 | 2203432 |
| 9 | 07/05/2005 | W | Warranty Deed | | | | | $169,000.00 | 12880801 | 2203432 |
| 10 | 11/07/2001 | W | Warranty Deed | | DAN DITTRICH | | | | 0 | 2104382 |
| 11 | 11/07/2001 | O | Other | | | | | | 11197000 | 2104382 |
| 12 | 02/28/2001 | O | Other | | CITIMORTGAGE | | | | 0 | 2087178 |
| 13 | 02/23/2001 | W | Warranty Deed | | SECRETARY OF VETERNS AFFAIRS | | | | 0 | 2088508 |
| 14 | 02/23/2001 | W | Warranty Deed | | | | | $74,911.00 | 10895000 | 2088508 |
| 15 | 12/11/1997 | Q | Quit Claim Deed | KLEIN INA | KLEIN ELWIN | | | | 0 | 2013691 |
| 16 | 04/09/1990 | W | Warranty Deed | | ELWIN M KLEIN | 926 | 1027 | | 0 | |
| 17 | 07/29/1985 | OT | Conversion Code Only | | LAWERENCE V NICHOLICH | 845 | 1806 | | 0 | 8507290088 |
| 18 | 01/26/2001 | O | Other | | | | | | 10868500 | 2087178 |
Payout Agreement
| No payout information available.. |