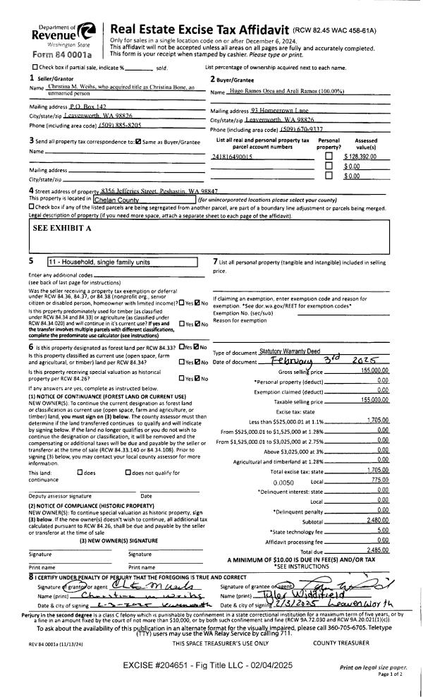
Property
Account |
| Property ID: | 30535 | Abbreviated Legal Description: | BRUYETTS LOT 3, 0.1200 ACRES |
| Geographic ID: | 241816490015 | Agent Code: | |
| Type: | Real | | |
| Tax Area: | 50 - 228 F6 CD2 H1 PK2 W3 | Land Use Code | 11 |
| Open Space: | N | DFL | N |
| Historic Property: | N | Remodel Property: | N |
| Multi-Family Redevelopment: | N | | |
| Township: | 24N | Section: | 16 |
| Range: | 18EWM | Legal Acres: | 0.1200 |
Location |
| Address: | 8356 JEFFERIES ST PESHASTIN, WA 98847 | Mapsco: | |
| Neighborhood: | Cycle 3 Peshastin/Dryden div 3 RES | Map ID: | 3PDRN03R01 |
| Neighborhood CD: | 3PDRN03R01 |
Owner |
| Name: | RAMOS OREA HUGO & ARELI | Owner ID: | 129009 |
| Mailing Address: | 93 HOMEGROWN LN LEAVENWORTH, WA 98826 | % Ownership: | % |
| | | Exemptions: | |
Pay Tax Due
There is currently No Amount Due on this property.
Taxes and Assessment Details
Values
| (+) Improvement Homesite Value: | + | $0 | |
| (+) Improvement Non-Homesite Value: | + | $35,378 | |
| (+) Land Homesite Value: | + | $0 | |
| (+) Land Non-Homesite Value: | + | $77,000 | |
| (+) Curr Use (HS): | + | $0 | $0 |
| (+) Curr Use (NHS): | + | $0 | $0 |
| | | -------------------------- | |
| (=) Market Value: | = | $112,378 | |
| (–) Productivity Loss: | – | $0 | |
| | | -------------------------- | |
| (=) Subtotal: | = | $112,378 | |
| (+) Senior Appraised Value: | + | $0 | |
| (+) Non-Senior Appraised Value: | + | $112,378 | |
| | | -------------------------- | |
| (=) Total Appraised Value: | = | $112,378 | |
| (–) Senior Exemption Loss: | – | $0 | |
| (–) Exemption Loss: | – | $0 | |
| | | -------------------------- | |
| (=) Taxable Value: | = | $112,378 | |
Taxing Jurisdiction
| Owner: | RAMOS OREA HUGO & ARELI | | |
| % Ownership: | 100.0000000000% | | |
| Total Value: | $112,378 | | |
| Tax Area: | 50 - 228 F6 CD2 H1 PK2 W3 |
| 110001 | County Road General | 0.7994434437 | $112,378 | $112,378 | $89.84 | | |
| 010170 | Chelan County | 0.7334053198 | $112,378 | $112,378 | $82.42 | | |
| 155001 | Veteran's Relief | 0.0086008201 | $112,378 | $112,378 | $0.97 | | |
| 160001 | Mental Health | 0.0189723974 | $112,378 | $112,378 | $2.13 | | |
| 657201 | Cemetery No 2 | 0.0475327785 | $112,378 | $112,378 | $5.34 | | |
| 656601 | Fire No 6 General | 0.3268983253 | $112,378 | $112,378 | $36.74 | | |
| 677001 | Upper Valley Park & Rec General | 0.0789016769 | $112,378 | $112,378 | $8.87 | | |
| 107001 | Flood Control Zone | 0.0408306198 | $112,378 | $112,378 | $4.59 | | |
| 654170 | Cascade SD 228 Bond | 0.9880085834 | $112,378 | $112,378 | $111.03 | | |
| 654175 | Cascade SD 228 Cap Projects | 0.1180568217 | $112,378 | $112,378 | $13.27 | | |
| 652001 | State School Refund | 0.0000273969 | $112,378 | $112,378 | $0.00 | | |
| 652003 | State School 2 | 0.8917891157 | $112,378 | $112,378 | $100.22 | | |
| 652005 | State School | 1.6674243773 | $112,378 | $112,378 | $187.38 | | |
| 652025 | State School 2 Refund | 0.0000148770 | $112,378 | $112,378 | $0.00 | | |
| 692101 | Hospital No 1 General | 0.1385914007 | $112,378 | $112,378 | $15.57 | | |
| 692110 | Hospital No 1 Bond | 0.1428539513 | $112,378 | $112,378 | $16.05 | | |
| 692150 | Hospital No 1 EMS | 0.3876855425 | $112,378 | $112,378 | $43.57 | | |
| 644001 | Regional Library | 0.2864488554 | $112,378 | $112,378 | $32.19 | | |
| 671101 | Port General | 0.1756188309 | $112,378 | $112,378 | $19.74 | | |
| 654161 | Cascade SD 228 General | 0.7839181944 | $112,378 | $112,378 | $88.10 | | |
| | Total Tax Rate: | 7.6350233287 | | | | | |
| | | | | Taxes w/Current Exemptions: | $858.02 | | |
| | | | | Taxes w/o Exemptions: | $858.02 | | |
Improvement / Building
| Improvement #1: | MOBILE HOME | State Code: | 11 | 910.0 sqft | Value: | $35,378 |
| Exterior Wall: | Metal or Vinyl | Number of Bathrooms: | 2 | | Number of Bedrooms: | 3 |   |   |
|
| | Type | Description | Class CD | Sub Class CD | Year Built | Area |
| | MH1 | MH SINGLE | LOW | MBL HOME | 1976 | 910.0 |
| | DECK | Open Wood Deck | FAIR | | 1976 | 128.0 |
Sketch
| No sketches available for this property. |
Property Image
Land
| 1 | SV 35K | SITE VALUE $35,000 | 0.1200 | 5400.00 | 0.00 | 0.00 | 1.00 | $77,000 | $0 |
Roll Value History
| 2026 | N/A | N/A | N/A | N/A | N/A |
| 2025 | $0 | $136,850 | $0 | $136,850 | $136,850 |
| 2024 | $31,139 | $99,400 | $0 | $130,539 | $130,539 |
| 2023 | $51,392 | $77,000 | $0 | $128,392 | $128,392 |
| 2022 | $35,378 | $77,000 | $0 | $112,378 | $112,378 |
| 2021 | $26,000 | $38,500 | $0 | $64,500 | $64,500 |
| 2020 | $25,802 | $35,000 | $0 | $60,802 | $60,802 |
| 2019 | $17,131 | $35,000 | $0 | $52,131 | $52,131 |
| 2018 | $18,629 | $31,500 | $0 | $50,129 | $50,129 |
| 2017 | $18,735 | $31,500 | $0 | $50,235 | $50,235 |
| 2016 | $11,437 | $31,150 | $0 | $42,587 | $42,587 |
| 2015 | $13,436 | $29,750 | $0 | $43,186 | $43,186 |
| 2014 | $9,841 | $35,000 | $0 | $44,841 | $44,841 |
| 2013 | $9,518 | $35,000 | $0 | $44,518 | $44,518 |
| 2012 | $8,566 | $35,000 | $0 | $43,566 | $43,566 |
| 2011 | $6,662 | $36,750 | $0 | $43,412 | $43,412 |
| 2010 | $7,223 | $35,000 | $0 | $42,223 | $42,223 |
| 2009 | $7,223 | $35,000 | $0 | $42,223 | $42,223 |
| 2008 | $7,223 | $35,000 | $0 | $42,223 | $42,223 |
| 2007 | $7,223 | $35,000 | $0 | $42,223 | $42,223 |
Deed and Sales History
| 1 | 02/04/2025 | SWD | Statutory Warranty Deed | WEIHS CHRISTINA M | RAMOS OREA HUGO & ARELI | | | $155,000.00 | 204651 | 2604034 |
| 2 | 03/20/2020 | J | Judgement | | WEIHS CHRISTINA M | | | | 0 | 2512924 |
| 3 | 05/20/2019 | SWD | Statutory Warranty Deed | ELLISON JEREMIAH D & JOSHUA D ELLISON | WEIHS CHRISTINA M | | | $99,000.00 | 182930 | 2496212 |
| 4 | 05/20/2019 | MH TITLE | Mobile Home Title | ELLISON JOSHUA D | WEIHS CHRISTINA M | | | | 182934 | |
| 5 | 07/13/2016 | Q | Quit Claim Deed | MAC DONALD KIM ETAL | ELLISON JEREMIAH D | | | $16,308.00 | 170713 | 2440297 |
| 6 | 11/26/2013 | Q | Quit Claim Deed | SCHMITT JALEEN & KIM MACDONALD | ELLISON JOSHUA D | | | $0.00 | 160744 | 2393398 |
| 7 | 06/28/2013 | TD | Trustee Deed | ELLISON CURT | SCHMITT JALEEN & KIM MACDONALD | | | $16,300.00 | 159235 | 2385080 |
| 8 | 06/01/2004 | TAX | Tax Deed | CHELAN CO TREAS | ELLISON CURT | | | | 0 | 2174918 |
| 9 | 12/18/2003 | TAX | Tax Deed | | ELLISON CURT | | | | 0 | 2163331 |
| 10 | 12/27/1984 | SWD | Statutory Warranty Deed | | EMMA MINKS | 837 | 602 | | 0 | |
| 11 | 06/02/2004 | O | Other | | | | | | 12300900 | 2174918 |
| 12 | 12/18/2003 | Q | Quit Claim Deed | | | | | | 12099300 | 2163331 |
| 13 | 03/06/1997 | O | Other | | | 0 | 0 | | 9312100 | |
Payout Agreement
| No payout information available.. |