Property
Account |
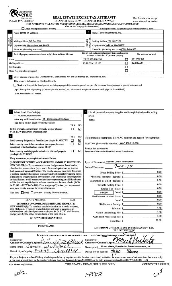
Property ID: | 26256 | Abbreviated Legal Description: | T 23N R 20EWM S 33 NENE 0.9800 ACRES |
Geographic ID: | 232033110150 | Agent Code: | |
Type: | Real | | |
Tax Area: | 803 - W 246 F1 WVFD | Land Use Code | 11 |
Open Space: | N | DFL | N |
Historic Property: | N | Remodel Property: | N |
Multi-Family Redevelopment: | N | | |
Township: | 23N | Section: | 33 |
Range: | 20EWM | Legal Acres: | 0.9800 |
Location |
Address: | 38 E HAWLEY ST WENATCHEE, WA 98801 | Mapsco: | |
Neighborhood: | Cycle 2 Wenatchee lower div 1 RES | Map ID: | 2WENL01R01 |
Neighborhood CD: | 2WENL01R01 |
Owner |
Name: | WATER WORKS PROPERTIES LLC | Owner ID: | 74170 |
Mailing Address: | 1 5TH ST NE STE 250 WENATCHEE, WA 98801 | % Ownership: | % |
| | Exemptions: | |
Pay Tax Due
Select the appropriate checkbox next to the year to be paid. Multiple years may be selected.
*Convenience Fee not included
Taxes and Assessment Details
Values
(+) Improvement Homesite Value: | + | $0 | |
(+) Improvement Non-Homesite Value: | + | $0 | |
(+) Land Homesite Value: | + | $0 | |
(+) Land Non-Homesite Value: | + | $80,000 | |
(+) Curr Use (HS): | + | $0 | $0 |
(+) Curr Use (NHS): | + | $0 | $0 |
| | -------------------------- | |
(=) Market Value: | = | $80,000 | |
(–) Productivity Loss: | – | $0 | |
| | -------------------------- | |
(=) Subtotal: | = | $80,000 | |
(+) Senior Appraised Value: | + | $0 | |
(+) Non-Senior Appraised Value: | + | $80,000 | |
| | -------------------------- | |
(=) Total Appraised Value: | = | $80,000 | |
(–) Senior Exemption Loss: | – | $0 | |
(–) Exemption Loss: | – | $0 | |
| | -------------------------- | |
(=) Taxable Value: | = | $80,000 | |
Taxing Jurisdiction
Owner: | WATER WORKS PROPERTIES LLC | | |
% Ownership: | 100.0000000000% | | |
Total Value: | N/A | | |
Tax Area: | 803 - W 246 F1 WVFD |
010170 | Chelan County | N/A | N/A | N/A | N/A | | |
155001 | Veteran's Relief | N/A | N/A | N/A | N/A | | |
160001 | Mental Health | N/A | N/A | N/A | N/A | | |
656101 | Fire No 1 General | N/A | N/A | N/A | N/A | | |
656110 | Fire No 1 Bond | N/A | N/A | N/A | N/A | | |
644001 | Regional Library | N/A | N/A | N/A | N/A | | |
652025 | State School 2 Refund | N/A | N/A | N/A | N/A | | |
693041 | Wenatchee General | N/A | N/A | N/A | N/A | | |
107001 | Flood Control Zone | N/A | N/A | N/A | N/A | | |
656201 | Wenatchee Valley Fire Department | N/A | N/A | N/A | N/A | | |
671101 | Port General | N/A | N/A | N/A | N/A | | |
654201 | Wenatchee SD 246 General | N/A | N/A | N/A | N/A | | |
654210 | Wenatchee SD 246 Bond | N/A | N/A | N/A | N/A | | |
652001 | State School Refund | N/A | N/A | N/A | N/A | | |
652003 | State School 2 | N/A | N/A | N/A | N/A | | |
652005 | State School | N/A | N/A | N/A | N/A | | |
| Total Tax Rate: | N/A | | | | | |
| | | | Taxes w/Current Exemptions: | N/A | | |
| | | | Taxes w/o Exemptions: | N/A | | |
Improvement / Building
Sketch
No sketches available for this property. |
Property Image
Land
1 | SV 80K | SITE VALUE $80,000 | 0.9800 | 42689.00 | 0.00 | 0.00 | 1.00 | $80,000 | $0 |
Roll Value History
2025 | N/A | N/A | N/A | N/A | N/A |
2024 | $0 | $80,000 | $0 | $80,000 | $80,000 |
2023 | $0 | $134,400 | $0 | $134,400 | $134,400 |
2022 | $0 | $80,000 | $0 | $80,000 | $80,000 |
2021 | $0 | $80,000 | $0 | $80,000 | $80,000 |
2020 | $0 | $80,000 | $0 | $80,000 | $80,000 |
2019 | $0 | $80,000 | $0 | $80,000 | $80,000 |
2018 | $0 | $80,000 | $0 | $80,000 | $80,000 |
2017 | $0 | $80,000 | $0 | $80,000 | $80,000 |
2016 | $0 | $80,000 | $0 | $80,000 | $80,000 |
2015 | $0 | $80,000 | $0 | $80,000 | $80,000 |
2014 | $0 | $80,000 | $0 | $80,000 | $80,000 |
2013 | $0 | $80,000 | $0 | $80,000 | $80,000 |
2012 | $53,476 | $60,000 | $0 | $113,476 | $113,476 |
2011 | $60,877 | $60,000 | $0 | $120,877 | $120,877 |
2010 | $72,150 | $60,000 | $0 | $132,150 | $132,150 |
2009 | $71,207 | $40,000 | $0 | $111,207 | $111,207 |
2008 | $71,207 | $40,000 | $0 | $111,207 | $111,207 |
2007 | $71,207 | $40,000 | $0 | $111,207 | $111,207 |
2006 | $71,207 | $40,000 | $0 | $111,207 | $111,207 |
Deed and Sales History
1 | 12/28/2011 | SWD | Statutory Warranty Deed | TOWER INVESTMENTS INC | WATER WORKS PROPERTIES LLC | | | $207,286.00 | 153909 | 2353925 |
  | |
2 | 09/10/2010 | F | Foreclosure Deed | WALLACE JAMES W JR | TOWER INVESTMENTS INC | | | | 149958 | 2329405 |
3 | 03/28/2001 | Q | Quit Claim Deed | ALLISON WALLACE | JAME WALLACE JR | | | | 0 | 2090369 |
4 | 03/28/2001 | Q | Quit Claim Deed | JA WALLACE VII | JAM WALLACE JR | | | | 0 | 2090368 |
5 | 03/28/2001 | O | Other | | WALLACE JAMES W JR | | | | 0 | 2090367 |
6 | 03/28/2001 | PR | Personal Representatives Deed | JOHN WALLACE | ALLISON WALLACE | | | | 0 | 2090366 |
7 | 03/28/2001 | PR | Personal Representatives Deed | JOHN WALLACE | J WALLACE VII | | | | 0 | 2090365 |
8 | 09/23/1948 | W | Warranty Deed | | JAMES W WALLACE SR | 442 | 232 | | 0 | |
9 | 03/28/2001 | Q | Quit Claim Deed | | | | | $37,864.00 | 10928001 | 2090369 |
10 | 03/28/2001 | Q | Quit Claim Deed | | | | | $37,864.00 | 10927901 | 2090368 |
11 | 03/28/2001 | O | Other | | | | | $75,728.00 | 10927801 | 2090367 |
12 | 03/28/2001 | O | Other | | | | | | 10927700 | 2090366 |
13 | 03/28/2001 | O | Other | | | | | | 10927600 | 2090365 |
Payout Agreement
No payout information available.. |