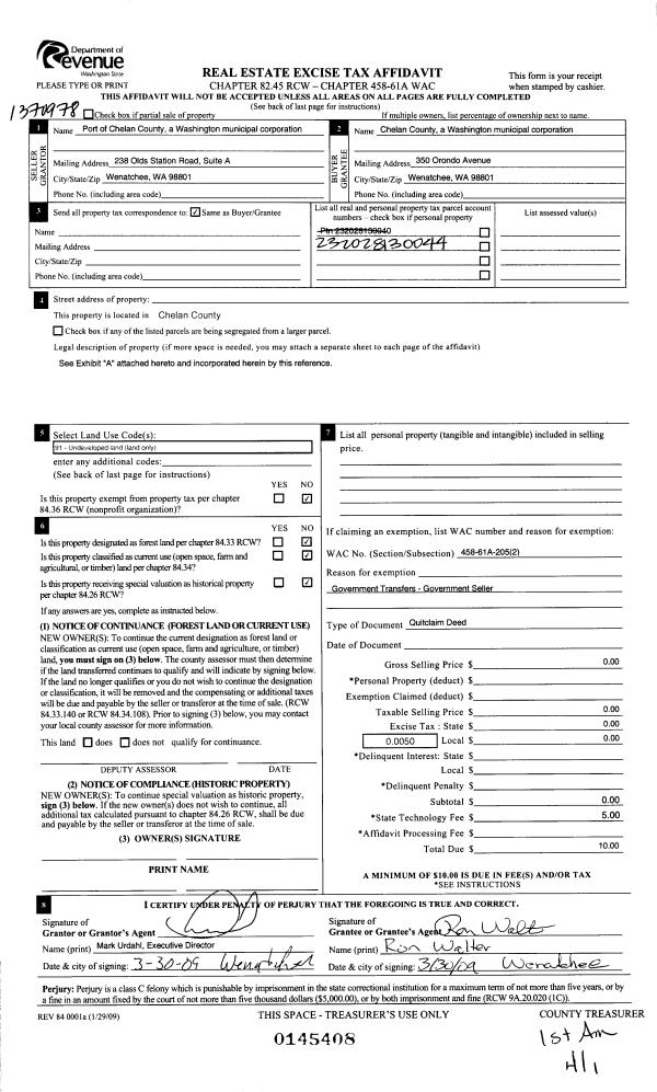
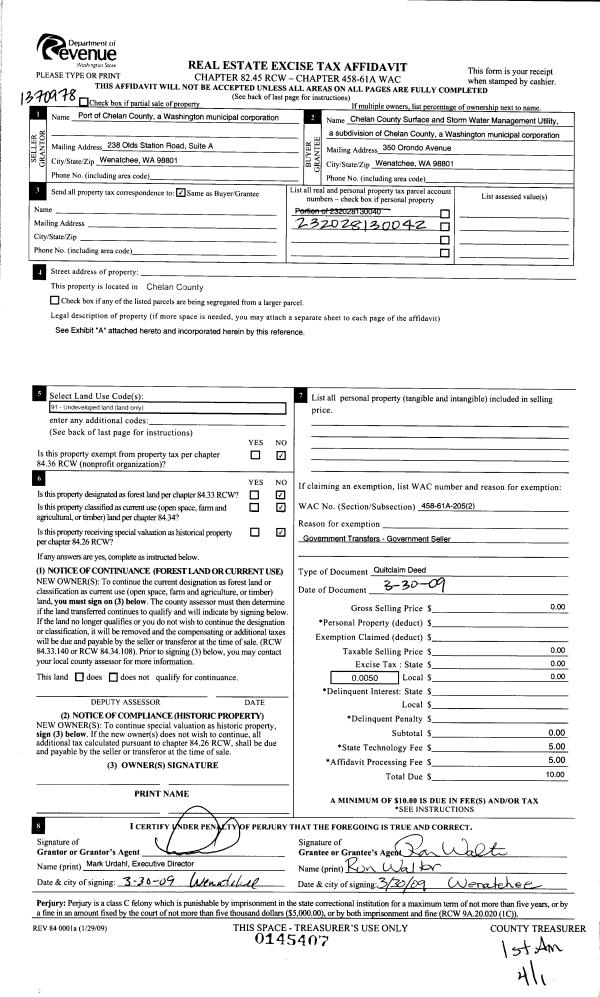
Property
Account |
| Property ID: | 25154 | Abbreviated Legal Description: | T 23N R 20EWM S 28 SWNE 25' STRIP SWNE LA CE 2009-006 CE 01-022 BA 99-88 & VAC ROW 14.7100 ACRES |
| Geographic ID: | 232028130040 | Agent Code: | |
| Type: | Real | | |
| Tax Area: | 804 - W 246 F1 CD3 WVFD | Land Use Code | 67 |
| Open Space: | N | DFL | N |
| Historic Property: | N | Remodel Property: | N |
| Multi-Family Redevelopment: | N | | |
| Township: | 23N | Section: | 28 |
| Range: | 20EWM | Legal Acres: | 14.7100 |
Location |
| Address: | 203 OLDS STATION RD WENATCHEE, WA 98801 | Mapsco: | |
| Neighborhood: | Cycle 2 Sunnyslope lower div 1 COM | Map ID: | 2SSLL01C01 |
| Neighborhood CD: | 2SSLL01C01 |
Owner |
| Name: | PUBLIC UTILITY DISTRICT NO 1 | Owner ID: | 12022 |
| Mailing Address: | OF CHELAN COUNTY PO BOX 1231 WENATCHEE, WA 98807 | % Ownership: | % |
| | | Exemptions: | EX |
Pay Tax Due
There is currently No Amount Due on this property.
Taxes and Assessment Details
Values
| (+) Improvement Homesite Value: | + | $0 | |
| (+) Improvement Non-Homesite Value: | + | $0 | |
| (+) Land Homesite Value: | + | $0 | |
| (+) Land Non-Homesite Value: | + | $0 | |
| (+) Curr Use (HS): | + | $0 | $0 |
| (+) Curr Use (NHS): | + | $0 | $0 |
| | | -------------------------- | |
| (=) Market Value: | = | $0 | |
| (–) Productivity Loss: | – | $0 | |
| | | -------------------------- | |
| (=) Subtotal: | = | $0 | |
| (+) Senior Appraised Value: | + | $0 | |
| (+) Non-Senior Appraised Value: | + | $0 | |
| | | -------------------------- | |
| (=) Total Appraised Value: | = | $0 | |
| (–) Senior Exemption Loss: | – | $0 | |
| (–) Exemption Loss: | – | $0 | |
| | | -------------------------- | |
| (=) Taxable Value: | = | $0 | |
Taxing Jurisdiction
| Owner: | PUBLIC UTILITY DISTRICT NO 1 | | |
| % Ownership: | 100.0000000000% | | |
| Total Value: | $0 | | |
| Tax Area: | 804 - W 246 F1 CD3 WVFD |
| 010170 | Chelan County | 0.7334053198 | $0 | $0 | $0.00 | | |
| 155001 | Veteran's Relief | 0.0086008201 | $0 | $0 | $0.00 | | |
| 160001 | Mental Health | 0.0189723974 | $0 | $0 | $0.00 | | |
| 657301 | Cemetery No 3 | 0.0300003333 | $0 | $0 | $0.00 | | |
| 656101 | Fire No 1 General | 0.0000000000 | $0 | $0 | $0.00 | | |
| 656110 | Fire No 1 Bond | 0.0000000000 | $0 | $0 | $0.00 | | |
| 644001 | Regional Library | 0.2864488554 | $0 | $0 | $0.00 | | |
| 671101 | Port General | 0.1756188309 | $0 | $0 | $0.00 | | |
| 654201 | Wenatchee SD 246 General | 1.7001724839 | $0 | $0 | $0.00 | | |
| 654210 | Wenatchee SD 246 Bond | 0.8546844869 | $0 | $0 | $0.00 | | |
| 652001 | State School Refund | 0.0000273969 | $0 | $0 | $0.00 | | |
| 652003 | State School 2 | 0.8917891157 | $0 | $0 | $0.00 | | |
| 652005 | State School | 1.6674243773 | $0 | $0 | $0.00 | | |
| 652025 | State School 2 Refund | 0.0000148770 | $0 | $0 | $0.00 | | |
| 693041 | Wenatchee General | 0.9471465208 | $0 | $0 | $0.00 | | |
| 107001 | Flood Control Zone | 0.0408306198 | $0 | $0 | $0.00 | | |
| 656201 | Wenatchee Valley Fire Department | 1.5000000000 | $0 | $0 | $0.00 | | |
| | Total Tax Rate: | 8.8551364352 | | | | | |
| | | | | Taxes w/Current Exemptions: | $0.00 | | |
| | | | | Taxes w/o Exemptions: | $0.00 | | |
Improvement / Building
| Improvement #1: | COMMERCIAL | State Code: | 67 | 121670.0 sqft | Value: | $0 |
Sketch
| No sketches available for this property. |
Property Image
Land
| 1 | COM LAND | COMMERCIAL LAND | 14.7100 | 640767.60 | 0.00 | 0.00 | 1.00 | $0 | $0 |
Roll Value History
| 2026 | N/A | N/A | N/A | N/A | N/A |
| 2025 | $0 | $0 | $0 | $0 | $0 |
| 2024 | $0 | $0 | $0 | $0 | $0 |
| 2023 | $0 | $0 | $0 | $0 | $0 |
| 2022 | $0 | $0 | $0 | $0 | $0 |
| 2021 | $0 | $0 | $0 | $0 | $0 |
| 2020 | $0 | $0 | $0 | $0 | $0 |
| 2019 | $0 | $0 | $0 | $0 | $0 |
| 2018 | $0 | $0 | $0 | $0 | $0 |
| 2017 | $0 | $0 | $0 | $0 | $0 |
| 2016 | $0 | $0 | $0 | $0 | $0 |
| 2015 | $0 | $4,290,224 | $0 | $4,290,224 | $0 |
| 2014 | $0 | $4,290,224 | $0 | $4,290,224 | $0 |
| 2013 | $0 | $1,225,778 | $0 | $1,225,778 | $0 |
| 2012 | $0 | $1,225,778 | $0 | $1,225,778 | $0 |
| 2011 | $0 | $1,225,778 | $0 | $1,225,778 | $0 |
| 2010 | $0 | $1,225,778 | $0 | $1,225,778 | $0 |
| 2009 | $0 | $1,225,778 | $0 | $1,225,778 | $0 |
| 2008 | $0 | $1,728,460 | $0 | $1,728,460 | $0 |
| 2007 | $0 | $1,728,460 | $0 | $1,728,460 | $0 |
Deed and Sales History
| 1 | 02/28/2019 | SWD | Statutory Warranty Deed | PORT OF CHELAN COUNTY | PUBLIC UTILITY DISTRICT NO 1 | | | $0.00 | 182085 | 2492479 |
| 2 | 08/24/2001 | REF | Conversion Code Only | CE 2001-022 | | | | | 0 | 2100049 |
| 3 | 12/23/1996 | Q | Quit Claim Deed | PORT OF CHELAN | COUNTY | 1079 | 1837 | | 0 | |
| 4 | 11/04/1974 | WFD | Warranty Fulfillment Deed | HORAN BROS INC | | 723 | 1357 | | 0 | |
| 5 | | OT | Conversion Code Only | | PORT OF CHELAN COUNTY | 690 | 1588 | | 0 | |
| 6 | 09/26/1988 | REF | Conversion Code Only | BURLINGTON NORT | HERN RAILROAD | 0 | 0 | | 0 | |
| 7 | 03/29/1983 | REF | Conversion Code Only | SURVEY | BK 15 PG 2 | 0 | 0 | | 0 | |
Payout Agreement
| No payout information available.. |