Property
Account |
| Property ID: | 24662 | Abbreviated Legal Description: | SUNNYSLOPE FARMS BLOCK 82 SS# 317 PARCEL 4 0.5800 ACRES |
| Geographic ID: | 232020860262 | Agent Code: | |
| Type: | Real | | |
| Tax Area: | 74 - 246 F1 CD3 WVFD | Land Use Code | 11 |
| Open Space: | N | DFL | N |
| Historic Property: | N | Remodel Property: | N |
| Multi-Family Redevelopment: | N | | |
| Township: | 23N | Section: | 20 |
| Range: | 20EWM | Legal Acres: | 0.5800 |
Location |
| Address: | UNASSIGNED WENATCHEE, WA 98801 | Mapsco: | |
| Neighborhood: | Cycle 2 Sunnyslope mid div 1 RES | Map ID: | 2SSLM01R01 |
| Neighborhood CD: | 2SSLM01R01 |
Owner |
| Name: | OGLE RANDALL W & SHELIA D | Owner ID: | 45349 |
| Mailing Address: | 3314 CRESTVIEW RD WENATCHEE, WA 98801 | % Ownership: | % |
| | | Exemptions: | |
Pay Tax Due
Select the appropriate checkbox next to the year to be paid. Multiple years may be selected.
*Convenience Fee not included
Taxes and Assessment Details
Values
| (+) Improvement Homesite Value: | + | N/A | |
| (+) Improvement Non-Homesite Value: | + | N/A | |
| (+) Land Homesite Value: | + | N/A | |
| (+) Land Non-Homesite Value: | + | N/A | Ag / Timber Use Value |
| (+) Curr Use (HS): | + | N/A | N/A |
| (+) Curr Use (NHS): | + | N/A | N/A |
| | | -------------------------- | |
| (=) Market Value: | = | N/A | |
| (–) Productivity Loss: | – | N/A | |
| | | -------------------------- | |
| (=) Subtotal: | = | N/A | |
| (+) Senior Appraised Value: | + | N/A | |
| (+) Non-Senior Appraised Value: | + | N/A | |
| | | -------------------------- | |
| (=) Total Appraised Value: | = | N/A | |
| (–) Senior Exemption Loss: | – | N/A | |
| (–) Exemption Loss: | – | N/A | |
| | | -------------------------- | |
| (=) Taxable Value: | = | N/A | |
Taxing Jurisdiction
| Owner: | OGLE RANDALL W & SHELIA D | | |
| % Ownership: | 100.0000000000% | | |
| Total Value: | N/A | | |
| Tax Area: | 74 - 246 F1 CD3 WVFD |
| 110001 | County Road General | N/A | N/A | N/A | N/A | | |
| 010170 | Chelan County | N/A | N/A | N/A | N/A | | |
| 155001 | Veteran's Relief | N/A | N/A | N/A | N/A | | |
| 160001 | Mental Health | N/A | N/A | N/A | N/A | | |
| 657301 | Cemetery No 3 | N/A | N/A | N/A | N/A | | |
| 656101 | Fire No 1 General | N/A | N/A | N/A | N/A | | |
| 652003 | State School 2 | N/A | N/A | N/A | N/A | | |
| 652005 | State School | N/A | N/A | N/A | N/A | | |
| 652025 | State School 2 Refund | N/A | N/A | N/A | N/A | | |
| 107001 | Flood Control Zone | N/A | N/A | N/A | N/A | | |
| 656201 | Wenatchee Valley Fire Department | N/A | N/A | N/A | N/A | | |
| 656110 | Fire No 1 Bond | N/A | N/A | N/A | N/A | | |
| 644001 | Regional Library | N/A | N/A | N/A | N/A | | |
| 671101 | Port General | N/A | N/A | N/A | N/A | | |
| 654201 | Wenatchee SD 246 General | N/A | N/A | N/A | N/A | | |
| 654210 | Wenatchee SD 246 Bond | N/A | N/A | N/A | N/A | | |
| 652001 | State School Refund | N/A | N/A | N/A | N/A | | |
| | Total Tax Rate: | N/A | | | | | |
| | | | | Taxes w/Current Exemptions: | N/A | | |
| | | | | Taxes w/o Exemptions: | N/A | | |
Improvement / Building
Sketch
| No sketches available for this property. |
Property Image
Land
| 1 | SV 90K | SITE VALUE $90,000 | 0.5800 | 25264.80 | 0.00 | 0.00 | 1.00 | N/A | N/A |
Roll Value History
| 2026 | N/A | N/A | N/A | N/A | N/A |
| 2025 | $0 | $198,450 | $0 | $198,450 | $198,450 |
| 2024 | $0 | $198,900 | $0 | $198,900 | $198,900 |
| 2023 | $0 | $203,400 | $0 | $203,400 | $203,400 |
| 2022 | $0 | $200,124 | $0 | $200,124 | $200,124 |
| 2021 | $0 | $153,252 | $0 | $153,252 | $153,252 |
| 2020 | $0 | $146,196 | $0 | $146,196 | $146,196 |
| 2019 | $0 | $123,795 | $0 | $123,795 | $123,795 |
| 2018 | $0 | $118,989 | $0 | $118,989 | $118,989 |
| 2017 | $0 | $64,590 | $0 | $64,590 | $64,590 |
| 2016 | $0 | $49,980 | $0 | $49,980 | $49,980 |
| 2015 | $0 | $48,804 | $0 | $48,804 | $48,804 |
| 2014 | $0 | $48,804 | $0 | $48,804 | $48,804 |
| 2013 | $0 | $48,450 | $0 | $48,450 | $48,450 |
| 2012 | $0 | $54,150 | $0 | $54,150 | $54,150 |
| 2011 | $0 | $57,000 | $0 | $57,000 | $57,000 |
| 2010 | $0 | $60,000 | $0 | $60,000 | $60,000 |
| 2009 | $0 | $50,000 | $0 | $50,000 | $50,000 |
| 2008 | $0 | $50,000 | $0 | $50,000 | $50,000 |
| 2007 | $0 | $50,000 | $0 | $50,000 | $50,000 |
Deed and Sales History
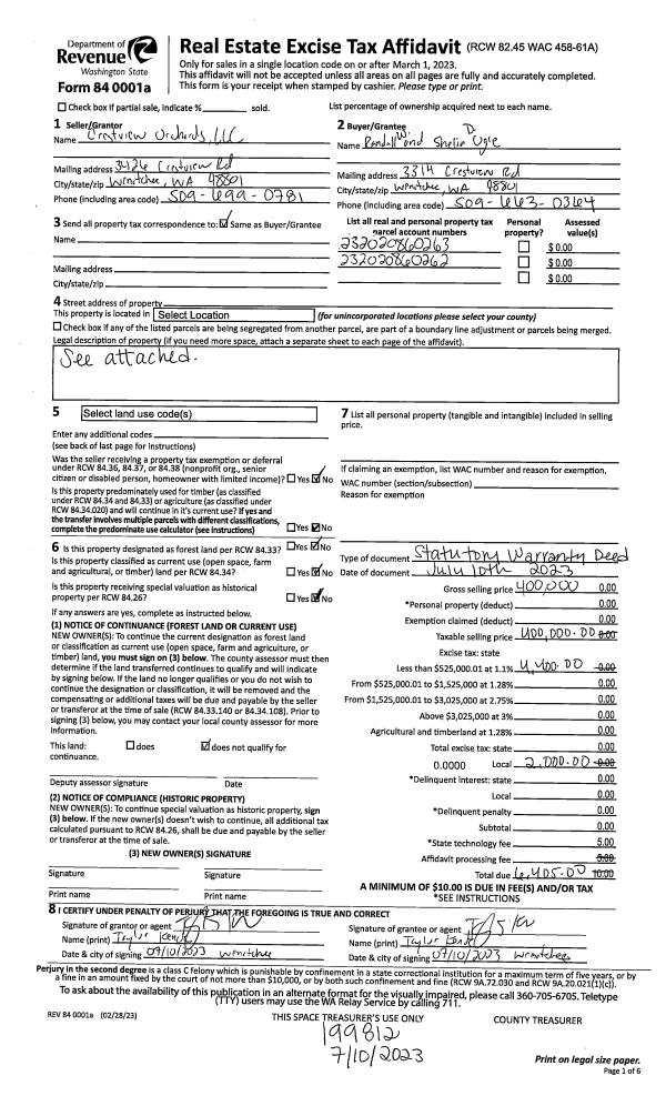
| 1 | 07/10/2023 | SWD | Statutory Warranty Deed | CRESTVIEW ORCHARDS LLC | OGLE RANDALL W & SHELIA D | | | $400,000.00 | 199812 | 2583523 |
|   | |
| 2 | 05/19/2023 | Q | Quit Claim Deed | SMITH LYNN O & VIRGINIA | CRESTVIEW ORCHARDS LLC | | | $0.00 | 199350 | 2581624 |
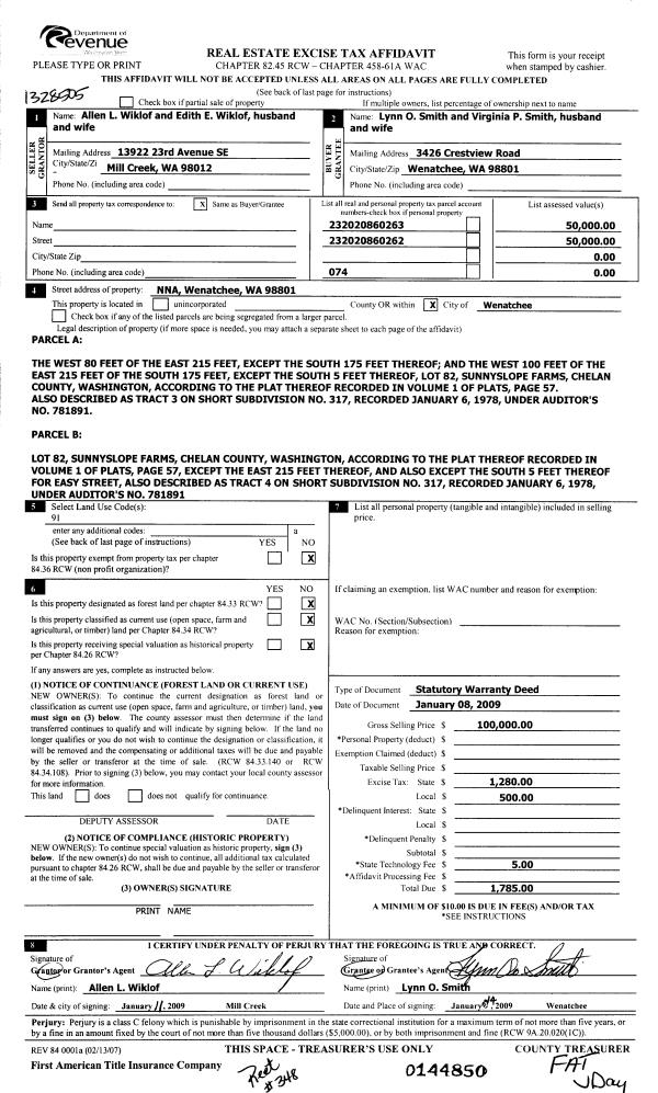
| 3 | 01/15/2009 | SWD | Statutory Warranty Deed | | SMITH LYNN O & VIRGINIA | | | $100,000.00 | 144850 | 2295834 |
|   | |
| 4 | 08/24/1995 | O | Other | SURVEY | BK 34 PG 40 | 0 | 0 | | 0 | |
| 5 | 04/17/1978 | SWD | Statutory Warranty Deed | | WIKLOF ALLEN L | 751 | 904 | | 0 | |
Payout Agreement
| No payout information available.. |