Property
Account |
Property ID: | 23813 | Abbreviated Legal Description: | MOUNTAIN BROOK PHASE 3 LOT 78 0.7500 ACRES |
Geographic ID: | 232016694780 | Agent Code: | |
Type: | Real | | |
Tax Area: | 74 - 246 F1 CD3 WVFD | Land Use Code | 11 |
Open Space: | N | DFL | N |
Historic Property: | N | Remodel Property: | N |
Multi-Family Redevelopment: | N | | |
Township: | 23N | Section: | 16 |
Range: | 20EWM | Legal Acres: | 0.7500 |
Location |
Address: | 125 W MOUNTAIN BROOK LN WENATCHEE, WA 98801 | Mapsco: | |
Neighborhood: | Cycle 2 Sunnyslope upper div 1 RES | Map ID: | 2SSLU01R01 |
Neighborhood CD: | 2SSLU01R01 |
Owner |
Name: | KATZBERG MARTIN A & MARY A | Owner ID: | 120110 |
Mailing Address: | 405 RAMONA AVE WENATCHEE, WA 98801 | % Ownership: | % |
| | Exemptions: | |
Pay Tax Due
There is currently No Amount Due on this property.
Taxes and Assessment Details
Values
(+) Improvement Homesite Value: | + | $0 | |
(+) Improvement Non-Homesite Value: | + | $0 | |
(+) Land Homesite Value: | + | $0 | |
(+) Land Non-Homesite Value: | + | $168,480 | |
(+) Curr Use (HS): | + | $0 | $0 |
(+) Curr Use (NHS): | + | $0 | $0 |
| | -------------------------- | |
(=) Market Value: | = | $168,480 | |
(–) Productivity Loss: | – | $0 | |
| | -------------------------- | |
(=) Subtotal: | = | $168,480 | |
(+) Senior Appraised Value: | + | $0 | |
(+) Non-Senior Appraised Value: | + | $168,480 | |
| | -------------------------- | |
(=) Total Appraised Value: | = | $168,480 | |
(–) Senior Exemption Loss: | – | $0 | |
(–) Exemption Loss: | – | $0 | |
| | -------------------------- | |
(=) Taxable Value: | = | $168,480 | |
Taxing Jurisdiction
Owner: | KATZBERG MARTIN A & MARY A | | |
% Ownership: | 100.0000000000% | | |
Total Value: | N/A | | |
Tax Area: | 74 - 246 F1 CD3 WVFD |
110001 | County Road General | N/A | N/A | N/A | N/A | | |
010170 | Chelan County | N/A | N/A | N/A | N/A | | |
155001 | Veteran's Relief | N/A | N/A | N/A | N/A | | |
160001 | Mental Health | N/A | N/A | N/A | N/A | | |
657301 | Cemetery No 3 | N/A | N/A | N/A | N/A | | |
656101 | Fire No 1 General | N/A | N/A | N/A | N/A | | |
652003 | State School 2 | N/A | N/A | N/A | N/A | | |
652005 | State School | N/A | N/A | N/A | N/A | | |
652025 | State School 2 Refund | N/A | N/A | N/A | N/A | | |
107001 | Flood Control Zone | N/A | N/A | N/A | N/A | | |
656201 | Wenatchee Valley Fire Department | N/A | N/A | N/A | N/A | | |
656110 | Fire No 1 Bond | N/A | N/A | N/A | N/A | | |
644001 | Regional Library | N/A | N/A | N/A | N/A | | |
671101 | Port General | N/A | N/A | N/A | N/A | | |
654201 | Wenatchee SD 246 General | N/A | N/A | N/A | N/A | | |
654210 | Wenatchee SD 246 Bond | N/A | N/A | N/A | N/A | | |
652001 | State School Refund | N/A | N/A | N/A | N/A | | |
| Total Tax Rate: | N/A | | | | | |
| | | | Taxes w/Current Exemptions: | N/A | | |
| | | | Taxes w/o Exemptions: | N/A | | |
Improvement / Building
Sketch
No sketches available for this property. |
Property Image
Land
1 | SV 90K | SITE VALUE $90,000 | 0.7500 | 32670.00 | 0.00 | 0.00 | 1.00 | $168,480 | $0 |
Roll Value History
2025 | N/A | N/A | N/A | N/A | N/A |
2024 | $0 | $167,184 | $0 | $167,184 | $167,184 |
2023 | $0 | $168,021 | $0 | $168,021 | $168,021 |
2022 | $0 | $128,331 | $0 | $128,331 | $128,331 |
2021 | $0 | $111,384 | $0 | $111,384 | $111,384 |
2020 | $0 | $96,408 | $0 | $96,408 | $96,408 |
2019 | $0 | $96,408 | $0 | $96,408 | $96,408 |
2018 | $0 | $88,065 | $0 | $88,065 | $88,065 |
2017 | $0 | $88,992 | $0 | $88,992 | $88,992 |
2016 | $0 | $88,992 | $0 | $88,992 | $88,992 |
2015 | $0 | $74,160 | $0 | $74,160 | $74,160 |
2014 | $0 | $72,846 | $0 | $72,846 | $72,846 |
2013 | $0 | $61,425 | $0 | $61,425 | $61,425 |
2012 | $0 | $85,500 | $0 | $85,500 | $85,500 |
2011 | $0 | $90,000 | $0 | $90,000 | $90,000 |
2010 | $0 | $85,000 | $0 | $85,000 | $85,000 |
2009 | $0 | $125,000 | $0 | $125,000 | $125,000 |
2008 | $0 | $125,000 | $0 | $125,000 | $125,000 |
2007 | $0 | $125,000 | $0 | $125,000 | $125,000 |
2006 | $0 | $0 | $0 | $0 | $0 |
Deed and Sales History
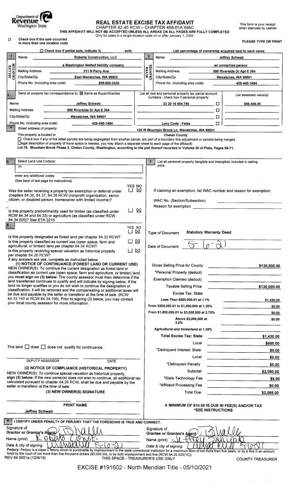
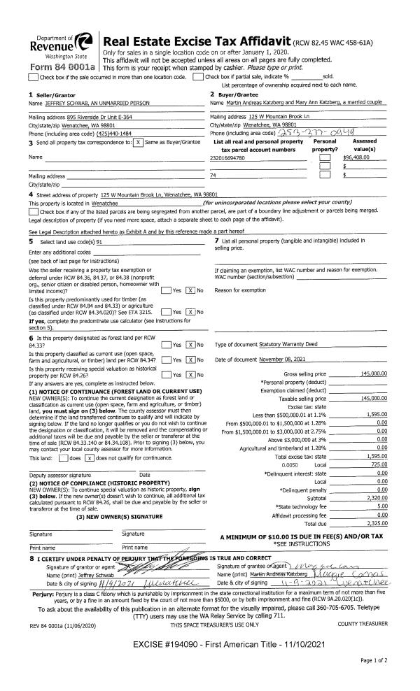
1 | 11/10/2021 | SWD | Statutory Warranty Deed | SCHWAB JEFFREY | KATZBERG MARTIN A & MARY A | | | $145,000.00 | 194090 | 2556667 |
2 | 05/10/2021 | SWD | Statutory Warranty Deed | ROBERTS CONSTRUCTION LLC | SCHWAB JEFFREY | | | $130,000.00 | 191602 | 2543489 |
3 | 12/30/2013 | SWD | Statutory Warranty Deed | MOUNTAIN BROOK INVESTMENTS | ROBERTS CONSTRUCTION LLC | | | $470,000.00 | 161056 | 2394875 |
  | |
4 | 03/12/2004 | Q | Quit Claim Deed | | MOUNTAIN BROOK INVESTMENTS | | | | 0 | 2168831 |
Payout Agreement
No payout information available.. |