Property
Account |
Property ID: | 23811 | Abbreviated Legal Description: | MOUNTAIN BROOK PHASE 3 LOT 70 0.5100 ACRES |
Geographic ID: | 232016694700 | Agent Code: | |
Type: | Real | | |
Tax Area: | 74 - 246 F1 CD3 WVFD | Land Use Code | 11 |
Open Space: | N | DFL | N |
Historic Property: | N | Remodel Property: | N |
Multi-Family Redevelopment: | N | | |
Township: | 23N | Section: | 16 |
Range: | 20EWM | Legal Acres: | 0.5100 |
Location |
Address: | 197 W MOUNTAIN BROOK LN WENATCHEE, WA 98801 | Mapsco: | |
Neighborhood: | Cycle 2 Sunnyslope upper div 1 RES | Map ID: | 2SSLU01R01 |
Neighborhood CD: | 2SSLU01R01 |
Owner |
Name: | BERRETH MARK A & KATIE M | Owner ID: | 111478 |
Mailing Address: | 197 W MOUNTAIN BROOK LN WENATCHEE, WA 98801 | % Ownership: | % |
| | Exemptions: | |
Pay Tax Due
Select the appropriate checkbox next to the year to be paid. Multiple years may be selected.
*Convenience Fee not included
Taxes and Assessment Details
Values
(+) Improvement Homesite Value: | + | $0 | |
(+) Improvement Non-Homesite Value: | + | $610,261 | |
(+) Land Homesite Value: | + | $0 | |
(+) Land Non-Homesite Value: | + | $149,760 | |
(+) Curr Use (HS): | + | $0 | $0 |
(+) Curr Use (NHS): | + | $0 | $0 |
| | -------------------------- | |
(=) Market Value: | = | $760,021 | |
(–) Productivity Loss: | – | $0 | |
| | -------------------------- | |
(=) Subtotal: | = | $760,021 | |
(+) Senior Appraised Value: | + | $0 | |
(+) Non-Senior Appraised Value: | + | $760,021 | |
| | -------------------------- | |
(=) Total Appraised Value: | = | $760,021 | |
(–) Senior Exemption Loss: | – | $0 | |
(–) Exemption Loss: | – | $0 | |
| | -------------------------- | |
(=) Taxable Value: | = | $760,021 | |
Taxing Jurisdiction
Owner: | BERRETH MARK A & KATIE M | | |
% Ownership: | 100.0000000000% | | |
Total Value: | N/A | | |
Tax Area: | 74 - 246 F1 CD3 WVFD |
110001 | County Road General | N/A | N/A | N/A | N/A | | |
010170 | Chelan County | N/A | N/A | N/A | N/A | | |
155001 | Veteran's Relief | N/A | N/A | N/A | N/A | | |
160001 | Mental Health | N/A | N/A | N/A | N/A | | |
657301 | Cemetery No 3 | N/A | N/A | N/A | N/A | | |
656101 | Fire No 1 General | N/A | N/A | N/A | N/A | | |
652003 | State School 2 | N/A | N/A | N/A | N/A | | |
652005 | State School | N/A | N/A | N/A | N/A | | |
652025 | State School 2 Refund | N/A | N/A | N/A | N/A | | |
107001 | Flood Control Zone | N/A | N/A | N/A | N/A | | |
656201 | Wenatchee Valley Fire Department | N/A | N/A | N/A | N/A | | |
656110 | Fire No 1 Bond | N/A | N/A | N/A | N/A | | |
644001 | Regional Library | N/A | N/A | N/A | N/A | | |
671101 | Port General | N/A | N/A | N/A | N/A | | |
654201 | Wenatchee SD 246 General | N/A | N/A | N/A | N/A | | |
654210 | Wenatchee SD 246 Bond | N/A | N/A | N/A | N/A | | |
652001 | State School Refund | N/A | N/A | N/A | N/A | | |
| Total Tax Rate: | N/A | | | | | |
| | | | Taxes w/Current Exemptions: | N/A | | |
| | | | Taxes w/o Exemptions: | N/A | | |
Improvement / Building
Improvement #1: | RESIDENTIAL | State Code: | 11 | 1493.0 sqft | Value: | $610,261 |
Exterior Wall: | Plywood or Hrdbrd | Heating/Cooling: | Heat Pump | Number of Bathrooms: | 2.5 | Number of Bedrooms: | 3 |
|
| Type | Description | Class CD | Sub Class CD | Year Built | Area |
| MA | Main | GOOD | 1 STY | 2019 | 1493.0 |
| GAR-ATT | Attached Garage | GOOD | 1 STY | 2019 | 860.0 |
| BS-UFC8 | BSMT AREA 8” CONC | GOOD | 1 STY | 2019 | 1493.0 |
| BSMT-PF | BSMT FINISH - PARTITIONED | GOOD | 1 STY | 2019 | 1493.0 |
| PP-OPEN | Open Concrete Porch | AVERAGE | 1 STY | 2019 | 152.0 |
| PP-OPEN | Open Concrete Porch | AVERAGE | 1 STY | 2019 | 322.0 |
Sketch
Property Image
Land
1 | SV 80K | SITE VALUE $80,000 | 0.5100 | 22216.00 | 0.00 | 0.00 | 1.00 | $149,760 | $0 |
Roll Value History
2025 | N/A | N/A | N/A | N/A | N/A |
2024 | $577,050 | $148,608 | $0 | $725,658 | $725,658 |
2023 | $580,543 | $149,352 | $0 | $729,895 | $729,895 |
2022 | $590,045 | $114,072 | $0 | $704,117 | $704,117 |
2021 | $475,951 | $99,008 | $0 | $574,959 | $574,959 |
2020 | $458,453 | $85,696 | $0 | $544,149 | $544,149 |
2019 | $477,033 | $85,696 | $0 | $562,729 | $562,729 |
2018 | $0 | $78,280 | $0 | $78,280 | $78,280 |
2017 | $0 | $79,104 | $0 | $79,104 | $79,104 |
2016 | $0 | $79,104 | $0 | $79,104 | $79,104 |
2015 | $0 | $65,920 | $0 | $65,920 | $65,920 |
2014 | $0 | $64,752 | $0 | $64,752 | $64,752 |
2013 | $0 | $54,600 | $0 | $54,600 | $54,600 |
2012 | $0 | $76,000 | $0 | $76,000 | $76,000 |
2011 | $0 | $80,000 | $0 | $80,000 | $80,000 |
2010 | $0 | $80,000 | $0 | $80,000 | $80,000 |
2009 | $0 | $100,000 | $0 | $100,000 | $100,000 |
2008 | $0 | $100,000 | $0 | $100,000 | $100,000 |
2007 | $0 | $100,000 | $0 | $100,000 | $100,000 |
2006 | $0 | $0 | $0 | $0 | $0 |
Deed and Sales History
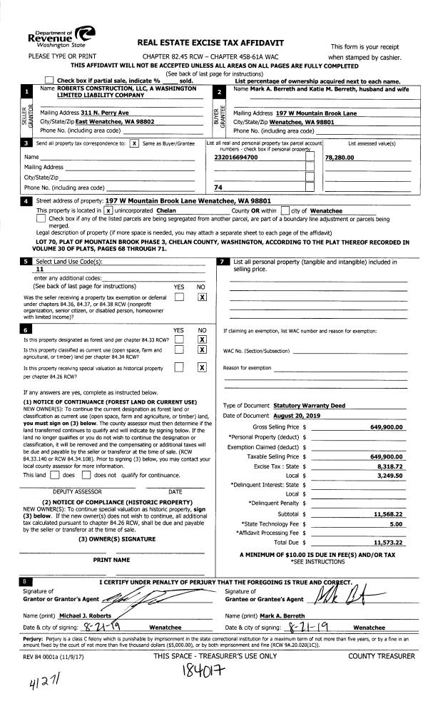
1 | 08/22/2019 | SWD | Statutory Warranty Deed | ROBERTS CONSTRUCTION LLC | BERRETH MARK A & KATIE M | | | $649,900.00 | 184017 | 2501220 |
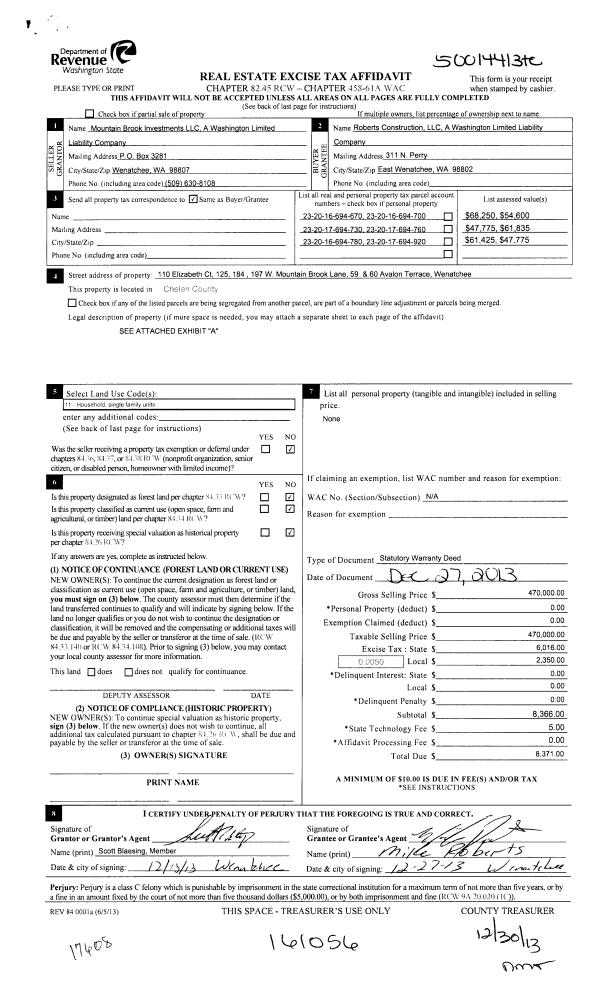
2 | 12/30/2013 | SWD | Statutory Warranty Deed | MOUNTAIN BROOK INVESTMENTS | ROBERTS CONSTRUCTION LLC | | | $470,000.00 | 161056 | 2394875 |
  | |
3 | 03/12/2004 | Q | Quit Claim Deed | | MOUNTAIN BROOK INVESTMENTS | | | | 0 | 2168831 |
Payout Agreement
No payout information available.. |