Property
Account |
Property ID: | 23808 | Abbreviated Legal Description: | MOUNTAIN BROOK PHASE 3 LOT 67 0.5700 ACRES |
Geographic ID: | 232016694670 | Agent Code: | |
Type: | Real | | |
Tax Area: | 74 - 246 F1 CD3 WVFD | Land Use Code | 11 |
Open Space: | N | DFL | N |
Historic Property: | N | Remodel Property: | N |
Multi-Family Redevelopment: | N | | |
Township: | 23N | Section: | 16 |
Range: | 20EWM | Legal Acres: | 0.5700 |
Location |
Address: | 184 W MOUNTAIN BROOK LN WENATCHEE, WA 98801 | Mapsco: | |
Neighborhood: | Cycle 2 Sunnyslope upper div 1 RES | Map ID: | 2SSLU01R01 |
Neighborhood CD: | 2SSLU01R01 |
Owner |
Name: | CLARK RONALD E & LORRAINE H | Owner ID: | 103252 |
Mailing Address: | 184 W MOUNTAIN BROOK LN WENATCHEE, WA 98801 | % Ownership: | % |
| | Exemptions: | |
Pay Tax Due
Select the appropriate checkbox next to the year to be paid. Multiple years may be selected.
*Convenience Fee not included
Taxes and Assessment Details
Values
(+) Improvement Homesite Value: | + | $0 | |
(+) Improvement Non-Homesite Value: | + | $666,543 | |
(+) Land Homesite Value: | + | $0 | |
(+) Land Non-Homesite Value: | + | $187,200 | |
(+) Curr Use (HS): | + | $0 | $0 |
(+) Curr Use (NHS): | + | $0 | $0 |
| | -------------------------- | |
(=) Market Value: | = | $853,743 | |
(–) Productivity Loss: | – | $0 | |
| | -------------------------- | |
(=) Subtotal: | = | $853,743 | |
(+) Senior Appraised Value: | + | $0 | |
(+) Non-Senior Appraised Value: | + | $853,743 | |
| | -------------------------- | |
(=) Total Appraised Value: | = | $853,743 | |
(–) Senior Exemption Loss: | – | $0 | |
(–) Exemption Loss: | – | $0 | |
| | -------------------------- | |
(=) Taxable Value: | = | $853,743 | |
Taxing Jurisdiction
Owner: | CLARK RONALD E & LORRAINE H | | |
% Ownership: | 100.0000000000% | | |
Total Value: | N/A | | |
Tax Area: | 74 - 246 F1 CD3 WVFD |
110001 | County Road General | N/A | N/A | N/A | N/A | | |
010170 | Chelan County | N/A | N/A | N/A | N/A | | |
155001 | Veteran's Relief | N/A | N/A | N/A | N/A | | |
160001 | Mental Health | N/A | N/A | N/A | N/A | | |
657301 | Cemetery No 3 | N/A | N/A | N/A | N/A | | |
656101 | Fire No 1 General | N/A | N/A | N/A | N/A | | |
652003 | State School 2 | N/A | N/A | N/A | N/A | | |
652005 | State School | N/A | N/A | N/A | N/A | | |
652025 | State School 2 Refund | N/A | N/A | N/A | N/A | | |
107001 | Flood Control Zone | N/A | N/A | N/A | N/A | | |
656201 | Wenatchee Valley Fire Department | N/A | N/A | N/A | N/A | | |
656110 | Fire No 1 Bond | N/A | N/A | N/A | N/A | | |
644001 | Regional Library | N/A | N/A | N/A | N/A | | |
671101 | Port General | N/A | N/A | N/A | N/A | | |
654201 | Wenatchee SD 246 General | N/A | N/A | N/A | N/A | | |
654210 | Wenatchee SD 246 Bond | N/A | N/A | N/A | N/A | | |
652001 | State School Refund | N/A | N/A | N/A | N/A | | |
| Total Tax Rate: | N/A | | | | | |
| | | | Taxes w/Current Exemptions: | N/A | | |
| | | | Taxes w/o Exemptions: | N/A | | |
Improvement / Building
Improvement #1: | RESIDENTIAL | State Code: | 11 | 3186.0 sqft | Value: | $666,543 |
Exterior Wall: | Plywood or Hrdbrd | Fireplace: | Single 1 Story | Heating/Cooling: | Heat Pump | Number of Bathrooms: | 3.5 | Number of Bedrooms: | 3 |   |   |
|
| Type | Description | Class CD | Sub Class CD | Year Built | Area |
| PP-OPEN | Open Concrete Porch | GOOD | 1 STY | 2015 | 432.0 |
| MA | Main | AVERAGE | 1.5 ST FIN | 2015 | 3186.0 |
| BS-UFC8 | BSMT AREA 8” CONC | AVERAGE | 1.5 ST FIN | 2015 | 1678.0 |
| BSMT-PF | BSMT FINISH - PARTITIONED | AVERAGE | 1.5 ST FIN | 2015 | 716.0 |
| PP-OPEN | Open Concrete Porch | GOOD | 1 STY | 2015 | 40.0 |
Sketch
Property Image
Land
1 | SV 100K | SITE VALUE $100,000 | 0.5700 | 24829.00 | 0.00 | 0.00 | 1.00 | $187,200 | $0 |
Roll Value History
2025 | N/A | N/A | N/A | N/A | N/A |
2024 | $636,834 | $185,760 | $0 | $822,594 | $822,594 |
2023 | $640,754 | $186,690 | $0 | $827,444 | $827,444 |
2022 | $655,162 | $142,590 | $0 | $797,752 | $797,752 |
2021 | $527,612 | $123,760 | $0 | $651,372 | $651,372 |
2020 | $508,214 | $107,120 | $0 | $615,334 | $615,334 |
2019 | $536,912 | $107,120 | $0 | $644,032 | $644,032 |
2018 | $489,165 | $97,850 | $0 | $587,015 | $587,015 |
2017 | $574,262 | $98,880 | $0 | $673,142 | $673,142 |
2016 | $1 | $98,880 | $0 | $98,881 | $98,881 |
2015 | $1 | $82,400 | $0 | $82,401 | $82,401 |
2014 | $0 | $80,940 | $0 | $80,940 | $80,940 |
2013 | $0 | $68,250 | $0 | $68,250 | $68,250 |
2012 | $0 | $95,000 | $0 | $95,000 | $95,000 |
2011 | $0 | $100,000 | $0 | $100,000 | $100,000 |
2010 | $0 | $90,000 | $0 | $90,000 | $90,000 |
2009 | $0 | $100,000 | $0 | $100,000 | $100,000 |
2008 | $0 | $100,000 | $0 | $100,000 | $100,000 |
2007 | $0 | $100,000 | $0 | $100,000 | $100,000 |
2006 | $0 | $0 | $0 | $0 | $0 |
Deed and Sales History
1 | 03/01/2017 | SWD | Statutory Warranty Deed | ROBERTS MICHAEL J | CLARK RONALD E & LORRAINE H | | | $649,900.00 | 173354 | 2453673 |
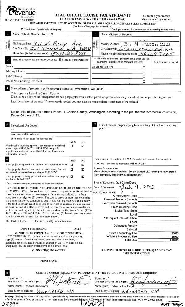
2 | 07/14/2015 | Q | Quit Claim Deed | ROBERTS CONSTRUCTION LLC | ROBERTS MICHAEL J | | | $0.00 | 166621 | 2421470 |
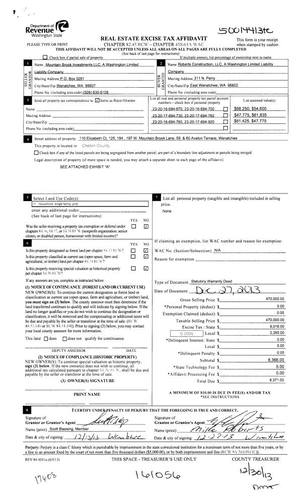
3 | 12/30/2013 | SWD | Statutory Warranty Deed | MOUNTAIN BROOK INVESTMENTS | ROBERTS CONSTRUCTION LLC | | | $470,000.00 | 161056 | 2394875 |
  | |
4 | 03/12/2004 | Q | Quit Claim Deed | | MOUNTAIN BROOK INVESTMENTS | | | | 0 | 2168831 |
Payout Agreement
No payout information available.. |