Property
Account |
| Property ID: | 22854 | Abbreviated Legal Description: | T 23N R 19EWM S 13 NWNW 31.5000 ACRES |
| Geographic ID: | 231913220050 | Agent Code: | |
| Type: | Real | | |
| Tax Area: | 60 - 222 F6 | Land Use Code | 94 |
| Open Space: | Y | DFL | N |
| Historic Property: | N | Remodel Property: | N |
| Multi-Family Redevelopment: | N | | |
| Township: | 23N | Section: | 13 |
| Range: | 19EWM | Legal Acres: | 31.5000 |
Location |
| Address: | UNASSIGNED MONITOR, WA 98836 | Mapsco: | |
| Neighborhood: | Cycle 1 Cashmere north Div 2 Res | Map ID: | 1CSHN02R01 |
| Neighborhood CD: | 1CSHN02R01 |
Owner |
| Name: | ANDERSON FAMILY TRT | Owner ID: | 113318 |
| Mailing Address: | ANDERSON WILLIAM J & TARA B TRUSTEES 9511 E LEAVENWORTH RD LEAVENWORTH, WA 98826 | % Ownership: | % |
| | | Exemptions: | |
Pay Tax Due
Select the appropriate checkbox next to the year to be paid. Multiple years may be selected.
*Convenience Fee not included
Taxes and Assessment Details
Values
| (+) Improvement Homesite Value: | + | N/A | |
| (+) Improvement Non-Homesite Value: | + | N/A | |
| (+) Land Homesite Value: | + | N/A | |
| (+) Land Non-Homesite Value: | + | N/A | Ag / Timber Use Value |
| (+) Curr Use (HS): | + | N/A | N/A |
| (+) Curr Use (NHS): | + | N/A | N/A |
| | | -------------------------- | |
| (=) Market Value: | = | N/A | |
| (–) Productivity Loss: | – | N/A | |
| | | -------------------------- | |
| (=) Subtotal: | = | N/A | |
| (+) Senior Appraised Value: | + | N/A | |
| (+) Non-Senior Appraised Value: | + | N/A | |
| | | -------------------------- | |
| (=) Total Appraised Value: | = | N/A | |
| (–) Senior Exemption Loss: | – | N/A | |
| (–) Exemption Loss: | – | N/A | |
| | | -------------------------- | |
| (=) Taxable Value: | = | N/A | |
Taxing Jurisdiction
| Owner: | ANDERSON FAMILY TRT | | |
| % Ownership: | 100.0000000000% | | |
| Total Value: | N/A | | |
| Tax Area: | 60 - 222 F6 |
| 110001 | County Road General | N/A | N/A | N/A | N/A | | |
| 010170 | Chelan County | N/A | N/A | N/A | N/A | | |
| 155001 | Veteran's Relief | N/A | N/A | N/A | N/A | | |
| 160001 | Mental Health | N/A | N/A | N/A | N/A | | |
| 656601 | Fire No 6 General | N/A | N/A | N/A | N/A | | |
| 644001 | Regional Library | N/A | N/A | N/A | N/A | | |
| 671101 | Port General | N/A | N/A | N/A | N/A | | |
| 654121 | Cashmere SD 222 General | N/A | N/A | N/A | N/A | | |
| 654130 | Cashmere SD 222 Bond | N/A | N/A | N/A | N/A | | |
| 654135 | Cashmere SD 222 Cap Projects | N/A | N/A | N/A | N/A | | |
| 652001 | State School Refund | N/A | N/A | N/A | N/A | | |
| 652003 | State School 2 | N/A | N/A | N/A | N/A | | |
| 652005 | State School | N/A | N/A | N/A | N/A | | |
| 652025 | State School 2 Refund | N/A | N/A | N/A | N/A | | |
| 107001 | Flood Control Zone | N/A | N/A | N/A | N/A | | |
| | Total Tax Rate: | N/A | | | | | |
| | | | | Taxes w/Current Exemptions: | N/A | | |
| | | | | Taxes w/o Exemptions: | N/A | | |
Improvement / Building
Sketch
| No sketches available for this property. |
Property Image
Land
| 1 | RES 1000 | RESIDUAL $1000/A | 16.5000 | 718740.00 | 0.00 | 0.00 | 1.00 | N/A | N/A |
| 2 | RES 1000 | RESIDUAL $1000/A | 15.0000 | 653400.00 | 0.00 | 0.00 | 1.00 | N/A | N/A |
Roll Value History
| 2026 | N/A | N/A | N/A | N/A | N/A |
| 2025 | $0 | $65,205 | $13,041 | $13,041 | $13,041 |
| 2024 | $0 | $50,085 | $10,017 | $10,017 | $10,017 |
| 2023 | $0 | $57,015 | $11,403 | $11,403 | $11,403 |
| 2022 | $0 | $50,085 | $10,017 | $10,017 | $10,017 |
| 2021 | $0 | $27,720 | $5,544 | $5,544 | $5,544 |
| 2020 | $0 | $27,720 | $5,544 | $5,544 | $5,544 |
| 2019 | $0 | $27,720 | $5,544 | $5,544 | $5,544 |
| 2018 | $0 | $27,720 | $5,544 | $5,544 | $5,544 |
| 2017 | $0 | $26,775 | $5,355 | $5,355 | $5,355 |
| 2016 | $0 | $24,885 | $4,977 | $4,977 | $4,977 |
| 2015 | $0 | $24,885 | $4,977 | $4,977 | $4,977 |
| 2014 | $0 | $24,885 | $4,977 | $4,977 | $4,977 |
| 2013 | $0 | $25,200 | $5,040 | $5,040 | $5,040 |
| 2012 | $0 | $25,200 | $5,040 | $5,040 | $5,040 |
| 2011 | $0 | $31,500 | $6,300 | $6,300 | $6,300 |
| 2010 | $0 | $31,500 | $6,300 | $6,300 | $6,300 |
| 2009 | $0 | $31,500 | $6,300 | $6,300 | $6,300 |
| 2008 | $0 | $12,450 | $2,490 | $2,490 | $2,490 |
| 2007 | $0 | $2,490 | $0 | $2,490 | $2,490 |
Deed and Sales History
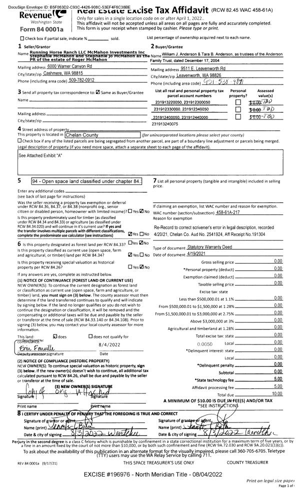
| 1 | 08/04/2022 | CORR DEED | Correction Deed | RUNNING HORSE RANCH LLC | ANDERSON FAMILY TRT | | | $0.00 | 196976 | 2571384 |
| 2 | 04/20/2021 | SWD | Statutory Warranty Deed | MCMAHON INVESTMENTS INC | ANDERSON FAMILY TRT | | | $700,000.00 | 191304 | 2541924 |
|   | |
| 3 | 10/06/2019 | DC | Death Certificate | MC MAHON ROGER | PUBLIC DEATH_CERT | | | | 0 | 2541924 |
| 4 | 01/24/2018 | Q | Quit Claim Deed | RUNNING HORSE RANCH LLC | MCMAHON INVESTMENTS INC | | | $0.00 | 177530 | 2472129 |
| 5 | 04/28/2017 | Q | Quit Claim Deed | MC MAHON ROGER | RUNNING HORSE RANCH LLC | | | $0.00 | 174028 | 2456524 |
| 6 | 09/06/2002 | O | Other | SURVEY | | 43 | 36 | | 0 | |
| 7 | 11/22/1999 | W | Warranty Deed | | MC MAHON ROGER | | | | 0 | 2065216 |
| 8 | 11/22/1999 | W | Warranty Deed | | | | | $325,000.00 | 10414507 | 2065216 |
| 9 | 09/03/1996 | W | Warranty Deed | | DAVID H MEHELICH | 1072 | 1446 | | 0 | |
| 10 | 03/14/1995 | S | Sellers Assignment of Contract and Deed | FOWLER J B | FOWLER J B LIVI | 1039 | 754 | | 0 | |
| 11 | 08/17/1993 | C | Real Estate Contract | FOWLER J B | MEHELICH DAVID | 1000 | 1621 | | 0 | |
| 12 | 04/27/1989 | W | Warranty Deed | | JAMES R FOWLER | 909 | 1616 | | 0 | |
| 13 | 02/02/1978 | SWD | Statutory Warranty Deed | | WESTERN SUNSHINE, INC. | 751 | 317 | | 0 | |
| 14 | 08/11/1993 | C | Real Estate Contract | | | 1000 | 1621 | $550,000.00 | 7766610 | |
Payout Agreement
| No payout information available.. |