Property
Account |
| Property ID: | 22364 | Abbreviated Legal Description: | WOLFS ADD LOT 9 0.1900 ACRES |
| Geographic ID: | 231905935045 | Agent Code: | |
| Type: | Real | | |
| Tax Area: | 60 - 222 F6 | Land Use Code | 11 |
| Open Space: | N | DFL | N |
| Historic Property: | N | Remodel Property: | N |
| Multi-Family Redevelopment: | N | | |
| Township: | 23N | Section: | 05 |
| Range: | 19EWM | Legal Acres: | 0.1900 |
Location |
| Address: | UNASSIGNED CASHMERE, WA 98815 | Mapsco: | |
| Neighborhood: | Cycle 1 Cashmere south Div 4 Res | Map ID: | 1CSHS04R01 |
| Neighborhood CD: | 1CSHS04R01 |
Owner |
| Name: | HEBERT MARK & SUSAN | Owner ID: | 123118 |
| Mailing Address: | PO BOX 248 LEAVENWORTH, WA 98826 | % Ownership: | % |
| | | Exemptions: | |
Pay Tax Due
Select the appropriate checkbox next to the year to be paid. Multiple years may be selected.
*Convenience Fee not included
Taxes and Assessment Details
Values
| (+) Improvement Homesite Value: | + | N/A | |
| (+) Improvement Non-Homesite Value: | + | N/A | |
| (+) Land Homesite Value: | + | N/A | |
| (+) Land Non-Homesite Value: | + | N/A | Ag / Timber Use Value |
| (+) Curr Use (HS): | + | N/A | N/A |
| (+) Curr Use (NHS): | + | N/A | N/A |
| | | -------------------------- | |
| (=) Market Value: | = | N/A | |
| (–) Productivity Loss: | – | N/A | |
| | | -------------------------- | |
| (=) Subtotal: | = | N/A | |
| (+) Senior Appraised Value: | + | N/A | |
| (+) Non-Senior Appraised Value: | + | N/A | |
| | | -------------------------- | |
| (=) Total Appraised Value: | = | N/A | |
| (–) Senior Exemption Loss: | – | N/A | |
| (–) Exemption Loss: | – | N/A | |
| | | -------------------------- | |
| (=) Taxable Value: | = | N/A | |
Taxing Jurisdiction
| Owner: | HEBERT MARK & SUSAN | | |
| % Ownership: | 100.0000000000% | | |
| Total Value: | N/A | | |
| Tax Area: | 60 - 222 F6 |
| 110001 | County Road General | N/A | N/A | N/A | N/A | | |
| 010170 | Chelan County | N/A | N/A | N/A | N/A | | |
| 155001 | Veteran's Relief | N/A | N/A | N/A | N/A | | |
| 160001 | Mental Health | N/A | N/A | N/A | N/A | | |
| 656601 | Fire No 6 General | N/A | N/A | N/A | N/A | | |
| 644001 | Regional Library | N/A | N/A | N/A | N/A | | |
| 652005 | State School | N/A | N/A | N/A | N/A | | |
| 652025 | State School 2 Refund | N/A | N/A | N/A | N/A | | |
| 107001 | Flood Control Zone | N/A | N/A | N/A | N/A | | |
| 671101 | Port General | N/A | N/A | N/A | N/A | | |
| 654121 | Cashmere SD 222 General | N/A | N/A | N/A | N/A | | |
| 654130 | Cashmere SD 222 Bond | N/A | N/A | N/A | N/A | | |
| 654135 | Cashmere SD 222 Cap Projects | N/A | N/A | N/A | N/A | | |
| 652001 | State School Refund | N/A | N/A | N/A | N/A | | |
| 652003 | State School 2 | N/A | N/A | N/A | N/A | | |
| | Total Tax Rate: | N/A | | | | | |
| | | | | Taxes w/Current Exemptions: | N/A | | |
| | | | | Taxes w/o Exemptions: | N/A | | |
Improvement / Building
Sketch
| No sketches available for this property. |
Property Image
Land
| 1 | SV 60K | SITE VALUE $60,000 | 0.1900 | 8250.00 | 0.00 | 0.00 | 1.00 | N/A | N/A |
Roll Value History
| 2026 | N/A | N/A | N/A | N/A | N/A |
| 2025 | $0 | $102,816 | $0 | $102,816 | $102,816 |
| 2024 | $0 | $99,960 | $0 | $99,960 | $99,960 |
| 2023 | $0 | $99,960 | $0 | $99,960 | $99,960 |
| 2022 | $0 | $99,960 | $0 | $99,960 | $99,960 |
| 2021 | $0 | $99,960 | $0 | $99,960 | $99,960 |
| 2020 | $0 | $93,534 | $0 | $93,534 | $93,534 |
| 2019 | $0 | $82,824 | $0 | $82,824 | $82,824 |
| 2018 | $0 | $79,254 | $0 | $79,254 | $79,254 |
| 2017 | $0 | $79,254 | $0 | $79,254 | $79,254 |
| 2016 | $0 | $70,686 | $0 | $70,686 | $70,686 |
| 2015 | $0 | $59,400 | $0 | $59,400 | $59,400 |
| 2014 | $0 | $56,400 | $0 | $56,400 | $56,400 |
| 2013 | $0 | $40,500 | $0 | $40,500 | $40,500 |
| 2012 | $0 | $31,500 | $0 | $31,500 | $31,500 |
| 2011 | $0 | $35,000 | $0 | $35,000 | $35,000 |
| 2010 | $0 | $35,000 | $0 | $35,000 | $35,000 |
| 2009 | $0 | $35,000 | $0 | $35,000 | $35,000 |
| 2008 | $0 | $20,000 | $0 | $20,000 | $20,000 |
| 2007 | $0 | $20,000 | $0 | $20,000 | $20,000 |
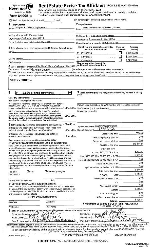
Deed and Sales History
| 1 | 10/05/2022 | SWD | Statutory Warranty Deed | DELAY MARGARET E | HEBERT MARK & SUSAN | | | $602,000.00 | 197597 | 2574200 |
|   | |
| 2 | 08/20/1993 | Q | Quit Claim Deed | CARPENTER JAMES | CARPENTER MARGA | 1000 | 2519 | | 0 | |
| 3 | 04/12/1977 | Q | Quit Claim Deed | | DELAY MARGARET E | 741 | 1978 | | 0 | |
| 4 | 04/12/1977 | Q | Quit Claim Deed | | MARGARET E CARPENTER | 741 | 1978 | | 0 | |
Payout Agreement
| No payout information available.. |