Property
Account |
| Property ID: | 22362 | Abbreviated Legal Description: | WOLFS ADD LOT 7 0.2900 ACRES |
| Geographic ID: | 231905935035 | Agent Code: | |
| Type: | Real | | |
| Tax Area: | 60 - 222 F6 | Land Use Code | 11 |
| Open Space: | N | DFL | N |
| Historic Property: | N | Remodel Property: | N |
| Multi-Family Redevelopment: | N | | |
| Township: | 23N | Section: | 05 |
| Range: | 19EWM | Legal Acres: | 0.2900 |
Location |
| Address: | 6044 HAZEL PL CASHMERE, WA 98815 | Mapsco: | |
| Neighborhood: | Cycle 1 Cashmere south Div 4 Res | Map ID: | 1CSHS04R01 |
| Neighborhood CD: | 1CSHS04R01 |
Owner |
| Name: | HEBERT MARK & SUSAN | Owner ID: | 123118 |
| Mailing Address: | PO BOX 248 LEAVENWORTH, WA 98826 | % Ownership: | % |
| | | Exemptions: | |
Pay Tax Due
Select the appropriate checkbox next to the year to be paid. Multiple years may be selected.
*Convenience Fee not included
Taxes and Assessment Details
Values
| (+) Improvement Homesite Value: | + | N/A | |
| (+) Improvement Non-Homesite Value: | + | N/A | |
| (+) Land Homesite Value: | + | N/A | |
| (+) Land Non-Homesite Value: | + | N/A | Ag / Timber Use Value |
| (+) Curr Use (HS): | + | N/A | N/A |
| (+) Curr Use (NHS): | + | N/A | N/A |
| | | -------------------------- | |
| (=) Market Value: | = | N/A | |
| (–) Productivity Loss: | – | N/A | |
| | | -------------------------- | |
| (=) Subtotal: | = | N/A | |
| (+) Senior Appraised Value: | + | N/A | |
| (+) Non-Senior Appraised Value: | + | N/A | |
| | | -------------------------- | |
| (=) Total Appraised Value: | = | N/A | |
| (–) Senior Exemption Loss: | – | N/A | |
| (–) Exemption Loss: | – | N/A | |
| | | -------------------------- | |
| (=) Taxable Value: | = | N/A | |
Taxing Jurisdiction
| Owner: | HEBERT MARK & SUSAN | | |
| % Ownership: | 100.0000000000% | | |
| Total Value: | N/A | | |
| Tax Area: | 60 - 222 F6 |
| 110001 | County Road General | N/A | N/A | N/A | N/A | | |
| 010170 | Chelan County | N/A | N/A | N/A | N/A | | |
| 155001 | Veteran's Relief | N/A | N/A | N/A | N/A | | |
| 160001 | Mental Health | N/A | N/A | N/A | N/A | | |
| 656601 | Fire No 6 General | N/A | N/A | N/A | N/A | | |
| 644001 | Regional Library | N/A | N/A | N/A | N/A | | |
| 652005 | State School | N/A | N/A | N/A | N/A | | |
| 652025 | State School 2 Refund | N/A | N/A | N/A | N/A | | |
| 107001 | Flood Control Zone | N/A | N/A | N/A | N/A | | |
| 671101 | Port General | N/A | N/A | N/A | N/A | | |
| 654121 | Cashmere SD 222 General | N/A | N/A | N/A | N/A | | |
| 654130 | Cashmere SD 222 Bond | N/A | N/A | N/A | N/A | | |
| 654135 | Cashmere SD 222 Cap Projects | N/A | N/A | N/A | N/A | | |
| 652001 | State School Refund | N/A | N/A | N/A | N/A | | |
| 652003 | State School 2 | N/A | N/A | N/A | N/A | | |
| | Total Tax Rate: | N/A | | | | | |
| | | | | Taxes w/Current Exemptions: | N/A | | |
| | | | | Taxes w/o Exemptions: | N/A | | |
Improvement / Building
Sketch
| No sketches available for this property. |
Property Image
Land
| 1 | SV 45K | SITE VALUE $45,000 | 0.2900 | 12661.00 | 0.00 | 0.00 | 1.00 | N/A | N/A |
Roll Value History
| 2026 | N/A | N/A | N/A | N/A | N/A |
| 2025 | $0 | $77,112 | $0 | $77,112 | $77,112 |
| 2024 | $0 | $74,970 | $0 | $74,970 | $74,970 |
| 2023 | $0 | $74,970 | $0 | $74,970 | $74,970 |
| 2022 | $0 | $74,970 | $0 | $74,970 | $74,970 |
| 2021 | $0 | $74,970 | $0 | $74,970 | $74,970 |
| 2020 | $0 | $70,151 | $0 | $70,151 | $70,151 |
| 2019 | $0 | $96,628 | $0 | $96,628 | $96,628 |
| 2018 | $0 | $92,463 | $0 | $92,463 | $92,463 |
| 2017 | $0 | $92,463 | $0 | $92,463 | $92,463 |
| 2016 | $0 | $82,467 | $0 | $82,467 | $82,467 |
| 2015 | $0 | $69,300 | $0 | $69,300 | $69,300 |
| 2014 | $0 | $65,800 | $0 | $65,800 | $65,800 |
| 2013 | $0 | $45,000 | $0 | $45,000 | $45,000 |
| 2012 | $152,329 | $54,000 | $0 | $206,329 | $206,329 |
| 2011 | $140,291 | $60,000 | $0 | $200,291 | $200,291 |
| 2010 | $140,291 | $60,000 | $0 | $200,291 | $200,291 |
| 2009 | $177,626 | $60,000 | $0 | $237,626 | $237,626 |
| 2008 | $106,459 | $35,000 | $0 | $141,459 | $141,459 |
| 2007 | $106,459 | $35,000 | $0 | $141,459 | $141,459 |
Deed and Sales History
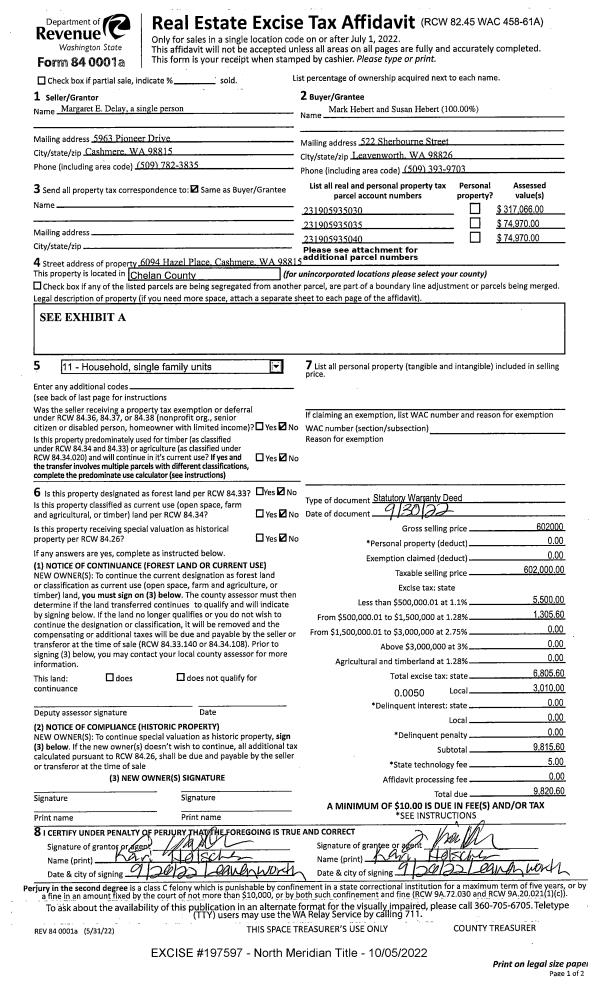
| 1 | 10/05/2022 | SWD | Statutory Warranty Deed | DELAY MARGARET E | HEBERT MARK & SUSAN | | | $602,000.00 | 197597 | 2574200 |
|   | |
| 2 | 10/14/1993 | MC | Marriage Certificate | HEBERT MARK & SUSAN | | | | | 0 | 447812 |
| 3 | 08/20/1993 | Q | Quit Claim Deed | CARPENTER JAMES | CARPENTER MARGA | 1000 | 2519 | | 0 | |
| 4 | 04/12/1977 | Q | Quit Claim Deed | | DELAY MARGARET E | 741 | 1978 | | 0 | |
| 5 | | OT | Conversion Code Only | | MARGARET E CARPENTER | 741 | 1978 | | 0 | |
Payout Agreement
| No payout information available.. |