Property
Account |
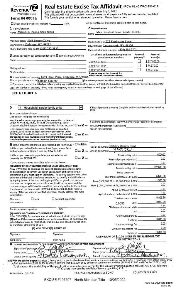
| Property ID: | 22361 | Abbreviated Legal Description: | WOLFS ADD LOT 6 0.5000 ACRES |
| Geographic ID: | 231905935030 | Agent Code: | |
| Type: | Real | | |
| Tax Area: | 60 - 222 F6 | Land Use Code | 11 |
| Open Space: | N | DFL | N |
| Historic Property: | N | Remodel Property: | N |
| Multi-Family Redevelopment: | N | | |
| Township: | 23N | Section: | 05 |
| Range: | 19EWM | Legal Acres: | 0.5000 |
Location |
| Address: | 6094 HAZEL PL CASHMERE, WA 98815 | Mapsco: | |
| Neighborhood: | Cycle 1 Cashmere south Div 4 Res | Map ID: | 1CSHS04R01 |
| Neighborhood CD: | 1CSHS04R01 |
Owner |
| Name: | HEBERT MARK & SUSAN | Owner ID: | 123118 |
| Mailing Address: | PO BOX 248 LEAVENWORTH, WA 98826 | % Ownership: | % |
| | | Exemptions: | |
Pay Tax Due
Select the appropriate checkbox next to the year to be paid. Multiple years may be selected.
*Convenience Fee not included
Taxes and Assessment Details
Values
| (+) Improvement Homesite Value: | + | N/A | |
| (+) Improvement Non-Homesite Value: | + | N/A | |
| (+) Land Homesite Value: | + | N/A | |
| (+) Land Non-Homesite Value: | + | N/A | Ag / Timber Use Value |
| (+) Curr Use (HS): | + | N/A | N/A |
| (+) Curr Use (NHS): | + | N/A | N/A |
| | | -------------------------- | |
| (=) Market Value: | = | N/A | |
| (–) Productivity Loss: | – | N/A | |
| | | -------------------------- | |
| (=) Subtotal: | = | N/A | |
| (+) Senior Appraised Value: | + | N/A | |
| (+) Non-Senior Appraised Value: | + | N/A | |
| | | -------------------------- | |
| (=) Total Appraised Value: | = | N/A | |
| (–) Senior Exemption Loss: | – | N/A | |
| (–) Exemption Loss: | – | N/A | |
| | | -------------------------- | |
| (=) Taxable Value: | = | N/A | |
Taxing Jurisdiction
| Owner: | HEBERT MARK & SUSAN | | |
| % Ownership: | 100.0000000000% | | |
| Total Value: | N/A | | |
| Tax Area: | 60 - 222 F6 |
| 110001 | County Road General | N/A | N/A | N/A | N/A | | |
| 010170 | Chelan County | N/A | N/A | N/A | N/A | | |
| 155001 | Veteran's Relief | N/A | N/A | N/A | N/A | | |
| 160001 | Mental Health | N/A | N/A | N/A | N/A | | |
| 656601 | Fire No 6 General | N/A | N/A | N/A | N/A | | |
| 644001 | Regional Library | N/A | N/A | N/A | N/A | | |
| 652005 | State School | N/A | N/A | N/A | N/A | | |
| 652025 | State School 2 Refund | N/A | N/A | N/A | N/A | | |
| 107001 | Flood Control Zone | N/A | N/A | N/A | N/A | | |
| 671101 | Port General | N/A | N/A | N/A | N/A | | |
| 654121 | Cashmere SD 222 General | N/A | N/A | N/A | N/A | | |
| 654130 | Cashmere SD 222 Bond | N/A | N/A | N/A | N/A | | |
| 654135 | Cashmere SD 222 Cap Projects | N/A | N/A | N/A | N/A | | |
| 652001 | State School Refund | N/A | N/A | N/A | N/A | | |
| 652003 | State School 2 | N/A | N/A | N/A | N/A | | |
| | Total Tax Rate: | N/A | | | | | |
| | | | | Taxes w/Current Exemptions: | N/A | | |
| | | | | Taxes w/o Exemptions: | N/A | | |
Improvement / Building
| Improvement #1: | RESIDENTIAL | State Code: | 11 | 1392.0 sqft | Value: | N/A |
| Exterior Wall: | WOOD SIDING | Fireplace: | Double 1 Story | | Heating/Cooling: | Baseboard Panel | Number of Bathrooms: | 1 | | Number of Bedrooms: | 3 |   |   |
|
| | Type | Description | Class CD | Sub Class CD | Year Built | Area |
| | MA | Main | AVERAGE | 1 STY | 1964 | 1392.0 |
| | BS-UFC6 | BSMT AREA 6” CONC (Pre-1989) | AVERAGE | 1 STY | 1964 | 1392.0 |
| | DECK | Open Wood Deck | AVERAGE | * | 1964 | 240.0 |
| Improvement #2: | RESIDENTIAL | State Code: | 11 | 0.0 sqft | Value: | N/A |
| | Type | Description | Class CD | Sub Class CD | Year Built | Area |
| | GAR-DET | Detached Garage | AVERAGE | 1 STY | 1964 | 576.0 |
| | CP-F | Carport/Patio Cover Flat Roof | AVERAGE | 1 STY | 1964 | 240.0 |
Sketch
| No sketches available for this property. |
Property Image
Land
| 1 | SV 70K | SITE VALUE $70,000 | 0.5000 | 21780.00 | 0.00 | 0.00 | 1.00 | N/A | N/A |
Roll Value History
| 2026 | N/A | N/A | N/A | N/A | N/A |
| 2025 | $267,109 | $119,952 | $0 | $387,061 | $387,061 |
| 2024 | $274,345 | $116,620 | $0 | $390,965 | $390,965 |
| 2023 | $239,630 | $116,620 | $0 | $356,250 | $356,250 |
| 2022 | $207,737 | $116,620 | $0 | $324,357 | $324,357 |
| 2021 | $200,446 | $116,620 | $0 | $317,066 | $317,066 |
| 2020 | $116,404 | $109,123 | $0 | $225,527 | $225,527 |
| 2019 | $168,896 | $96,628 | $0 | $265,524 | $265,524 |
| 2018 | $154,429 | $92,463 | $0 | $246,892 | $246,892 |
| 2017 | $153,170 | $92,463 | $0 | $245,633 | $245,633 |
| 2016 | $114,848 | $82,467 | $0 | $197,315 | $197,315 |
| 2015 | $114,939 | $69,300 | $0 | $184,239 | $184,239 |
| 2014 | $120,268 | $65,800 | $0 | $186,068 | $186,068 |
| 2013 | $112,714 | $49,500 | $0 | $162,214 | $162,214 |
| 2012 | $0 | $31,500 | $0 | $31,500 | $31,500 |
| 2011 | $0 | $35,000 | $0 | $35,000 | $35,000 |
| 2010 | $0 | $35,000 | $0 | $35,000 | $35,000 |
| 2009 | $0 | $35,000 | $0 | $35,000 | $35,000 |
| 2008 | $0 | $20,000 | $0 | $20,000 | $20,000 |
| 2007 | $0 | $20,000 | $0 | $20,000 | $20,000 |
Deed and Sales History
| 1 | 10/05/2022 | SWD | Statutory Warranty Deed | DELAY MARGARET E | HEBERT MARK & SUSAN | | | $602,000.00 | 197597 | 2574200 |
|   | |
| 2 | 08/20/1993 | Q | Quit Claim Deed | CARPENTER JAMES | CARPENTER MARGA | 1000 | 2519 | | 0 | |
| 3 | 04/12/1977 | Q | Quit Claim Deed | | MARGARET E DELAY | 741 | 1978 | | 0 | |
| 4 | 04/12/1977 | Q | Quit Claim Deed | | MARGARET E CARPENTER | 741 | 1978 | | 0 | |
| 5 | 08/19/1993 | Q | Quit Claim Deed | | | 1000 | 1219 | | 7772600 | |
Payout Agreement
| No payout information available.. |