Property
Account |
| Property ID: | 22105 | Abbreviated Legal Description: | T 23N R 19EWM S 05 LOT B 2021-578 LOT B BLA 2017-205 SESW 3.3300 ACRES |
| Geographic ID: | 231905340100 | Agent Code: | |
| Type: | Real | | |
| Tax Area: | 60 - 222 F6 | Land Use Code | 11 |
| Open Space: | N | DFL | N |
| Historic Property: | N | Remodel Property: | N |
| Multi-Family Redevelopment: | N | | |
| Township: | 23N | Section: | 05 |
| Range: | 19EWM | Legal Acres: | 3.3300 |
Location |
| Address: | 5748 TIGNER RD CASHMERE, WA 98815 | Mapsco: | |
| Neighborhood: | Cycle 1 Cashmere south Div 4 Res | Map ID: | 1CSHS04R01 |
| Neighborhood CD: | 1CSHS04R01 |
Owner |
| Name: | FULLER GEORGE C & DIANE L | Owner ID: | 121203 |
| Mailing Address: | 5748 TIGNER RD CASHMERE, WA 98815 | % Ownership: | % |
| | | Exemptions: | |
Pay Tax Due
Select the appropriate checkbox next to the year to be paid. Multiple years may be selected.
*Convenience Fee not included
Taxes and Assessment Details
Values
| (+) Improvement Homesite Value: | + | N/A | |
| (+) Improvement Non-Homesite Value: | + | N/A | |
| (+) Land Homesite Value: | + | N/A | |
| (+) Land Non-Homesite Value: | + | N/A | Ag / Timber Use Value |
| (+) Curr Use (HS): | + | N/A | N/A |
| (+) Curr Use (NHS): | + | N/A | N/A |
| | | -------------------------- | |
| (=) Market Value: | = | N/A | |
| (–) Productivity Loss: | – | N/A | |
| | | -------------------------- | |
| (=) Subtotal: | = | N/A | |
| (+) Senior Appraised Value: | + | N/A | |
| (+) Non-Senior Appraised Value: | + | N/A | |
| | | -------------------------- | |
| (=) Total Appraised Value: | = | N/A | |
| (–) Senior Exemption Loss: | – | N/A | |
| (–) Exemption Loss: | – | N/A | |
| | | -------------------------- | |
| (=) Taxable Value: | = | N/A | |
Taxing Jurisdiction
| Owner: | FULLER GEORGE C & DIANE L | | |
| % Ownership: | 100.0000000000% | | |
| Total Value: | N/A | | |
| Tax Area: | 60 - 222 F6 |
| 110001 | County Road General | N/A | N/A | N/A | N/A | | |
| 010170 | Chelan County | N/A | N/A | N/A | N/A | | |
| 155001 | Veteran's Relief | N/A | N/A | N/A | N/A | | |
| 160001 | Mental Health | N/A | N/A | N/A | N/A | | |
| 656601 | Fire No 6 General | N/A | N/A | N/A | N/A | | |
| 644001 | Regional Library | N/A | N/A | N/A | N/A | | |
| 652005 | State School | N/A | N/A | N/A | N/A | | |
| 652025 | State School 2 Refund | N/A | N/A | N/A | N/A | | |
| 107001 | Flood Control Zone | N/A | N/A | N/A | N/A | | |
| 671101 | Port General | N/A | N/A | N/A | N/A | | |
| 654121 | Cashmere SD 222 General | N/A | N/A | N/A | N/A | | |
| 654130 | Cashmere SD 222 Bond | N/A | N/A | N/A | N/A | | |
| 654135 | Cashmere SD 222 Cap Projects | N/A | N/A | N/A | N/A | | |
| 652001 | State School Refund | N/A | N/A | N/A | N/A | | |
| 652003 | State School 2 | N/A | N/A | N/A | N/A | | |
| | Total Tax Rate: | N/A | | | | | |
| | | | | Taxes w/Current Exemptions: | N/A | | |
| | | | | Taxes w/o Exemptions: | N/A | | |
Improvement / Building
| Improvement #1: | RESIDENTIAL | State Code: | 11 | 612.0 sqft | Value: | N/A |
| Exterior Wall: | Plywood or Hrdbrd | Heating/Cooling: | Heat Pump |
|
| | Type | Description | Class CD | Sub Class CD | Year Built | Area |
| | MA | Main | FAIR | 1 STY | 2023 | 612.0 |
| | PP-OPEN | Open Concrete Porch | AVERAGE | * | 2023 | 300.0 |
| | GAR-ATT | Attached Garage | FAIR | 1 STY | 2023 | 1088.0 |
| Improvement #2: | RESIDENTIAL | State Code: | 11 | 2650.0 sqft | Value: | N/A |
| Exterior Wall: | Plywood or Hrdbrd | Fireplace: | Single 1 Story | | Heating/Cooling: | Heat Pump | Number of Bathrooms: | 3 | | Number of Bedrooms: | 3 |   |   |
|
| | Type | Description | Class CD | Sub Class CD | Year Built | Area |
| | MA | Main | AVERAGE | 1 STY | 2024 | 2650.0 |
| | GAR-ATT | Attached Garage | AVERAGE | 1 STY | 2024 | 1020.0 |
| | PP-OPEN | Open Concrete Porch | AVERAGE | * | 2024 | 168.0 |
| | PP-OPEN | Open Concrete Porch | AVERAGE | * | 2024 | 375.0 |
| Improvement #3: | RESIDENTIAL | State Code: | 11 | 0.0 sqft | Value: | N/A |
| | Type | Description | Class CD | Sub Class CD | Year Built | Area |
| | POOL | Swimming Pool | AVERAGE | * | 2024 | 1.0 |
| | PP-OPEN | Open Concrete Porch | AVERAGE | * | 2024 | 1142.0 |
Sketch
Property Image
Land
| 1 | SV 100K | SITE VALUE $100,000 | 1.0000 | 43560.00 | 0.00 | 0.00 | 1.00 | N/A | N/A |
| 2 | RES 30K | RESIDUAL $30,000/A | 2.3300 | 101494.80 | 0.00 | 0.00 | 1.00 | N/A | N/A |
Roll Value History
| 2026 | N/A | N/A | N/A | N/A | N/A |
| 2025 | $392,876 | $264,228 | $0 | $657,104 | $657,104 |
| 2024 | $403,423 | $256,889 | $0 | $660,312 | $660,312 |
| 2023 | $86,551 | $256,889 | $0 | $343,440 | $343,440 |
| 2022 | $0 | $237,860 | $0 | $237,860 | $237,860 |
| 2021 | $0 | $362,040 | $0 | $362,040 | $362,040 |
| 2020 | $0 | $338,766 | $0 | $338,766 | $338,766 |
| 2019 | $0 | $299,976 | $0 | $299,976 | $299,976 |
| 2018 | $0 | $287,046 | $0 | $287,046 | $287,046 |
| 2017 | $0 | $287,046 | $0 | $287,046 | $287,046 |
| 2016 | $0 | $168,300 | $0 | $168,300 | $168,300 |
| 2015 | $0 | $168,300 | $0 | $168,300 | $168,300 |
| 2014 | $0 | $159,800 | $0 | $159,800 | $159,800 |
| 2013 | $0 | $103,500 | $0 | $103,500 | $103,500 |
| 2012 | $0 | $108,000 | $0 | $108,000 | $108,000 |
| 2011 | $0 | $120,000 | $0 | $120,000 | $120,000 |
| 2010 | $0 | $120,000 | $0 | $120,000 | $120,000 |
| 2009 | $0 | $120,000 | $0 | $120,000 | $120,000 |
| 2008 | $0 | $90,000 | $0 | $90,000 | $90,000 |
| 2007 | $0 | $90,000 | $0 | $90,000 | $90,000 |
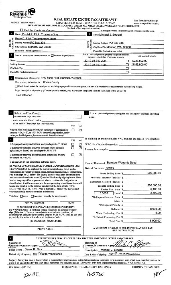
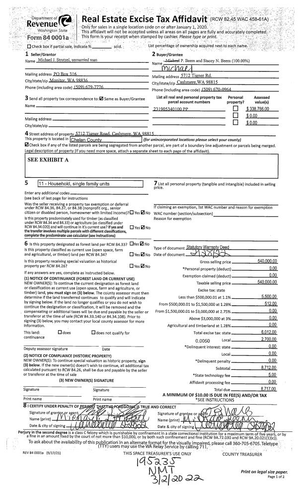
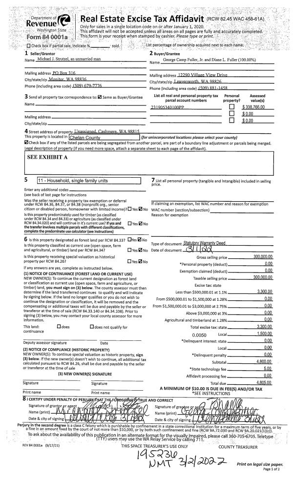
Deed and Sales History
| 1 | 03/01/2022 | SWD | Statutory Warranty Deed | STRUTZEL MICHAEL J | FULLER GEORGE C & DIANE L | | | $300,000.00 | 195236 | 2563243 |
| 2 | 03/02/2022 | SWD | Statutory Warranty Deed | STRUTZEL MICHAEL J | | | | | 0 | 2563241 BLA |
| 3 | 05/12/2015 | SWD | Statutory Warranty Deed | FLICK PERRY D TESTAMENTARY TRUST | STRUTZEL MICHAEL J | | | $500,000.00 | 165760 | 2417779 |
|   | |
| 4 | 05/18/2010 | PR | Personal Representatives Deed | FLICK PERRY D | FLICK PERRY D TESTAMENTARY TRUST | | | $0.00 | 148978 | 2323478 |
| 5 | 05/18/2010 | Q | Quit Claim Deed | FLICK RAMONA M | FLICK PERRY D TESTAMENTARY TRUST | | | | 148979 | 2323477 |
| 6 | | WD | Warranty Deed | | FLICK PERRY D | 602 | 558 | | 0 | |
Payout Agreement
| No payout information available.. |