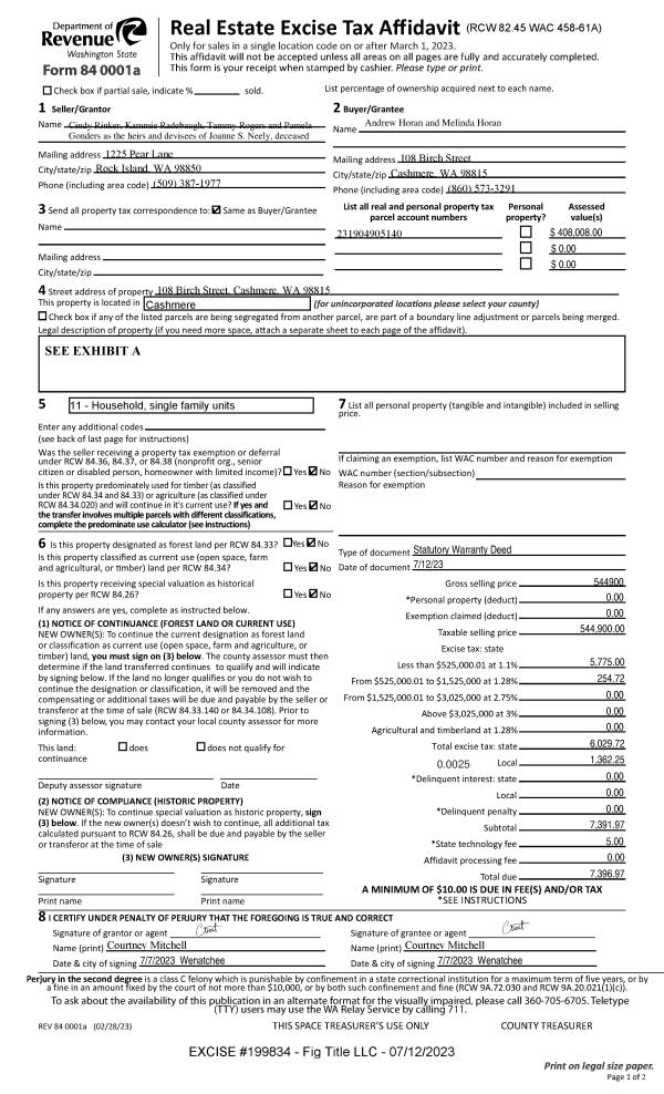
Property
Account |
| Property ID: | 21824 | Abbreviated Legal Description: | VALE VIEW BLOCK 3 LOTS 8-9 & N1/2 LOT 10 0.3700 ACRES |
| Geographic ID: | 231904905140 | Agent Code: | |
| Type: | Real | | |
| Tax Area: | 100 - CA 222 | Land Use Code | 11 |
| Open Space: | N | DFL | N |
| Historic Property: | N | Remodel Property: | N |
| Multi-Family Redevelopment: | N | | |
| Township: | 23N | Section: | 04 |
| Range: | 19EWM | Legal Acres: | 0.3700 |
Location |
| Address: | 108 BIRCH ST CASHMERE, WA 98815 | Mapsco: | |
| Neighborhood: | Cycle 1 Cashmere city Div 1 Res | Map ID: | 1CSHC01R01 |
| Neighborhood CD: | 1CSHC01R01 |
Owner |
| Name: | HORAN ANDREW & MELINDA | Owner ID: | 124967 |
| Mailing Address: | 108 BIRCH ST CASHMERE, WA 98815 | % Ownership: | % |
| | | Exemptions: | SNR/DSBL |
Pay Tax Due
There is currently No Amount Due on this property.
Taxes and Assessment Details
Values
| (+) Improvement Homesite Value: | + | $311,960 | |
| (+) Improvement Non-Homesite Value: | + | $0 | |
| (+) Land Homesite Value: | + | $96,048 | |
| (+) Land Non-Homesite Value: | + | $0 | |
| (+) Curr Use (HS): | + | $0 | $0 |
| (+) Curr Use (NHS): | + | $0 | $0 |
| | | -------------------------- | |
| (=) Market Value: | = | $408,008 | |
| (–) Productivity Loss: | – | $0 | |
| | | -------------------------- | |
| (=) Subtotal: | = | $408,008 | |
| (+) Senior Appraised Value: | + | $172,959 | |
| (+) Non-Senior Appraised Value: | + | $0 | |
| | | -------------------------- | |
| (=) Total Appraised Value: | = | $172,959 | |
| (–) Senior Exemption Loss: | – | $103,775 | |
| (–) Exemption Loss: | – | $0 | |
| | | -------------------------- | |
| (=) Taxable Value: | = | $69,184 | |
Taxing Jurisdiction
| Owner: | HORAN ANDREW & MELINDA | | |
| % Ownership: | 100.0000000000% | | |
| Total Value: | $408,008 | | |
| Tax Area: | 100 - CA 222 |
| 693001 | Cashmere General | 1.5866913267 | $408,008 | $69,184 | $469.16 | | |
| 010170 | Chelan County | 0.7334053198 | $408,008 | $69,184 | $216.86 | | |
| 155001 | Veteran's Relief | 0.0086008201 | $408,008 | $69,184 | $2.54 | | |
| 160001 | Mental Health | 0.0189723974 | $408,008 | $69,184 | $5.61 | | |
| 644001 | Regional Library | 0.2864488554 | $408,008 | $69,184 | $84.70 | | |
| 671101 | Port General | 0.1756188309 | $408,008 | $69,184 | $51.93 | | |
| 652025 | State School 2 Refund | 0.0000000000 | $408,008 | $0 | $0.00 | | |
| 107001 | Flood Control Zone | 0.0408306198 | $408,008 | $69,184 | $12.07 | | |
| 654121 | Cashmere SD 222 General | 0.0000000000 | $408,008 | $0 | $542.83 | | |
| 654130 | Cashmere SD 222 Bond | 0.0000000000 | $408,008 | $0 | $498.73 | | |
| 654135 | Cashmere SD 222 Cap Projects | 0.0000000000 | $408,008 | $0 | $0.00 | | |
| 652001 | State School Refund | 0.0000273969 | $408,008 | $69,184 | $0.01 | | |
| 652003 | State School 2 | 0.0000000000 | $408,008 | $0 | $243.24 | | |
| 652005 | State School | 1.6674243773 | $408,008 | $69,184 | $493.03 | | |
| | Total Tax Rate: | 4.5180199443 | | | | | |
| | | | | Taxes w/Current Exemptions: | $2,620.71 | | |
| | | | | Taxes w/o Exemptions: | $3,765.33 | | |
Improvement / Building
| Improvement #1: | RESIDENTIAL | State Code: | 11 | 2074.0 sqft | Value: | $293,253 |
| Exterior Wall: | Wood Siding | Fireplace: | Double 1 Story | | Heating/Cooling: | Baseboard Panel | Number of Bathrooms: | 2 | | Number of Bedrooms: | 3 |   |   |
|
| | Type | Description | Class CD | Sub Class CD | Year Built | Area |
| | MA | Main | AVERAGE | 1 STY | 1958 | 2074.0 |
| | GAR-ATT | Attached Garage | AVERAGE | 1 STY | 1958 | 400.0 |
| | PP-OPEN | Open Concrete Porch | AVERAGE | * | 1958 | 350.0 |
| Improvement #2: | RESIDENTIAL | State Code: | 11 | 0.0 sqft | Value: | $18,707 |
Sketch
| No sketches available for this property. |
Property Image
Land
| 1 | SV 60K | SITE VALUE $60,000 | 0.3700 | 16125.00 | 0.00 | 0.00 | 1.00 | $96,048 | $0 |
Roll Value History
| 2026 | N/A | N/A | N/A | N/A | N/A |
| 2025 | $364,058 | $119,232 | $0 | $483,290 | $483,290 |
| 2024 | $311,300 | $119,232 | $0 | $430,532 | $430,532 |
| 2023 | $312,684 | $123,372 | $0 | $436,056 | $436,056 |
| 2022 | $311,960 | $96,048 | $0 | $408,008 | $69,184 |
| 2021 | $247,895 | $83,520 | $0 | $331,415 | $69,184 |
| 2020 | $229,309 | $91,080 | $0 | $320,389 | $69,184 |
| 2019 | $207,898 | $90,390 | $0 | $298,288 | $69,184 |
| 2018 | $170,902 | $98,298 | $0 | $269,200 | $69,184 |
| 2017 | $144,788 | $93,726 | $0 | $238,514 | $69,184 |
| 2016 | $159,348 | $59,400 | $0 | $218,748 | $69,184 |
| 2015 | $145,546 | $59,400 | $0 | $204,946 | $69,184 |
| 2014 | $154,067 | $59,400 | $0 | $213,467 | $69,184 |
| 2013 | $159,452 | $63,000 | $0 | $222,452 | $69,184 |
| 2012 | $128,684 | $54,000 | $0 | $182,684 | $69,184 |
| 2011 | $149,656 | $54,000 | $0 | $203,656 | $69,184 |
| 2010 | $166,285 | $60,000 | $0 | $226,285 | $69,184 |
| 2009 | $210,186 | $60,000 | $0 | $270,186 | $69,184 |
| 2008 | $137,959 | $35,000 | $0 | $172,959 | $69,184 |
| 2007 | $137,959 | $35,000 | $0 | $172,959 | $69,184 |
Deed and Sales History
| 1 | 07/12/2023 | SWD | Statutory Warranty Deed | NEELY JOANNE S | HORAN ANDREW & MELINDA | | | $544,900.00 | 199834 | 2583644 |
| 2 | 07/12/2023 | AFF | Affidavit | NEELY JOANNE S | RINKER CINDY | | | | 0 | 2583638 |
| 3 | 01/31/2001 | W | Warranty Deed | | NEELY JOANNE S | | | | 0 | 2087381 |
| 4 | 08/09/1995 | W | Warranty Deed | | MICHAEL & REVA MILLER | 1048 | 1705 | | 0 | |
| 5 | 06/12/1995 | Q | Quit Claim Deed | | BERTHA J HEMPEL | 1044 | 1809 | | 0 | |
| 6 | 12/01/1994 | Q | Quit Claim Deed | | UPPER COLUMBIA CORP OF SDA | 1034 | 46 | | 0 | |
| 7 | 10/25/1994 | REF | Conversion Code Only | HEMPEL MELVIN N | HEMPEL BERTHA J | 1031 | 1469 | | 0 | |
| 8 | 05/04/1990 | W | Warranty Deed | | MELVIN N HEMPEL | 928 | 260 | | 0 | |
| 9 | 09/07/1989 | W | Warranty Deed | | CLARENCE TIESSEN | 916 | 560 | | 0 | |
| 10 | | OT | Conversion Code Only | | GEORGE L DOSSER | 819 | 923 | | 0 | |
| 11 | 01/31/2001 | W | Warranty Deed | | | | | $154,066.00 | 10871900 | 2087381 |
| 12 | 08/04/1995 | W | Warranty Deed | | | 1048 | 1705 | $145,500.00 | 8680100 | |
| 13 | 06/06/1995 | Q | Quit Claim Deed | | | 1044 | 1809 | | 8601800 | |
| 14 | 11/15/1994 | Q | Quit Claim Deed | | | 1034 | 46 | | 8388300 | |
Payout Agreement
| No payout information available.. |