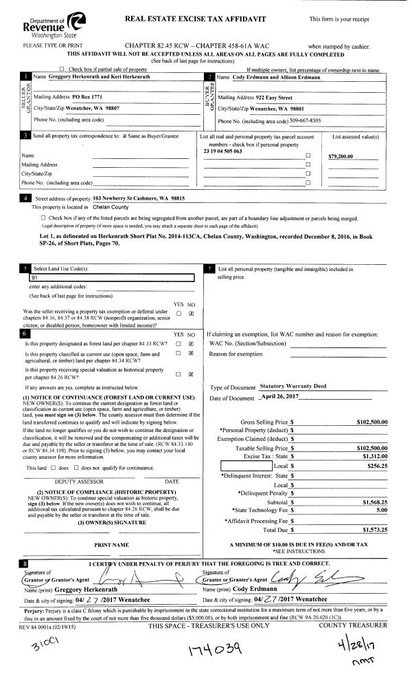
Property
Account |
Property ID: | 21182 | Abbreviated Legal Description: | CAPITOL HILL-CASHMERE BLOCK 2 LOT A BLA 2016-02CA LOT 1 SP 2014-113CA 0.2400 ACRES |
Geographic ID: | 231904505063 | Agent Code: | |
Type: | Real | | |
Tax Area: | 100 - CA 222 | Land Use Code | 11 |
Open Space: | N | DFL | N |
Historic Property: | N | Remodel Property: | N |
Multi-Family Redevelopment: | N | | |
Township: | 23N | Section: | 04 |
Range: | 19EWM | Legal Acres: | 0.2400 |
Location |
Address: | 103 NEWBERRY ST CASHMERE, WA 98815 | Mapsco: | |
Neighborhood: | Cycle 1 Cashmere city Div 1 Res | Map ID: | 1CSHC01R01 |
Neighborhood CD: | 1CSHC01R01 |
Owner |
Name: | ERDMANN CODY & ALLISON | Owner ID: | 103767 |
Mailing Address: | 103 NEWBERRY ST CASHMERE, WA 98815 | % Ownership: | % |
| | Exemptions: | |
Pay Tax Due
Select the appropriate checkbox next to the year to be paid. Multiple years may be selected.
*Convenience Fee not included
Taxes and Assessment Details
Values
(+) Improvement Homesite Value: | + | $0 | |
(+) Improvement Non-Homesite Value: | + | $491,005 | |
(+) Land Homesite Value: | + | $0 | |
(+) Land Non-Homesite Value: | + | $142,848 | |
(+) Curr Use (HS): | + | $0 | $0 |
(+) Curr Use (NHS): | + | $0 | $0 |
| | -------------------------- | |
(=) Market Value: | = | $633,853 | |
(–) Productivity Loss: | – | $0 | |
| | -------------------------- | |
(=) Subtotal: | = | $633,853 | |
(+) Senior Appraised Value: | + | $0 | |
(+) Non-Senior Appraised Value: | + | $633,853 | |
| | -------------------------- | |
(=) Total Appraised Value: | = | $633,853 | |
(–) Senior Exemption Loss: | – | $0 | |
(–) Exemption Loss: | – | $0 | |
| | -------------------------- | |
(=) Taxable Value: | = | $633,853 | |
Taxing Jurisdiction
Owner: | ERDMANN CODY & ALLISON | | |
% Ownership: | 100.0000000000% | | |
Total Value: | N/A | | |
Tax Area: | 100 - CA 222 |
693001 | Cashmere General | N/A | N/A | N/A | N/A | | |
010170 | Chelan County | N/A | N/A | N/A | N/A | | |
155001 | Veteran's Relief | N/A | N/A | N/A | N/A | | |
160001 | Mental Health | N/A | N/A | N/A | N/A | | |
644001 | Regional Library | N/A | N/A | N/A | N/A | | |
671101 | Port General | N/A | N/A | N/A | N/A | | |
654121 | Cashmere SD 222 General | N/A | N/A | N/A | N/A | | |
654130 | Cashmere SD 222 Bond | N/A | N/A | N/A | N/A | | |
654135 | Cashmere SD 222 Cap Projects | N/A | N/A | N/A | N/A | | |
652001 | State School Refund | N/A | N/A | N/A | N/A | | |
652003 | State School 2 | N/A | N/A | N/A | N/A | | |
652005 | State School | N/A | N/A | N/A | N/A | | |
652025 | State School 2 Refund | N/A | N/A | N/A | N/A | | |
107001 | Flood Control Zone | N/A | N/A | N/A | N/A | | |
| Total Tax Rate: | N/A | | | | | |
| | | | Taxes w/Current Exemptions: | N/A | | |
| | | | Taxes w/o Exemptions: | N/A | | |
Improvement / Building
Improvement #1: | RESIDENTIAL | State Code: | 11 | 1940.0 sqft | Value: | $491,005 |
Exterior Wall: | Plywood or Hrdbrd | Fireplace: | Single 1 Story | Heating/Cooling: | Heat Pump | Number of Bathrooms: | 2 | Number of Bedrooms: | 3 |   |   |
|
| Type | Description | Class CD | Sub Class CD | Year Built | Area |
| MA | Main | FAIR | 1 STY | 2017 | 1940.0 |
| GAR-ATT | Attached Garage | FAIR | 1 STY | 2017 | 506.0 |
| PP-OPEN | Open Concrete Porch | AVERAGE | * | 2017 | 48.0 |
| PP-OPEN | Open Concrete Porch | AVERAGE | * | 2017 | 176.0 |
Sketch
Property Image
Land
1 | SV 80K | SITE VALUE $80,000 | 0.2400 | 10454.40 | 0.00 | 0.00 | 1.00 | $142,848 | $0 |
Roll Value History
2025 | N/A | N/A | N/A | N/A | N/A |
2024 | $437,848 | $142,848 | $0 | $580,696 | $580,696 |
2023 | $278,229 | $147,808 | $0 | $426,037 | $426,037 |
2022 | $295,704 | $115,072 | $0 | $410,776 | $410,776 |
2021 | $295,704 | $100,224 | $0 | $395,928 | $395,928 |
2020 | $311,637 | $99,360 | $0 | $410,997 | $410,997 |
2019 | $243,995 | $99,360 | $0 | $343,355 | $343,355 |
2018 | $174,615 | $91,440 | $0 | $266,055 | $266,055 |
2017 | $0 | $101,600 | $0 | $101,600 | $101,600 |
2016 | $0 | $79,200 | $0 | $79,200 | $79,200 |
2015 | $0 | $91,278 | $0 | $91,278 | $91,278 |
2014 | $0 | $91,278 | $0 | $91,278 | $91,278 |
2013 | $0 | $96,810 | $0 | $96,810 | $96,810 |
2012 | $0 | $72,000 | $0 | $72,000 | $72,000 |
2011 | $0 | $72,000 | $0 | $72,000 | $72,000 |
2010 | $0 | $80,000 | $0 | $80,000 | $80,000 |
2009 | $0 | $80,000 | $0 | $80,000 | $80,000 |
2008 | $0 | $50,000 | $0 | $50,000 | $50,000 |
Deed and Sales History
1 | 04/28/2017 | SWD | Statutory Warranty Deed | HERKENRATH GREGGORY & KERI | ERDMANN CODY & ALLISON | | | $102,500.00 | 174039 | 2456558 |
2 | 03/28/2008 | SWD | Statutory Warranty Deed | | HERKENRATH GREGGORY | | | | 0 | 2278212 |
3 | 02/05/2008 | O | Other | SP 2007-001CA | | | | | 0 | 2274782 |
4 | 08/07/1995 | W | Warranty Deed | | HUGH B NEWBERRY | 691 | 1757 | | 0 | |
5 | 03/26/2008 | W | Warranty Deed | | | | | $80,000.00 | 14211000 | 2278212 |
  | |
Payout Agreement
No payout information available.. |