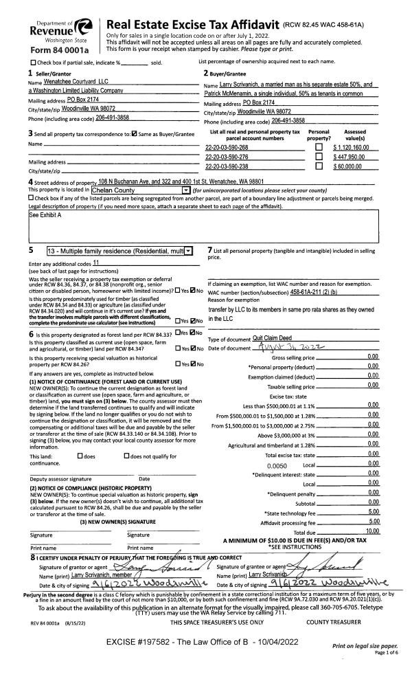
Property
Account |
| Property ID: | 18308 | Abbreviated Legal Description: | GREAT NORTHERN AMENDED BLOCK 5 LOT 10-12 0.2100 ACRES |
| Geographic ID: | 222003590268 | Agent Code: | |
| Type: | Real | | |
| Tax Area: | 802 - W 246 F1 WB WVFD | Land Use Code | 13 |
| Open Space: | N | DFL | N |
| Historic Property: | N | Remodel Property: | N |
| Multi-Family Redevelopment: | N | | |
| Township: | 22N | Section: | 03 |
| Range: | 20EWM | Legal Acres: | 0.2100 |
Location |
| Address: | 108 N BUCHANAN AVE 101 WENATCHEE, WA 98801 | Mapsco: | |
| Neighborhood: | Cycle 2 Wenatchee lower div 1 COM | Map ID: | 2WENL01C01 |
| Neighborhood CD: | 2WENL01C01 |
Owner |
| Name: | EVERGREEN DEVELOPERS LLC | Owner ID: | 123234 |
| Mailing Address: | C/O PLATINUM PROPERTY MANAGEMENT & SALES 325 COLORADO PARK PL EAST WENATCHEE, WA 98802 | % Ownership: | % |
| | | Exemptions: | |
Pay Tax Due
Select the appropriate checkbox next to the year to be paid. Multiple years may be selected.
*Convenience Fee not included
Taxes and Assessment Details
Values
| (+) Improvement Homesite Value: | + | N/A | |
| (+) Improvement Non-Homesite Value: | + | N/A | |
| (+) Land Homesite Value: | + | N/A | |
| (+) Land Non-Homesite Value: | + | N/A | Ag / Timber Use Value |
| (+) Curr Use (HS): | + | N/A | N/A |
| (+) Curr Use (NHS): | + | N/A | N/A |
| | | -------------------------- | |
| (=) Market Value: | = | N/A | |
| (–) Productivity Loss: | – | N/A | |
| | | -------------------------- | |
| (=) Subtotal: | = | N/A | |
| (+) Senior Appraised Value: | + | N/A | |
| (+) Non-Senior Appraised Value: | + | N/A | |
| | | -------------------------- | |
| (=) Total Appraised Value: | = | N/A | |
| (–) Senior Exemption Loss: | – | N/A | |
| (–) Exemption Loss: | – | N/A | |
| | | -------------------------- | |
| (=) Taxable Value: | = | N/A | |
Taxing Jurisdiction
| Owner: | EVERGREEN DEVELOPERS LLC | | |
| % Ownership: | 100.0000000000% | | |
| Total Value: | N/A | | |
| Tax Area: | 802 - W 246 F1 WB WVFD |
| 010170 | Chelan County | N/A | N/A | N/A | N/A | | |
| 155001 | Veteran's Relief | N/A | N/A | N/A | N/A | | |
| 160001 | Mental Health | N/A | N/A | N/A | N/A | | |
| 656101 | Fire No 1 General | N/A | N/A | N/A | N/A | | |
| 656110 | Fire No 1 Bond | N/A | N/A | N/A | N/A | | |
| 644001 | Regional Library | N/A | N/A | N/A | N/A | | |
| 652025 | State School 2 Refund | N/A | N/A | N/A | N/A | | |
| 693041 | Wenatchee General | N/A | N/A | N/A | N/A | | |
| 107001 | Flood Control Zone | N/A | N/A | N/A | N/A | | |
| 656201 | Wenatchee Valley Fire Department | N/A | N/A | N/A | N/A | | |
| 671101 | Port General | N/A | N/A | N/A | N/A | | |
| 654201 | Wenatchee SD 246 General | N/A | N/A | N/A | N/A | | |
| 654210 | Wenatchee SD 246 Bond | N/A | N/A | N/A | N/A | | |
| 652001 | State School Refund | N/A | N/A | N/A | N/A | | |
| 652003 | State School 2 | N/A | N/A | N/A | N/A | | |
| 652005 | State School | N/A | N/A | N/A | N/A | | |
| | Total Tax Rate: | N/A | | | | | |
| | | | | Taxes w/Current Exemptions: | N/A | | |
| | | | | Taxes w/o Exemptions: | N/A | | |
Improvement / Building
| All improvemets valued at income |
| Improvement #1: | COMMERCIAL | State Code: | 13 | 11382.0 sqft | Value: | N/A |
Sketch
| No sketches available for this property. |
Property Image
Land
| 1 | COM LAND | COMMERCIAL LAND | 0.2100 | 9000.00 | 0.00 | 0.00 | 0.00 | N/A | N/A |
Roll Value History
| 2026 | N/A | N/A | N/A | N/A | N/A |
| 2025 | $1,575,843 | $81,000 | $0 | $1,656,843 | $1,656,843 |
| 2024 | $1,575,843 | $81,000 | $0 | $1,656,843 | $1,656,843 |
| 2023 | $1,575,843 | $81,000 | $0 | $1,656,843 | $1,656,843 |
| 2022 | $1,575,843 | $81,000 | $0 | $1,656,843 | $1,656,843 |
| 2021 | $1,057,160 | $63,000 | $0 | $1,120,160 | $1,120,160 |
| 2020 | $992,396 | $63,000 | $0 | $1,055,396 | $1,055,396 |
| 2019 | $1,017,786 | $63,000 | $0 | $1,080,786 | $1,080,786 |
| 2018 | $962,439 | $63,000 | $0 | $1,025,439 | $1,025,439 |
| 2017 | $781,198 | $63,000 | $0 | $844,198 | $844,198 |
| 2016 | $806,251 | $63,000 | $0 | $869,251 | $869,251 |
| 2015 | $829,288 | $63,000 | $0 | $892,288 | $892,288 |
| 2014 | $717,874 | $63,000 | $0 | $780,874 | $780,874 |
| 2013 | $523,023 | $63,000 | $0 | $586,023 | $586,023 |
| 2012 | $597,487 | $63,000 | $0 | $660,487 | $660,487 |
| 2011 | $618,092 | $63,000 | $0 | $681,092 | $681,092 |
| 2010 | $616,426 | $63,000 | $0 | $679,426 | $679,426 |
| 2009 | $576,000 | $54,000 | $0 | $630,000 | $630,000 |
| 2008 | $576,000 | $54,000 | $0 | $630,000 | $630,000 |
| 2007 | $576,000 | $54,000 | $0 | $630,000 | $630,000 |
Deed and Sales History
| 1 | 10/18/2022 | SWD | Statutory Warranty Deed | SCRIVANICH LARRY ETAL | EVERGREEN DEVELOPERS LLC | | | $4,380,000.00 | 197715 | 2574757 |
|   | |
| 2 | 10/04/2022 | Q | Quit Claim Deed | WENATCHEE COURTYARD LLC | SCRIVANICH LARRY ETAL | | | $0.00 | 197582 | 2574149 |
| 3 | 04/01/2008 | W | Warranty Deed | GREEN FAMILY MANAGEMENT CO LLC | WENATCHEE COURTYARD LLC | | | | 0 | 2278450 |
| 4 | 03/26/2008 | W | Warranty Deed | | | | | $1,700,000.00 | 14213901 | 2278450 |
| 5 | 04/01/2008 | O | Other | GREEN FAMILY | WENATCHEE COURTYARD | | | | 0 | 2278455 |
| 6 | 08/12/2004 | Q | Quit Claim Deed | | GREEN FAMILY MANAGEMENT CO LL | | | | 0 | 2180800 |
| 7 | 03/31/1982 | SP WD | Special Warranty Deed | | EVERETT R GREEN | 795 | 974 | | 0 | |
Payout Agreement
| No payout information available.. |