Property
Account |
| Property ID: | 16372 | Abbreviated Legal Description: | SAGE HILLS FIRST BLOCK 2 LOT 6 & VAC ALLEY 2.6700 ACRES |
| Geographic ID: | 222006835050 | Agent Code: | |
| Type: | Real | | |
| Tax Area: | 66 - 246 F1 WVFD | Land Use Code | 11 |
| Open Space: | N | DFL | N |
| Historic Property: | N | Remodel Property: | N |
| Multi-Family Redevelopment: | N | | |
| Township: | 22N | Section: | 06 |
| Range: | 20EWM | Legal Acres: | 2.6700 |
Location |
| Address: | 525 SAGE HILLS DR WENATCHEE, WA 98801 | Mapsco: | |
| Neighborhood: | Cycle 2 Wenatchee mid div 1 RES | Map ID: | 2WENM01R01 |
| Neighborhood CD: | 2WENM01R01 |
Owner |
| Name: | KLING KYLER & REBECCA | Owner ID: | 123519 |
| Mailing Address: | 525 SAGE HILLS DR WENATCHEE, WA 98801 | % Ownership: | % |
| | | Exemptions: | |
Pay Tax Due
Select the appropriate checkbox next to the year to be paid. Multiple years may be selected.
*Convenience Fee not included
Taxes and Assessment Details
Values
| (+) Improvement Homesite Value: | + | $0 | |
| (+) Improvement Non-Homesite Value: | + | $348,257 | |
| (+) Land Homesite Value: | + | $0 | |
| (+) Land Non-Homesite Value: | + | $205,826 | |
| (+) Curr Use (HS): | + | $0 | $0 |
| (+) Curr Use (NHS): | + | $0 | $0 |
| | | -------------------------- | |
| (=) Market Value: | = | $554,083 | |
| (–) Productivity Loss: | – | $0 | |
| | | -------------------------- | |
| (=) Subtotal: | = | $554,083 | |
| (+) Senior Appraised Value: | + | $0 | |
| (+) Non-Senior Appraised Value: | + | $554,083 | |
| | | -------------------------- | |
| (=) Total Appraised Value: | = | $554,083 | |
| (–) Senior Exemption Loss: | – | $0 | |
| (–) Exemption Loss: | – | $0 | |
| | | -------------------------- | |
| (=) Taxable Value: | = | $554,083 | |
Taxing Jurisdiction
| Owner: | KLING KYLER & REBECCA | | |
| % Ownership: | 100.0000000000% | | |
| Total Value: | $554,083 | | |
| Tax Area: | 66 - 246 F1 WVFD |
| 110001 | County Road General | 0.7994434437 | $554,083 | $554,083 | $442.96 | | |
| 010170 | Chelan County | 0.7334053198 | $554,083 | $554,083 | $406.37 | | |
| 155001 | Veteran's Relief | 0.0086008201 | $554,083 | $554,083 | $4.77 | | |
| 160001 | Mental Health | 0.0189723974 | $554,083 | $554,083 | $10.51 | | |
| 656101 | Fire No 1 General | 0.0000000000 | $554,083 | $554,083 | $0.00 | | |
| 656110 | Fire No 1 Bond | 0.0000000000 | $554,083 | $554,083 | $0.00 | | |
| 644001 | Regional Library | 0.2864488554 | $554,083 | $554,083 | $158.72 | | |
| 671101 | Port General | 0.1756188309 | $554,083 | $554,083 | $97.31 | | |
| 654201 | Wenatchee SD 246 General | 1.7001724839 | $554,083 | $554,083 | $942.04 | | |
| 654210 | Wenatchee SD 246 Bond | 0.8546844869 | $554,083 | $554,083 | $473.57 | | |
| 652001 | State School Refund | 0.0000273969 | $554,083 | $554,083 | $0.02 | | |
| 652003 | State School 2 | 0.8917891157 | $554,083 | $554,083 | $494.13 | | |
| 652005 | State School | 1.6674243773 | $554,083 | $554,083 | $923.89 | | |
| 652025 | State School 2 Refund | 0.0000148770 | $554,083 | $554,083 | $0.01 | | |
| 107001 | Flood Control Zone | 0.0408306198 | $554,083 | $554,083 | $22.62 | | |
| 656201 | Wenatchee Valley Fire Department | 1.5000000000 | $554,083 | $554,083 | $831.12 | | |
| | Total Tax Rate: | 8.6774330248 | | | | | |
| | | | | Taxes w/Current Exemptions: | $4,808.04 | | |
| | | | | Taxes w/o Exemptions: | $4,808.04 | | |
Improvement / Building
| Improvement #1: | RESIDENTIAL | State Code: | 11 | 2220.0 sqft | Value: | $329,510 |
| Exterior Wall: | Wood Siding | Fireplace: | Single 1 Story | | Heating/Cooling: | Heat Pump | Number of Bathrooms: | 3.5 | | Number of Bedrooms: | 4 |   |   |
|
| | Type | Description | Class CD | Sub Class CD | Year Built | Area |
| | MA | Main | AVERAGE | 1 STY | 1928 | 2220.0 |
| | GAR-ATT | Attached Garage | AVERAGE | 1 STY | 1928 | 872.0 |
| | BS-UFC6 | BSMT AREA 6” CONC (Pre-1989) | AVERAGE | 1 STY | 1928 | 1584.0 |
| | PP-OPEN | Open Concrete Porch | AVERAGE | * | 1928 | 606.0 |
| | DECK | Open Wood Deck | AVERAGE | * | 1928 | 664.0 |
| | BSMT-PF | BSMT FINISH - PARTITIONED | AVERAGE | 1 STY | 1928 | 1584.0 |
| Improvement #2: | RESIDENTIAL | State Code: | 11 | 0.0 sqft | Value: | $10,335 |
| Improvement #3: | RESIDENTIAL | State Code: | 11 | 0.0 sqft | Value: | $8,412 |
Sketch
| No sketches available for this property. |
Property Image
Land
| 1 | RES 10K | RESIDUAL $10,000/A | 1.6700 | 72745.20 | 0.00 | 0.00 | 1.00 | $35,546 | $0 |
| 2 | SV 80K | SITE VALUE $80,000 | 1.0000 | 43560.00 | 0.00 | 0.00 | 1.00 | $170,280 | $0 |
Roll Value History
| 2026 | N/A | N/A | N/A | N/A | N/A |
| 2025 | $445,634 | $149,376 | $0 | $595,010 | $595,010 |
| 2024 | $426,135 | $117,007 | $0 | $543,142 | $543,142 |
| 2023 | $486,491 | $124,743 | $0 | $611,234 | $611,234 |
| 2022 | $348,257 | $205,826 | $0 | $554,083 | $554,083 |
| 2021 | $424,709 | $96,700 | $0 | $521,409 | $105,692 |
| 2020 | $385,170 | $96,700 | $0 | $481,870 | $105,692 |
| 2019 | $377,549 | $121,800 | $0 | $499,349 | $120,792 |
| 2018 | $312,829 | $121,800 | $0 | $434,629 | $120,792 |
| 2017 | $184,320 | $130,326 | $0 | $314,646 | $101,712 |
| 2016 | $194,066 | $121,800 | $0 | $315,866 | $101,712 |
| 2015 | $169,589 | $121,800 | $0 | $291,389 | $101,712 |
| 2014 | $165,296 | $121,800 | $0 | $287,096 | $101,712 |
| 2013 | $132,066 | $121,800 | $0 | $253,866 | $101,546 |
| 2012 | $136,452 | $91,800 | $0 | $228,252 | $228,252 |
| 2011 | $209,451 | $91,800 | $0 | $301,251 | $301,251 |
| 2010 | $209,451 | $91,800 | $0 | $301,251 | $301,251 |
| 2009 | $189,676 | $91,800 | $0 | $281,476 | $281,476 |
| 2008 | $189,676 | $91,800 | $0 | $281,476 | $281,476 |
| 2007 | $189,676 | $91,800 | $0 | $281,476 | $281,476 |
Deed and Sales History
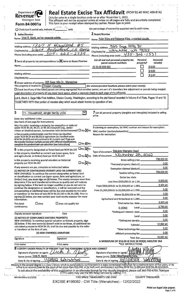
| 1 | 12/02/2022 | SWD | Statutory Warranty Deed | MARTZ VICKI W | KLING KYLER & REBECCA | | | $758,000.00 | 198082 | 2576408 |
| 2 | 12/20/2004 | Q | Quit Claim Deed | | MARTZ VICKI | | | | 0 | 2189764 |
| 3 | 04/13/1993 | W | Warranty Deed | | GARY A MARTZ | 991 | 1308 | | 0 | |
| 4 | 01/29/1992 | Q | Quit Claim Deed | | DIANE L SHIVEL | 962 | 876 | | 0 | |
| 5 | 11/24/1987 | W | Warranty Deed | | JAMES M SHIVEL | 886 | 15 | | 0 | |
| 6 | | OT | Conversion Code Only | | MAX F KOCH | 706 | 1340 | | 0 | |
| 7 | 12/21/2004 | Q | Quit Claim Deed | | | | | | 12601200 | 2189764 |
| 8 | 04/09/1993 | W | Warranty Deed | | | 991 | 1308 | $139,000.00 | 7613200 | |
| 9 | 01/20/1992 | Q | Quit Claim Deed | | | 962 | 876 | | 7136600 | |
Payout Agreement
| No payout information available.. |