Property
Account |
Property ID: | 15817 | Abbreviated Legal Description: | COLUMBIA VISTA BLOCK 2 LOT 10 0.1900 ACRES |
Geographic ID: | 222009520140 | Agent Code: | |
Type: | Real | | |
Tax Area: | 802 - W 246 F1 WB WVFD | Land Use Code | 12 |
Open Space: | N | DFL | N |
Historic Property: | N | Remodel Property: | N |
Multi-Family Redevelopment: | N | | |
Township: | 22N | Section: | 09 |
Range: | 20EWM | Legal Acres: | 0.1900 |
Location |
Address: | 902 GELLATLY ST WENATCHEE, WA 98801 | Mapsco: | |
Neighborhood: | Cycle 1 Wenatchee Div 2 Com | Map ID: | 1WEN102C01 |
Neighborhood CD: | 1WEN102C01 |
Owner |
Name: | SADIE BEE LLC | Owner ID: | 97144 |
Mailing Address: | 408 5TH ST STE A WENATCHEE, WA 98801 | % Ownership: | % |
| | Exemptions: | |
Pay Tax Due
Select the appropriate checkbox next to the year to be paid. Multiple years may be selected.
*Convenience Fee not included
Taxes and Assessment Details
Values
(+) Improvement Homesite Value: | + | $0 | |
(+) Improvement Non-Homesite Value: | + | $297,154 | |
(+) Land Homesite Value: | + | $0 | |
(+) Land Non-Homesite Value: | + | $100,000 | |
(+) Curr Use (HS): | + | $0 | $0 |
(+) Curr Use (NHS): | + | $0 | $0 |
| | -------------------------- | |
(=) Market Value: | = | $397,154 | |
(–) Productivity Loss: | – | $0 | |
| | -------------------------- | |
(=) Subtotal: | = | $397,154 | |
(+) Senior Appraised Value: | + | $0 | |
(+) Non-Senior Appraised Value: | + | $397,154 | |
| | -------------------------- | |
(=) Total Appraised Value: | = | $397,154 | |
(–) Senior Exemption Loss: | – | $0 | |
(–) Exemption Loss: | – | $0 | |
| | -------------------------- | |
(=) Taxable Value: | = | $397,154 | |
Taxing Jurisdiction
Owner: | SADIE BEE LLC | | |
% Ownership: | 100.0000000000% | | |
Total Value: | $397,154 | | |
Tax Area: | 802 - W 246 F1 WB WVFD |
010170 | Chelan County | 0.7131947979 | $397,154 | $397,154 | $283.25 | | |
155001 | Veteran's Relief | 0.0131417976 | $397,154 | $397,154 | $5.22 | | |
160001 | Mental Health | 0.0178579654 | $397,154 | $397,154 | $7.09 | | |
656101 | Fire No 1 General | 0.0000000000 | $397,154 | $397,154 | $0.00 | | |
656110 | Fire No 1 Bond | 0.0000000000 | $397,154 | $397,154 | $0.00 | | |
644001 | Regional Library | 0.2534738555 | $397,154 | $397,154 | $100.67 | | |
652025 | State School 2 Refund | 0.0000512608 | $397,154 | $397,154 | $0.02 | | |
693041 | Wenatchee General | 0.9341346416 | $397,154 | $397,154 | $371.00 | | |
107001 | Flood Control Zone | 0.0399650208 | $397,154 | $397,154 | $15.87 | | |
656201 | Wenatchee Valley Fire Department | 1.0000000000 | $397,154 | $397,154 | $397.15 | | |
671101 | Port of Chelan County | 0.1575963345 | $397,154 | $397,154 | $62.59 | | |
654201 | Wenatchee SD 246 General | 1.6756748662 | $397,154 | $397,154 | $665.50 | | |
654210 | Wenatchee SD 246 Bond | 0.7351909486 | $397,154 | $397,154 | $291.98 | | |
652001 | State School Refund | 0.0000948042 | $397,154 | $397,154 | $0.04 | | |
652003 | State School 2 | 0.8859835425 | $397,154 | $397,154 | $351.87 | | |
652005 | State School | 1.6474423412 | $397,154 | $397,154 | $654.29 | | |
| Total Tax Rate: | 8.0738021768 | | | | | |
| | | | Taxes w/Current Exemptions: | $3,206.54 | | |
| | | | Taxes w/o Exemptions: | $3,206.54 | | |
Improvement / Building
Improvement #1: | COMMERCIAL | State Code: | 12 | 1646.0 sqft | Value: | $297,154 |
Exterior Wall: | Wood Siding | Heating/Cooling: | Baseboard Panel | Number of Bathrooms: | 1 |   |   |
|
| Type | Description | Class CD | Sub Class CD | Year Built | Area |
| MA | Main | FAIR | DPX 1 STY | 1952 | 823.0 |
| MA | Main | FAIR | DPX 1 STY | 1952 | 823.0 |
Sketch
No sketches available for this property. |
Property Image
Land
1 | SV 100K | SITE VALUE $100,000 | 0.1900 | 8276.40 | 0.00 | 0.00 | 1.00 | $100,000 | $0 |
Roll Value History
2025 | N/A | N/A | N/A | N/A | N/A |
2024 | $297,154 | $100,000 | $0 | $397,154 | $397,154 |
2023 | $243,331 | $100,000 | $0 | $343,331 | $343,331 |
2022 | $168,452 | $72,000 | $0 | $240,452 | $240,452 |
2021 | $174,690 | $72,000 | $0 | $246,690 | $246,690 |
2020 | $187,112 | $72,000 | $0 | $259,112 | $259,112 |
2019 | $91,452 | $60,000 | $0 | $151,452 | $151,452 |
2018 | $106,798 | $60,000 | $0 | $166,798 | $166,798 |
2017 | $89,634 | $42,500 | $0 | $132,134 | $132,134 |
2016 | $78,998 | $42,500 | $0 | $121,498 | $121,498 |
2015 | $83,936 | $42,500 | $0 | $126,436 | $126,436 |
2014 | $70,874 | $42,500 | $0 | $113,374 | $113,374 |
2013 | $73,548 | $42,500 | $0 | $116,048 | $116,048 |
2012 | $58,632 | $40,000 | $0 | $98,632 | $98,632 |
2011 | $58,632 | $40,000 | $0 | $98,632 | $98,632 |
2010 | $58,632 | $40,000 | $0 | $98,632 | $98,632 |
2009 | $58,632 | $40,000 | $0 | $98,632 | $98,632 |
2008 | $40,300 | $30,000 | $0 | $70,300 | $70,300 |
2007 | $40,300 | $30,000 | $0 | $70,300 | $70,300 |
2006 | $40,300 | $30,000 | $0 | $70,300 | $70,300 |
Deed and Sales History
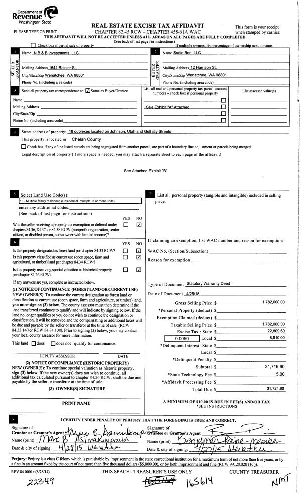
1 | 04/30/2015 | SWD | Statutory Warranty Deed | N B & B INVESTMENTS LLC | SADIE BEE LLC | | | $1,782,000.00 | 165614 | 2417130 |
  | |
2 | 04/07/2010 | Q | Quit Claim Deed | ASIMALOUPOULOS E STAR | N B & B INVESTMENTS LLC | | | | 148636 | 2321583 |
3 | 01/20/2010 | PR | Personal Representatives Deed | ASIMAKOUPOULOS EDWIN | ASIMALOUPOULOS E STAR | | | | 147971 | 2317580 |
4 | 01/27/1977 | Q | Quit Claim Deed | | ASIMAKOUPOULOS EDWIN | 740 | 102 | | 0 | |
5 | 01/27/1977 | Q | Quit Claim Deed | BRIKELAND B P | ASINAKOUPOULOS EDWIN | 740 | 102 | | 0 | |
6 | 01/27/1977 | Q | Quit Claim Deed | | ASIMAKOUPOULOS EDWIN | 740 | 102 | | 0 | |
7 | 03/09/1967 | SWD | Statutory Warranty Deed | NIENABER R A | SMITH EDWIN | 681 | 86 | | 0 | |
Payout Agreement
No payout information available.. |