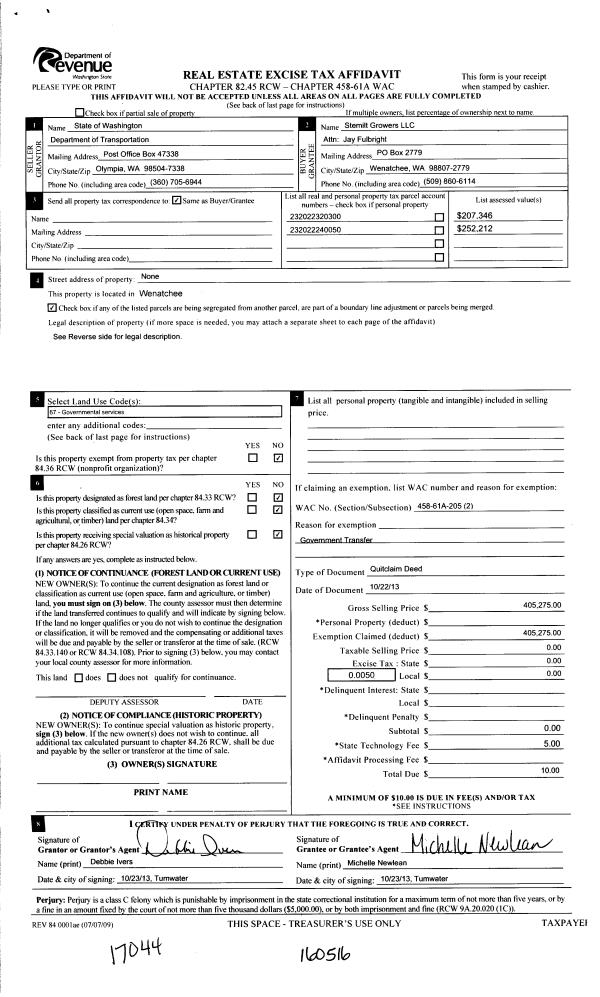
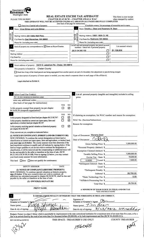
Property
Account |
Property ID: | 14200 | Abbreviated Legal Description: | BOLENBAUGHS BLOCK 8 LOT 17-18 0.1400 ACRES |
Geographic ID: | 222003465530 | Agent Code: | |
Type: | Real | | |
Tax Area: | 802 - W 246 F1 WB WVFD | Land Use Code | 12 |
Open Space: | N | DFL | N |
Historic Property: | N | Remodel Property: | N |
Multi-Family Redevelopment: | N | | |
Township: | 22N | Section: | 03 |
Range: | 20EWM | Legal Acres: | 0.1400 |
Location |
Address: | 314 N EMERSON AVE 5 WENATCHEE, WA 98801 | Mapsco: | |
Neighborhood: | Cycle 2 Wenatchee lower div 1 COM | Map ID: | 2WENL01C01 |
Neighborhood CD: | 2WENL01C01 |
Owner |
Name: | ECP OPPORTUNITIES FUND I LP | Owner ID: | 119713 |
Mailing Address: | PO BOX 1687 WENATCHEE, WA 98807 | % Ownership: | % |
| | Exemptions: | |
Pay Tax Due
Select the appropriate checkbox next to the year to be paid. Multiple years may be selected.
*Convenience Fee not included
Taxes and Assessment Details
Values
(+) Improvement Homesite Value: | + | $0 | |
(+) Improvement Non-Homesite Value: | + | $457,209 | |
(+) Land Homesite Value: | + | $0 | |
(+) Land Non-Homesite Value: | + | $54,886 | |
(+) Curr Use (HS): | + | $0 | $0 |
(+) Curr Use (NHS): | + | $0 | $0 |
| | -------------------------- | |
(=) Market Value: | = | $512,095 | |
(–) Productivity Loss: | – | $0 | |
| | -------------------------- | |
(=) Subtotal: | = | $512,095 | |
(+) Senior Appraised Value: | + | $0 | |
(+) Non-Senior Appraised Value: | + | $512,095 | |
| | -------------------------- | |
(=) Total Appraised Value: | = | $512,095 | |
(–) Senior Exemption Loss: | – | $0 | |
(–) Exemption Loss: | – | $0 | |
| | -------------------------- | |
(=) Taxable Value: | = | $512,095 | |
Taxing Jurisdiction
Owner: | ECP OPPORTUNITIES FUND I LP | | |
% Ownership: | 100.0000000000% | | |
Total Value: | N/A | | |
Tax Area: | 802 - W 246 F1 WB WVFD |
010170 | Chelan County | N/A | N/A | N/A | N/A | | |
155001 | Veteran's Relief | N/A | N/A | N/A | N/A | | |
160001 | Mental Health | N/A | N/A | N/A | N/A | | |
656101 | Fire No 1 General | N/A | N/A | N/A | N/A | | |
656110 | Fire No 1 Bond | N/A | N/A | N/A | N/A | | |
644001 | Regional Library | N/A | N/A | N/A | N/A | | |
671101 | Port General | N/A | N/A | N/A | N/A | | |
654201 | Wenatchee SD 246 General | N/A | N/A | N/A | N/A | | |
654210 | Wenatchee SD 246 Bond | N/A | N/A | N/A | N/A | | |
652001 | State School Refund | N/A | N/A | N/A | N/A | | |
652003 | State School 2 | N/A | N/A | N/A | N/A | | |
652005 | State School | N/A | N/A | N/A | N/A | | |
652025 | State School 2 Refund | N/A | N/A | N/A | N/A | | |
693041 | Wenatchee General | N/A | N/A | N/A | N/A | | |
107001 | Flood Control Zone | N/A | N/A | N/A | N/A | | |
656201 | Wenatchee Valley Fire Department | N/A | N/A | N/A | N/A | | |
| Total Tax Rate: | N/A | | | | | |
| | | | Taxes w/Current Exemptions: | N/A | | |
| | | | Taxes w/o Exemptions: | N/A | | |
Improvement / Building
Improvement #1: | COMMERCIAL | State Code: | 12 | 4180.0 sqft | Value: | $457,209 |
Sketch
No sketches available for this property. |
Property Image
Land
1 | COM LAND | COMMERCIAL LAND | 0.1400 | 6098.40 | 0.00 | 0.00 | 0.00 | $54,886 | $0 |
Roll Value History
2025 | N/A | N/A | N/A | N/A | N/A |
2024 | $376,950 | $54,886 | $0 | $431,836 | $431,836 |
2023 | $381,492 | $54,886 | $0 | $436,378 | $436,378 |
2022 | $390,576 | $54,886 | $0 | $445,462 | $445,462 |
2021 | $282,211 | $42,689 | $0 | $324,900 | $324,900 |
2020 | $282,211 | $42,689 | $0 | $324,900 | $324,900 |
2019 | $282,211 | $42,689 | $0 | $324,900 | $324,900 |
2018 | $282,211 | $42,689 | $0 | $324,900 | $324,900 |
2017 | $274,882 | $42,689 | $0 | $317,571 | $317,571 |
2016 | $274,882 | $42,689 | $0 | $317,571 | $317,571 |
2015 | $274,882 | $42,689 | $0 | $317,571 | $317,571 |
2014 | $274,882 | $42,689 | $0 | $317,571 | $317,571 |
2013 | $238,235 | $42,689 | $0 | $280,924 | $280,924 |
2012 | $275,942 | $42,689 | $0 | $318,631 | $318,631 |
2011 | $275,942 | $42,689 | $0 | $318,631 | $318,631 |
2010 | $275,942 | $42,689 | $0 | $318,631 | $318,631 |
2009 | $146,500 | $35,000 | $0 | $181,500 | $181,500 |
2008 | $146,500 | $35,000 | $0 | $181,500 | $181,500 |
2007 | $146,500 | $35,000 | $0 | $181,500 | $181,500 |
2006 | $146,500 | $35,000 | $0 | $181,500 | $181,500 |
Deed and Sales History
1 | 04/29/2022 | SWD | Statutory Warranty Deed | H P L LLC | ECP OPPORTUNITIES FUND I LP | | | $3,350,000.00 | 195857 | 2566319 |
  | |
2 | 05/26/2011 | CORR DEED | Correction Deed | | H P L LLC | | | | 152002 | 2343466 |
3 | 06/15/2006 | SWD | Statutory Warranty Deed | | H P L LLC | | | $1,095,800.00 | 13391602 | 2229635 |
4 | 03/29/1985 | SWD | Statutory Warranty Deed | | CARVER JAMES & SUSAN M | 840 | 1069 | | 0 | |
Payout Agreement
No payout information available.. |