Property
Account |
| Property ID: | 13870 | Abbreviated Legal Description: | T 21N R 20EWM S 09 LOT B BLA 2000-026 -027, NENW 7.7900 ACRES |
| Geographic ID: | 212009210050 | Agent Code: | |
| Type: | Real | | |
| Tax Area: | 66 - 246 F1 WVFD | Land Use Code | 91 |
| Open Space: | N | DFL | N |
| Historic Property: | N | Remodel Property: | N |
| Multi-Family Redevelopment: | N | | |
| Township: | 21N | Section: | 09 |
| Range: | 20EWM | Legal Acres: | 7.7900 |
Location |
| Address: | UNASSIGNED WENATCHEE, WA 98801 | Mapsco: | |
| Neighborhood: | Cycle 1 Squilchuck_upper Mission Creek Div 1 Res | Map ID: | 1SQKM01R01 |
| Neighborhood CD: | 1SQKM01R01 |
Owner |
| Name: | SECTION 9 ORCHARD LLC | Owner ID: | 99317 |
| Mailing Address: | PO BOX 1765 WENATCHEE, WA 98807 | % Ownership: | % |
| | | Exemptions: | |
Pay Tax Due
Select the appropriate checkbox next to the year to be paid. Multiple years may be selected.
*Convenience Fee not included
Taxes and Assessment Details
Values
| (+) Improvement Homesite Value: | + | N/A | |
| (+) Improvement Non-Homesite Value: | + | N/A | |
| (+) Land Homesite Value: | + | N/A | |
| (+) Land Non-Homesite Value: | + | N/A | Ag / Timber Use Value |
| (+) Curr Use (HS): | + | N/A | N/A |
| (+) Curr Use (NHS): | + | N/A | N/A |
| | | -------------------------- | |
| (=) Market Value: | = | N/A | |
| (–) Productivity Loss: | – | N/A | |
| | | -------------------------- | |
| (=) Subtotal: | = | N/A | |
| (+) Senior Appraised Value: | + | N/A | |
| (+) Non-Senior Appraised Value: | + | N/A | |
| | | -------------------------- | |
| (=) Total Appraised Value: | = | N/A | |
| (–) Senior Exemption Loss: | – | N/A | |
| (–) Exemption Loss: | – | N/A | |
| | | -------------------------- | |
| (=) Taxable Value: | = | N/A | |
Taxing Jurisdiction
| Owner: | SECTION 9 ORCHARD LLC | | |
| % Ownership: | 100.0000000000% | | |
| Total Value: | N/A | | |
| Tax Area: | 66 - 246 F1 WVFD |
| 110001 | County Road General | N/A | N/A | N/A | N/A | | |
| 010170 | Chelan County | N/A | N/A | N/A | N/A | | |
| 155001 | Veteran's Relief | N/A | N/A | N/A | N/A | | |
| 160001 | Mental Health | N/A | N/A | N/A | N/A | | |
| 656101 | Fire No 1 General | N/A | N/A | N/A | N/A | | |
| 656110 | Fire No 1 Bond | N/A | N/A | N/A | N/A | | |
| 652005 | State School | N/A | N/A | N/A | N/A | | |
| 652025 | State School 2 Refund | N/A | N/A | N/A | N/A | | |
| 107001 | Flood Control Zone | N/A | N/A | N/A | N/A | | |
| 656201 | Wenatchee Valley Fire Department | N/A | N/A | N/A | N/A | | |
| 644001 | Regional Library | N/A | N/A | N/A | N/A | | |
| 671101 | Port General | N/A | N/A | N/A | N/A | | |
| 654201 | Wenatchee SD 246 General | N/A | N/A | N/A | N/A | | |
| 654210 | Wenatchee SD 246 Bond | N/A | N/A | N/A | N/A | | |
| 652001 | State School Refund | N/A | N/A | N/A | N/A | | |
| 652003 | State School 2 | N/A | N/A | N/A | N/A | | |
| | Total Tax Rate: | N/A | | | | | |
| | | | | Taxes w/Current Exemptions: | N/A | | |
| | | | | Taxes w/o Exemptions: | N/A | | |
Improvement / Building
Sketch
| No sketches available for this property. |
Property Image
Land
| 1 | RES 1000 | RESIDUAL $1000/A | 6.7900 | 295772.40 | 0.00 | 0.00 | 1.00 | N/A | N/A |
| 2 | SV 30K | SITE VALUE $30,000 | 1.0000 | 43560.00 | 0.00 | 0.00 | 1.00 | N/A | N/A |
Roll Value History
| 2026 | N/A | N/A | N/A | N/A | N/A |
| 2025 | $0 | $49,755 | $0 | $49,755 | $49,755 |
| 2024 | $0 | $49,755 | $0 | $49,755 | $49,755 |
| 2023 | $0 | $50,771 | $0 | $50,771 | $50,771 |
| 2022 | $0 | $37,570 | $0 | $37,570 | $37,570 |
| 2021 | $0 | $37,570 | $0 | $37,570 | $37,570 |
| 2020 | $0 | $33,509 | $0 | $33,509 | $33,509 |
| 2019 | $0 | $36,422 | $0 | $36,422 | $36,422 |
| 2018 | $0 | $33,111 | $0 | $33,111 | $33,111 |
| 2017 | $0 | $33,111 | $0 | $33,111 | $33,111 |
| 2016 | $0 | $29,800 | $0 | $29,800 | $29,800 |
| 2015 | $0 | $29,800 | $0 | $29,800 | $29,800 |
| 2014 | $0 | $31,272 | $0 | $31,272 | $31,272 |
| 2013 | $0 | $3,506 | $0 | $3,506 | $3,506 |
| 2012 | $0 | $5,064 | $0 | $5,064 | $5,064 |
| 2011 | $0 | $6,232 | $0 | $6,232 | $6,232 |
| 2010 | $0 | $7,790 | $0 | $7,790 | $7,790 |
| 2009 | $0 | $7,790 | $0 | $7,790 | $7,790 |
| 2008 | $0 | $9,170 | $0 | $9,170 | $9,170 |
| 2007 | $0 | $9,170 | $0 | $9,170 | $9,170 |
Deed and Sales History
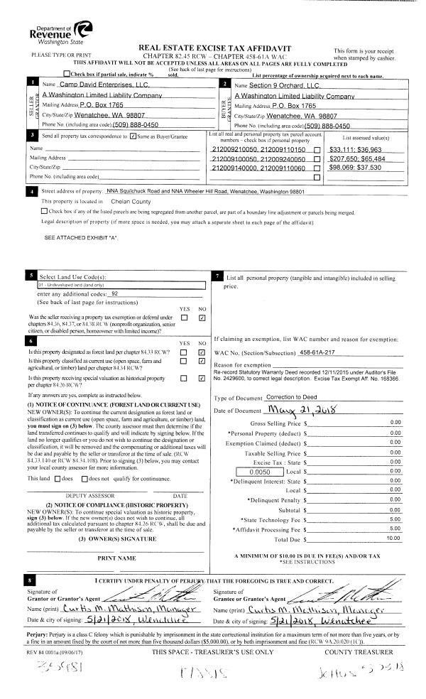
| 1 | 05/24/2018 | CORR DEED | Correction Deed | | SECTION 9 ORCHARD LLC | | | $0.00 | 178818 | 2478242 |
| 2 | 12/11/2015 | SWD | Statutory Warranty Deed | CAMP DAVID ENTERPRISES | SECTION 9 ORCHARD LLC | | | $0.00 | 168366 | 2429600 |
| 3 | 08/08/2008 | SWD | Statutory Warranty Deed | | | | | $1,466,274.00 | 14351701 | 2287657 |
|   | |
| 4 | 09/22/2005 | O | Other | CHE CO SHERIFF | GATES KEVIN | | | | 0 | 2206498 |
| 5 | 07/13/2005 | O | Other | | GATES KEVIN | | | | 0 | 2204101 |
| 6 | 03/08/2000 | Q | Quit Claim Deed | BLACK JOHN A B | LAPPIN FOREST | | | | 0 | 2070535 |
| 7 | 03/08/2000 | REF | Conversion Code Only | BLA 2000-027 | | | | | 0 | 2070532 |
| 8 | 03/08/2000 | REF | Conversion Code Only | BLA 2000-026 | | | | | 0 | 2070530 |
| 9 | 04/14/1995 | W | Warranty Deed | | JOHN A BLACK | 1041 | 748 | | 0 | |
| 10 | 04/17/1995 | Q | Quit Claim Deed | SPORAN ENTERPRI | FULTZ HOWARD L | 1041 | 740 | | 0 | |
| 11 | 06/08/1992 | Q | Quit Claim Deed | | CAROL FULTZ | 970 | 1386 | | 0 | |
| 12 | 06/08/1992 | Q | Quit Claim Deed | | CAROL A FULTZ ETAL | 970 | 1386 | | 0 | |
| 13 | 05/10/1991 | Q | Quit Claim Deed | SEATTLE FIRST N | ZIMMERMAN JESSE | 948 | 666 | | 0 | |
| 14 | 04/29/1991 | S | Sellers Assignment of Contract and Deed | ZIMMERMAN JESSI | COLUMBIA BANK | 947 | 1052 | | 0 | |
| 15 | 04/28/1992 | W | Warranty Deed | | HOWARD L FULTZ, ETAL | 937 | 2400 | | 0 | |
| 16 | | OT | Conversion Code Only | | ARDEN ZIMMERMAN | 712 | 516 | | 0 | |
| 17 | 04/12/1995 | W | Warranty Deed | | | 1041 | 748 | $1,600,000.00 | 8528110 | |
| 18 | 08/08/2008 | SWD | Statutory Warranty Deed | GATES KEVIN | CAMP DAVID ENTERPRISES | | | $1,466,273.00 | 143517 | 2287657 |
Payout Agreement
| No payout information available.. |