Property
Account |
| Property ID: | 12301 | Abbreviated Legal Description: | MEADOW RIDGE MOBILE HOME PARK SPACE 2 95 GOLDENWEST 52X27 |
| Geographic ID: | 9904598 | Agent Code: | |
| Type: | Mobile Home | | |
| Tax Area: | 802 - W 246 F1 WB WVFD | Land Use Code | 11 |
| Open Space: | N | DFL | N |
| Historic Property: | N | Remodel Property: | N |
| Multi-Family Redevelopment: | N | | |
| Township: | | Section: | |
| Range: | | Legal Acres: | |
Location |
| Address: | 1607 FAIRVIEW AVE 2 WENATCHEE, WA 98801 | Mapsco: | |
| Neighborhood: | | Map ID: | 2WENM01C01 |
| Neighborhood CD: | |
Owner |
| Name: | ROSS PATRICIA A | Owner ID: | 101399 |
| Mailing Address: | 1607 FAIRVIEW AVE WENATCHEE, WA 98801 | % Ownership: | % |
| | | Exemptions: | |
Pay Tax Due
There is currently No Amount Due on this property.
Taxes and Assessment Details
Property Tax Information as of
03/16/2026
Click on "Statement Details" to expand or collapse a tax statement.
* Please enter a valid date ** Please enter a valid date *
Statement Details |
| | TOTAL: | $0.00 | $0.00 | $0.00 | $0.00 | $0.00 | $0.00 |
|
| | $0.00 | $0.00 | $0.00 | $0.00 | $0.00 | $0.00 |
Values
| (+) Improvement Homesite Value: | + | N/A | |
| (+) Improvement Non-Homesite Value: | + | N/A | |
| (+) Land Homesite Value: | + | N/A | |
| (+) Land Non-Homesite Value: | + | N/A | Ag / Timber Use Value |
| (+) Curr Use (HS): | + | N/A | N/A |
| (+) Curr Use (NHS): | + | N/A | N/A |
| | | -------------------------- | |
| (=) Market Value: | = | N/A | |
| (–) Productivity Loss: | – | N/A | |
| | | -------------------------- | |
| (=) Subtotal: | = | N/A | |
| (+) Senior Appraised Value: | + | N/A | |
| (+) Non-Senior Appraised Value: | + | N/A | |
| | | -------------------------- | |
| (=) Total Appraised Value: | = | N/A | |
| (–) Senior Exemption Loss: | – | N/A | |
| (–) Exemption Loss: | – | N/A | |
| | | -------------------------- | |
| (=) Taxable Value: | = | N/A | |
Taxing Jurisdiction
| Owner: | ROSS PATRICIA A | | |
| % Ownership: | 100.0000000000% | | |
| Total Value: | N/A | | |
| Tax Area: | 802 - W 246 F1 WB WVFD |
| 010170 | Chelan County | N/A | N/A | N/A | N/A | | |
| 155001 | Veteran's Relief | N/A | N/A | N/A | N/A | | |
| 160001 | Mental Health | N/A | N/A | N/A | N/A | | |
| 656101 | Fire No 1 General | N/A | N/A | N/A | N/A | | |
| 656110 | Fire No 1 Bond | N/A | N/A | N/A | N/A | | |
| 644001 | Regional Library | N/A | N/A | N/A | N/A | | |
| 671101 | Port General | N/A | N/A | N/A | N/A | | |
| 654201 | Wenatchee SD 246 General | N/A | N/A | N/A | N/A | | |
| 654210 | Wenatchee SD 246 Bond | N/A | N/A | N/A | N/A | | |
| 652001 | State School Refund | N/A | N/A | N/A | N/A | | |
| 652003 | State School 2 | N/A | N/A | N/A | N/A | | |
| 652005 | State School | N/A | N/A | N/A | N/A | | |
| 652025 | State School 2 Refund | N/A | N/A | N/A | N/A | | |
| 693041 | Wenatchee General | N/A | N/A | N/A | N/A | | |
| 107001 | Flood Control Zone | N/A | N/A | N/A | N/A | | |
| 656201 | Wenatchee Valley Fire Department | N/A | N/A | N/A | N/A | | |
| | Total Tax Rate: | N/A | | | | | |
| | | | | Taxes w/Current Exemptions: | N/A | | |
| | | | | Taxes w/o Exemptions: | N/A | | |
Improvement / Building
| Improvement #1: | MOBILE HOME | State Code: | 15 | 1404.0 sqft | Value: | N/A |
| Exterior Wall: | Plywood or Hrdbrd | Heating/Cooling: | Forced Air |
|
| | Type | Description | Class CD | Sub Class CD | Year Built | Area |
| | MH2 | MH DOUBLE | AVERAGE | MBL HOME | 1995 | 1404.0 |
| | GAR-ATT | Attached Garage | AVERAGE | MBL HOME | 1995 | 528.0 |
| | PP-OPEN | Open Concrete Porch | AVERAGE | * | 1995 | 168.0 |
Sketch
| No sketches available for this property. |
Property Image
Land
No land segments exist for this property.
Roll Value History
| 2026 | N/A | N/A | N/A | N/A | N/A |
| 2025 | $174,548 | $0 | $0 | $174,548 | $174,548 |
| 2024 | $164,827 | $0 | $0 | $164,827 | $164,827 |
| 2023 | $149,264 | $0 | $0 | $149,264 | $149,264 |
| 2022 | $118,991 | $0 | $0 | $118,991 | $118,991 |
| 2021 | $105,235 | $0 | $0 | $105,235 | $105,235 |
| 2020 | $87,963 | $0 | $0 | $87,963 | $87,963 |
| 2019 | $90,025 | $0 | $0 | $90,025 | $90,025 |
| 2018 | $78,458 | $0 | $0 | $78,458 | $78,458 |
| 2017 | $62,514 | $0 | $0 | $62,514 | $62,514 |
| 2016 | $55,451 | $0 | $0 | $55,451 | $55,451 |
| 2015 | $56,663 | $0 | $0 | $56,663 | $56,663 |
| 2014 | $50,310 | $0 | $0 | $50,310 | $50,310 |
| 2013 | $40,659 | $0 | $0 | $40,659 | $40,659 |
| 2012 | $57,780 | $0 | $0 | $57,780 | $57,780 |
| 2011 | $59,307 | $0 | $0 | $59,307 | $59,307 |
| 2010 | $59,307 | $0 | $0 | $59,307 | $59,307 |
| 2009 | $63,336 | $0 | $0 | $63,336 | $63,336 |
| 2008 | $63,336 | $0 | $0 | $63,336 | $63,336 |
| 2007 | $63,336 | $0 | $0 | $63,336 | $63,336 |
Deed and Sales History
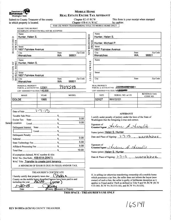
| 1 | 07/25/2016 | MH TITLE | Mobile Home Title | HUNTER HELEN S & MICHAEL P JTROS | ROSS PATRICIA A | | | $82,000.00 | 170854 | |
| 2 | 01/07/2015 | MH TITLE | Mobile Home Title | HUNTER HELEN S | HUNTER HELEN S & MICHAEL P JTROS | | | $0.00 | 165141 | |
| 3 | 11/05/2001 | O | Other | | | 0 | 0 | | 11194100 | |
| 4 | 09/29/2000 | O | Other | | | 0 | 0 | $86,000.00 | 10750000 | |
|   | |
| 5 | 04/14/1999 | O | Other | | | 0 | 0 | | 10148900 | |
Payout Agreement
| No payout information available.. |