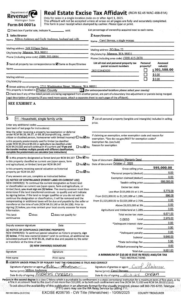
Property
Account |
| Property ID: | 11681 | Abbreviated Legal Description: | LAKE CHELAN YACHT CLUB SPACE 83 IMPROVEMENTS ONLY |
| Geographic ID: | 9991008 | Agent Code: | |
| Type: | Mobile Home | | |
| Tax Area: | 34 - 129 F7 CD4 H2 | Land Use Code | 11 |
| Open Space: | N | DFL | N |
| Historic Property: | N | Remodel Property: | N |
| Multi-Family Redevelopment: | N | | |
| Township: | | Section: | |
| Range: | | Legal Acres: | |
Location |
| Address: | 12245 SOUTH LAKESHORE RD 83 CHELAN, WA 98816 | Mapsco: | |
| Neighborhood: | | Map ID: | 4CVSO03C01 |
| Neighborhood CD: | |
Owner |
| Name: | GLOSNIAK JANEE & PAUL | Owner ID: | 131035 |
| Mailing Address: | 11005 104TH AVE NE KIRKLAND, WA 98033 | % Ownership: | % |
| | | Exemptions: | |
Pay Tax Due
There is currently No Amount Due on this property.
Taxes and Assessment Details
Values
| (+) Improvement Homesite Value: | + | N/A | |
| (+) Improvement Non-Homesite Value: | + | N/A | |
| (+) Land Homesite Value: | + | N/A | |
| (+) Land Non-Homesite Value: | + | N/A | Ag / Timber Use Value |
| (+) Curr Use (HS): | + | N/A | N/A |
| (+) Curr Use (NHS): | + | N/A | N/A |
| | | -------------------------- | |
| (=) Market Value: | = | N/A | |
| (–) Productivity Loss: | – | N/A | |
| | | -------------------------- | |
| (=) Subtotal: | = | N/A | |
| (+) Senior Appraised Value: | + | N/A | |
| (+) Non-Senior Appraised Value: | + | N/A | |
| | | -------------------------- | |
| (=) Total Appraised Value: | = | N/A | |
| (–) Senior Exemption Loss: | – | N/A | |
| (–) Exemption Loss: | – | N/A | |
| | | -------------------------- | |
| (=) Taxable Value: | = | N/A | |
Taxing Jurisdiction
| Owner: | GLOSNIAK JANEE & PAUL | | |
| % Ownership: | 100.0000000000% | | |
| Total Value: | N/A | | |
| Tax Area: | 34 - 129 F7 CD4 H2 |
| 110001 | County Road General | N/A | N/A | N/A | N/A | | |
| 010170 | Chelan County | N/A | N/A | N/A | N/A | | |
| 155001 | Veteran's Relief | N/A | N/A | N/A | N/A | | |
| 160001 | Mental Health | N/A | N/A | N/A | N/A | | |
| 657401 | Cemetery No 4 | N/A | N/A | N/A | N/A | | |
| 656701 | Fire No 7 General | N/A | N/A | N/A | N/A | | |
| 654115 | Lake Chelan SD 129 Capital Projects | N/A | N/A | N/A | N/A | | |
| 652001 | State School Refund | N/A | N/A | N/A | N/A | | |
| 652003 | State School 2 | N/A | N/A | N/A | N/A | | |
| 652005 | State School | N/A | N/A | N/A | N/A | | |
| 652025 | State School 2 Refund | N/A | N/A | N/A | N/A | | |
| 107001 | Flood Control Zone | N/A | N/A | N/A | N/A | | |
| 692201 | Hospital No 2 General | N/A | N/A | N/A | N/A | | |
| 692210 | Hospital No 2 Bond | N/A | N/A | N/A | N/A | | |
| 692260 | Hospital No 2 EMS | N/A | N/A | N/A | N/A | | |
| 644001 | Regional Library | N/A | N/A | N/A | N/A | | |
| 671101 | Port General | N/A | N/A | N/A | N/A | | |
| 654100 | Lake Chelan SD 129 General | N/A | N/A | N/A | N/A | | |
| | Total Tax Rate: | N/A | | | | | |
| | | | | Taxes w/Current Exemptions: | N/A | | |
| | | | | Taxes w/o Exemptions: | N/A | | |
Improvement / Building
| Improvement #1: | RESIDENTIAL | State Code: | 11 | 0.0 sqft | Value: | N/A |
| | Type | Description | Class CD | Sub Class CD | Year Built | Area |
| | DECK | Open Wood Deck | AVERAGE | 1 STY | 1970 | 372.0 |
| | GP-BLD | Pole Type Garage/Bldg | FAIR | 1 STY | 1970 | 108.0 |
| | CP-G | Carport/Patio Cover Gable Roof | LOW | 1 STY | 1970 | 602.0 |
Sketch
| No sketches available for this property. |
Property Image
Land
No land segments exist for this property.
Roll Value History
| 2026 | N/A | N/A | N/A | N/A | N/A |
| 2025 | $5,236 | $0 | $0 | $5,236 | $5,236 |
| 2024 | $5,452 | $0 | $0 | $5,452 | $5,452 |
| 2023 | $0 | $0 | $0 | $0 | $0 |
| 2022 | $8,874 | $0 | $0 | $8,874 | $8,874 |
| 2021 | $20,754 | $0 | $0 | $20,754 | $20,754 |
| 2020 | $7,223 | $0 | $0 | $7,223 | $7,223 |
| 2019 | $7,223 | $0 | $0 | $7,223 | $7,223 |
| 2018 | $7,709 | $0 | $0 | $7,709 | $7,709 |
| 2017 | $8,156 | $0 | $0 | $8,156 | $8,156 |
| 2016 | $8,729 | $0 | $0 | $8,729 | $8,729 |
| 2015 | $5,683 | $0 | $0 | $5,683 | $5,683 |
| 2014 | $5,738 | $0 | $0 | $5,738 | $5,738 |
| 2013 | $5,793 | $0 | $0 | $5,793 | $5,793 |
| 2012 | $5,865 | $0 | $0 | $5,865 | $5,865 |
| 2011 | $5,920 | $0 | $0 | $5,920 | $5,920 |
| 2010 | $5,232 | $0 | $0 | $5,232 | $5,232 |
| 2009 | $5,232 | $0 | $0 | $5,232 | $5,232 |
| 2008 | $5,232 | $0 | $0 | $5,232 | $5,232 |
| 2007 | $4,183 | $0 | $0 | $4,183 | $4,183 |
Deed and Sales History
| 1 | 10/27/2025 | BOS | Bill Of Sale | LOOMIS ERIC & MICHELLE | GLOSNIAK JANEE & PAUL | | | $9,000.00 | 207005 | 2614518 |
| 2 | 10/22/2021 | BOS | Bill Of Sale | KARCUTSKI-SMITH SHARON K | LOOMIS ERIC & MICHELLE | | | $9,000.00 | 193822 | 2555342 |
| 3 | 10/13/2003 | O | Other | | | 0 | 0 | $2,000.00 | 12018000 | |
|   | |
Payout Agreement
| No payout information available.. |