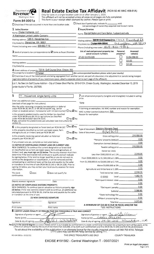
Property
Account |
| Property ID: | 11503 | Abbreviated Legal Description: | SELF'S TRAILER PARK SPACE 14 67 SKYLINE 60X12 |
| Geographic ID: | 9904419 | Agent Code: | |
| Type: | Mobile Home | | |
| Tax Area: | 60 - 222 F6 | Land Use Code | 11 |
| Open Space: | N | DFL | N |
| Historic Property: | N | Remodel Property: | N |
| Multi-Family Redevelopment: | N | | |
| Township: | | Section: | |
| Range: | | Legal Acres: | |
Location |
| Address: | 3601 SELFS MOTEL RD 14 CASHMERE, WA 98815 | Mapsco: | |
| Neighborhood: | | Map ID: | 1CSHN02C01 |
| Neighborhood CD: | |
Owner |
| Name: | HAUETER ROY B | Owner ID: | 56777 |
| Mailing Address: | 969 E OAK CREEK DR LEHI, UT 84043 | % Ownership: | % |
| | | Exemptions: | |
Pay Tax Due
Select the appropriate checkbox next to the year to be paid. Multiple years may be selected.
*Convenience Fee not included
Taxes and Assessment Details
Values
| (+) Improvement Homesite Value: | + | N/A | |
| (+) Improvement Non-Homesite Value: | + | N/A | |
| (+) Land Homesite Value: | + | N/A | |
| (+) Land Non-Homesite Value: | + | N/A | Ag / Timber Use Value |
| (+) Curr Use (HS): | + | N/A | N/A |
| (+) Curr Use (NHS): | + | N/A | N/A |
| | | -------------------------- | |
| (=) Market Value: | = | N/A | |
| (–) Productivity Loss: | – | N/A | |
| | | -------------------------- | |
| (=) Subtotal: | = | N/A | |
| (+) Senior Appraised Value: | + | N/A | |
| (+) Non-Senior Appraised Value: | + | N/A | |
| | | -------------------------- | |
| (=) Total Appraised Value: | = | N/A | |
| (–) Senior Exemption Loss: | – | N/A | |
| (–) Exemption Loss: | – | N/A | |
| | | -------------------------- | |
| (=) Taxable Value: | = | N/A | |
Taxing Jurisdiction
| Owner: | HAUETER ROY B | | |
| % Ownership: | 100.0000000000% | | |
| Total Value: | N/A | | |
| Tax Area: | 60 - 222 F6 |
| 110001 | County Road General | N/A | N/A | N/A | N/A | | |
| 010170 | Chelan County | N/A | N/A | N/A | N/A | | |
| 155001 | Veteran's Relief | N/A | N/A | N/A | N/A | | |
| 160001 | Mental Health | N/A | N/A | N/A | N/A | | |
| 656601 | Fire No 6 General | N/A | N/A | N/A | N/A | | |
| 644001 | Regional Library | N/A | N/A | N/A | N/A | | |
| 652005 | State School | N/A | N/A | N/A | N/A | | |
| 652025 | State School 2 Refund | N/A | N/A | N/A | N/A | | |
| 107001 | Flood Control Zone | N/A | N/A | N/A | N/A | | |
| 671101 | Port General | N/A | N/A | N/A | N/A | | |
| 654121 | Cashmere SD 222 General | N/A | N/A | N/A | N/A | | |
| 654130 | Cashmere SD 222 Bond | N/A | N/A | N/A | N/A | | |
| 654135 | Cashmere SD 222 Cap Projects | N/A | N/A | N/A | N/A | | |
| 652001 | State School Refund | N/A | N/A | N/A | N/A | | |
| 652003 | State School 2 | N/A | N/A | N/A | N/A | | |
| | Total Tax Rate: | N/A | | | | | |
| | | | | Taxes w/Current Exemptions: | N/A | | |
| | | | | Taxes w/o Exemptions: | N/A | | |
Improvement / Building
| Improvement #1: | MOBILE HOME | State Code: | 15 | 750.0 sqft | Value: | N/A |
| Exterior Wall: | Metal or Vinyl | Heating/Cooling: | Forced Air |
|
| | Type | Description | Class CD | Sub Class CD | Year Built | Area |
| | MH1 | MH SINGLE | LOW | MBL HOME | 1967 | 750.0 |
| | DECK | Open Wood Deck | LOW | | 1967 | 84.0 |
Sketch
| No sketches available for this property. |
Property Image
Land
No land segments exist for this property.
Roll Value History
| 2026 | N/A | N/A | N/A | N/A | N/A |
| 2025 | $6,071 | $0 | $0 | $6,071 | $6,071 |
| 2024 | $3,037 | $0 | $0 | $3,037 | $3,037 |
| 2023 | $3,056 | $0 | $0 | $3,056 | $3,056 |
| 2022 | $3,075 | $0 | $0 | $3,075 | $3,075 |
| 2021 | $3,112 | $0 | $0 | $3,112 | $3,112 |
| 2020 | $3,171 | $0 | $0 | $3,171 | $3,171 |
| 2019 | $3,190 | $0 | $0 | $3,190 | $3,190 |
| 2018 | $3,227 | $0 | $0 | $3,227 | $3,227 |
| 2017 | $3,246 | $0 | $0 | $3,246 | $3,246 |
| 2016 | $2,724 | $0 | $0 | $2,724 | $2,724 |
| 2015 | $2,724 | $0 | $0 | $2,724 | $2,724 |
| 2014 | $2,724 | $0 | $0 | $2,724 | $2,724 |
| 2013 | $2,724 | $0 | $0 | $2,724 | $2,724 |
| 2012 | $2,724 | $0 | $0 | $2,724 | $2,724 |
| 2011 | $2,250 | $0 | $0 | $2,250 | $2,250 |
| 2010 | $2,250 | $0 | $0 | $2,250 | $2,250 |
| 2009 | $2,250 | $0 | $0 | $2,250 | $2,250 |
| 2008 | $2,250 | $0 | $0 | $2,250 | $2,250 |
| 2007 | $2,250 | $0 | $0 | $2,250 | $2,250 |
Deed and Sales History
| 1 | 04/12/2016 | MH TITLE | Mobile Home Title | GOMEZ HECTOR FLORES A | HAUETER ROY B | | | $3,000.00 | 169594 | |
| 2 | 08/10/2004 | MH TITLE | Mobile Home Title | SOTO JESUS A | GOMEZ HECTOR FLORES A | | | | 0 | |
| 3 | 08/10/2004 | O | Other | | | 0 | 0 | $1,500.00 | 12410100 | |
|   | |
| 4 | 07/27/2004 | O | Other | | | 0 | 0 | | 12383500 | |
| 5 | 05/31/2000 | O | Other | | | 0 | 0 | | 10607700 | |
Payout Agreement
| No payout information available.. |