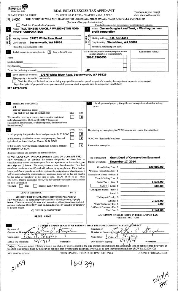
Property
Account |
| Property ID: | 47049 | Abbreviated Legal Description: | T 28N R 16EWM S 18 PT HES #163 132.8500 ACRES |
| Geographic ID: | 281618300050 | Agent Code: | |
| Type: | Real | | |
| Tax Area: | 29 - 228 F9 H1 | Land Use Code | 74 |
| Open Space: | N | DFL | N |
| Historic Property: | N | Remodel Property: | N |
| Multi-Family Redevelopment: | N | | |
| Township: | 28N | Section: | 18 |
| Range: | 16EWM | Legal Acres: | 132.8500 |
Location |
| Address: | 27875 WHITE RIVER RD LAKE WENATCHEE, WA 98826 | Mapsco: | |
| Neighborhood: | Cycle 3 Lake Wen/Plain div 3 COM | Map ID: | 3LAKP03C01 |
| Neighborhood CD: | 3LAKP03C01 |
Owner |
| Name: | TALL TIMBER RANCH | Owner ID: | 65921 |
| Mailing Address: | 27875 WHITE RIVER RD LEAVENWORTH, WA 98826 | % Ownership: | % |
| | | Exemptions: | |
Pay Tax Due
Select the appropriate checkbox next to the year to be paid. Multiple years may be selected.
*Convenience Fee not included
Taxes and Assessment Details
Values
| (+) Improvement Homesite Value: | + | N/A | |
| (+) Improvement Non-Homesite Value: | + | N/A | |
| (+) Land Homesite Value: | + | N/A | |
| (+) Land Non-Homesite Value: | + | N/A | Ag / Timber Use Value |
| (+) Curr Use (HS): | + | N/A | N/A |
| (+) Curr Use (NHS): | + | N/A | N/A |
| | | -------------------------- | |
| (=) Market Value: | = | N/A | |
| (–) Productivity Loss: | – | N/A | |
| | | -------------------------- | |
| (=) Subtotal: | = | N/A | |
| (+) Senior Appraised Value: | + | N/A | |
| (+) Non-Senior Appraised Value: | + | N/A | |
| | | -------------------------- | |
| (=) Total Appraised Value: | = | N/A | |
| (–) Senior Exemption Loss: | – | N/A | |
| (–) Exemption Loss: | – | N/A | |
| | | -------------------------- | |
| (=) Taxable Value: | = | N/A | |
Taxing Jurisdiction
| Owner: | TALL TIMBER RANCH | | |
| % Ownership: | 100.0000000000% | | |
| Total Value: | N/A | | |
| Tax Area: | 29 - 228 F9 H1 |
| 110001 | County Road General | N/A | N/A | N/A | N/A | | |
| 010170 | Chelan County | N/A | N/A | N/A | N/A | | |
| 155001 | Veteran's Relief | N/A | N/A | N/A | N/A | | |
| 160001 | Mental Health | N/A | N/A | N/A | N/A | | |
| 656901 | Fire No 9 General | N/A | N/A | N/A | N/A | | |
| 692101 | Hospital No 1 General | N/A | N/A | N/A | N/A | | |
| 652001 | State School Refund | N/A | N/A | N/A | N/A | | |
| 652003 | State School 2 | N/A | N/A | N/A | N/A | | |
| 652005 | State School | N/A | N/A | N/A | N/A | | |
| 652025 | State School 2 Refund | N/A | N/A | N/A | N/A | | |
| 107001 | Flood Control Zone | N/A | N/A | N/A | N/A | | |
| 692110 | Hospital No 1 Bond | N/A | N/A | N/A | N/A | | |
| 644001 | Regional Library | N/A | N/A | N/A | N/A | | |
| 671101 | Port General | N/A | N/A | N/A | N/A | | |
| 654161 | Cascade SD 228 General | N/A | N/A | N/A | N/A | | |
| 654170 | Cascade SD 228 Bond | N/A | N/A | N/A | N/A | | |
| 654175 | Cascade SD 228 Cap Projects | N/A | N/A | N/A | N/A | | |
| | Total Tax Rate: | N/A | | | | | |
| | | | | Taxes w/Current Exemptions: | N/A | | |
| | | | | Taxes w/o Exemptions: | N/A | | |
Improvement / Building
| Improvement #1: | RESIDENTIAL | State Code: | 74 | 1970.0 sqft | Value: | N/A |
| Exterior Wall: | Plywood or Hrdbrd | Heating/Cooling: | Heat Pump | | Number of Bedrooms: | 3 |   |   |
|
| | Type | Description | Class CD | Sub Class CD | Year Built | Area |
| | MA | Main | AVERAGE | 1 STY | 2008 | 1970.0 |
| | DECK | Open Wood Deck | AVERAGE | * | 2008 | 204.0 |
| | DECK | Open Wood Deck | AVERAGE | * | 2008 | 219.0 |
| Improvement #2: | RESIDENTIAL | State Code: | 74 | 0.0 sqft | Value: | N/A |
| | Type | Description | Class CD | Sub Class CD | Year Built | Area |
| | GAR-DET | Detached Garage | LOW | 1 STY | 2008 | 384.0 |
| | DECK | Open Wood Deck | FAIR | * | 2008 | 384.0 |
| Improvement #3: | RESIDENTIAL | State Code: | 74 | 1970.0 sqft | Value: | N/A |
| Exterior Wall: | Plywood or Hrdbrd | Heating/Cooling: | Heat Pump | | Number of Bedrooms: | 3 |   |   |
|
| | Type | Description | Class CD | Sub Class CD | Year Built | Area |
| | MA | Main | AVERAGE | 1 STY | 2008 | 1970.0 |
| | DECK | Open Wood Deck | AVERAGE | * | 2008 | 204.0 |
| | DECK | Open Wood Deck | AVERAGE | * | 2008 | 219.0 |
| Improvement #4: | COMMERCIAL | State Code: | 74 | 1200.0 sqft | Value: | N/A |
| Improvement #5: | COMMERCIAL | State Code: | 74 | 2480.0 sqft | Value: | N/A |
| Improvement #6: | COMMERCIAL | State Code: | 74 | 6110.0 sqft | Value: | N/A |
| Improvement #7: | COMMERCIAL | State Code: | 74 | 928.0 sqft | Value: | N/A |
| Exterior Wall: | Concrete Block |   |   |
|
| Improvement #8: | COMMERCIAL | State Code: | 74 | 1120.0 sqft | Value: | N/A |
| Improvement #9: | COMMERCIAL | State Code: | 74 | 2740.0 sqft | Value: | N/A |
| Improvement #10: | RESIDENTIAL | State Code: | 11 | 0.0 sqft | Value: | N/A |
| Improvement #11: | RESIDENTIAL | State Code: | 74 | 640.0 sqft | Value: | N/A |
| Exterior Wall: | Plywood or Hrdbrd | Heating/Cooling: | Baseboard Panel |
|
| | Type | Description | Class CD | Sub Class CD | Year Built | Area |
| | DECK | Open Wood Deck | FAIR | | 1992 | 96.0 |
| | MA | Main | FAIR | 1 STY | 1992 | 480.0 |
| | MA | Main | FAIR | 1 STY | 1992 | 160.0 |
Sketch
Property Image
Land
| 1 | RES 2.5K | RESIDUAL $2500/A | 83.8900 | 3654248.40 | 0.00 | 0.00 | 1.00 | N/A | N/A |
| 2 | RES 500 | RESIDUAL $500/A | 48.9600 | 2132697.60 | 0.00 | 0.00 | 1.00 | N/A | N/A |
Roll Value History
| 2026 | N/A | N/A | N/A | N/A | N/A |
| 2025 | $1,399,427 | $234,205 | $0 | $1,633,632 | $1,633,632 |
| 2024 | $1,296,433 | $234,205 | $0 | $1,530,638 | $0 |
| 2023 | $0 | $0 | $0 | $0 | $0 |
| 2022 | $0 | $0 | $0 | $0 | $0 |
| 2021 | $0 | $0 | $0 | $0 | $0 |
| 2020 | $0 | $0 | $0 | $0 | $0 |
| 2019 | $0 | $0 | $0 | $0 | $0 |
| 2018 | $0 | $0 | $0 | $0 | $0 |
| 2017 | $0 | $0 | $0 | $0 | $0 |
| 2016 | $0 | $0 | $0 | $0 | $0 |
| 2015 | $987,715 | $234,205 | $0 | $1,221,920 | $0 |
| 2014 | $881,114 | $234,205 | $0 | $1,115,319 | $0 |
| 2013 | $911,987 | $234,205 | $0 | $1,146,192 | $0 |
| 2012 | $988,054 | $234,205 | $0 | $1,222,259 | $0 |
| 2011 | $1,018,358 | $234,205 | $0 | $1,252,563 | $0 |
| 2010 | $1,077,958 | $234,205 | $0 | $1,312,163 | $0 |
| 2009 | $1,077,958 | $234,205 | $0 | $1,312,163 | $0 |
| 2008 | $912,435 | $209,725 | $0 | $1,122,160 | $0 |
| 2007 | $702,065 | $209,725 | $0 | $911,790 | $0 |
Deed and Sales History
| 1 | 10/22/2010 | EASEMENT | Easement | | CHELAN-DOUGLAS LAND TRUST - DO NOT USE-PLEASE USE 18007 | | | $400,000.00 | 150332 | 2331822 |
|   | |
| 2 | 07/17/2007 | O | Other | | TALL TIMBER RANCH | | | | 0 | 2260895 |
| 3 | 07/17/2007 | O | Other | | TALL TIMBER RANCH | | | | 0 | 2260895 |
| 4 | | OT | Conversion Code Only | | TALL TIMBER CORP | 699 | 1185 | | 0 | |
| 5 | 07/17/2007 | O | Other | | | | | | 13936501 | 2260895 |
Payout Agreement
| No payout information available.. |